Omschrijving

Vind jij duurzaamheid belangrijk en ben je op zoek naar een energiezuinige woning met 8 zonnepanelen, stadsverwarming met WTW-installatie, HR++ beglazing en vloerverwarming? Zoek jij een uitgebouwd en ruim woonhuis met 4 tot 5 slaapkamers, een moderne badkamer, een luxe keuken en een zeer strak afwerkingsniveau? Wil jij graag een zonnige tuin op het zuidwesten en wonen in een populair en kindvriendelijk hofje?

Dan is Somapad 35 te Ede jouw nieuwe plek!

Belangrijkste kenmerken:
- Energielabel A++ met 8 zonnepanelen
- Stadsverwarming, WTW-installatie en vloerverwarming
- Ruim woonhuis met een zeer hoog afwerkingsniveau
- Luxe woonkeuken met spoel-/schiereiland
- Zonnige tuin op het zuidwesten

IS SOMAPAD 35 DÉ WONING VOOR JOU?
Wanneer je aankomt bij Somapad 35 te Ede dan valt direct op dat we een fantastisch woonhuis mogen verkopen. Het betreft een prachtige, charmante en royale tussenwoning met vrijstaande berging op ca. 129 m² eigen grond. Het woonhuis is in 2021 gebouwd en beschikt o.a. over ca. 137 m² woonoppervlakte, een zonnige achtertuin gelegen op het zuidwesten, een moderne badkamer en een luxe keuken. Aan verduurzaming is uiteraard ook gedacht. Daar staat deze wijk juist om bekend. Naast volledige isolatie, HR++ beglazing, stadsverwarming en een WTW installatie is de woning ook uitgerust met 8 zonnepanelen á 325 Wp.

Omgeving:
Somapad 35 is gelegen op een populaire en kindvriendelijke buurt in Ede. De woning staat op het voormalige "Soma" terrein waar vroeger het SOMA-college, de opleiding voor machinisten stond, tot 2019. Dit werd het project De Maander.

In de directe omgeving zijn verschillende voorzieningen te bereiken: genieten van het Proosdijpark, winkelcentrum 'Rozenplein' voor meer dan je dagelijkse boodschappen, kinderboerderij 'De Proosdij' en op korte afstand vind je het centrum van Ede, diverse (basis)scholen, openbaar vervoer (Station Ede-Wageningen), bouwmarkten, XL supermarkt en sportgelegenheden. Ook zijn de uitvalswegen A12 en A30 goed te bereiken.

Begane grond:
De ruime entree met meterkast, garderoberuimte, trapopgang naar de 1e verdieping en de toiletruimte met zwevend toilet en fonteintje brengt je via een glazen deur naar de living. Wat gelijk al opvalt in de hal is het zeer hoge afwerkingsniveau! De prachtige betonlook PVC/tegelvloer met vloerverwarming en de gladde wanden geven je alvast een voorproefje van wat de woning je nog meer te bieden heeft.

Zodra we verder lopen richting de leefruimte zien we dat de woning aan de achterzijde is uitgebouwd. Hierdoor is de begane grond 10,22 meter diep! Door de plaatsing van grote raampartijen met dubbele openslaande tuindeuren komt er enorm veel daglicht binnen. Een absolute meerwaarde voor de woning. In de uitbouw en daardoor gelegen aan de achterzijde van de woning, bevindt zich de gezellige woonkamer. Door de uitbouw beschik je over zeer veel ruimte waardoor er vele mogelijkheden zijn voor jouw inrichting. Zoals is te zien behoort een grote bank en een grote eettafel tot mogelijkheden. Vanuit de woonkamer heb je prettig uitzicht op de verzorgde achtertuin.

Aan de voorzijde van de woning is de keuken gesitueerd. Aan de ene wand een kastenwand met opbergruimte, een koel-vriescombinatie en een combi-ven en aan de andere wand een L-opstelling met een spoel-/schiereiland. Uiteraard is het belangrijkste inbouwapparatuur ook aanwezig. Denk hierbij ook aan een vaatwasser en inductiekookplaat met afzuigkap. Met zijn zwarte fronten en een keramische look aanrechtblad is de keuken helemaal van deze tijd!

1e verdieping:
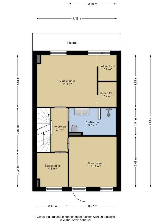
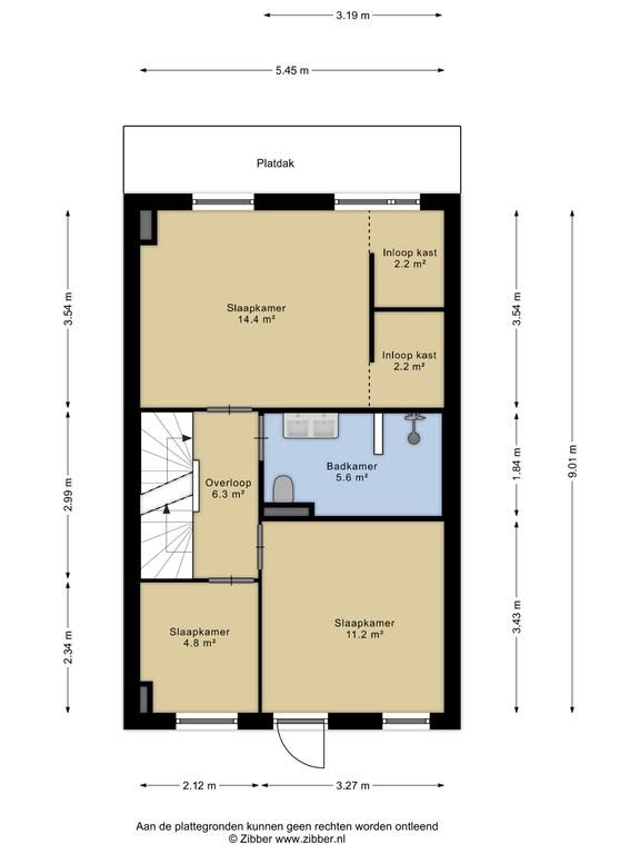
Via de houten trap betreden we de 1e verdieping en zien we wederom dat deze woning beschikt over een zeer hoog afwerkingsniveau. De royale overloop biedt je toegang tot 3 slaapkamers en een ruime badkamer.

De grootste slaapkamer op de 1e verdieping is gelegen aan de achterzijde van de woning en is ruim 19 m² groot. Deze slaapkamer heeft heerlijk uitzicht over de achtertuin en het achtergelegen, rustige parkeerterrein. Doordat de woning een binnenmaat heeft van bijna 5,5 meter is het mogelijk om een deel van de slaapkamer te gebruiken als walk-in closet.

De moderne badkamer is strak, modern en zeer compleet uitgevoerd. Zo beschik je naast een ruime inloopdouche ook over een wastafelmeubel met dubbele wastafel, designradiator en een 2e toilet. Het plafond is mooi strak gestuukt en voorzien van inbouwspots.

De andere 2 slaapkamers zijn gelegen aan de voorzijde van de woning, beschikken door grote raampartijen over zeer veel daglicht, hebben uitzicht op de kindvriendelijke groenstrook met speeltuin en zijn beide circa 4,8 m² en 11,2 m². Door de huidige eigenaren in gebruik als werk- en logeerkamer. Beide kamers zijn uiteraard ook geschikt voor een kinder-/babykamer.

2e verdieping:
Via een vaste houten trap betreden we de 2e verdieping. Een royale 2e verdieping met een mooie vloer, veel daglicht en die je geheel naar eigen smaken en wensen in kan delen. Door het plaatsen van een dakkapel in combinatie met enkele wanden en deuren is het relatief eenvoudig om hier, indien nodig, een 4e en/of 5e slaapkamer te realiseren. Uiteraard is het ook mogelijk om deze ruimte als multifunctionele ruimte te houden. Een ideale plek om te sporten, te werken of waar gasten kunnen blijven slapen.

Tuin:
Via de dubbele openslaande tuindeuren vanuit de keuken is de achtertuin te bereiken. Een verzorgde tuin die is voorzien van sierbestrating, plantenbakken met grassen en planten en een leuke veranda om gezellig overdekt te kunnen zitten. De achtertuin is gelegen op het zuidwesten en kan dus met zekerheid worden bestempeld als een zeer zonnige achtertuin. Achterin de tuin staat nog een houten berging en er is een achterom aanwezig naar het achtergelegen parkeerterrein.

Kenmerken:
- Bouwjaar 2021;
- Woonoppervlakte 137 m²;
- Inhoud circa 486 m²;
- Perceel van 129 m² eigen grond;
- Energielabel A++;
- Volledig geïsoleerd
- 8 zonnepanelen á 325 Wp;
- Stadsverwarming met een WTW-installatie;
- Moderne en luxe badkamer (2021)
- Moderne en luxe keuken met spoel-/schiereiland (2021)
- Oplevering in overleg.

Koopovereenkomst:
Bij de verkoop zal er een standaard NVM koopovereenkomst worden gehanteerd.

Koopt u de woning zonder voorbehoud van financiering? Dan zullen wij een termijn hanteren van 14 dagen na het opstellen van de koopovereenkomst voor het storten van de bankgarantie/waarborgsom.

Deze informatie is door ons met de nodige zorgvuldigheid samengesteld. Onzerzijds wordt echter geen enkele aansprakelijkheid aanvaard voor enige onvolledigheid, onjuistheid of anderszins, dan wel de gevolgen daarvan. Alle opgegeven maten en oppervlakten zijn indicatief.
+ toon meer
deze woning is Verkocht

Somapad 35 Ede

Somapad 35

6713 LA, Ede
Ditters open huis: 5 april 2025 10:00 - 12:00 uur
Landelijke Open Huizen Route NVM: 5 april 2025 11:00 uur - 15:00 uur
Vanaf€ 550.000 k.k.

Schakel een aankoopmakelaar in.

Snel handelen helpt je jouw droomhuis te bemachtigen. Zo vergroot je de kans dat je er op tijd bij bent.
Ede
verkocht

Of maak vrijblijvend een zoekprofiel aan.

Vergelijkbare woningen

Hypotheken

Onafhankelijk hypotheekadvies

  • Ligt jouw droomhuis binnen handbereik?
  • Wil je jouw huidige hypotheek verhogen?
  • Is er hypotheekruimte voor verduurzaming?

Blijf op de hoogte

Ontvang als eerste updates over nieuw aanbod en mis geen enkele kans om jouw droomwoning te vinden.

Gratis waardebepaling of verkoopgesprek

Met de vrijblijvende waardecheck weet je snel waar je aan toe bent. Onze makelaars kijken naar de lokale markt en vergelijkbare woningen in jouw buurt om een goede schatting te geven.

Realiseer al jouw woondromen met Ditters

Wij zijn een team van gedreven vastgoedexperts met een passie voor het maken van verbindingen – tussen kopers en verkopers, huurders en verhuurders. Met een frisse kijk op de makelaardij combineren we expertise met creativiteit. Onze makelaars luisteren écht en nemen de tijd om jouw wensen te begrijpen.


Bij Ditters sta je er niet alleen voor. We denken met je mee, begeleiden je in elke stap en zijn altijd bereikbaar voor vragen. Neem gerust contact met ons op – we helpen je graag verder!