Omschrijving

Dit appartement, gelegen aan de Valkestein, biedt een balkon op het westen met prachtig uitzicht over het water. Het appartement beschikt over twee slaapkamers en een inpandige berging die via het balkon toegankelijk is.

Het appartement ligt naast het Proosdijpark, een van de mooiste parken in Ede, met volop recreatiemogelijkheden. Het park heeft een grote vijver en veel groen, ideaal voor een ontspannen wandeling of picknick. Aan de oostkant van het park bevindt zich kinderboerderij De Proosdij, die zowel jong als oud vermaak biedt.

Voor dagelijkse voorzieningen hoef je niet ver te zoeken. Op minder dan 10 minuten loopafstand ligt winkelcentrum Bellestein, met onder andere twee supermarkten, de Kruidvat en diverse andere winkels. Ook vind je hier een apotheek en huisartsenpost. Met slechts 5 minuten fietsen ben je in het centrum van Ede, waar je naast dagelijkse voorzieningen ook gezellige eetgelegenheden en kledingwinkels vindt.

De bereikbaarheid van het appartement is uitstekend. Binnen 10 minuten rijden bereik je diverse uitvalswegen zoals de N224, N304, A30 en A12, waarmee je eenvoudig naar de regio en grote steden als Arnhem en Utrecht kunt reizen. Ook met het openbaar vervoer is het appartement goed bereikbaar, met meerdere bushaltes op slechts enkele honderden meters afstand. Station Ede Centrum ligt op 10 minuten fietsafstand, vanwaar je gemakkelijk naar steden als Amersfoort, Arnhem en Utrecht kunt reizen.

Pluspunten van de woning:
+ Balkon op het zuidoosten;
+ Uitzicht over het water;
+ Op loopafstand van de dagelijkse voorzieningen;
+ Goede bereikbaarheid;
+ VvE kosten van in totaal € 288 per maand.

Indeling
Het appartement is bereikbaar middels een centraal afgesloten entree voorzien van intercominstallatie en een lift.

Verdieping
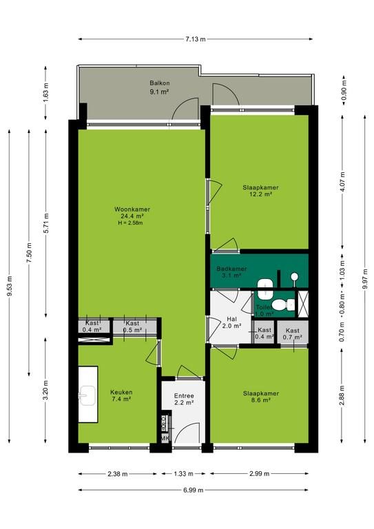
Binnenkomst via de entree met toegang tot de meterkast. De keuken is eenvoudig, terwijl de royale woonkamer van ongeveer 24 m² toegang biedt tot het balkon op het westen. De grote slaapkamer heeft eveneens toegang tot het balkon. De badkamer is voorzien van een wastafel en een inloopdouche en leidt naar de hal, waar zich een apart toilet en een berging bevinden. Vanuit de hal is ook de tweede slaapkamer bereikbaar, die tevens beschikt over een extra bergkast.

Inhoud woning: 239 m³
Woonoppervlakte: 68 m²

Bijzonderheden
Verwarming: Blokverwarming;
Warmwater: Elektrische boiler;
Isolatie: Dak- en vloer isolatie, dubbelglas;
Bouwjaar: 1973;
Balkonligging: Zuidoosten;
Aanvaarding: In overleg.

Koopovereenkomst:
Bij de verkoop zal er een standaard NVM koopovereenkomst worden gehanteerd. Bij woningen welke ouder zijn dan 20 jaar, worden de volgende clausules opgenomen in de koopovereenkomst:
- Asbestclausule;
- Ouderdomsclausule;
- Niet bewonerclausule.

Koopt u de woning zonder voorbehoud van financiering? Dan zullen wij een termijn hanteren van 14 dagen na het opstellen van de koopovereenkomst voor het storten van de bankgarantie/waarborgsom.

Deze informatie is door ons met de nodige zorgvuldigheid samengesteld. Onzerzijds wordt echter geen enkele aansprakelijkheid aanvaard voor enige onvolledigheid, onjuistheid of anderszins, dan wel de gevolgen daarvan. Alle opgegeven maten en oppervlakten zijn indicatief.
+ toon meer
deze woning is Verkocht

Valkestein 1015 Ede

Valkestein 1015

6714 BG, Ede
Ditters open huis: 5 april 2025 10:00 - 12:00 uur
Landelijke Open Huizen Route NVM: 5 april 2025 11:00 uur - 15:00 uur
Vanaf€ 250.000 k.k.

Schakel een aankoopmakelaar in.

Snel handelen helpt je jouw droomhuis te bemachtigen. Zo vergroot je de kans dat je er op tijd bij bent.
Ede
verkocht

Of maak vrijblijvend een zoekprofiel aan.

Vergelijkbare woningen

Hypotheken

Onafhankelijk hypotheekadvies

  • Ligt jouw droomhuis binnen handbereik?
  • Wil je jouw huidige hypotheek verhogen?
  • Is er hypotheekruimte voor verduurzaming?

Blijf op de hoogte

Ontvang als eerste updates over nieuw aanbod en mis geen enkele kans om jouw droomwoning te vinden.

Gratis waardebepaling of verkoopgesprek

Met de vrijblijvende waardecheck weet je snel waar je aan toe bent. Onze makelaars kijken naar de lokale markt en vergelijkbare woningen in jouw buurt om een goede schatting te geven.

Realiseer al jouw woondromen met Ditters

Wij zijn een team van gedreven vastgoedexperts met een passie voor het maken van verbindingen – tussen kopers en verkopers, huurders en verhuurders. Met een frisse kijk op de makelaardij combineren we expertise met creativiteit. Onze makelaars luisteren écht en nemen de tijd om jouw wensen te begrijpen.


Bij Ditters sta je er niet alleen voor. We denken met je mee, begeleiden je in elke stap en zijn altijd bereikbaar voor vragen. Neem gerust contact met ons op – we helpen je graag verder!