Omschrijving

Deze ruime en moderne 2-onder-1-kapwoning heeft alles wat je zoekt! Met een eigen oprit en een grote garage is er volop ruimte voor auto's en extra opslag. De woning biedt maar liefst 6 slaapkamers, ideaal voor een groot gezin of voor het creëren van thuiswerkplekken. De sfeervolle tuin op het westen is perfect om te genieten van de zon, maar biedt ook voldoende schaduw.. Deze woning is bovendien helemaal van deze tijd: voorzien van vloerverwarming, grondwarmtepomp, zonnepanelen én het zuinige energielabel A+++. Comfortabel, duurzaam en volledig klaar voor de toekomst!

Deze woning staat op het geliefde Enka-terrein, met het bos om de hoek. Ook het station Ede-Wageningen ligt op loopafstand, net als het fijne winkelcentrum Spindop aan de Parkweg. Alles wat je nodig hebt, binnen handbereik!

Alle kenmerken op een rij:
* Moderne 2-onder-1-kapwoning gebouwd in 2017;
* Beschikt over 6 slaapkamers;
* Een mooie gietvloer door de hele woning;
* Tuin gelegen op het westen;
* Duurzame woning o.a. voorzien van vloerverwarming, grondwarmtepomp en zonnepanelen;
* Dichtbij het bos, station en alle andere voorzieningen;
* De woning en de garage hebben ieder een eigen kruipruimte;
* Op zolder de mogelijkheid om een extra badkamer te creëren;
* De begane grond is uitgebouwd waardoor je heerlijk geniet van extra ruimte op deze verdieping.

Indeling
Begane grond
De woonkamer van maar liefst 56 m² biedt volop ruimte om jouw ideale plek te creëren. De moderne gietvloer zorgt voor een strak en eigentijds karakter, terwijl de openslaande deuren naar de tuin binnen en buiten moeiteloos met elkaar verbinden. Bovendien is er een prachtige inbouwkast met open vakken, ideaal om jouw persoonlijke items een bijzondere plek te geven en jouw eigen stijl te laten stralen. Een ruimte die uitnodigt om heerlijk te genieten en helemaal jouw thuis te maken.

Aan de voorzijde van de woning bevindt zich de gezellige eethoek en de ruime en lichte keuken. Deze luxe keuken is van alle gemakken voorzien, zoals een inductieplaat, combi-oven, vaatwasser en een handige Quooker-kraan. Doordat de trap strategisch geplaatst is, is er ruim voldoende plek voor een grote eettafel in de keuken. Kortom, een heerlijke plek waar koken en gezelligheid samenkomt.

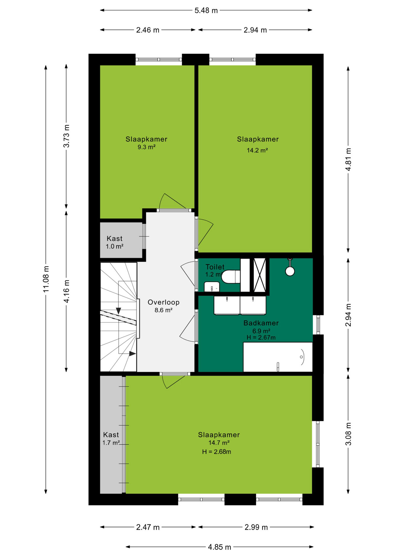
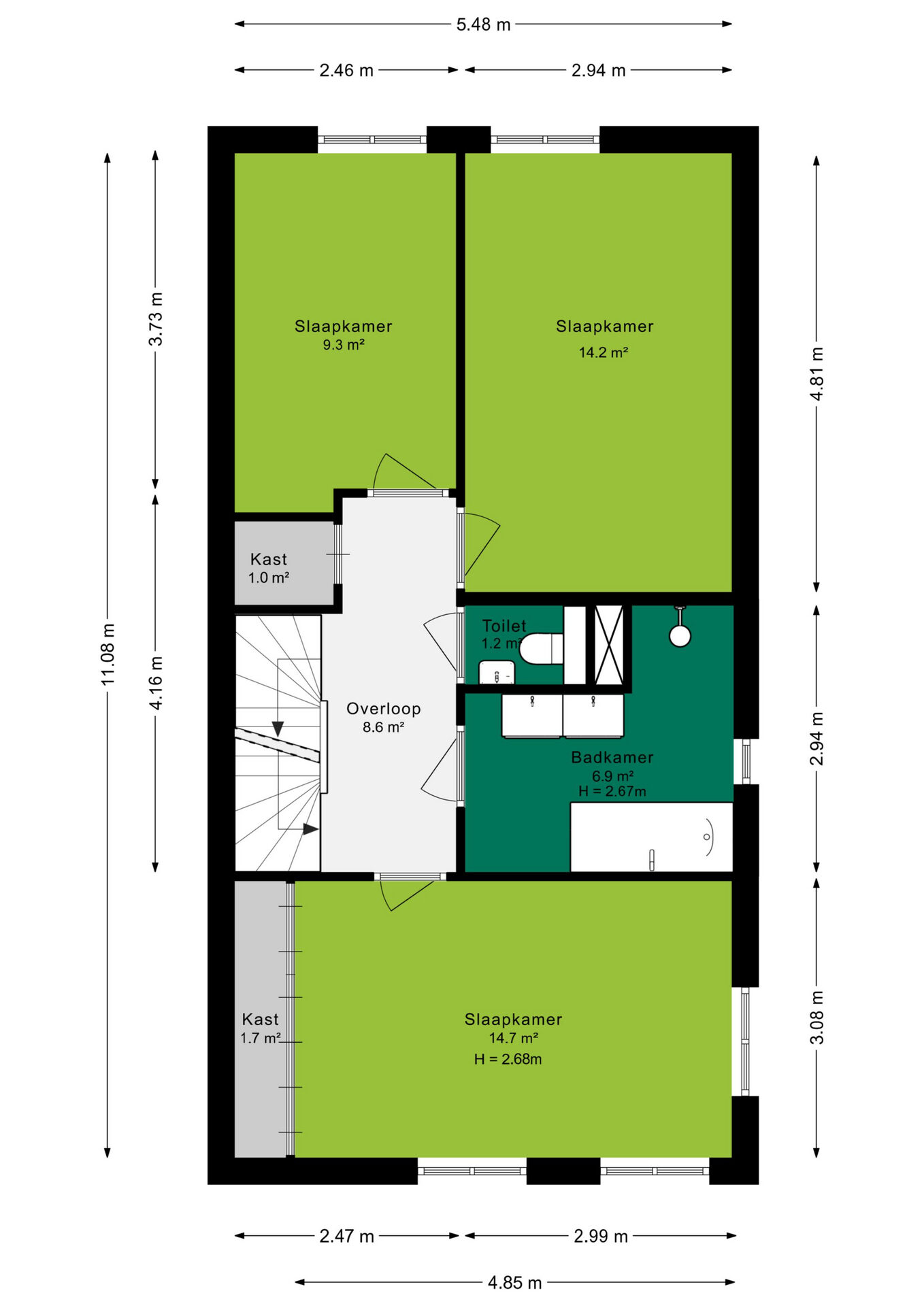
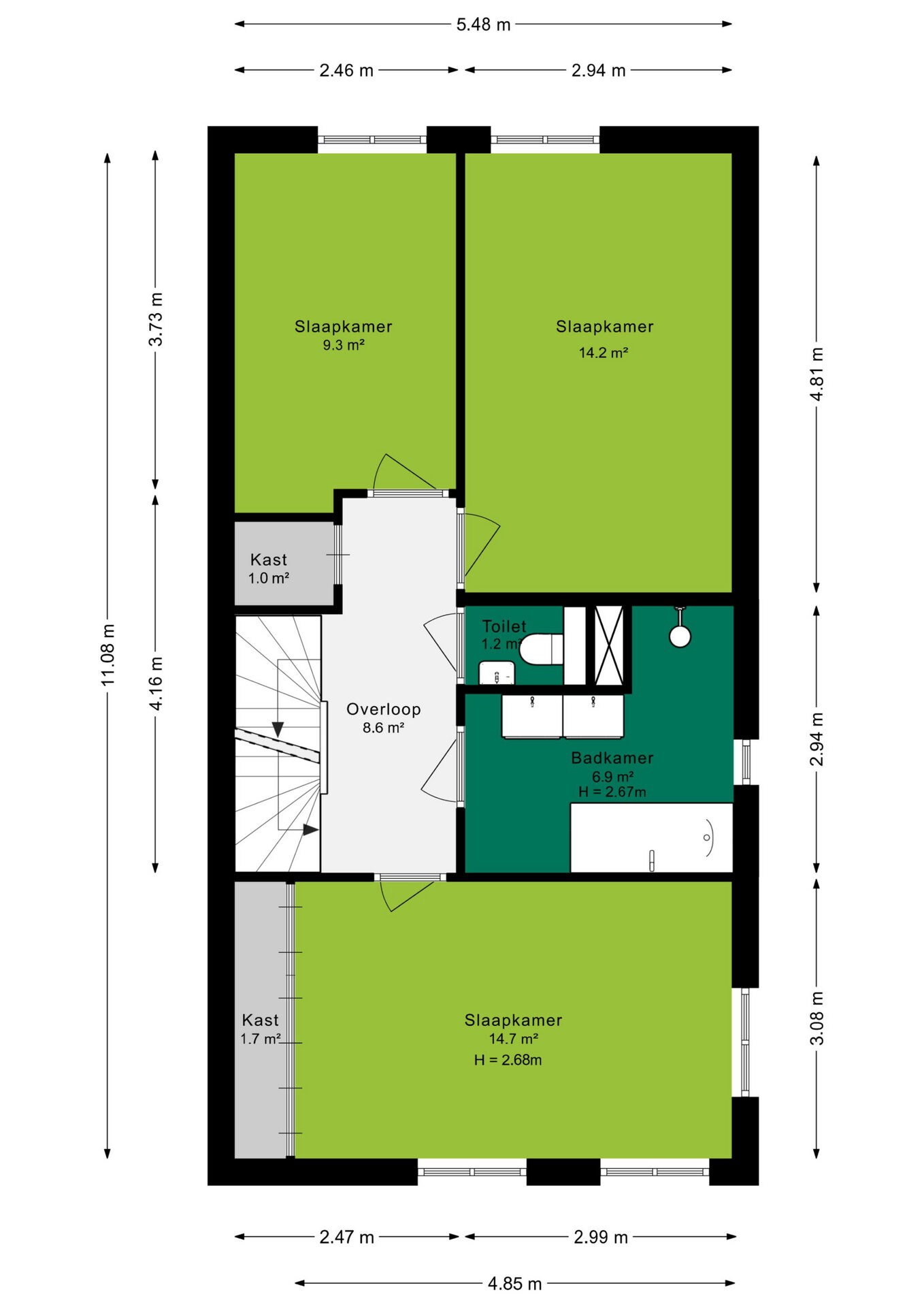
Eerste verdieping
Op de eerste verdieping kom je via de overloop bij drie royale slaapkamers en de badkamer. De slaapkamer aan de voorzijde biedt extra gemak met een praktische ingebouwde kast, ideaal voor al je spullen. De badkamer is van alle gemakken voorzien met een dubbele wastafel, een inloopdouche én een heerlijk ligbad. Extra prettig: het toilet is gescheiden van de badkamer.

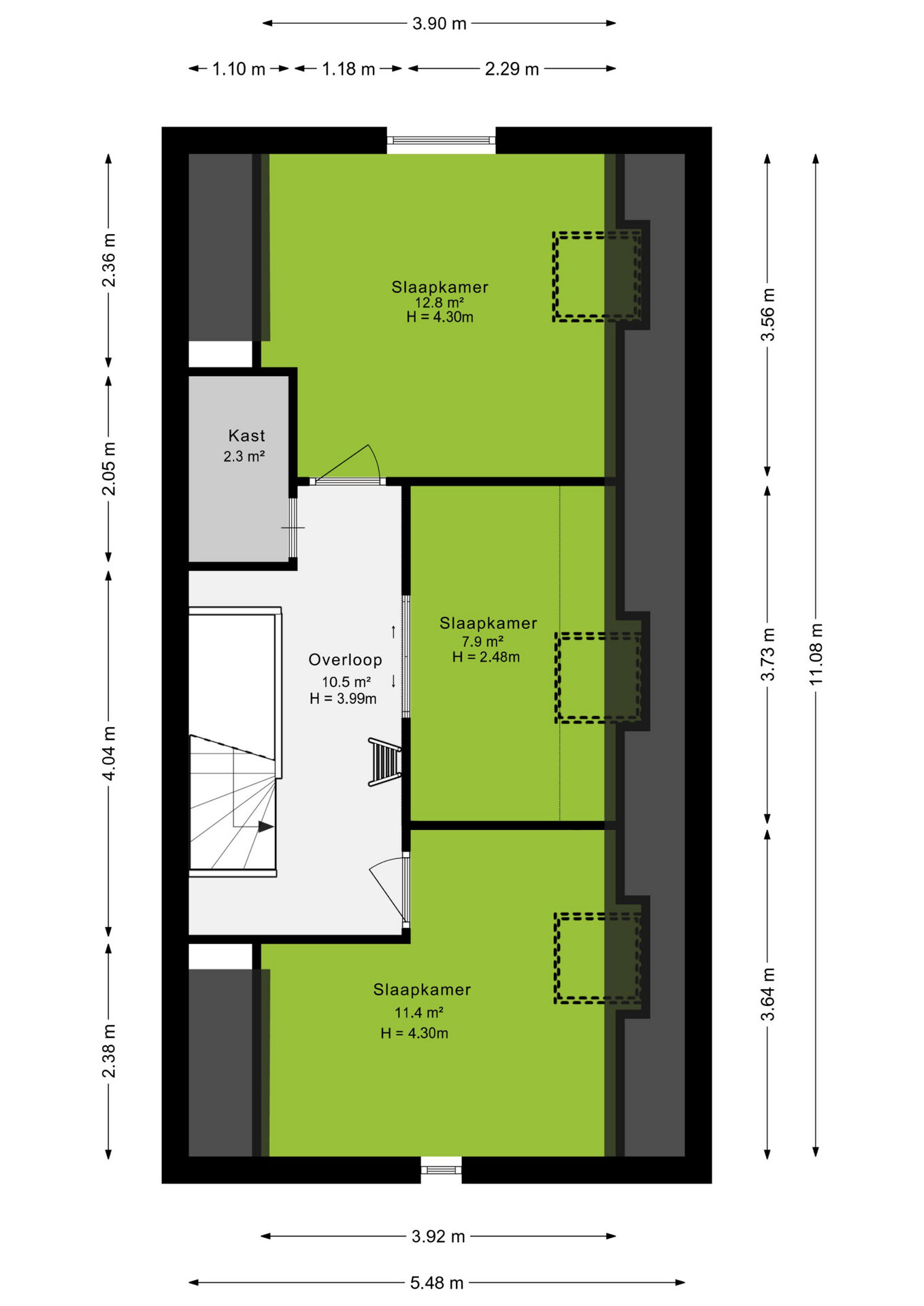
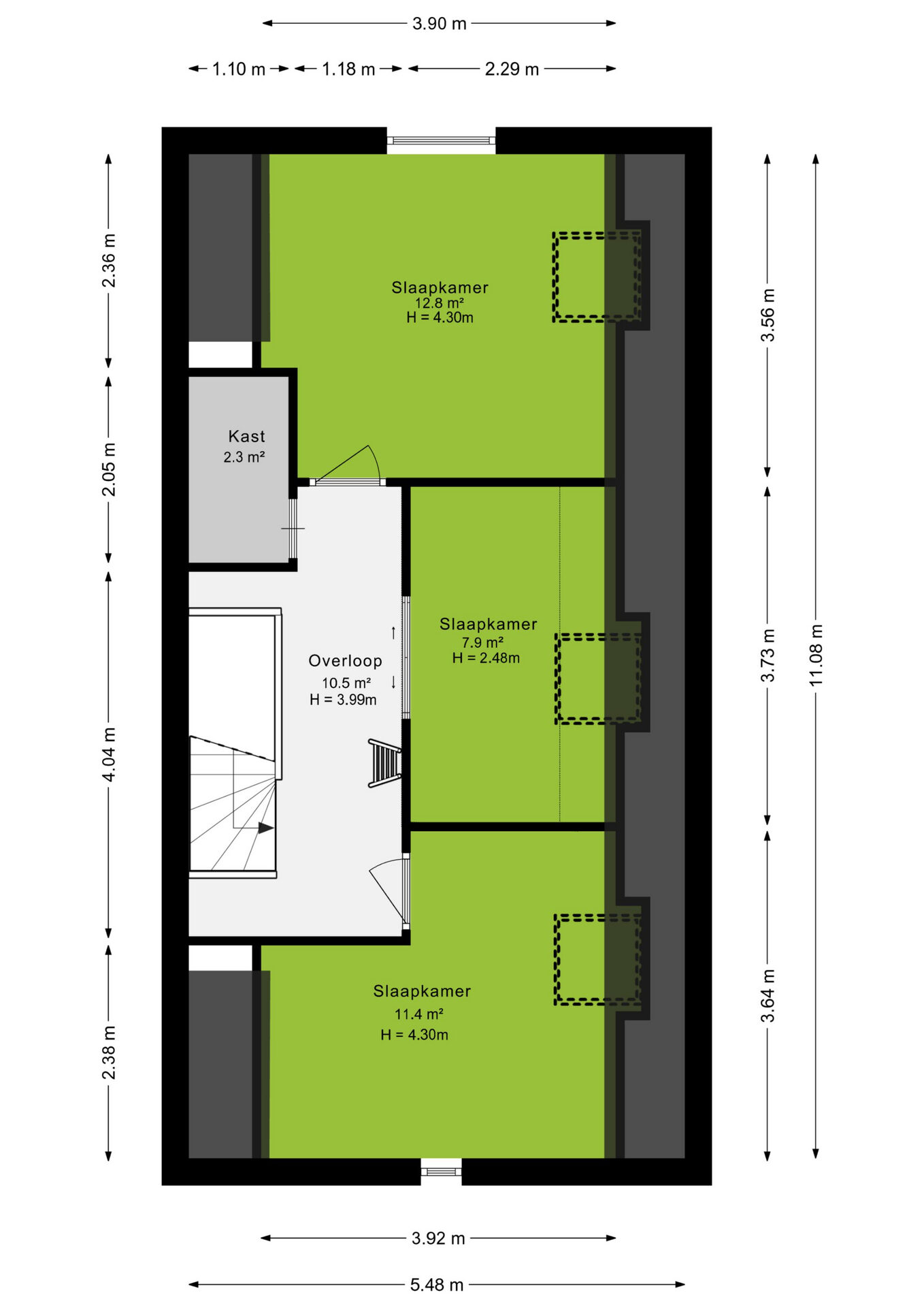
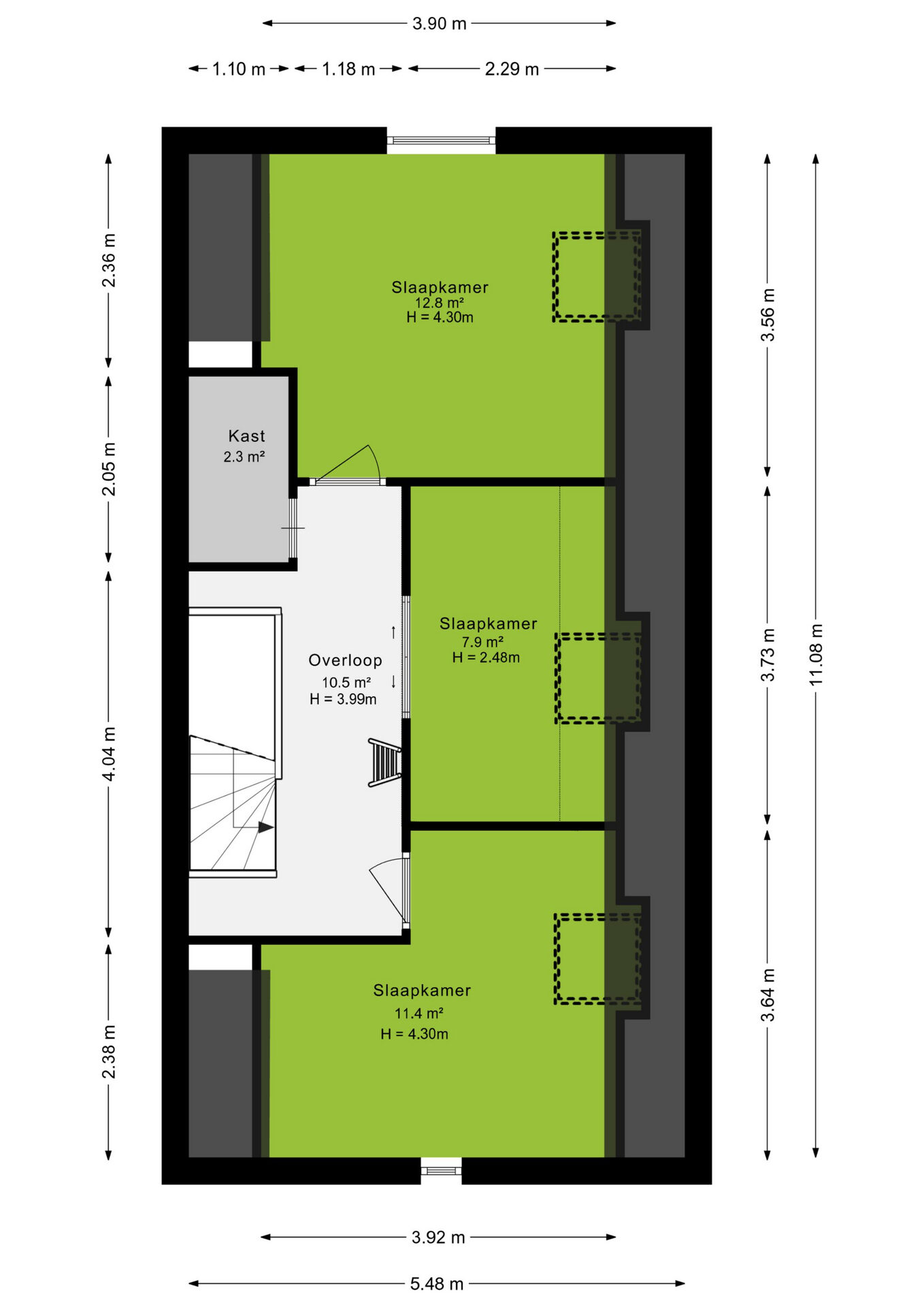
Tweede verdieping
Op de tweede verdieping vind je maar liefst drie extra slaapkamers. Deze riante verdieping biedt een heerlijk gevoel van ruimte door de hoge plafonds en de overvloedige lichtinval. Alsof dat nog niet genoeg is, is er ook nog een vliering aanwezig. Perfect voor extra opbergruimte of om spullen uit het zicht te houden.

Tuin
De tuin met veel privacy, gelegen op het westen, is verzorgd aangelegd en biedt een fijne combinatie van groen en gezelligheid. In de achtertuin vind je een veranda, waar je kunt genieten van lange zomeravonden. Handig is ook de achterom, waardoor je gemakkelijk toegang hebt tot de tuin. Hier vind je rust, natuur én comfort in één!
+ toon meer
deze woning is Verkocht

Van den Boschlaan 45 Ede

Van den Boschlaan 45

6717 ZD, Ede
Ditters open huis: 5 april 2025 10:00 - 12:00 uur
Landelijke Open Huizen Route NVM: 5 april 2025 11:00 uur - 15:00 uur
Vanaf€ 875.000 k.k.

Schakel een aankoopmakelaar in.

Snel handelen helpt je jouw droomhuis te bemachtigen. Zo vergroot je de kans dat je er op tijd bij bent.
Ede
verkocht

Of maak vrijblijvend een zoekprofiel aan.

Vergelijkbare woningen

Hypotheken

Onafhankelijk hypotheekadvies

  • Ligt jouw droomhuis binnen handbereik?
  • Wil je jouw huidige hypotheek verhogen?
  • Is er hypotheekruimte voor verduurzaming?

Blijf op de hoogte

Ontvang als eerste updates over nieuw aanbod en mis geen enkele kans om jouw droomwoning te vinden.

Gratis waardebepaling of verkoopgesprek

Met de vrijblijvende waardecheck weet je snel waar je aan toe bent. Onze makelaars kijken naar de lokale markt en vergelijkbare woningen in jouw buurt om een goede schatting te geven.

Realiseer al jouw woondromen met Ditters

Wij zijn een team van gedreven vastgoedexperts met een passie voor het maken van verbindingen – tussen kopers en verkopers, huurders en verhuurders. Met een frisse kijk op de makelaardij combineren we expertise met creativiteit. Onze makelaars luisteren écht en nemen de tijd om jouw wensen te begrijpen.


Bij Ditters sta je er niet alleen voor. We denken met je mee, begeleiden je in elke stap en zijn altijd bereikbaar voor vragen. Neem gerust contact met ons op – we helpen je graag verder!