Prima onderhouden en super energiezuinige (label A+) tussenwoning, perfect voor jonge gezinnen! Deze gezellige woning ligt aan een groen en levendig hofje op het karakteristieke Enka-terrein. Je hebt hier 3 slaapkamers, vloerverwarming op de begane grond en een ruime open zolderverdieping waar je nog extra kamers kunt maken als dat nodig is.
De woonwijk ENKA is echt prachtig geworden! Sinds 2010 is er hard gewerkt aan de bouw van de eerste woningen op het oude Enka terrein, een plek met veel historie. Hier vind je allerlei toffe dingen: een basisschool in het oude kantinegebouw, een restaurant in het voormalige EHBO-gebouw, en zelfs een experience center voor fietsers. En alsof dat nog niet genoeg is, heb je de bossen en heide praktisch als je achtertuin!
De woning ligt in de jonge en populaire wijk ENKA, op een rustige en unieke plek met genoeg parkeerruimte. Binnen 10 minuten fiets je naar de Ginkelse Heide en je bent op loopafstand van het Horabos, de Sysselt en het intercitystation Ede-Wageningen. Ideaal voor buitenmensen, hardlopers en mountainbikers! Ook zijn er goede verbindingen naar de snelwegen A12 en A30.
Wonen aan de Visserstraat 39 betekent genieten van de rust en de natuur, met het bos op loopafstand. Kom gerust een keer kijken!
De pluspunten van de woning op een rij:
+ Uitstekend geïsoleerd;
+ Energielabel A+:
+ 4 zonnepanelen;
+ Vloerverwarming op de begane grond;
+ Open zolderruimte op de 2e verdieping;
+ In een gezellig, groen hofje met speelterrein voor kinderen gelegen;
+ Keurige moderne lichte inbouwkeuken en verzorgde sanitaire voorzieningen.
Indeling
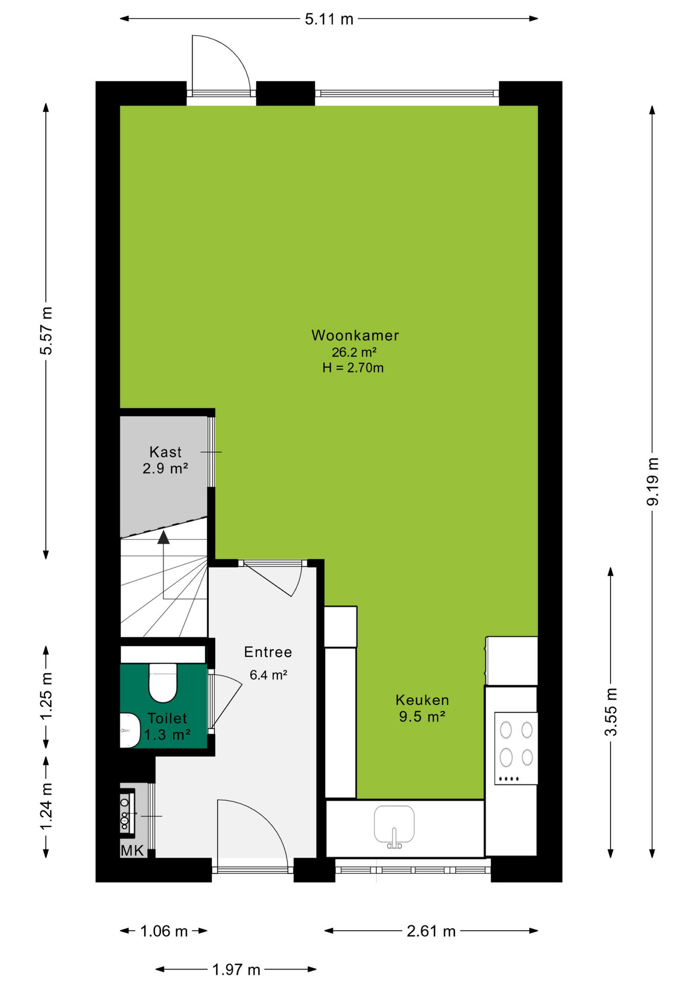
Begane grond:
Via de entree kom je bij de hal met moderne meterkast, toiletruimte voorzien van zwevend toilet met fonteintje en trapopgang naar de eerste verdieping.
De heerlijke tuingerichte woonkamer beschikt over een kunststof pu-gietvloer en middels een deur is achtertuin gelegen op het noorden te bereiken. De gehele begane grondvloer is voorzien van comfortabele vloerverwarming. De trapkast in de woonkamer biedt extra opbergruimte.
Centraal tussen de woonkamer en keuken bevindt zich het eetgedeelte. Hier is meer dan voldoende ruimte voor een grote eettafel met stoelen. Een fijne plek om met familie en/of vrienden te genieten van een hapje, drankje en spelletje!
Aan de voorzijde van de woning is de keuken gesitueerd. De keuken is opgesteld in een L-vorm en beschikt over veel opbergruimte en diverse inbouwapparatuur, te weten:
+ Vaatwasser;
+ Koelkast;
+ Combi-oven/magnetron;
+ Inductie kookplaat.
Eerste verdieping:
Door middel van de vaste trap kom je bij de royale overloop, hier zijn de 3 ruime slaapkamers en badkamer te bereiken. De ouderslaapkamer is aan de achterzijde van de woning gesitueerd. De overloop en de slaapkamers zijn eveneens voorzien van een kunststof pu-gietvloer
De badkamer is ingedeeld met een inloopdouche voorzien van een thermostaatkraan, 2e zwevend toilet en wastafelmeubel. Ventilatie vindt plaats middels de mechanische ventilatie en/of het raam. De wanden zijn voorzien van strak tijdloos licht tegelwerk in combinatie met een antraciet-kleurige vloertegel.
Tweede verdieping:
Via een vaste trap is de ruime zolder bereikbaar. Deze zolder is helemaal open waardoor er gemakkelijk twee slaapkamers gerealiseerd kunnen worden. Momenteel is deze ruimte ingerichte als woon- werkruimte met een aanrechtblok met spoelbak en stromende water.
Voor het natuurlijke licht zijn twee dakramen geplaatst.
Tevens bevindt zich hier de C.V.-ketel opstelplaats en mechanische ventilatie. Achter de knieschotten is veel bergruimte.
Tuin:
De achtertuin ligt op het noorden en is voorzien van sierstraatwerk, goede erfafscheidingen, diverse planten borders en een pergola.
Een heerlijke plek om tot rust te komen na een lange werkdag.
De vrijstaande houten tuinberging is voorzien van licht en elektra. Via een poort is de achterom bereikbaar.
Afmetingen:
Begane grond:
Woonkamer 26.2 m²
Keuken 9.5 m²
1e verdieping:
Slaapkamer 1 12.4 m²
Slaapkamer 2 10.4 m²
Slaapkamer 3 5.2 m²
Badkamer 5.0 m²
2e verdieping:
Open zolder 26.1 m²
Berging:
Externe berging 5.80 m²
Woonoppervlakte 115 m²
Perceeloppervlakte 119 m²
Bijzonderheden:
Verwarming: CV installatie Intergas (2015)
Warmwater: CV installatie Intergas (2015)
Isolatie: Volledig geïsoleerd
Bouwjaar: 2015
Tuinligging: Noord
Aanvaarding: In overleg
Kenmerken:
+ Keurig onderhouden tussenwoning in de populaire wijk ENKA;
+ Begane grond voorzien van vloerverwarming;
+ Gelegen nabij Intercitystation Ede-Wageningen;
+ Voldoende parkeergelegenheid in de nabije omgeving;
+ Groenvoorziening en speelgelegenheid voor de woning;
+ Schilderij ophangsysteem.
Koopovereenkomst:
Bij de verkoop zal er een standaard NVM koopovereenkomst worden gehanteerd.
Koop je de woning zonder voorbehoud van financiering? Dan zullen wij een termijn hanteren van 14 dagen na het opstellen van de koopovereenkomst voor het storten van de bankgarantie/waarborgsom.
Deze informatie is door ons met de nodige zorgvuldigheid samengesteld. Onzerzijds wordt echter geen enkele aansprakelijkheid aanvaard voor enige onvolledigheid, onjuistheid of anderszins, dan wel de gevolgen daarvan. Alle opgegeven maten en oppervlakten zijn indicatief.