Aanbod

Verken ons aanbod. Van huur tot koop. En van nieuwbouw tot bouwkavel. Samen vinden we de plek waar jij je helemaal thuis voelt.

Diensten

Onze experts begeleiden je van A tot Z. Of je nu je huis wilt verkopen, op zoek bent naar je droomhuis of advies nodig hebt over hypotheken of verzekeringen. Met jarenlange ervaring en persoonlijke service zorgen we ervoor dat jij met een gerust hart de juiste keuzes maakt.

Over Ditters

Wij zijn Ditters. Verhalenvertellers. De schakel tussen droom en woning. We luisteren naar jouw wensen en maken op basis daarvan een plan.

Omschrijving

Te Koop: Ruim en hoogwaardig afgewerkt woonhuis met 5 slaapkamers, 2 dakkapellen, een recent vernieuwde badkamer en een gezellig veranda!

Gelegen op een leuke locatie midden in de dorpskern van Elst staat deze eengezinswoning met stenen berging. Op korte afstand zijn de uiterwaarden, bossen, scholen en winkelvoorzieningen bereikbaar. De woning is ruim van opzet en heeft een tuingerichte woonkamer met en-suite deuren naar de woonkeuken en openslaande tuindeuren naar de verzorgd aangelegde achtertuin. Op de eerste verdieping bevinden zich drie slaapkamers en een recent vernieuwde badkamer, op de tweede verdieping zijn nog eens twee slaapkamers te vinden. De woning heeft aan de voorzijde een afgesloten patio met overkapping en stenen berging. Aan de achterzijde is verzorgd tuin met een gezellig veranda!

Belangrijke kenmerken:
- Energielabel B – geldig tot 21-03-2035
- Vijf slaapkamers
- Twee dakkapellen
- Gezellige veranda
- Recent vernieuwde badkamer (2021)

Indeling:
Begane grond:
De begane grond is door de huidige eigenaren flink verbouwd. Niet alleen cosmetisch, maar ook bouwkundig. Waar deze woning normaal gesproken een meer gesloten indeling hebben, denk hierbij aan een gesloten keuken, beschikt deze woning over open indeling. Een entree met garderoberuimte, meterkast en de toiletruimte met zwevend toilet. Een toegangsdeur brengt je naar de woonkeuken welke is gelegen aan de voorzijde van de woning. Een heerlijk ruime keuken in L-opstelling met lichte fronten en een stenen aanrechtblad. De keuken is voorzien van het benodigde inbouwapparatuur zoals een oven, inductiekookplaat met ingebouwde afzuigkap, vaatwasser en een koelkast. In de woon-/leefkeuken is meer dan voldoende ruimte voor een grote eettafel. Vanuit de keuken is via een houten trap de 1e verdieping te bereiken.

Tussen de woon-/leefkeuken en de woonkamer bevinden zich de en-suite schuifdeuren met inbouwkasten. Hierdoor beschik je naast een woon-/leefkeuken ook over een afsluitbare woonkamer. Eenmaal voorbij de en-suite deuren betreed je de woonkamer. Een heerlijke en ruime woonkamer met prettig uitzicht op de verzorgde achtertuin. Via de openslaande tuindeuren bereik je de verzorgde achtertuin.

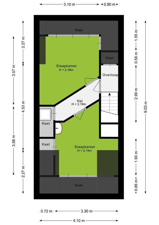
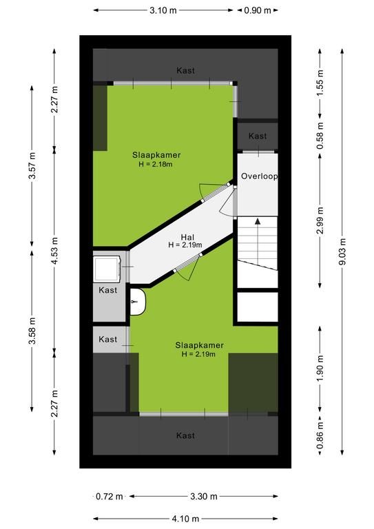
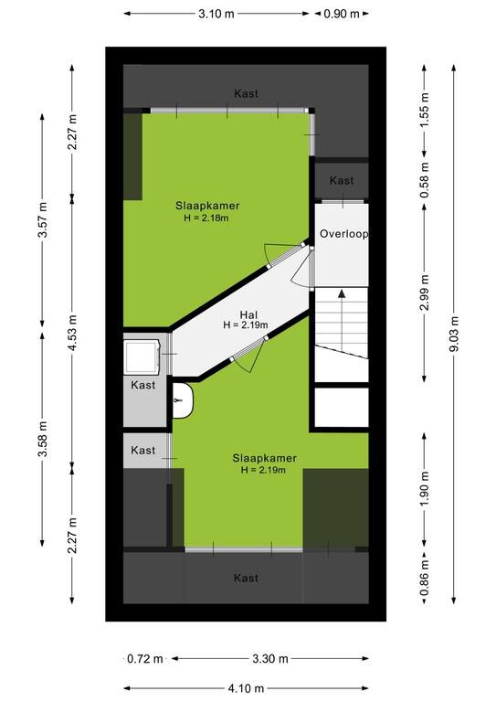
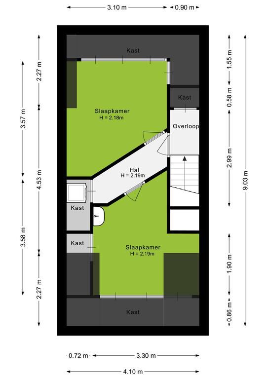
1e verdieping:
Via de vaste trap kom je bij de overloop met trapopgang naar de tweede verdieping, drie slaapkamers en de badkamer. Gelegen aan de voorzijde van de woning bevindt zich de ouderslaapkamer. Bijna 14 m² groot en voorzien van een grote schuifkastenwand. De twee andere slaapkamers zijn gelegen aan de achterzijde van de woning en zijn ruim 9 m² en ruim 6 m². Van de slaapkamer van ruim 9 m² kun je via een loopdeur naar het balkon.

Centraal tussen de slaapkamers bevindt zich een eyecatcher van het huis: de badkamer! Een in BOUWJAAR vernieuwde badkamer en uitgevoerd met grijze betonlook wandtegels en een houtlook vloertegel. Qua uitvoering is er gekozen voor een 2e toilet, wastafelmeubel met dubbele wastafel, mechanische ventilatie en een inloopdouche.

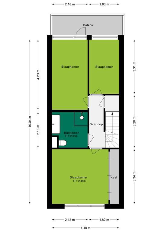
2e verdieping:
Overloop met vaste kasten waarvan 1 met de Cv-ketel. Verder is de woning aan de voor- en achterkant voorzien van een dakkapel waardoor je ook op deze verdieping kan beschikken over 2 slaapkamers. Hierdoor beschikt deze fraaie woning over maar liefst 5 slaapkamers.

Buiten:
De woning heeft een afgesloten deur naar een patio. Deze is gedeeltelijk overkapt met inbouwspots en geeft toegang naar de stenen berging. De tuin aan de achterzijde is verzorgd aangelegd, heeft een heerlijk terras en een gezellige veranda! Laat de zomer maar beginnen en nodig je vrienden en/of familie snel uit voor een lekkere BBQ.

Kenmerken:
- Energielabel B
- Verwarming en warm water middels een Cv-ketel (2011);
- Tuinligging: zuidoost;
- Vijf slaapkamers;
- Recent gemoderniseerde badkamer (2021);
- Keukenapparatuur vernieuwd in 2017;
- Oplevering in overleg.

Koopovereenkomst:
Bij de verkoop zal er een standaard NVM koopovereenkomst worden gehanteerd. Bij woningen welke ouder zijn dan 20 jaar, worden de volgende clausules opgenomen in de koopovereenkomst:
- Asbestclausule
- Ouderdomsclausule

Koopt u de woning zonder voorbehoud van financiering? Dan zullen wij een termijn hanteren van 14 dagen na het opstellen van de koopovereenkomst voor het storten van de bankgarantie/waarborgsom.

Deze informatie is door ons met de nodige zorgvuldigheid samengesteld. Onzerzijds wordt echter geen enkele aansprakelijkheid aanvaard voor enige onvolledigheid, onjuistheid of anderszins, dan wel de gevolgen daarvan. Alle opgegeven maten en oppervlakten zijn indicatief.
+ toon meer
deze woning is Verkocht

Nassaustraat 13 Elst Ut

Nassaustraat 13

3921 BE, Elst Ut
Ditters open huis: 5 april 2025 10:00 - 12:00 uur
Landelijke Open Huizen Route NVM: 5 april 2025 11:00 uur - 15:00 uur
Vanaf€ 415.000 k.k.

Schakel een aankoopmakelaar in.

Snel handelen helpt je jouw droomhuis te bemachtigen. Zo vergroot je de kans dat je er op tijd bij bent.
Elst Ut
verkocht

Of maak vrijblijvend een zoekprofiel aan.

Vergelijkbare woningen

Hypotheken

Onafhankelijk hypotheekadvies

  • Ligt jouw droomhuis binnen handbereik?
  • Wil je jouw huidige hypotheek verhogen?
  • Is er hypotheekruimte voor verduurzaming?

Blijf op de hoogte

Ontvang als eerste updates over nieuw aanbod en mis geen enkele kans om jouw droomwoning te vinden.

Gratis waardebepaling of verkoopgesprek

Met de vrijblijvende waardecheck weet je snel waar je aan toe bent. Onze makelaars kijken naar de lokale markt en vergelijkbare woningen in jouw buurt om een goede schatting te geven.

Realiseer al jouw woondromen met Ditters

Wij zijn een team van gedreven vastgoedexperts met een passie voor het maken van verbindingen – tussen kopers en verkopers, huurders en verhuurders. Met een frisse kijk op de makelaardij combineren we expertise met creativiteit. Onze makelaars luisteren écht en nemen de tijd om jouw wensen te begrijpen.


Bij Ditters sta je er niet alleen voor. We denken met je mee, begeleiden je in elke stap en zijn altijd bereikbaar voor vragen. Neem gerust contact met ons op – we helpen je graag verder!