Omschrijving

Ben je op zoek naar een prachtige plek om lekker uit te rusten? Dan is deze recreatiewoning aan de voet van de Amerongse berg de ideale plek.

Dit goed onderhoud recreatiechalet is gelegen op Vakantiepark de Ossenberg, een mooi vakantiepark voor zowel jong als oud. Het vakantiepark heeft meerder voorzieningen zoals een buitenzwembad, café en diverse speeltuinen. Het park is gelegen aan de rand van de Amerongse berg. Het natuurgebied de Amerongse berg is de perfecte plek voor een wandeling waar rust en de natuur samenkomen, met meer dan genoeg wandelpaden door een mooie omgeving is de Amerongse berg een populaire locatie voor een ontspannende wandeling.

Vooraan het park is een bushalte te vinden vanaf waar je binnen een kwartier bij station Veenendaal centrum ben. Vanaf dit station ben je met 30 minuten reizen in het centrum van Utrecht. Tevens is vanaf de bushalte voor het vakantiepark binnen een half uur station Veenendaal-De Klomp te bereiken, vanaf station Veenendaal-De Klomp reis je gemakkelijk verder naar steden als Nijmegen, Utrecht, Arnhem en Amsterdam. Ook met de auto is het vakantiepark goed bereikbaar, via de Bergweg kom je binnen 5 minuten bij de N225 en de A12 is bereikbaar in ongeveer 10 minuten.

Kenmerken:
+ Ideaal gelegen in het Midden van het land;
+ Gunstig gelegen ten opzichte van diverse uitvalswegen;
+ Gelegen op vakantiepark De Ossenberg;
+ Veel speel faciliteiten aanwezig;
+ Midden in de natuur zowel bos- al coulissen landschap;
+ Buitenzwembad op het park aanwezig;
+ Recreatiewoning staat op eigen grond;

Omschrijving
Op een rustige plek op het vakantiepark De Ossenberg gelegen recreatiechalet met fietsenberging en op eigen grond, is plaatselijk bekend in het park als Reiger nummer 9.
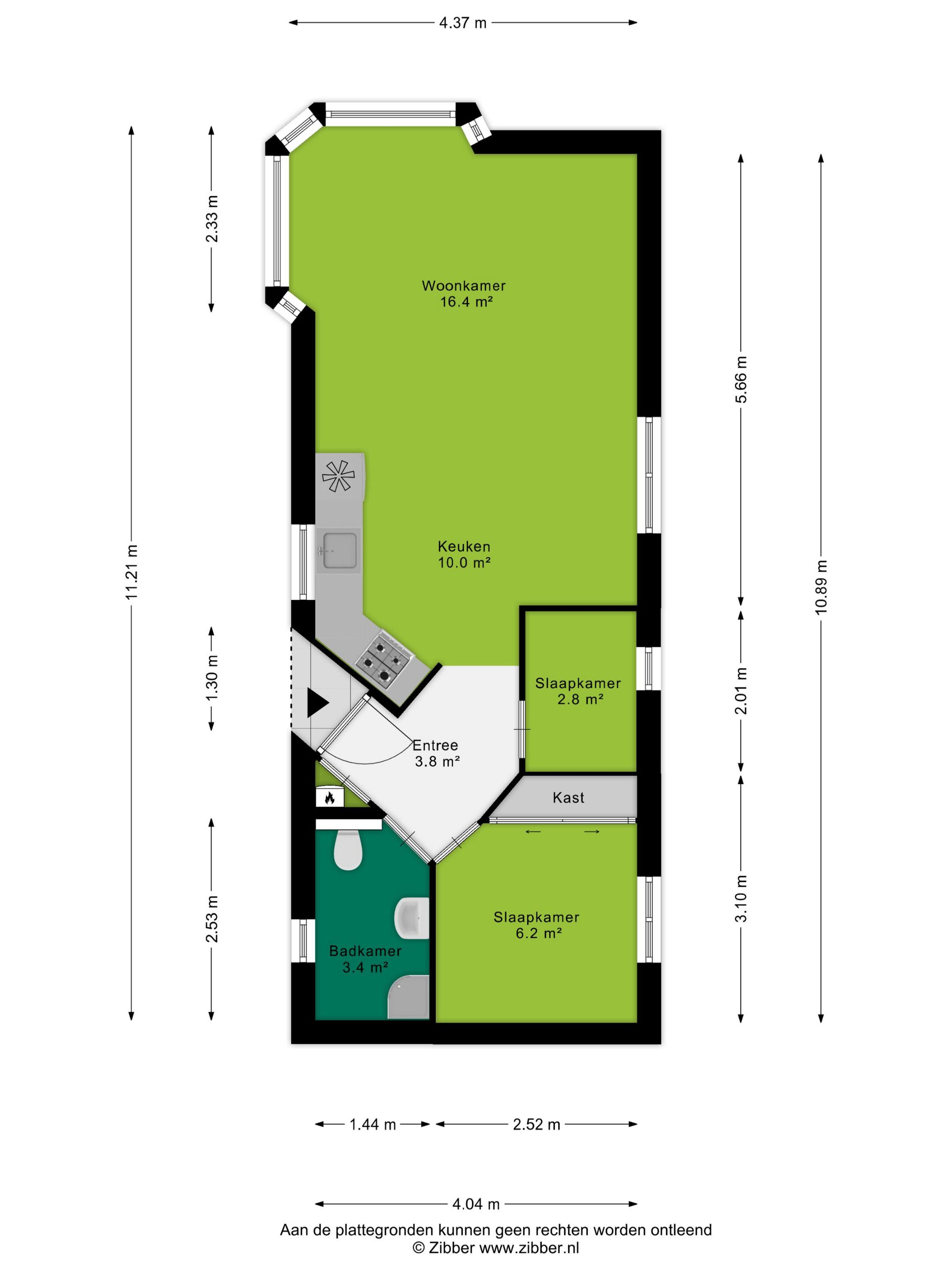
Entree/hal met toegang tot de woonkamer met open keuken, 2 slaapkamers en de badkamer met toilet, douche en wastafel. De grootste slaapkamer is voorzien van een vaste kastenwand.
Het chalet aangesloten op het elektriciteit netwerk en is voorzien van gas er zijn voor beide een eigen meter aanwezig, de afrekening geschiedt door het parkbeheer.

Eigen gebruik en/of verhuur:
Verhuur van de recreatiewoning is toegestaan.

Ligging Vakantiepark de Ossenberg:
Geniet ‘op hoogte’ van de hoogteverschillen van de Amerongse berg. De Amerongse berg is onderdeel van de Utrechtse heuvelrug en is met een hoogte van 69,2 meter boven NAP het hoogste punt van de provincie Utrecht. Onderaan de Amerongse berg is het mooie kasteel Amerongen gelegen. Op steenworp afstand van het kasteel begint de Lekdijk, een mooie weg om over te fietsen langs de Nederrijn. Naast het kasteel kent Amerongen nog vele oude panden en straatjes die het dorp een karakteristiek uiterlijk geven. Amerongen kent voldoende voorzieningen als een supermarkt en meerdere restaurants, ideaal aangezien Amerongen op slechts 15 minuten fietsafstand van het Vakantiepark ligt.
Bij Vakantiepark de Ossenberg zijn diverse voorzieningen: zwembad , diverse speeltuinen, restaurant, snackbar en café.

Bijzonderheden:
+ Perceel oppervlakte: 267 m²
+ Woonoppervlakte: 45 m²
+ Aanvaarding in overleg

Koopovereenkomst:
Bij de verkoop zal er een standaard NVM koopovereenkomst worden gehanteerd. Bij woningen welke ouder zijn dan 20 jaar, worden de volgende clausules opgenomen in de koopovereenkomst:
- Asbestclausule;
- Ouderdomsclausule.

Koopt u de woning zonder voorbehoud van financiering? Dan zullen wij een termijn hanteren van 14 dagen na het opstellen van de koopovereenkomst voor het storten van de bankgarantie/waarborgsom.

Deze informatie is door ons met de nodige zorgvuldigheid samengesteld. Onzerzijds wordt echter geen enkele aansprakelijkheid aanvaard voor enige onvolledigheid, onjuistheid of anderszins, dan wel de gevolgen daarvan. Alle opgegeven maten en oppervlakten zijn indicatief.
+ toon meer
deze woning is Verkocht

Dwarsweg 5 R 212 Overberg

Dwarsweg 5 R 212

3959 AC, Overberg
Ditters open huis: 5 april 2025 10:00 - 12:00 uur
Landelijke Open Huizen Route NVM: 5 april 2025 11:00 uur - 15:00 uur
Vanaf€ 125.000 k.k.

Schakel een aankoopmakelaar in.

Snel handelen helpt je jouw droomhuis te bemachtigen. Zo vergroot je de kans dat je er op tijd bij bent.
Overberg
verkocht

Of maak vrijblijvend een zoekprofiel aan.

Vergelijkbare woningen

Hypotheken

Onafhankelijk hypotheekadvies

  • Ligt jouw droomhuis binnen handbereik?
  • Wil je jouw huidige hypotheek verhogen?
  • Is er hypotheekruimte voor verduurzaming?

Blijf op de hoogte

Ontvang als eerste updates over nieuw aanbod en mis geen enkele kans om jouw droomwoning te vinden.

Gratis waardebepaling of verkoopgesprek

Met de vrijblijvende waardecheck weet je snel waar je aan toe bent. Onze makelaars kijken naar de lokale markt en vergelijkbare woningen in jouw buurt om een goede schatting te geven.

Realiseer al jouw woondromen met Ditters

Wij zijn een team van gedreven vastgoedexperts met een passie voor het maken van verbindingen – tussen kopers en verkopers, huurders en verhuurders. Met een frisse kijk op de makelaardij combineren we expertise met creativiteit. Onze makelaars luisteren écht en nemen de tijd om jouw wensen te begrijpen.


Bij Ditters sta je er niet alleen voor. We denken met je mee, begeleiden je in elke stap en zijn altijd bereikbaar voor vragen. Neem gerust contact met ons op – we helpen je graag verder!