Omschrijving

Gelegen in de geliefde Utrechtse Bloemenbuurt staat deze leuke en instapklare woning uit de jaren '10 van de vorige eeuw.
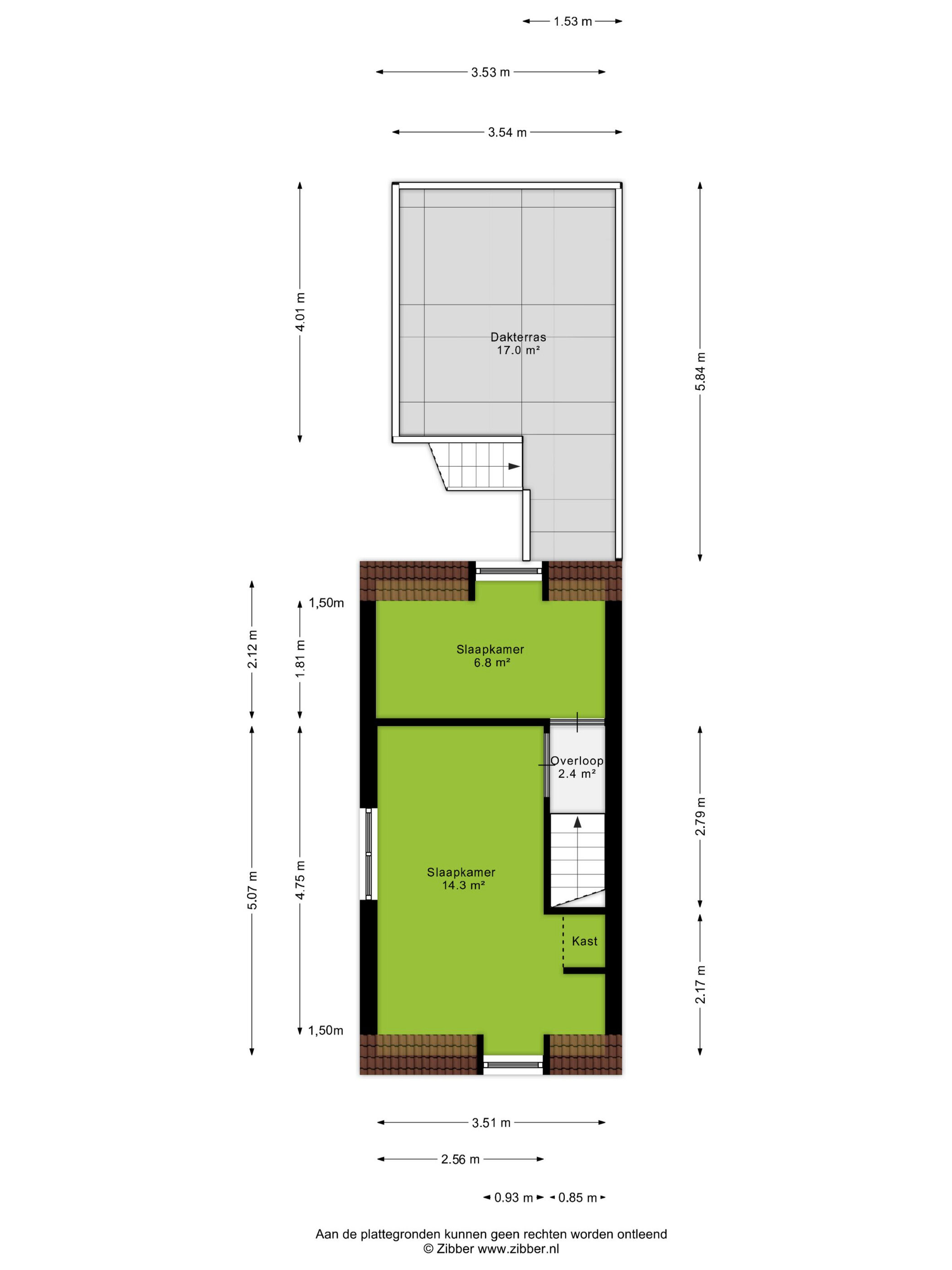
De woning is keurig afgewerkt en heeft 2 slaapkamers en een royaal dakterras. In de directe omgeving vind je alles wat je nodig hebt: supermarkten, diverse winkels, koffietentjes en fijne horeca! Op korte afstand ligt het mooie Julianapark, waar je heerlijk kunt ontspannen. Bovendien ben je binnen enkele fietsminuten in het gezellige centrum van Utrecht.

De woning is uitstekend bereikbaar, met verschillende bushaltes en station Utrecht Zuilen op loopafstand. Vanaf station Utrecht Zuilen ben je binnen 5 minuten op station Utrecht Centraal. En met de auto ben je in een mum van tijd op de A2.

De nabijgelegen Amsterdamsestraatweg zal tussen de Weerdsingel en de Marnixlaan volledig worden voorzien van een nieuwe inrichting. De straat komt in het teken te staan van recreëren, groen en ruimte voor fietsers en voetgangers. Meer informatie hierover is te vinden op de website van de gemeente Utrecht; Amsterdamsestraatweg. In de fotoreportage is een afbeelding toegevoegd met een impressie.

Hieronder tref je de pluspunten van de woning op een rij:
+ Centrale ligging dicht bij het centrum, openbaar vervoer en uitvalswegen;
+ Woning met 2 slaapkamers en royaal dakterras;
+ Extra (werk)kamer op de begane grond;
+ 4 zonnepanelen (2023);
+ Nieuwe dakbedekking van de hoofdwoning (2023);
+ Strak afgewerkte badkamer en keuken;
+ Lichte woonkamer;
+ Grote master bedroom;
+ Energielabel C;
+ Er zijn mogelijkheden om de woning te vergroten door middel van een dakopbouw.

Indeling
Begane grond
Via de entree/hal met ruimte voor het ophangen van jassen bereik je de woonkamer. In de woonkamer kun je via de vaste trap naar de eerste verdieping. Daarnaast bereik je via de woonkamer ook de keuken vanaf waar de werkkamer en badkamer beschikbaar zijn. De gehele begane grond is mooi afgewerkt en de woonkamer geniet veel lichtinval door het grote raam aan de voorzijde van de woning.
De badkamer is mooi afgewerkt en voorzien van:
+ Ligbad met douche mogelijkheid;
+ Toilet;
+ Wastafel;
+ Ruimte voor wasmachine en droger.

De keuken heeft een koelkast/vriezer, oven en 4 pits gasfornuis met afzuigkap. Naast de keuken is een zeer fijne werkruimte gerealiseerd. Ideaal voor de thuiswerker. Het kozijn van deze werkkamer is vervangen voor kunststof en dubbele beglazing. Vanuit de keuken is er toegang tot de buitenruimte.

Eerste verdieping
Op de eerste verdieping zijn via de overloop de 2 slaapkamers bereikbaar. Aan de voorzijde van de woning is de mooie ruime master bedroom gelegen. Door zijn ligging op het zuiden en ramen aan de zijkant van de woning geniet de slaapkamer een prettige lichtinval en is het 's ochtends heerlijk wakker worden. Aan de achterzijde van de woning is de tweede slaapkamer gelegen. Deze slaapkamer kan daarnaast ook gebruikt worden als hobbykamer, inloopkast of werkplek.

Buiten
Aan de achterzijde van de woning is een mooi dakterras aanwezig waar je de hele dag van de zon kunt genieten. Met een oppervlakte van maar liefst 17 m² is hier voldoende ruimte voor een lekkere loungeset en planten. Het dakterras is te bereiken via de trap aan de zijkant die uitkomt op de begane grond. Vanaf de keuken is hier toegang toe.

Afmetingen
Woonoppervlakte 68 m²
Perceeloppervlakte 57 m²
Inhoud woning 239 m³

Bijzonderheden
Verwarming: CV ketel Remeha (2013);
Warm water: CV ketel Remeha (2013);
Isolatie: Gedeeltelijk geïsoleerd (deels voorzetwanden en dubbel glas);
Energielabel: C;
Bouwjaar: 1915;
Tuinligging: Noordoost;
Aanvaarding in overleg;

Koopovereenkomst:
Bij de verkoop zal er een standaard NVM koopovereenkomst worden gehanteerd. Bij woningen welke ouder zijn dan 20 jaar, worden de volgende clausules opgenomen in de koopovereenkomst:
- Asbestclausule;
- Ouderdomsclausule.

Koopt u de woning zonder voorbehoud van financiering? Dan zullen wij een termijn hanteren van 14 dagen na het opstellen van de koopovereenkomst voor het storten van de bankgarantie/waarborgsom.

Deze informatie is door ons met de nodige zorgvuldigheid samengesteld. Onzerzijds wordt echter geen enkele aansprakelijkheid aanvaard voor enige onvolledigheid, onjuistheid of anderszins, dan wel de gevolgen daarvan. Alle opgegeven maten en oppervlakten zijn indicatief.
+ toon meer
deze woning is Verkocht

Seringstraat 43 Utrecht

Seringstraat 43

3551 TJ, Utrecht
Ditters open huis: 5 april 2025 10:00 - 12:00 uur
Landelijke Open Huizen Route NVM: 5 april 2025 11:00 uur - 15:00 uur
Vanaf€ 445.000 k.k.

Schakel een aankoopmakelaar in.

Snel handelen helpt je jouw droomhuis te bemachtigen. Zo vergroot je de kans dat je er op tijd bij bent.
Utrecht
verkocht

Of maak vrijblijvend een zoekprofiel aan.

Vergelijkbare woningen

Hypotheken

Onafhankelijk hypotheekadvies

  • Ligt jouw droomhuis binnen handbereik?
  • Wil je jouw huidige hypotheek verhogen?
  • Is er hypotheekruimte voor verduurzaming?

Blijf op de hoogte

Ontvang als eerste updates over nieuw aanbod en mis geen enkele kans om jouw droomwoning te vinden.

Gratis waardebepaling of verkoopgesprek

Met de vrijblijvende waardecheck weet je snel waar je aan toe bent. Onze makelaars kijken naar de lokale markt en vergelijkbare woningen in jouw buurt om een goede schatting te geven.

Realiseer al jouw woondromen met Ditters

Wij zijn een team van gedreven vastgoedexperts met een passie voor het maken van verbindingen – tussen kopers en verkopers, huurders en verhuurders. Met een frisse kijk op de makelaardij combineren we expertise met creativiteit. Onze makelaars luisteren écht en nemen de tijd om jouw wensen te begrijpen.


Bij Ditters sta je er niet alleen voor. We denken met je mee, begeleiden je in elke stap en zijn altijd bereikbaar voor vragen. Neem gerust contact met ons op – we helpen je graag verder!