Omschrijving

Deze fijne middenwoning uit 2021 is helemaal klaar voor de toekomst én jouw spullen! Met 3 ruime slaapkamers, een tuin op het zuiden, energielabel van A++++, comfortabele vloerverwarming met koelfunctie en een moderne warmtepomp biedt deze instapklare woning alles wat je zoekt. Het enige wat jij nog hoeft te doen, is verhuizen en genieten van je nieuwe thuis!

Aan de noordkant van Veenendaal vind je deze fijne plek, gelegen in een rustige en moderne wijk. In slechts 5 minuten fietsen sta je in het bruisende centrum van Veenendaal met alle voorzieningen binnen bereik. Daarnaast ben je binnen 4 minuten bij de A12, ideaal om snel en eenvoudig op weg te gaan.

Alle kenmerken op een rij:
- Middenwoning met 3 slaapkamers;
- Gebouwd in 2021, dus nog lekker nieuw en helemaal van deze tijd;
- Tuin op het zuiden;
- Energiezuinig met energielabel A++++ en o.a. vloerverwarming met koelfunctie en warmtepomp;
- Op steenworp afstand van het bruisende centrum en de A12 – alles wat je nodig hebt, ligt binnen handbereik.

Indeling
Begane grond
Wanneer je de woonkamer/eetkamer binnenstapt, word je onmiddellijk verwelkomd door de stijlvolle gietvloer en het overvloedige natuurlijke licht dat de ruimte vult. De open en uitnodigende indeling zorgt ervoor dat je vanaf de bank moeiteloos contact kunt maken met degene die aan tafel zit of in de keuken bezig is, terwijl je tegelijkertijd een fijn overzicht houdt. Een perfecte combinatie van sfeer, verbinding en comfort!
De keuken is van alle gemakken voorzien en uitgerust met luxe apparatuur, zoals een Quooker, oven met stoomfunctie, combimagnetron, koelkast, vriezer, inductiekookplaat én volop opbergruimte. Hier wordt koken elke dag een feestje.

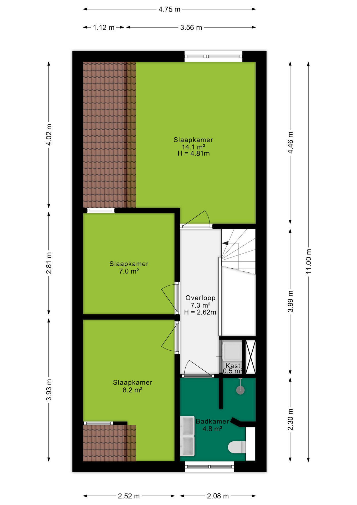
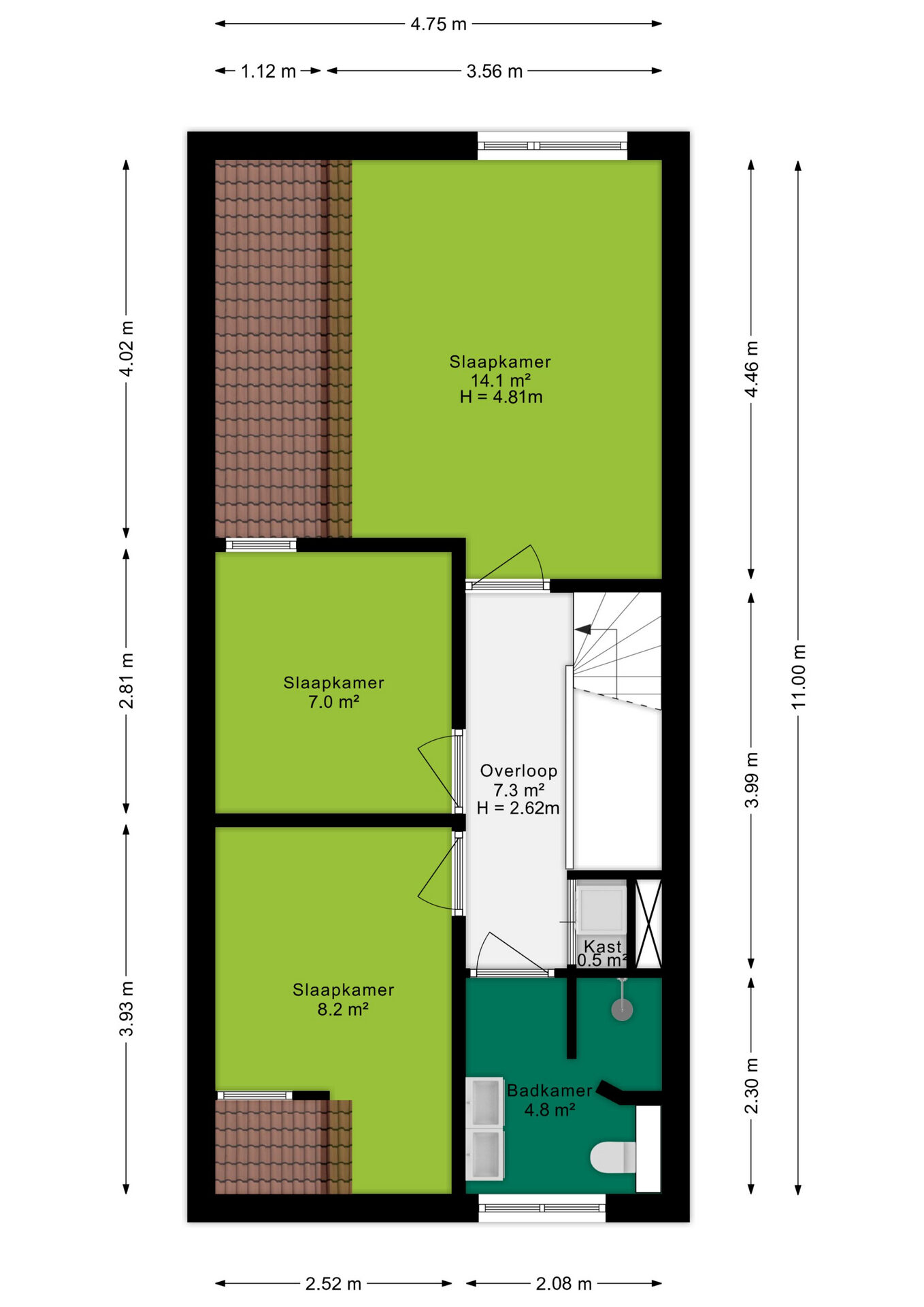
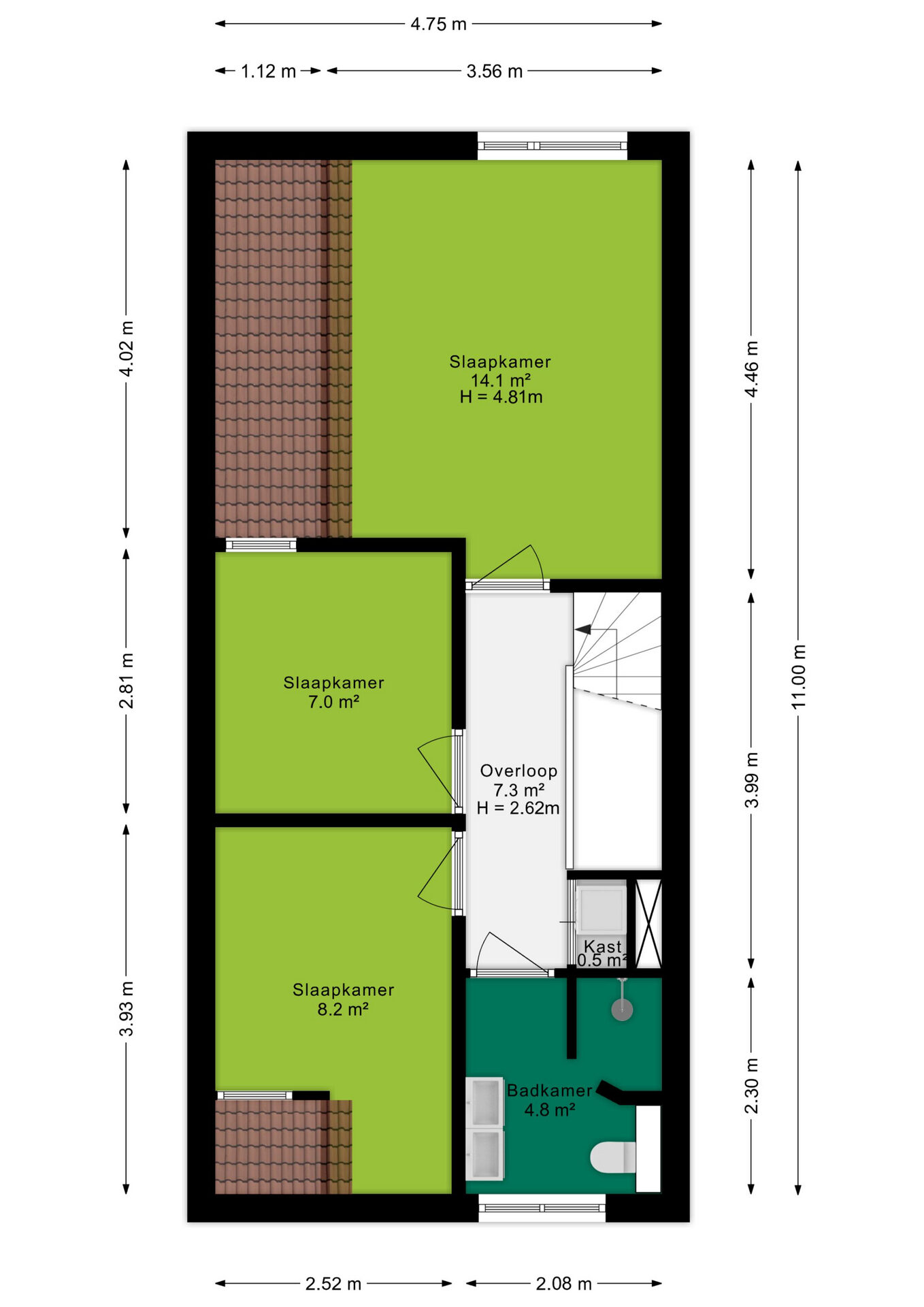
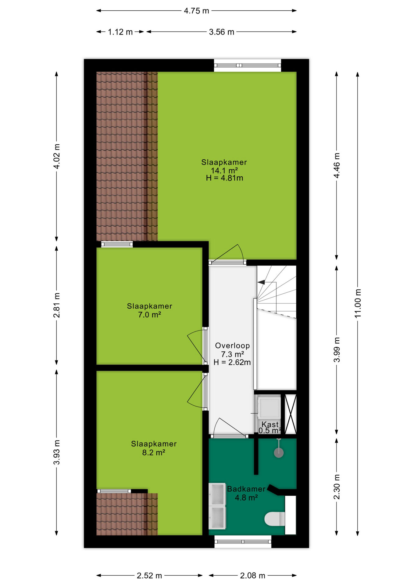
1e verdieping
Op de eerste verdieping vind je een strakke gietvloer en drie slaapkamers. Aan de voorzijde ligt een royale slaapkamer van ongeveer 14 m² welke is voorzien van een elektrisch bedienbaar rolluik en waar je ook een handige vliering vindt voor het opbergen van spullen. Daarnaast zijn er twee knusse slaapkamers van respectievelijk 7 m² en 8 m².
De badkamer op deze verdieping is van alle gemakken voorzien met een stijlvol wastafelmeubel met dubbele kraan, een inloopdouche en een toilet.

Tuin
De tuin, gelegen op het zonnige zuiden, is een heerlijke plek waar je de hele dag van de zon kunt genieten. Liever wat schaduw? Dan kun je eenvoudig het elektrisch bedienbare zonnescherm gebruiken. Dankzij de onderhoudsvriendelijke aanleg met kunstgras hoef je je geen zorgen te maken over veel onderhoud en kun je optimaal ontspannen. Daarnaast vind je in de tuin een praktische berging en heb je het gemak van een achterom, wat het extra handig maakt.

Verder is er in de buurt is ook een gezellig speeltuintje te vinden, een fijne plek waar de kinderen veilig kunnen spelen en volop plezier kunnen maken.

Bijzonderheden
Verwarming: warmtepomp, vloerverwarming met koelfunctie;
Warm water: aardwarmte;
Isolatie: volledig geïsoleerd;
Tuinligging: zuiden;
Aanvaarding: in overleg.

Koopovereenkomst:
Bij de verkoop zal er een standaard NVM koopovereenkomst worden gehanteerd. Bij woningen welke ouder zijn dan 20 jaar, worden de volgende clausules opgenomen in de koopovereenkomst:
- Asbestclausule;
- Ouderdomsclausule.

Koop je de woning zonder voorbehoud van financiering? Dan zullen wij een termijn hanteren van 14 dagen na het opstellen van de koopovereenkomst voor het storten van de bankgarantie/waarborgsom.

Deze informatie is door ons met de nodige zorgvuldigheid samengesteld. Onzerzijds wordt echter geen enkele aansprakelijkheid aanvaard voor enige onvolledigheid, onjuistheid of anderszins, dan wel de gevolgen daarvan. Alle opgegeven maten en oppervlakten zijn indicatief.
+ toon meer
deze woning is Verkocht

1e Melmseweg 26 Veenendaal

1e Melmseweg 26

3905 MA, Veenendaal
Ditters open huis: 5 april 2025 10:00 - 12:00 uur
Landelijke Open Huizen Route NVM: 5 april 2025 11:00 uur - 15:00 uur
Vanaf€ 475.000 k.k.

Schakel een aankoopmakelaar in.

Snel handelen helpt je jouw droomhuis te bemachtigen. Zo vergroot je de kans dat je er op tijd bij bent.
Veenendaal
verkocht

Of maak vrijblijvend een zoekprofiel aan.

Vergelijkbare woningen

Hypotheken

Onafhankelijk hypotheekadvies

  • Ligt jouw droomhuis binnen handbereik?
  • Wil je jouw huidige hypotheek verhogen?
  • Is er hypotheekruimte voor verduurzaming?

Blijf op de hoogte

Ontvang als eerste updates over nieuw aanbod en mis geen enkele kans om jouw droomwoning te vinden.

Gratis waardebepaling of verkoopgesprek

Met de vrijblijvende waardecheck weet je snel waar je aan toe bent. Onze makelaars kijken naar de lokale markt en vergelijkbare woningen in jouw buurt om een goede schatting te geven.

Realiseer al jouw woondromen met Ditters

Wij zijn een team van gedreven vastgoedexperts met een passie voor het maken van verbindingen – tussen kopers en verkopers, huurders en verhuurders. Met een frisse kijk op de makelaardij combineren we expertise met creativiteit. Onze makelaars luisteren écht en nemen de tijd om jouw wensen te begrijpen.


Bij Ditters sta je er niet alleen voor. We denken met je mee, begeleiden je in elke stap en zijn altijd bereikbaar voor vragen. Neem gerust contact met ons op – we helpen je graag verder!