Omschrijving

Te koop: Duurzame- en uitgebouwde tussenwoning met energielabel A++++, warmtepomp en 12 zonnepanelen!

Zoek jij een strak en hoogwaardig afgewerkt woonhuis waarbij absoluut niet is bezuinigd op kwaliteit en luxe? Vind jij duurzaam belangrijk en moet jouw toekomstige woning voldoen aan de kenmerken A++++, warmtepomp, vloerverwarming en zonnepanelen? Zoek jij die éne woning in Veenendaal-West waar je niks meer hoeft te doen?

Stop dan snel met zoeken en kom deze fraaie woning bezichtigen!

Is Bomas 21 jouw nieuwe plek?
Bomas 21 is een in 2022 gebouwde- en uitgebouwde tussenwoning met eigen parkeerplaats, tuin op zuid/zuidoost en gelegen in Veenendaal-West. In de buurt van de woning zijn diverse speeltuintjes aanwezig en eveneens bereikt u binnen enkele minuten verschillende scholen en sportaccommodaties. Ook het NS-station en het wijkwinkelcentrum 'De Ellekoot' liggen op korte fietsafstand.

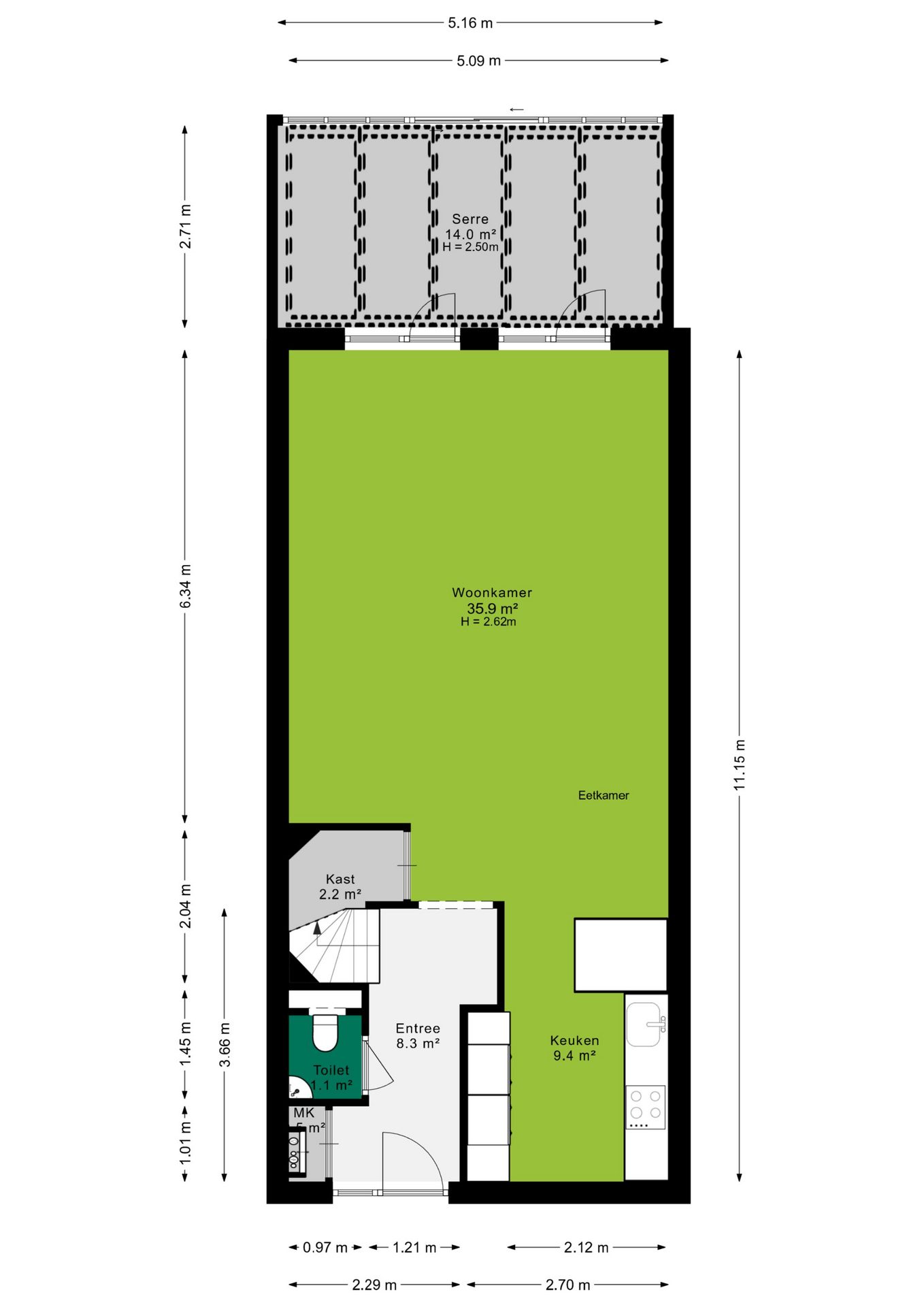
Begane grond:
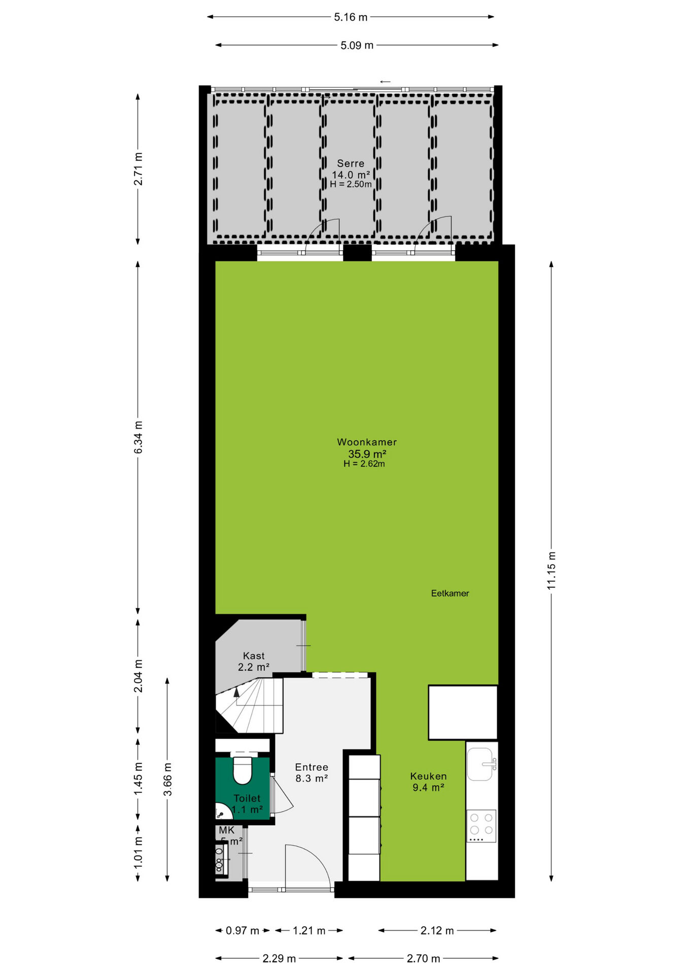
Als je de voordeur passeert, tref je meteen de ontvangsthal waar je de meterkast, de trap naar de eerste verdieping en de toiletruimte met zwevend toilet en fonteintje aantreft. Direct wordt duidelijk dat deze uitgebouwde tussenwoning met serre zich onderscheidt door een uitzonderlijk hoog niveau van afwerking. De woonkamer is gericht op de tuin en biedt genoeg plek voor royale meubels. Het bevat een stijlvolle roomdivider die tevens dient als televisiemeubel. Door twee grote deuren in de woonkamer stap je zo de zonovergoten achtertuin met serre/tuinkamer in, waardoor binnen en buiten naadloos met elkaar verbonden worden. De vloer is schitterend bedekt met een elegant patroon van visgraat, gelegd in de stijl van een Hongaarse punt. De benedenverdieping is indrukwekkend met raampartijen die de ruimte voorzien van veel daglicht. De ruime eettafel vormt het hart van de ruimte, de perfecte ontmoetingsplaats om samen met vrienden en/of familie te genieten van eten, drinken en gezelschapsspellen. De luxe keuken, gesitueerd aan de voorkant van het huis, is uitgerust met hoogwaardige Bosch-apparatuur, een Quooker en een werkblad van kwartsiet, dat zowel eenvoudig schoon te houden als vlekbestendig is.

1e verdieping:
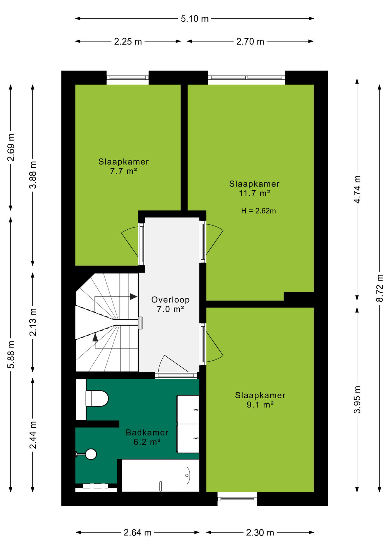
Via de met tapijt bekleedde vaste trap kom je bij de ruime tussenverdieping. De grootste slaapkamer op deze verdieping, gesitueerd aan de tuinzijde van het huis, biedt met een oppervlakte van bijna 13 m² veel leefruimte en is op dit moment de favoriete plek voor de kinderen om te slapen. De slaapkamer ernaast, iets meer dan 8 vierkante meter groot en eveneens aan de tuinzijde, wordt momenteel benut als speelkamer, maar leent zich perfect als slaap- en/of werkkamer. De derde kamer, ruim 9 m², is ruimtelijk en biedt volop mogelijkheden voor inrichting naar keuze.

Aan de straatzijde van de woning tref je de zeer luxe en moderne badkamer. Deze is uitgerust met betonlook tegels op de vloer en wanden en is van alle gemakken voorzien: een ruime inloopdouche inclusief sunshower, een uitnodigend ligbad, een tweede toilet, en een meubel met dubbele wasbakken. De badkamer is ook voorzien van een raam dat geopend kan worden om natuurlijke ventilatie toe te laten.

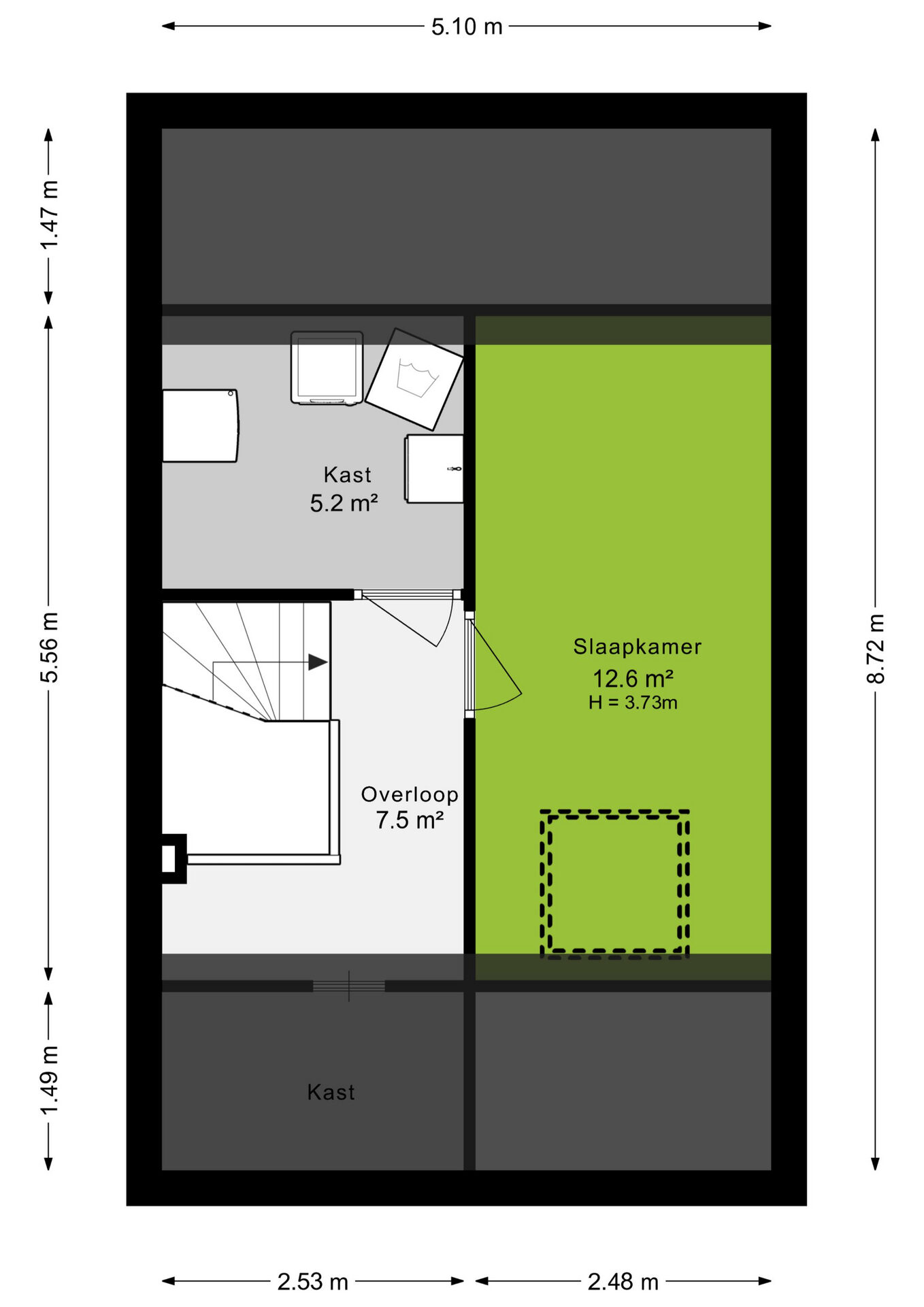
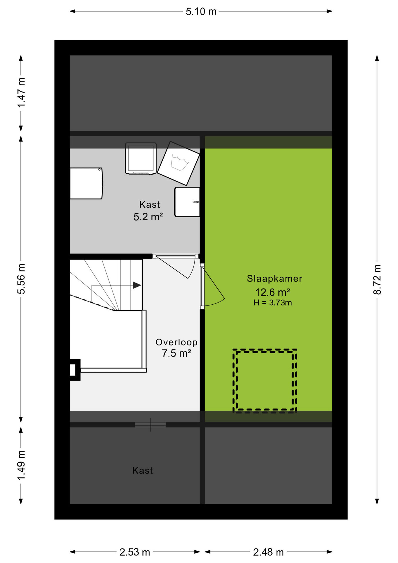
2e verdieping:
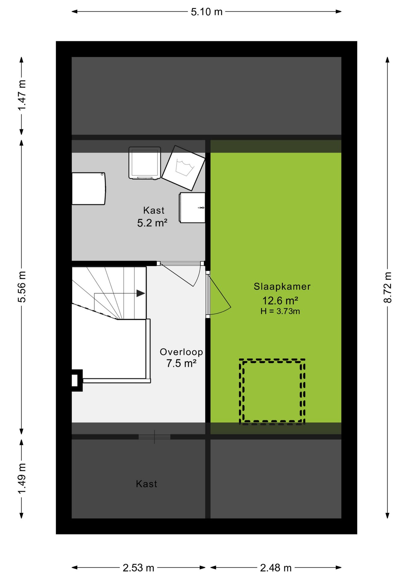
Via een vaste trap kom je op de 2e verdieping met een ruime overloop en 2 toegangsdeuren. Achter deur 1 bevindt zich een ruimte met alle technische installaties en opstelling voor wasmachine en droger. Deur 2 biedt je toegang tot de 4e slaapkamer. Een riante kamer van bijna 14 m² en door de huidig eigenaren in gebruik als master bedroom met eigen inloopkast.

Tuin:
De achtertuin is gelegen op het zuiden/zuidoosten en voorzien van grote grijze tegels, kunstgras en een heerlijke, maar bovenal gezellige serre. Aan de achterzijde een berging en een achterom richting je eigen parkeerplaats op eigen terrein. Verder beschikt de tuin over meer dan voldoende plek voor een ruime tafel met stoelen.

Kortom: een zonnige tuin op het zuid/zuidoosten met meer dan voldoende ruimte om met vrienden en/of familie te genieten van een verjaardag, feestje of BBQ.

Inhoud woning 511 m³
Woonoppervlakte 127 m²

Bijzonderheden:
Verwarming: Warmtepomp
Warmwater: Warmtepomp
Isolatie: Volledig A++++
Bouwjaar: 2022
Tuinligging: Zuid/zuidoost

Koopovereenkomst:
Koopt u de woning zonder voorbehoud van financiering? Dan zullen wij een termijn hanteren van 14 dagen na het opstellen van de koopovereenkomst voor het storten van de bankgarantie/waarborgsom.
+ toon meer
deze woning is Verkocht

Bomas 21 Veenendaal

Bomas 21

3905 WG, Veenendaal
Ditters open huis: 5 april 2025 10:00 - 12:00 uur
Landelijke Open Huizen Route NVM: 5 april 2025 11:00 uur - 15:00 uur
Vanaf€ 525.000 k.k.

Schakel een aankoopmakelaar in.

Snel handelen helpt je jouw droomhuis te bemachtigen. Zo vergroot je de kans dat je er op tijd bij bent.
Veenendaal
verkocht

Of maak vrijblijvend een zoekprofiel aan.

Vergelijkbare woningen

Hypotheken

Onafhankelijk hypotheekadvies

  • Ligt jouw droomhuis binnen handbereik?
  • Wil je jouw huidige hypotheek verhogen?
  • Is er hypotheekruimte voor verduurzaming?

Blijf op de hoogte

Ontvang als eerste updates over nieuw aanbod en mis geen enkele kans om jouw droomwoning te vinden.

Gratis waardebepaling of verkoopgesprek

Met de vrijblijvende waardecheck weet je snel waar je aan toe bent. Onze makelaars kijken naar de lokale markt en vergelijkbare woningen in jouw buurt om een goede schatting te geven.

Realiseer al jouw woondromen met Ditters

Wij zijn een team van gedreven vastgoedexperts met een passie voor het maken van verbindingen – tussen kopers en verkopers, huurders en verhuurders. Met een frisse kijk op de makelaardij combineren we expertise met creativiteit. Onze makelaars luisteren écht en nemen de tijd om jouw wensen te begrijpen.


Bij Ditters sta je er niet alleen voor. We denken met je mee, begeleiden je in elke stap en zijn altijd bereikbaar voor vragen. Neem gerust contact met ons op – we helpen je graag verder!