Omschrijving

Te Koop: Charmante en uitgebouwde 2^1-kapwoning met 5 slaapkamers en riant bijgebouw!

Ontdek deze charmante en uitgebouwde 2^1-kapwoning met authentieke jaren '30 sfeer, gelegen in hartje Veenendaal. De ruime woning is verrijkt met een veelzijdig bijgebouw dat zich leent voor diverse doeleinden, zoals zelfstandig kantoor aan huis of een mantelzorgwoning. Het bijgebouw heeft een ruimte voor opslag op de begane grond, een 2e badkamer en de bovenverdieping is compleet voorzien van keukenblok, stromend water en faciliteiten om het te verwarmen of te koelen. De woning geniet van een eigen parkeerplek en is omringd door een keurige tuin. Met vijf slaapkamers en een prachtige uitbouw op de begane grond presenteert deze woning zich als een zeer goed onderhouden en stijlvol afgewerkt woonhuis.

De woning ligt in een rustige straat, maar is toch midden in het centrum gesitueerd op een fijne plek met alle benodigde voorzieningen nabij, zoals het uitgebreide winkelcentrum van Veenendaal, theater 'De Lampegiet' en de diverse uitvalswegen.

Indeling
Begane grond:
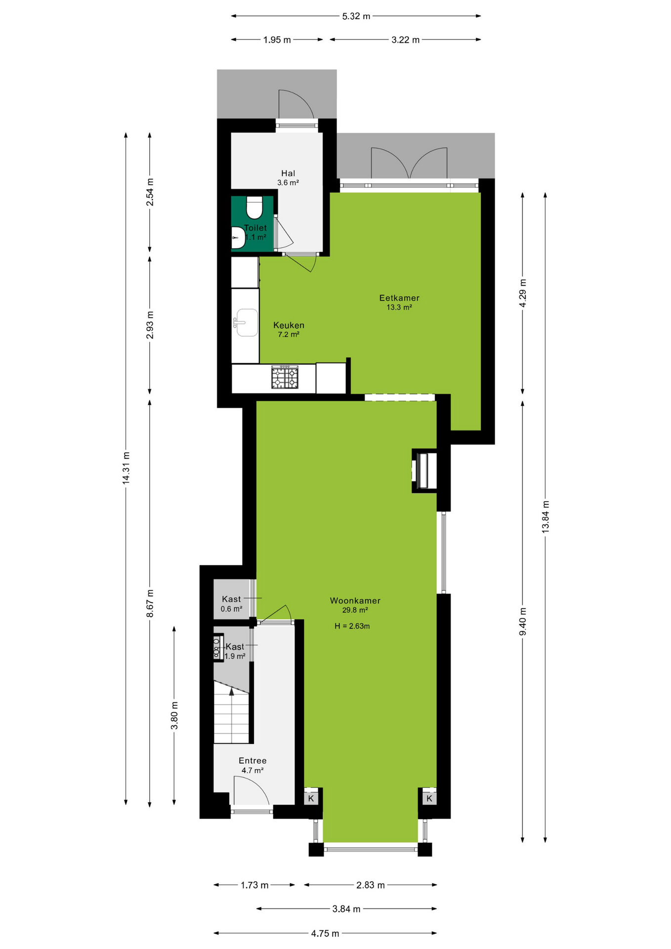
Via de entree betreed je de woning en wordt je verwelkomd door een hal met een elegante granito vloer, waar zich de trap naar de bovenverdieping bevindt, alsmede de meterkast en een ruime trapkast. De uitnodigende woonkamer is voorzien van een charmante erker, een warme gashaard, en door een extra raamvenster valt er rijkelijk licht binnen. Een in 2022 vernieuwde pvc vloer completeert het geheel!

De aanzienlijke uitbouw aan de achterzijde heeft plaatsgemaakt voor een schitterende woonkeuken met een hal aan de achterzijde. De keuken, in hoekopstelling, is uitgerust met moderne apparatuur zoals een oven, magnetron, vaatwasser, gaskookplaat en koel-vriescombinatie. De tuin is direct toegankelijk via dubbele deuren vanuit de woonkeuken. In de achtergelegen hal bevinden zich een garderobe en een toiletruimte met wandtoilet en fontein.

1e verdieping:
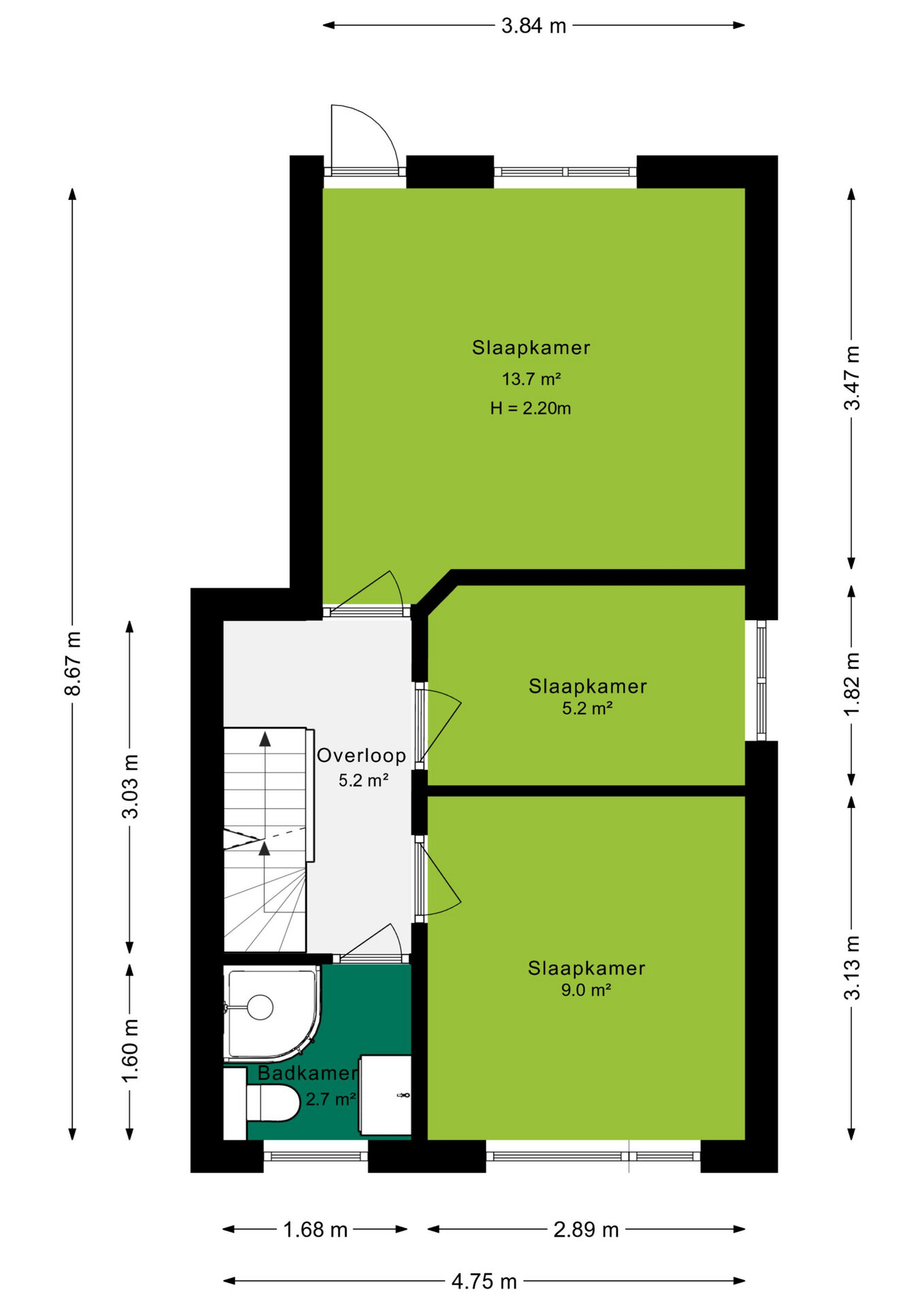
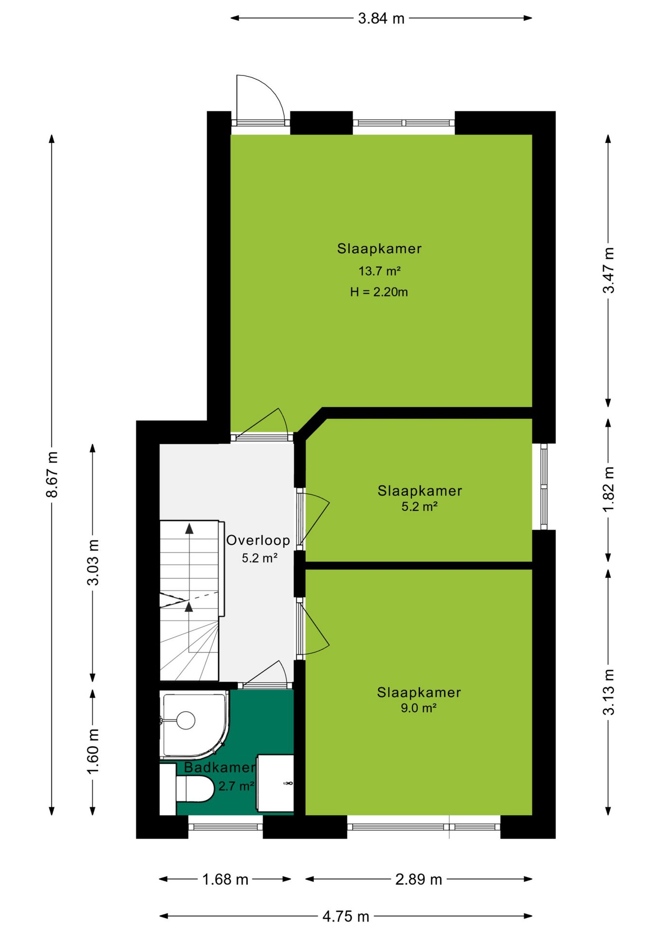
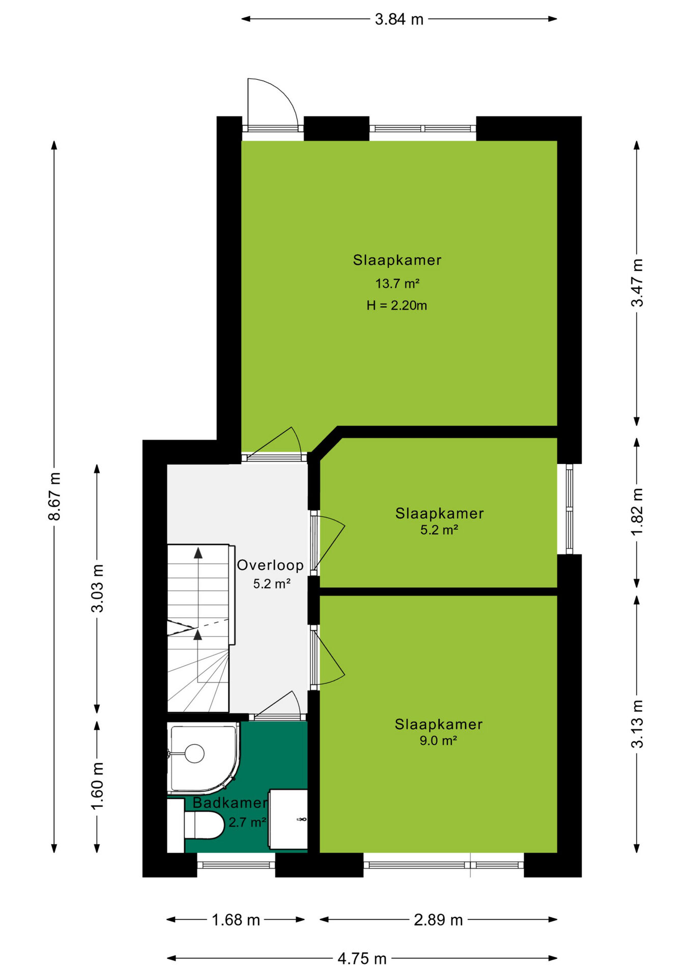
Via de vaste trap kom je op de eerste verdieping met toegang tot drie slaapkamers en een badkamer, allen voorzien van kunststof kozijnen. De ouderslaapkamer beschikt over een afmeting van ca 14m2 en geeft toegang tot het dak van de uitbouw. De andere twee slaapkamers hebben ook fijne afmetingen van ca. 9m2 en ca. 5m2. De functionele badkamer is voorzien van een douchecabine, wastafel, toilet en mechanische ventilatie.

2e verdieping:
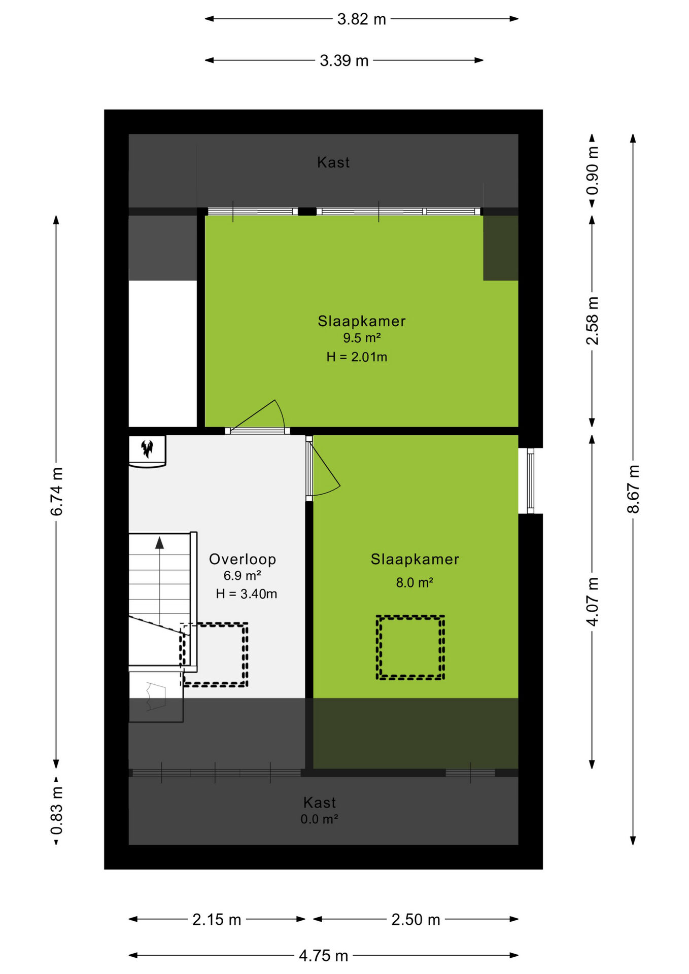
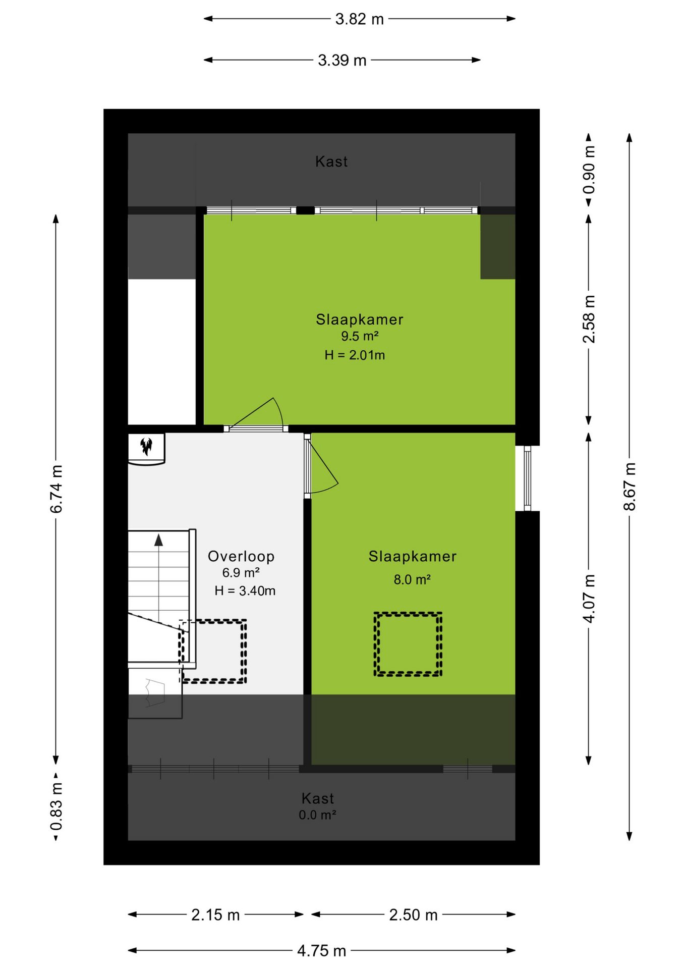
Door middel van de vaste trap kom je op de tweede verdieping met een voorzolder met wasmachine- en drogeraansluitingen en de CV-ketel. Op deze etage bevinden zich wederom twee slaapkamers, waarvan één met dakkapel en de andere met een kunststof dakraam. Extra bergruimte volmaken de overloop.

Tuin:
De achtertuin, met een gunstige ligging op het westen, is zorgvuldig en verzorgd aangelegd en via een zijpoort te betreden. Op elke plek in de tuin is een plekje in de zon of juist in de schaduw te vinden. Er bevindt zich een eigen parkeerplaats naast de woning. In 2013 is in de tuin een multifunctioneel bijgebouw gebouwd dat op de begane grond een handige opbergruimte, een 2e badkamer en aan de voorzijde een gezellige veranda. Een vaste trap brengt je naar de bovenruimte, die naar wens verwarmd of gekoeld kan worden en zowel als woongedeelte of als werkruimte kan dienen.

Kenmerken:
- Verwarming en warm water middels een HR combiketel
- Zeer goed geïsoleerd met muurisolatie en isolerende beglazing;
- Tuinligging: zuidwesten;
- Vijf slaapkamers
- Twee badkamers;
- Eigen parkeerplaats naast de woning;
- Gelegen in het centrum van Veenendaal;
- Oplevering in overleg.

Koopovereenkomst:
Bij de verkoop zal er een standaard NVM koopovereenkomst worden gehanteerd. Bij woningen welke ouder zijn dan 20 jaar, worden de volgende clausules opgenomen in de koopovereenkomst:
- Asbestclausule
- Ouderdomsclausule

Koopt u de woning zonder voorbehoud van financiering? Dan zullen wij een termijn hanteren van 14 dagen na het opstellen van de koopovereenkomst voor het storten van de bankgarantie/waarborgsom.

Deze informatie is door ons met de nodige zorgvuldigheid samengesteld. Onzerzijds wordt echter geen enkele aansprakelijkheid aanvaard voor enige onvolledigheid, onjuistheid of anderszins, dan wel de gevolgen daarvan. Alle opgegeven maten en oppervlakten zijn indicatief.
+ toon meer
deze woning is Verkocht

Fluitersstraat 61 Veenendaal

Fluitersstraat 61

3901 DJ, Veenendaal
Ditters open huis: 5 april 2025 10:00 - 12:00 uur
Landelijke Open Huizen Route NVM: 5 april 2025 11:00 uur - 15:00 uur
Vanaf€ 535.000 k.k.

Schakel een aankoopmakelaar in.

Snel handelen helpt je jouw droomhuis te bemachtigen. Zo vergroot je de kans dat je er op tijd bij bent.
Veenendaal
verkocht

Of maak vrijblijvend een zoekprofiel aan.

Vergelijkbare woningen

Hypotheken

Onafhankelijk hypotheekadvies

  • Ligt jouw droomhuis binnen handbereik?
  • Wil je jouw huidige hypotheek verhogen?
  • Is er hypotheekruimte voor verduurzaming?

Blijf op de hoogte

Ontvang als eerste updates over nieuw aanbod en mis geen enkele kans om jouw droomwoning te vinden.

Gratis waardebepaling of verkoopgesprek

Met de vrijblijvende waardecheck weet je snel waar je aan toe bent. Onze makelaars kijken naar de lokale markt en vergelijkbare woningen in jouw buurt om een goede schatting te geven.

Realiseer al jouw woondromen met Ditters

Wij zijn een team van gedreven vastgoedexperts met een passie voor het maken van verbindingen – tussen kopers en verkopers, huurders en verhuurders. Met een frisse kijk op de makelaardij combineren we expertise met creativiteit. Onze makelaars luisteren écht en nemen de tijd om jouw wensen te begrijpen.


Bij Ditters sta je er niet alleen voor. We denken met je mee, begeleiden je in elke stap en zijn altijd bereikbaar voor vragen. Neem gerust contact met ons op – we helpen je graag verder!