Aanbod

Verken ons aanbod. Van huur tot koop. En van nieuwbouw tot bouwkavel. Samen vinden we de plek waar jij je helemaal thuis voelt.

Diensten

Onze experts begeleiden je van A tot Z. Of je nu je huis wilt verkopen, op zoek bent naar je droomhuis of advies nodig hebt over hypotheken of verzekeringen. Met jarenlange ervaring en persoonlijke service zorgen we ervoor dat jij met een gerust hart de juiste keuzes maakt.

Over Ditters

Wij zijn Ditters. Verhalenvertellers. De schakel tussen droom en woning. We luisteren naar jouw wensen en maken op basis daarvan een plan.

Omschrijving

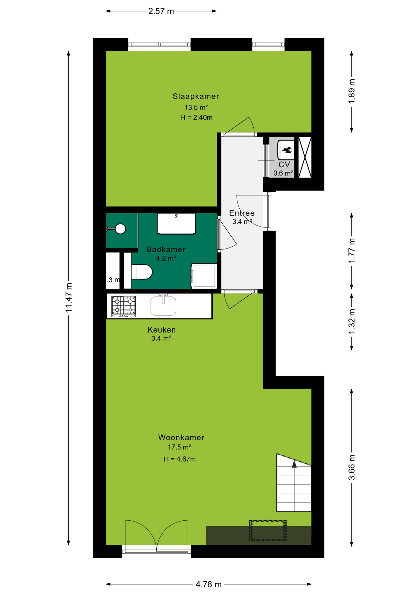
Gelegen in de geliefde wijk 't Hoorntje' bevindt zich deze fantastische bovenwoning met een woonoppervlakte van 73m². De woning is volledig geïsoleerd en voorzien van energielabel A. Daarnaast is de woning van binnen een plaatje om te zien, plan gauw een bezichtiging in!

De volgende aspecten van deze fantastische bovenwoning spreken je ook vast aan: een woonkamer met vide en heerlijk veel lichtinval, open keuken voorzien van diverse inbouwapparatuur, 1 ruime slaapkamer en mogelijkheid tot creëren van een 2e slaapkamer, moderne badkamer en er is een handige berging aanwezig. Daarnaast is het gehele appartement voorzien van kunststof kozijnen en van vloerverwarming.

De woning is gelegen in een prettige woonomgeving in Veenendaal. De ligging van de woning is optimaal. In de nabije omgeving vindt je onder andere de 'Prattenburgse' bossen waar heerlijk gewandeld of gefietst kan worden en op korte afstand van het winkelhart van Veenendaal. Tevens op korte afstand van zowel NS-station Veenendaal West en het centrum, maar ook het NS-station De Klomp is goed bereikbaar. Verder zijn de uitvalswegen naar de snelweg A12 en de A15 prima bereikbaar. Sport- en speelgelegenheden, binnen- en buitenzwembad, basisscholen en middelbaar en voortgezet onderwijs zijn in de directe omgeving te vinden. Op 300 meter afstand is een supermarkt gesitueerd. Kortom de ideale uitvalsbasis, gezien de centrale ligging, zowel binnen Veenendaal als binnen Nederland.

Indeling:
Begane grond:
Via de trapopgang kom je bij het appartement.

Eerste verdieping:
Doormiddel van de entree kom je bij de hal en bereik je alle vertrekken in de woning. De woonkamer is voorzien van een geweldige vide (hoogte 4,67m) wat een ruimtelijk effect creëert. Daarnaast is de woning voorzien van een laminaatvloer en heerlijk veel lichtinval. De open keuken is opgesteld in een lichte kleurstelling en voorzien van diverse inbouwapparatuur: een kookplaat, afzuigkap, combi-oven/magnetron, koel-vriescombinatie (dec. 2024) en een vaatwasser.

De badkamer is opgesteld in een moderne kleurstelling en voorzien van een inloopdouche, wastafel met wastafelmeubel en een toilet. Tevens bevindt zich hier de witgoed-aansluiting. In de hal bevindt zich nog een vaste kast waarin de C.V.-ketel staat opgesteld.

Tweede verdieping:
Via de trapopgang kom je op de tweede verdieping en middels de vide kijk je op de sfeervolle woonkamer. De overloop is zeer ruim bemeten waardoor je hier gemakkelijk een kast of bureau kwijt kunt. Er is ook een kamer aanwezig welke thans in gebruik is als inloopkast. Deze ruimte kan ook op een andere manier worden ingedeeld waardoor er een 2e slaapkamer ontstaat.

Berging:
Op de begane grond is nog een ideale berging aanwezig. Handig voor het stallen van je fiets en/of spullen.

Kenmerken:
Verwarming: C.V.-combiketel (bouwjaar 2014) en vloerverwarming
Warm water: C.V.-combiketel (bouwjaar 2014)
Isolatie: volledig geïsoleerd
Bouwjaar: 2014
Aanvaarding: in overleg

Pluspunten van de woning:
+ Sfeervolle woonkamer met vide en veel lichtinval;
+ Open keuken voorzien van diverse apparatuur;
+ Moderne badkamer;
+ Voorzien van een ruime slaapkamer;
+ Mogelijkheid tot creëren van 2e slaapkamer;
+ Op de hoek van de straat is een laadpaal aanwezig;
+ Geheel voorzien van vloerverwarming;
+ Geheel voorzien van kunststof kozijnen;
+ Parkeerruimte in de straat aanwezig;
+ Gelegen nabij diverse voorzieningen.

Koopovereenkomst:
Bij de verkoop zal er een standaard NVM koopovereenkomst worden gehanteerd.

Koopt u de woning zonder voorbehoud van financiering? Dan zullen wij een termijn hanteren van 14 dagen na het opstellen van de koopovereenkomst voor het storten van de bankgarantie/waarborgsom.

Deze informatie is door ons met de nodige zorgvuldigheid samengesteld. Onzerzijds wordt echter geen enkele aansprakelijkheid aanvaard voor enige onvolledigheid, onjuistheid of anderszins, dan wel de gevolgen daarvan. Alle opgegeven maten en oppervlakten zijn indicatief.
+ toon meer
deze woning is Verkocht

Narcisstraat 23 Veenendaal

Narcisstraat 23

3905 ZV, Veenendaal
Ditters open huis: 5 april 2025 10:00 - 12:00 uur
Landelijke Open Huizen Route NVM: 5 april 2025 11:00 uur - 15:00 uur
Vanaf€ 295.000 k.k.

Schakel een aankoopmakelaar in.

Snel handelen helpt je jouw droomhuis te bemachtigen. Zo vergroot je de kans dat je er op tijd bij bent.
Veenendaal
verkocht

Of maak vrijblijvend een zoekprofiel aan.

Vergelijkbare woningen

Hypotheken

Onafhankelijk hypotheekadvies

  • Ligt jouw droomhuis binnen handbereik?
  • Wil je jouw huidige hypotheek verhogen?
  • Is er hypotheekruimte voor verduurzaming?

Blijf op de hoogte

Ontvang als eerste updates over nieuw aanbod en mis geen enkele kans om jouw droomwoning te vinden.

Gratis waardebepaling of verkoopgesprek

Met de vrijblijvende waardecheck weet je snel waar je aan toe bent. Onze makelaars kijken naar de lokale markt en vergelijkbare woningen in jouw buurt om een goede schatting te geven.

Realiseer al jouw woondromen met Ditters

Wij zijn een team van gedreven vastgoedexperts met een passie voor het maken van verbindingen – tussen kopers en verkopers, huurders en verhuurders. Met een frisse kijk op de makelaardij combineren we expertise met creativiteit. Onze makelaars luisteren écht en nemen de tijd om jouw wensen te begrijpen.


Bij Ditters sta je er niet alleen voor. We denken met je mee, begeleiden je in elke stap en zijn altijd bereikbaar voor vragen. Neem gerust contact met ons op – we helpen je graag verder!