Omschrijving

Zijn HR++ beglazing, minimaal drie slaapkamers en een ruim en zonnig balkon op het westen belangrijke criteria waar jouw nieuwe woning aan moet voldoen? Staan een eigen inpandig berging, veel privacy en meer dan voldoende parkeergelegenheid hoog op jouw wensenlijstje? Zoek jij 3-kamerappartement gelegen op de hoek, aan het einde van de galerij en nabij belangrijke dagelijkse voorzieningen?

Plan dan snel een bezichtiging bij Prins Willem-Alexanderpark 33!

Prins Willem-Alexanderpark 333 is een in 1968 gebouwd appartementencomplex. Het betreft een 4-kamerappartement gelegen op de hoek, met eigen berging, fietsenstalling en ruim voldoende parkeergelegenheid. Het appartement is zeer populair door zijn formaat en centrale ligging. Zo ben je binnen enkele minuten fietsen in bruisend Veenendaal Centrum met al haar winkels en horeca, bevindt zich om de hoek de Zandstraat met allemaal horeca, winkeltjes, sportvoorzieningen en plaatselijk ambacht en ben je via de Rondweg West binnen enkele minuten op de A12 richting Utrecht of Arnhem. Voor alle dagelijkse boodschappen bevindt zich op loopafstand een JUMBO supermarkt en zijn met Healthclub, La Vita en het Zwembad ook verschillende sportfaciliteiten in de buurt!

Vooruitlopend op de bezichtiging geven we je hieronder vast een eerste indruk!

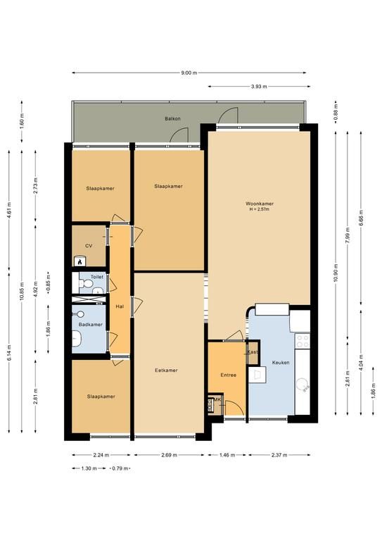
Begane grond:
Via de entree kom je bij de beveiligde hoofdentree, intercominstallatie, brievenbussen en de liftinstallatie. Daarnaast bevinden zich op de begane grond de gemeenschappelijke fietsenstalling.

Appartement:
Eenmaal binnen in het appartement zie je een ruime entree met garderoberuimte en de meterkast. De toegangsdeur brengt je naar de leefruimte. Wat gelijk opvalt is de speelse indeling van het appartement. Een Z-vormige woon-/eetkamer met aan de achterzijde de woonkamer en aan de voorzijde de eetkamer. Daarnaast zien we aan zowel de voorkant als achterkant dat het appartement is voorzien van grote raampartijen waardoor het appartement wordt voorzien van veel daglichttoetreding! De living is bijna 44 m² en biedt enorm veel mogelijkheden. In het appartement vind je een half open keuken en uitgevoerd met witte fronten en het benodigde apparatuur. De keuken bevindt zich aan de voorzijde van het appartement en hier vind je ook de aansluitingen voor de wasmachine en eventueel droger. Bij veel vergelijkbare appartement staan de wasmachine en de droger in de wasruimte bij de boiler.

Via de hal kom je bij de badkamer welke centraal gelegen is tussen beide slaapkamers en voorzien van witte wandtegels, een enkele wastafel en douchehoek Het toilet is separaat en gelegen naast de badkamer.

De grootste slaapkamer is gelegen aan de achterzijde van het appartement, is bijna 12,5 m² groot en wordt door de eigenaar gebruikt als master bedroom. De 2e slaapkamer is ook gelegen aan de achterzijde van het appartement en is circa 6,1 m² groot. De derde slaapkamer is gelegen aan de voorzijde van het appartement (galerij) en is circa 6.3 m² groot.

Balkon:
Het balkon is gelegen op het westen en biedt je een mooi uitzicht over de gemeenschappelijk tuin, het groen en Veenendaal West.

EEN RONDLEIDING VOOR JOUW NIEUWE PLEK:
Neem contact met ons op, wij laten je dit leuke appartement graag van binnen zien!


Bijzonderheden:
Verwarming: blokverwarming
Warmwater: boiler (huur)
Isolatie: volledig geïsoleerd
Bouwjaar: 1968
Balkonligging: west
Aanvaarding: In overleg, kan snel.

Extra's:
- Ruim appartement;
- 3 slaapkamers;
- Energielabel F - voorzien van HR++ glas;
- Parkeren op de openbare parkeerplaatsen;
- Woning beschikt over eigen inpandige bering;
- Actieve Vereniging van Eigenaren;
- Maandelijkse bijdrage V.v.E. bedraagt: € 230,-, exclusief voorschot stookkosten;
- Projectnotaris Caminada Notarissen te Rijswijk.

Koopovereenkomst:
Bij de verkoop zal er een standaard NVM koopovereenkomst worden gehanteerd. Bij woningen welke ouder zijn dan 20 jaar, worden de volgende clausules opgenomen in de koopovereenkomst:
- Asbestclausule;
- Ouderdomsclausule.

Daarnaast zullen onderstaande clausules/artikelen toegevoegd worden aan de koopovereenkomst:
- Niet bewoners clausule
- Artikel ABC leveringsakte
- Artikel volmacht

Koopt u de woning zonder voorbehoud van financiering? Dan zullen wij een termijn hanteren van 14 dagen na het opstellen van de koopovereenkomst voor het storten van de bankgarantie/waarborgsom.

Deze informatie is door ons met de nodige zorgvuldigheid samengesteld. Onzerzijds wordt echter geen enkele aansprakelijkheid aanvaard voor enige onvolledigheid, onjuistheid of anderszins, dan wel de gevolgen daarvan. Alle opgegeven maten en oppervlakten zijn indicatief.
+ toon meer
deze woning is Verkocht

Prins Willem-Alexanderpark 333 Veenendaal

Prins Willem-Alexanderpark 333

3905 CK, Veenendaal
Ditters open huis: 5 april 2025 10:00 - 12:00 uur
Landelijke Open Huizen Route NVM: 5 april 2025 11:00 uur - 15:00 uur
Vanaf€ 289.500 k.k.

Schakel een aankoopmakelaar in.

Snel handelen helpt je jouw droomhuis te bemachtigen. Zo vergroot je de kans dat je er op tijd bij bent.
Veenendaal
verkocht

Of maak vrijblijvend een zoekprofiel aan.

Vergelijkbare woningen

Hypotheken

Onafhankelijk hypotheekadvies

  • Ligt jouw droomhuis binnen handbereik?
  • Wil je jouw huidige hypotheek verhogen?
  • Is er hypotheekruimte voor verduurzaming?

Blijf op de hoogte

Ontvang als eerste updates over nieuw aanbod en mis geen enkele kans om jouw droomwoning te vinden.

Gratis waardebepaling of verkoopgesprek

Met de vrijblijvende waardecheck weet je snel waar je aan toe bent. Onze makelaars kijken naar de lokale markt en vergelijkbare woningen in jouw buurt om een goede schatting te geven.

Realiseer al jouw woondromen met Ditters

Wij zijn een team van gedreven vastgoedexperts met een passie voor het maken van verbindingen – tussen kopers en verkopers, huurders en verhuurders. Met een frisse kijk op de makelaardij combineren we expertise met creativiteit. Onze makelaars luisteren écht en nemen de tijd om jouw wensen te begrijpen.


Bij Ditters sta je er niet alleen voor. We denken met je mee, begeleiden je in elke stap en zijn altijd bereikbaar voor vragen. Neem gerust contact met ons op – we helpen je graag verder!