Omschrijving

Te Koop: Charmant en licht afgewerkte 2-kamer appartement, ideaal gelegen nabij het bruisende centrum van Veenendaal. Je woont op een toplocatie: winkelgebieden, restaurants en het theater liggen op loopafstand. Bovendien bevindt het NS-station Veenendaal Centrum zich pal naast (of direct onder) het complex, waardoor je binnen slechts 30 minuten het centrum van Utrecht bereikt.

Entree:
Via een beveiligde entree met intercom kom je het appartementencomplex binnen. Vervolgens leidt zowel de trap als de lift naar de eerste woonlaag, waar een net portiek je naar jouw appartement brengt.

Appartement:
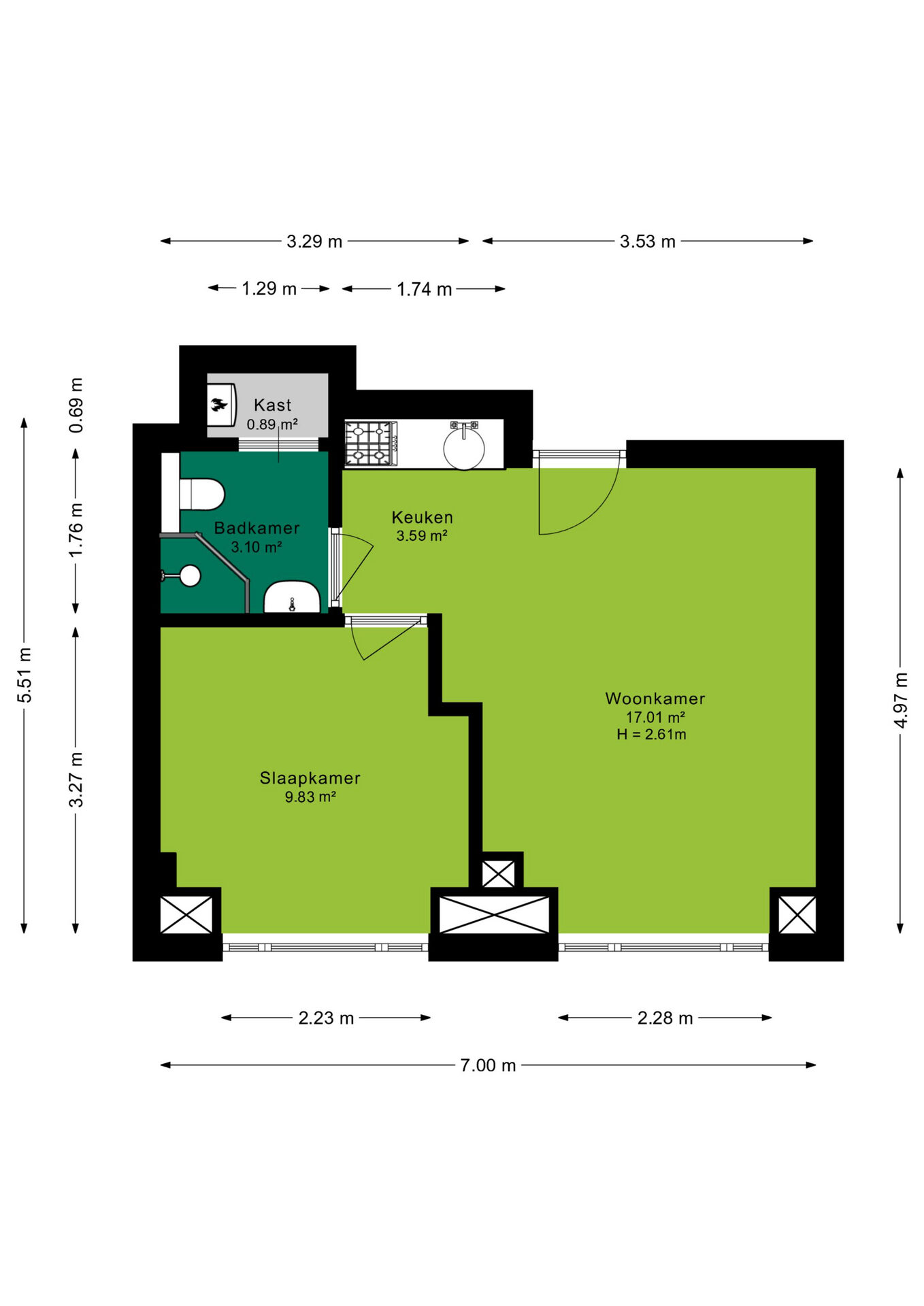
Vanuit de voordeur kom je direct in de woonkamer. In de ruime woonkamer vormt een grote raampartij in de erker het perfecte decor voor een gezellige zitplek en een fraai uitzicht. Via deze kamer betreed je de open, moderne keuken in een rechte opstelling. Hier vind je een spoelbak, een 4-pits gaskookplaat met afzuigkap, een koelkast en vier handige keukenkasten – samen beslaan de woon- en keukenruimte ongeveer 23 m².

Slaapkamer en Badkamer:
Vanuit de keuken kom je bij de slaapkamer. De royale slaapkamer van circa 11 m² wordt gekenmerkt door een overvloed aan natuurlijk licht dankzij een grote erker. De stijlvolle, volledig betegelde badkamer (in wit en grijs) biedt een douchehoek, een zwevend toilet en een wastafel. Ook is hier een vaste kast geplaatst waarin de opstelling van C.V.-combiketel en de aansluitingen voor wasmachine zijn geïntegreerd.

Buitenvoorzieningen:
Bij dit fijne appartement, geniet je van een representatief dakterras, dat door alle bewoners wordt gedeeld. Dit zonnige dakterras op het zuidwesten beschikt over houten banken en biedt een vrij uitzicht over Veenendaal en tot aan de Utrechtse Heuvelrug. Tevens is er een ruime fietsenberging in de onderbouw om je fiets veilig te stallen.

Bijzonderheden:
Verwarming C.V. ketel
Warmwater: C.V. ketel
Isolatie: Volledig geïsoleerd
Bouwjaar: 1988, getransformeerd naar appartementen in 2013/2014
Aanvaarding: in overleg

Extra's:
- Charmant en licht afgewerkt 2 kamer appartement;
- Perfecte ligging in het centrum van Veenendaal;
- Lichte woonkamer;
- Open en moderne keuken;
- Energielabel A.

Koopovereenkomst:
Bij de verkoop zal er een standaard NVM koopovereenkomst worden gehanteerd. Bij woningen welke ouder zijn dan 20 jaar, worden de volgende clausules opgenomen in de koopovereenkomst:
- Asbestclausule;
- Ouderdomsclausule.

Koopt u de woning zonder voorbehoud van financiering? Dan zullen wij een termijn hanteren van 14 dagen na het opstellen van de koopovereenkomst voor het storten van de bankgarantie/waarborgsom.

Deze informatie is door ons met de nodige zorgvuldigheid samengesteld. Onzerzijds wordt echter geen enkele aansprakelijkheid aanvaard voor enige onvolledigheid, onjuistheid of anderszins, dan wel de gevolgen daarvan. Alle opgegeven maten en oppervlakten zijn indicatief.
+ toon meer
deze woning is Verkocht

Stationsplein 8 B Veenendaal

Stationsplein 8 B

3901 ES, Veenendaal
Ditters open huis: 5 april 2025 10:00 - 12:00 uur
Landelijke Open Huizen Route NVM: 5 april 2025 11:00 uur - 15:00 uur
Vanaf€ 239.500 k.k.

Schakel een aankoopmakelaar in.

Snel handelen helpt je jouw droomhuis te bemachtigen. Zo vergroot je de kans dat je er op tijd bij bent.
Veenendaal
verkocht

Of maak vrijblijvend een zoekprofiel aan.

Vergelijkbare woningen

Hypotheken

Onafhankelijk hypotheekadvies

  • Ligt jouw droomhuis binnen handbereik?
  • Wil je jouw huidige hypotheek verhogen?
  • Is er hypotheekruimte voor verduurzaming?

Blijf op de hoogte

Ontvang als eerste updates over nieuw aanbod en mis geen enkele kans om jouw droomwoning te vinden.

Gratis waardebepaling of verkoopgesprek

Met de vrijblijvende waardecheck weet je snel waar je aan toe bent. Onze makelaars kijken naar de lokale markt en vergelijkbare woningen in jouw buurt om een goede schatting te geven.

Realiseer al jouw woondromen met Ditters

Wij zijn een team van gedreven vastgoedexperts met een passie voor het maken van verbindingen – tussen kopers en verkopers, huurders en verhuurders. Met een frisse kijk op de makelaardij combineren we expertise met creativiteit. Onze makelaars luisteren écht en nemen de tijd om jouw wensen te begrijpen.


Bij Ditters sta je er niet alleen voor. We denken met je mee, begeleiden je in elke stap en zijn altijd bereikbaar voor vragen. Neem gerust contact met ons op – we helpen je graag verder!