Aanbod

Verken ons aanbod. Van huur tot koop. En van nieuwbouw tot bouwkavel. Samen vinden we de plek waar jij je helemaal thuis voelt.

Diensten

Onze experts begeleiden je van A tot Z. Of je nu je huis wilt verkopen, op zoek bent naar je droomhuis of advies nodig hebt over hypotheken of verzekeringen. Met jarenlange ervaring en persoonlijke service zorgen we ervoor dat jij met een gerust hart de juiste keuzes maakt.

Over Ditters

Wij zijn Ditters. Verhalenvertellers. De schakel tussen droom en woning. We luisteren naar jouw wensen en maken op basis daarvan een plan.

Omschrijving

Op een prachtige locatie, gelegen aan het water, bevindt zich deze recent (2023) opgeleverde eengezinswoning in Veenendaal-Oost. Deze fraaie woning heeft een woonoppervlakte van 112m² en is van binnen een plaatje om te zien! Ook is de woning al helemaal klaar voor de toekomst; volledig geïsoleerd, voorzien van vloerverwarming- en koeling, energielabel A+++ en 9 zonnepanelen.

De volgende aspecten van deze fraaie woning zullen je vast aanspreken: diverse indelingsmogelijkheden met een woonkamer op de begane grond alsook op de 1e verdieping, moderne woonkeuken met diverse inbouwapparatuur, 2 volwaardige slaapkamers, complete badkamer met ligbad en inloopdouche, multifunctionele kamer op de begane grond, een keurige afwerking en door de tuin alsook het balkon extra veel buitenruimte.

Veenendaal-Oost ligt nabij de mooie omgeving van de ‘Groene Grens’, een natuurlijk recreatiegebied dat uitnodigt tot picknicken, barbecueën. Maar men kan er ook heerlijk wandelen, hardlopen en fietsen. Deze omgeving bevindt zich tussen de Dragonderweg en de Zuiderkade waar de landschappelijke waarden van het Binnenveld in stand blijven. Fietsend richting het Binnenveld kan men genieten van de weidevogelgroepen. Dit is een bijzonder cultuurlandschap met bijzonder cultuurhistorische elementen. Maar ook diverse sportgelegenheden, supermarkten en basisscholen zijn tegenover de woning gelegen. Ook uitvalswegen als het openbaar vervoer ligging op korte afstand van de woning.

Waarom wonen in Veenendaal Oost?
- Centrale ligging in Nederland, Vlakbij Utrecht en Arnhem;
- Tien minuten fietsen naar het levendige winkelhart van het centrum van Veenendaal;
- Prattenburgse bossen van de Utrechtse Heuvelrug op 15 minuten fietsen;
- Kindvriendelijke omgeving in groene wijk met alle voorzieningen op korte afstand;
- Station Veenendaal-De Klomp op 5 minuten fietsafstand.

Indeling:
Begane grond:
Via de entree met toilet en meterkast zijn alle vertrekken te bereiken. Deze kamer heeft een afmeting van ca. 20m² en wordt nu gebruikt als werkkamer, maar is praktisch in te zetten en is voorzien van een sfeervolle gietvloer, strakke wanden en heerlijk veel lichtinval. Door de fantastische ligging aan het water in combinatie met het 'Franse balkon' kan je hier optimaal genieten van een heerlijk uitzicht. Verder bevindt zich hier een praktische inpandige berging welke als wasruimte en opbergruimte gebruikt kan worden.

1e Verdieping:
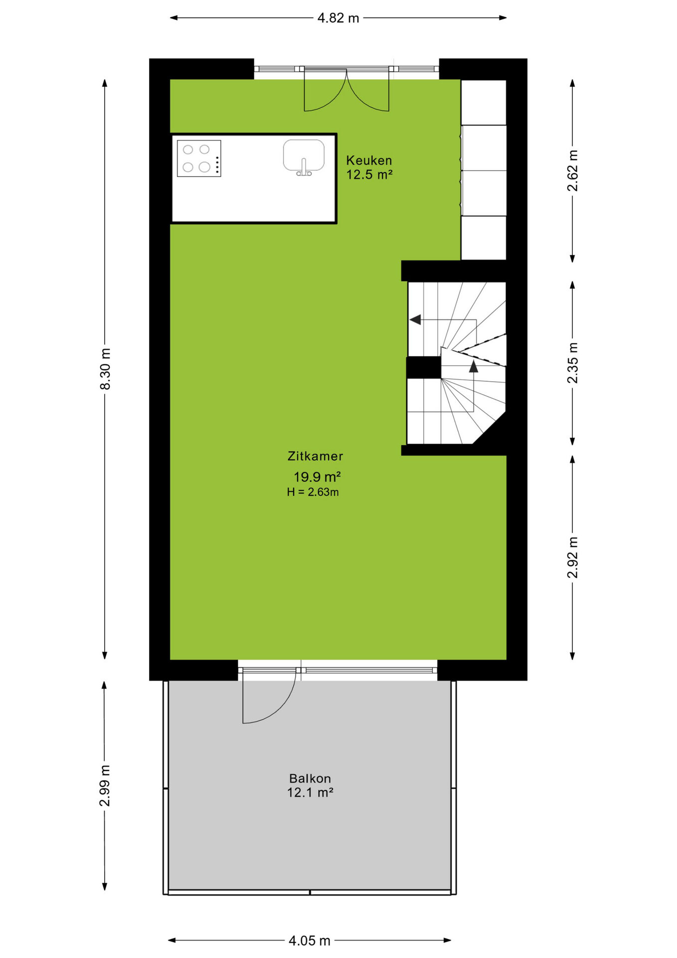
Via de vaste trap kom je bij de 1e verdieping. Door de ruime afmeting is er op de 1e verdieping plek genoeg voor een zitkamer, ruim eetgedeelte en ontstaat er een gezellige verbinding tussen het extra zitgedeelte en de keuken. De recent geplaatste (2023) open keuken heeft een moderne kleurstelling en is voorzien van een vaatwasser, kookplaat, afzuigkap, oven, koel-vriescombinatie, Quooker en een wijnklimaatkast. Door de grote raampartijen is de woning aan beide zijde voorzien van veel lichtinval en een fantastisch vrij uitzicht. Vanuit het zitgedeelte is er toegang tot het fraaie terras. Hier kan je optimaal in het zonnetje zitten en van het buitenleven genieten.

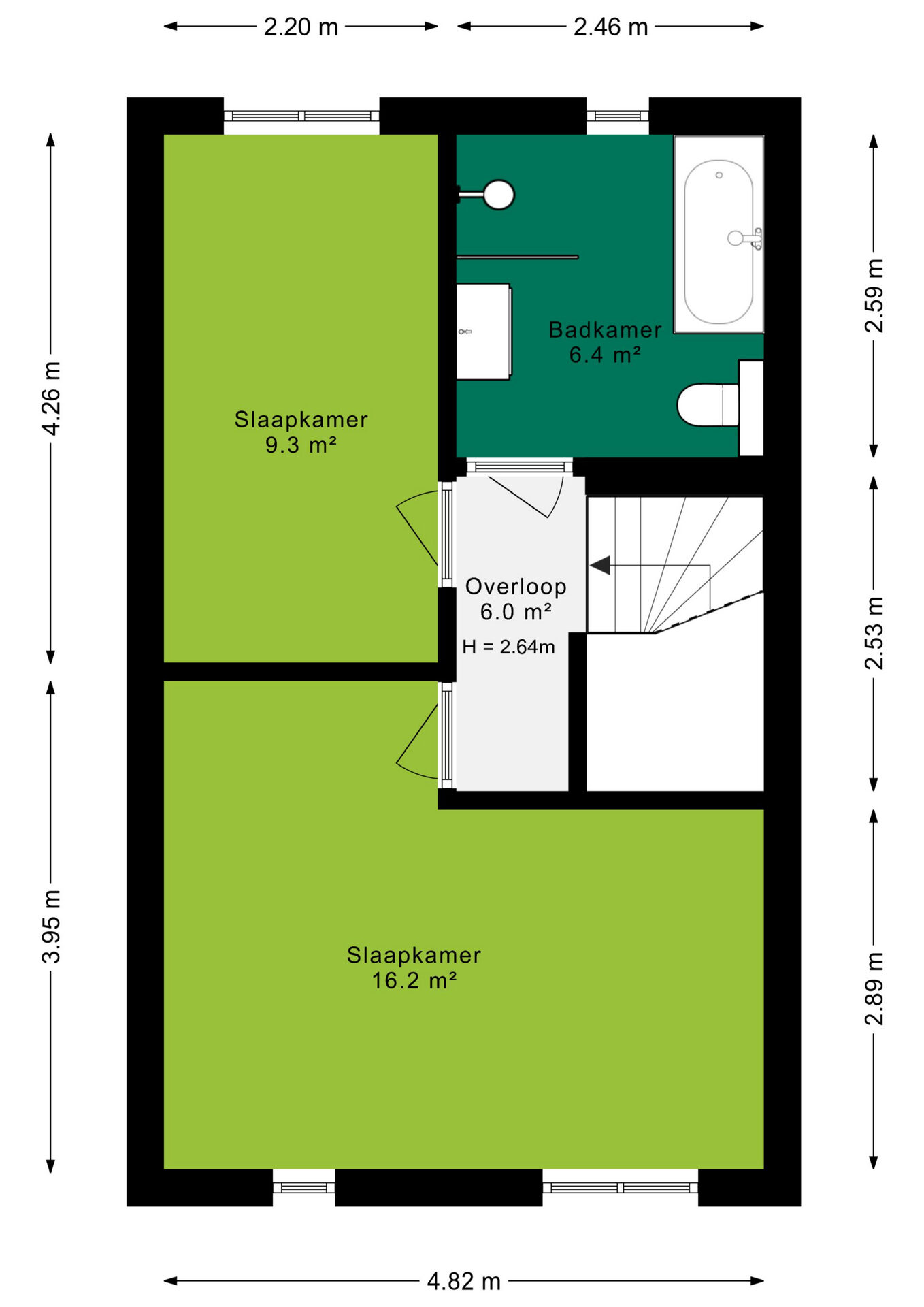
2e Verdieping:
Via de overloop is er toegang naar 2 volwaardige slaapkamers en de moderne badkamer. De slaapkamers hebben een afmeting van circa 16m² en 9,5m². De slaapkamers zijn voorzien van een gietvloer, neutrale wanden en voldoende lichtinval. De badkamer is betegeld in een moderne kleurstelling en beschikt over een ligbad, inloopdouche, toilet, wastafel met wastafelmeubel en een raam om extra goed te kunnen ventileren.

Bijzonderheden:
Verwarming: Stadsverwarming (Devo)
Warm water: Stadsverwarming (Devo)
Isolatie: Volledig geïsoleerd
Bouwjaar: 2023
Tuin- en balkonligging: Westen
Aanvaarding: In overleg

Extra's:
- Recent (2023) opgeleverde eengezinswoning aan het water;
- Meerdere indelingsmogelijkheden;
- Luxe keuken (uit 2023) met inbouwapparatuur;
- 2 volwaardige slaapkamers op de 2e verdieping;
- Voorzien van vloerverwarming- en koeling en energielabel A+++;
- Moderne badkamer met inloopdouche en ligbad
- Op loopafstand van alle voorzieningen.

Koopovereenkomst:
Bij de verkoop zal er een standaard NVM koopovereenkomst worden gehanteerd.

Koop je de woning zonder voorbehoud van financiering? Dan zullen wij een termijn hanteren van 14 dagen na het opstellen van de koopovereenkomst voor het storten van de bankgarantie/waarborgsom.

Deze informatie is door ons met de nodige zorgvuldigheid samengesteld. Onzerzijds wordt echter geen enkele aansprakelijkheid aanvaard voor enige onvolledigheid, onjuistheid of anderszins, dan wel de gevolgen daarvan. Alle opgegeven maten en oppervlakten zijn indicatief.
+ toon meer
deze woning is Verkocht

Stuivenbergheem 24 Veenendaal

Stuivenbergheem 24

3907 NH, Veenendaal
Ditters open huis: 5 april 2025 10:00 - 12:00 uur
Landelijke Open Huizen Route NVM: 5 april 2025 11:00 uur - 15:00 uur
Vanaf€ 515.000 k.k.

Schakel een aankoopmakelaar in.

Snel handelen helpt je jouw droomhuis te bemachtigen. Zo vergroot je de kans dat je er op tijd bij bent.
Veenendaal
verkocht

Of maak vrijblijvend een zoekprofiel aan.

Vergelijkbare woningen

Hypotheken

Onafhankelijk hypotheekadvies

  • Ligt jouw droomhuis binnen handbereik?
  • Wil je jouw huidige hypotheek verhogen?
  • Is er hypotheekruimte voor verduurzaming?

Blijf op de hoogte

Ontvang als eerste updates over nieuw aanbod en mis geen enkele kans om jouw droomwoning te vinden.

Gratis waardebepaling of verkoopgesprek

Met de vrijblijvende waardecheck weet je snel waar je aan toe bent. Onze makelaars kijken naar de lokale markt en vergelijkbare woningen in jouw buurt om een goede schatting te geven.

Realiseer al jouw woondromen met Ditters

Wij zijn een team van gedreven vastgoedexperts met een passie voor het maken van verbindingen – tussen kopers en verkopers, huurders en verhuurders. Met een frisse kijk op de makelaardij combineren we expertise met creativiteit. Onze makelaars luisteren écht en nemen de tijd om jouw wensen te begrijpen.


Bij Ditters sta je er niet alleen voor. We denken met je mee, begeleiden je in elke stap en zijn altijd bereikbaar voor vragen. Neem gerust contact met ons op – we helpen je graag verder!