Omschrijving

Op een fantastische plek met veel groen bevindt zich dit fraaie appartement op de zesde verdieping. De keuken is onlangs vernieuwd (december 2024 -> koper wordt hiervan de eerste gebruiker) en is uitgerust met moderne apparatuur, waaronder een inductieplaat, vaatwasser en oven. De locatie is bijna ideaal te noemen, met alle benodigde faciliteiten binnen handbereik en de uitvalswegen op korte afstand.

Bij het betreden van dit appartement zul je onmiddellijk de lichte en ruime woonkamer opmerken, die een open en uitnodigende sfeer creëert. Het gehele appartement is voorzien van isolerend dubbel glas. Het balkon is gelegen op het oosten hierdoor kan je heerlijk van het zonnetje en het buitenleven genieten. Plan gauw een bezichtiging, wij leiden je graag rond!

Dit appartementencomplex bevindt zich aan de rand van het groene Velp, op een steenworp afstand van het winkelcentrum bij het Churchillplein, waar je terecht kunt voor al je dagelijkse boodschappen. Voor natuurliefhebbers ligt het natuurgebied de Posbank/Veluwe binnen handbereik, terwijl belangrijke uitvalswegen zoals de A12, A348 en de N325 (Pleyroute) snel toegankelijk zijn vanaf de Aalscholversingel. Je hoeft je geen zorgen te maken over parkeren; er is voldoende parkeergelegenheid voor het complex. Daarnaast is er een gemeenschappelijke fietsenstalling beschikbaar voor het veilig stallen van je fiets.

Het appartementencomplex heeft een actieve Vereniging van Eigenaren (VvE) en de maandelijkse servicekosten bedragen €348,-, deze zijn inclusief het voorschot stookkosten maar ook het energieverbruik en (warm) water.

Voor de volledigheid hierbij een overzicht wat er in de servicekosten zit inbegrepen:
*voorschot stookkosten;
*water;
*energie;
*onderhoud buitenkant;
*onderhoud gezamenlijke ruimten;
*gebruik recreatieruimte;
*huismeester;
*onderhoud gemeenschappelijke tuin;
*afvaldienst;
*glas- en opstalverzekering;
*schoonmaak gemeenschappelijke ruimte;
*onderhoud lift.

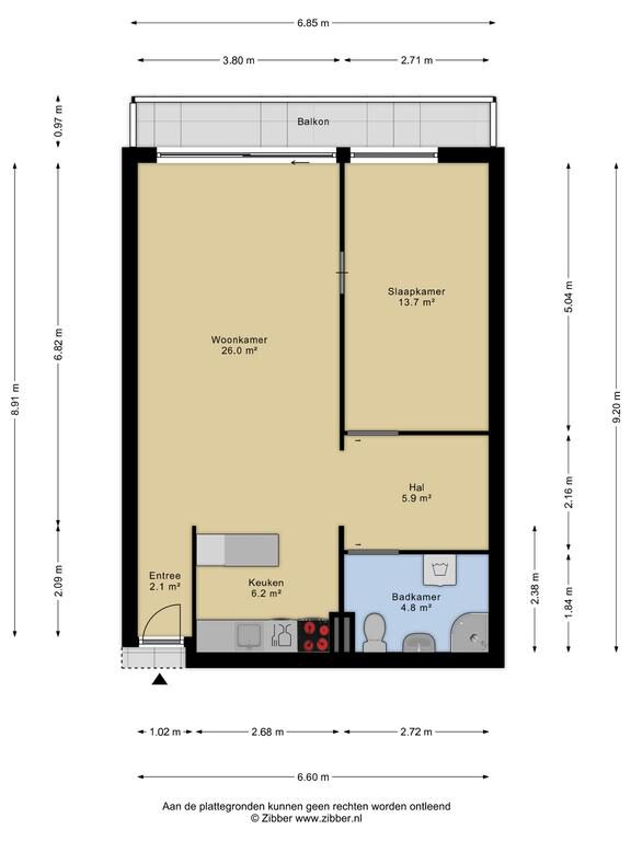
Indeling

Algemene entree:
Centrale entree met de brievenbussen en via het trappenhuis of de lift toegang tot het appartement.

Appartement:
De woning is toegankelijk via een entree met hal, die leidt naar een ruime en lichte woonkamer (26m2). Deze kamer is voorzien van een nette laminaatvloer en heeft veel lichtinval dankzij de grote ramen. Aansluitend vindt je de vernieuwde open keuken, uitgevoerd in een frisse kleurstelling, en uitgerust met een inductieplaat, vaatwasser en oven allemaal uit 2024. De koper wordt de eerste gebruiker van deze keuken.

De royale slaapkamer (ca 14m2) heeft ook een nette laminaatvloer en voldoende lichtinval. De badkamer heeft een inloopdouche (2022), een wastafel met bijbehorend meubel en een toilet. Bovendien bevindt de aansluiting voor witgoedapparatuur zich ook in deze ruimte, wat extra gemak biedt.

Balkon
Het balkon strekt zich uit over de gehele breedte van het appartement en is gunstig gelegen op het oosten, waardoor je fijn kunt genieten van het uitzicht en het buitenleven. Dit maakt het een ideale plek om te ontspannen.

De appartementen hebben een gezamenlijke fietsenberging op de begane grond.

Kenmerken:
Verwarming: blokverwarming
Warm water: centrale voorziening
Bouwjaar: 1976
Isolatie: dakisolatie (na-geïsoleerd), muurisolatie en dubbel glas
Balkonligging: Oost
Aanvaarding: in overleg

Extra's:
- Fraai appartement gelegen op de zesde verdieping;
- Ruime en lichte woonkamer;
- Recent geplaatste keuken (december 2024 -> koper wordt hiervan de eerste gebruiker);
- Ruime badkamer met wasmachine-aansluiting;
- Het dak is in 2020 vervangen;
- Balkon gelegen op het oosten;
- Gelegen nabij diverse voorzieningen en uitvalswegen;
- De servicekosten inclusief stookkosten, energiekosten en (warm)water bedragen €348,- per maand;
- Lid van een actieve Vereniging van Eigenaren;
- De niet-bewonersclausule wordt toegepast in de koopovereenkomst.

Koopovereenkomst:
Bij de verkoop zal er een standaard NVM koopovereenkomst worden gehanteerd. Bij woningen welke ouder zijn dan 20 jaar, worden de volgende clausules opgenomen in de koopovereenkomst:
- Asbestclausule;
- Ouderdomsclausule.

Koop je de woning zonder voorbehoud van financiering? Dan zullen wij een termijn hanteren van 14 dagen na het opstellen van de koopovereenkomst voor het storten van de bankgarantie/waarborgsom.

Deze informatie is door ons met de nodige zorgvuldigheid samengesteld. Onzerzijds wordt echter geen enkele aansprakelijkheid aanvaard voor enige onvolledigheid, onjuistheid of anderszins, dan wel de gevolgen daarvan. Alle opgegeven maten en oppervlakten zijn indicatief.
+ toon meer
deze woning is Verkocht

Aalscholversingel 104 Velp

Aalscholversingel 104

6883 BG, Velp
Ditters open huis: 5 april 2025 10:00 - 12:00 uur
Landelijke Open Huizen Route NVM: 5 april 2025 11:00 uur - 15:00 uur
Vanaf€ 200.000 k.k.

Schakel een aankoopmakelaar in.

Snel handelen helpt je jouw droomhuis te bemachtigen. Zo vergroot je de kans dat je er op tijd bij bent.
Velp
verkocht

Of maak vrijblijvend een zoekprofiel aan.

Vergelijkbare woningen

Hypotheken

Onafhankelijk hypotheekadvies

  • Ligt jouw droomhuis binnen handbereik?
  • Wil je jouw huidige hypotheek verhogen?
  • Is er hypotheekruimte voor verduurzaming?

Blijf op de hoogte

Ontvang als eerste updates over nieuw aanbod en mis geen enkele kans om jouw droomwoning te vinden.

Gratis waardebepaling of verkoopgesprek

Met de vrijblijvende waardecheck weet je snel waar je aan toe bent. Onze makelaars kijken naar de lokale markt en vergelijkbare woningen in jouw buurt om een goede schatting te geven.

Realiseer al jouw woondromen met Ditters

Wij zijn een team van gedreven vastgoedexperts met een passie voor het maken van verbindingen – tussen kopers en verkopers, huurders en verhuurders. Met een frisse kijk op de makelaardij combineren we expertise met creativiteit. Onze makelaars luisteren écht en nemen de tijd om jouw wensen te begrijpen.


Bij Ditters sta je er niet alleen voor. We denken met je mee, begeleiden je in elke stap en zijn altijd bereikbaar voor vragen. Neem gerust contact met ons op – we helpen je graag verder!