Omschrijving

Ruime maisonnette met twee slaapkamers en twee balkons gelegen in het centrum!

Ben je op zoek naar een sfeervolle maisonnette in het hart van Wageningen? Dan is Plantsoen 96 absoluut een bezoek waard. Dit charmante appartement biedt een ruime woonkamer met toegang tot een gezellig balkon, een praktische keuken en twee comfortabele slaapkamers. Geniet van de levendigheid van het stadsleven, terwijl je je helemaal thuis voelt in deze uitnodigende woning.

Mis deze kans niet en plan snel een bezichtiging!

Het appartementen complex ligt in een aantrekkelijke woonomgeving, geliefd om zijn sfeer en gunstige ligging, in het stadscentrum met gemakkelijke toegang tot winkels, cafés en andere voorzieningen. Tegelijkertijd genieten bewoners van de nabijheid van groene parken, ideaal voor ontspanning en recreatie.

Qua bereikbaarheid is Wageningen uitstekend gepositioneerd. Hoewel de stad zelf geen treinstation heeft, zijn er goede verbindingen met nabijgelegen steden zoals, Wageningen en Arnhem, waar je gemakkelijk op de trein kunt stappen. Vanaf het treinstation Ede-Wageningen rijden er veel bussen naar het centrum van Wageningen, wat zorgt voor een vlotte en efficiënte reis voor forenzen en bezoekers.

Voor automobilisten is Wageningen goed bereikbaar via verschillende snelwegen. De A12 en A50 liggen op korte rijafstand, waardoor steden zoals Utrecht, Arnhem en Nijmegen gemakkelijk te bereiken zijn. Deze strategische ligging maakt Wageningen aantrekkelijk voor zowel woon-werkverkeer als dagjesmensen die willen genieten van alles wat de stad en haar omgeving te bieden hebben.

Enkele pluspunten van het appartement:
+ Twee ruime slaapkamers;
+ Lift aanwezig;
+ Ruim balkon;
+ Voelt zeer ruim aan vanwege de lichtinval (veel ramen) en hoogteverschillen;
+ Gezonde VvE, maandelijkse bijdrage €275;
+ Parkeervergunning € 75 per jaar;
+ Berging op de begane grond;
+ Gelegen in het centrum van Wageningen.

Indeling
Appartementsgebouw: Het gebouw heeft een gezamenlijke entree met brievenbussen en een centrale hal waar de lift zich bevindt. Op de eerste verdieping van het gebouw bevindt zich een fietsenstalling waar je tevens met de lift kan komen. Ook is er een afgesloten trappenhuis naar het appartement.

Verdieping:
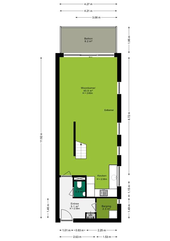
Bij binnenkomst in het appartement tref je een ruime hal aan. Deze hal biedt toegang tot de berging met wasmachine aansluitingen, de woonkamer en een separaat toilet. De woonkamer is een prachtige open ruimte met een stijlvolle open trap naar de eerste verdieping. Dankzij de grote raampartijen en openslaande deuren naar het balkon is de woonkamer heerlijk licht en uitnodigend.
Aan de andere kant van de woning bevindt zich de moderne keuken, die praktisch is opgesteld in een U-vorm. De keuken is voorzien van diverse apparatuur, waaronder:
- 4-pits gasstel
- Afzuigkap
- Magnetron
- Koelkast
- Vaatwasmachine

Verdieping:
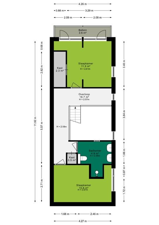
Via de open trap bereik je de eerste verdieping, waar je op de overloop uitkomt. Deze overloop geeft toegang tot twee ruime slaapkamers, een badkamer (vergroot) en een werkruimte. De slaapkamers bevinden zich aan beide uiteinden van de woning. Eén van de slaapkamers beschikt over een inbouwkast en een eigen balkon, terwijl de tweede slaapkamer is voorzien van een grote raampartij voor optimaal daglicht.

De badkamer is uitgerust met een dubbele wastafel met meubel, een toilet en een ruime douche.

Afmetingen
Inhoud woning: 367 m³
Woonoppervlakte: 94 m²

Bijzonderheden
Verwarming: CV-ketel, Remeha Tzerra Ace, vloerverwarming gedeeltelijk;
Warmwater: CV-ketel, Remeha Tzerra Ace;
Isolatie: Dubbel glas, HR+-glas;
Aanvaarding: In overleg.

Koopovereenkomst:
Bij de verkoop zal er een standaard NVM koopovereenkomst worden gehanteerd. Bij woningen welke ouder zijn dan 20 jaar, worden de volgende clausules opgenomen in de koopovereenkomst:
- Asbestclausule;
- Ouderdomsclausule

Koopt u de woning zonder voorbehoud van financiering? Dan zullen wij een termijn hanteren van 14 dagen na het opstellen van de koopovereenkomst voor het storten van de bankgarantie/waarborgsom.

Deze informatie is door ons met de nodige zorgvuldigheid samengesteld. Onzerzijds wordt echter geen enkele aansprakelijkheid aanvaard voor enige onvolledigheid, onjuistheid of anderszins, dan wel de gevolgen daarvan. Alle opgegeven maten en oppervlakten zijn indicatief.
+ toon meer
deze woning is Verkocht

Plantsoen 96 Wageningen

Plantsoen 96

6701 AT, Wageningen
Ditters open huis: 5 april 2025 10:00 - 12:00 uur
Landelijke Open Huizen Route NVM: 5 april 2025 11:00 uur - 15:00 uur
Vanaf€ 385.000 k.k.

Schakel een aankoopmakelaar in.

Snel handelen helpt je jouw droomhuis te bemachtigen. Zo vergroot je de kans dat je er op tijd bij bent.
Wageningen
verkocht

Of maak vrijblijvend een zoekprofiel aan.

Vergelijkbare woningen

Hypotheken

Onafhankelijk hypotheekadvies

  • Ligt jouw droomhuis binnen handbereik?
  • Wil je jouw huidige hypotheek verhogen?
  • Is er hypotheekruimte voor verduurzaming?

Blijf op de hoogte

Ontvang als eerste updates over nieuw aanbod en mis geen enkele kans om jouw droomwoning te vinden.

Gratis waardebepaling of verkoopgesprek

Met de vrijblijvende waardecheck weet je snel waar je aan toe bent. Onze makelaars kijken naar de lokale markt en vergelijkbare woningen in jouw buurt om een goede schatting te geven.

Realiseer al jouw woondromen met Ditters

Wij zijn een team van gedreven vastgoedexperts met een passie voor het maken van verbindingen – tussen kopers en verkopers, huurders en verhuurders. Met een frisse kijk op de makelaardij combineren we expertise met creativiteit. Onze makelaars luisteren écht en nemen de tijd om jouw wensen te begrijpen.


Bij Ditters sta je er niet alleen voor. We denken met je mee, begeleiden je in elke stap en zijn altijd bereikbaar voor vragen. Neem gerust contact met ons op – we helpen je graag verder!