Omschrijving

Welkom in dit geweldige appartement, perfect gelegen aan de rand van het bruisende centrum. Deze royale 2-kamerwoning biedt veel ruimte, verspreid over twee woonlagen. Geniet van de luxe van een eigen berging, een heerlijk buitenterras om te ontspannen én een eigen parkeerplaats in de parkeerkelder. Een fijne plek waar comfort en gemak samenkomen – voel je direct thuis.

Deze woning bevindt zich op een goede locatie, dichtbij het gezellige centrum, met alle voorzieningen binnen handbereik.
Op dinsdag en zaterdag haal je verse producten op de gezellige markt in het centrum. Binnen slechts 4 minuten wandelen sta je midden in het bruisende hart van de stad. Daarnaast is ook het station lekker dichtbij, ideaal voor woon-werkverkeer of een spontaan dagje uit.

Alle kenmerken op een rij:
* Royaal appartement met buitenterras;
* Een eigen parkeerplaats in de parkeerkelder;
* Je kunt je fiets parkeren in de algemene fietsenstalling;
* Binnen slechts 4 minuten wandelen sta je in de stad;
* Dichtbij het station en alle andere voorzieningen.

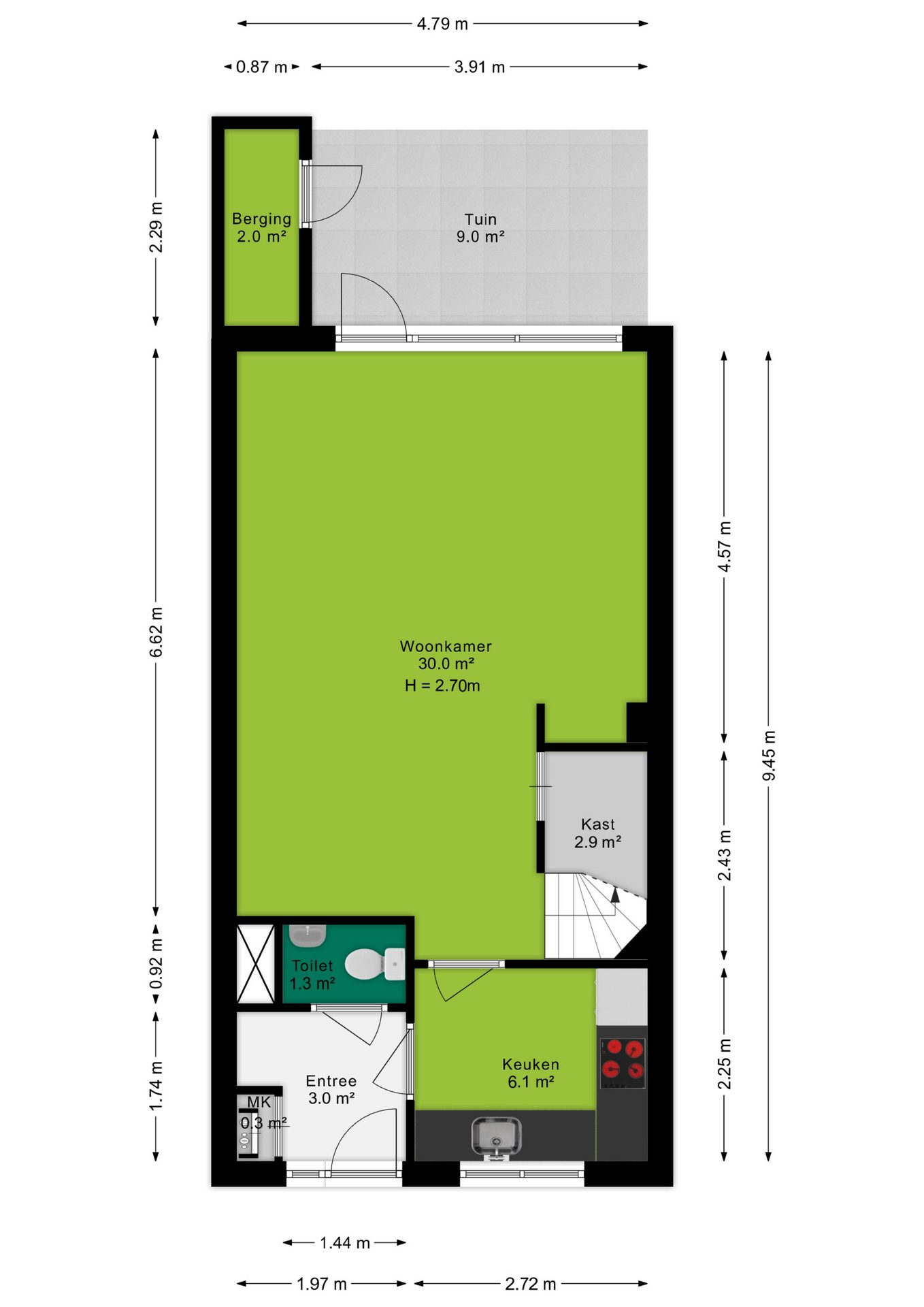
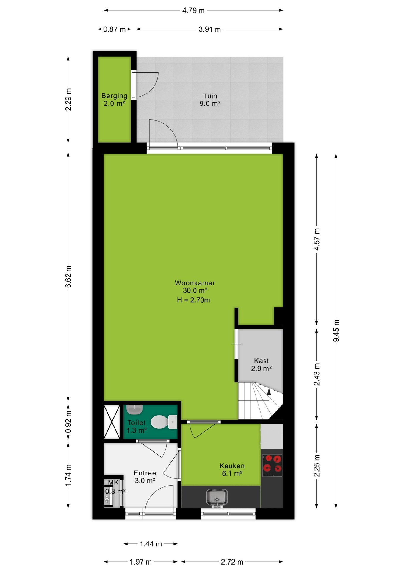
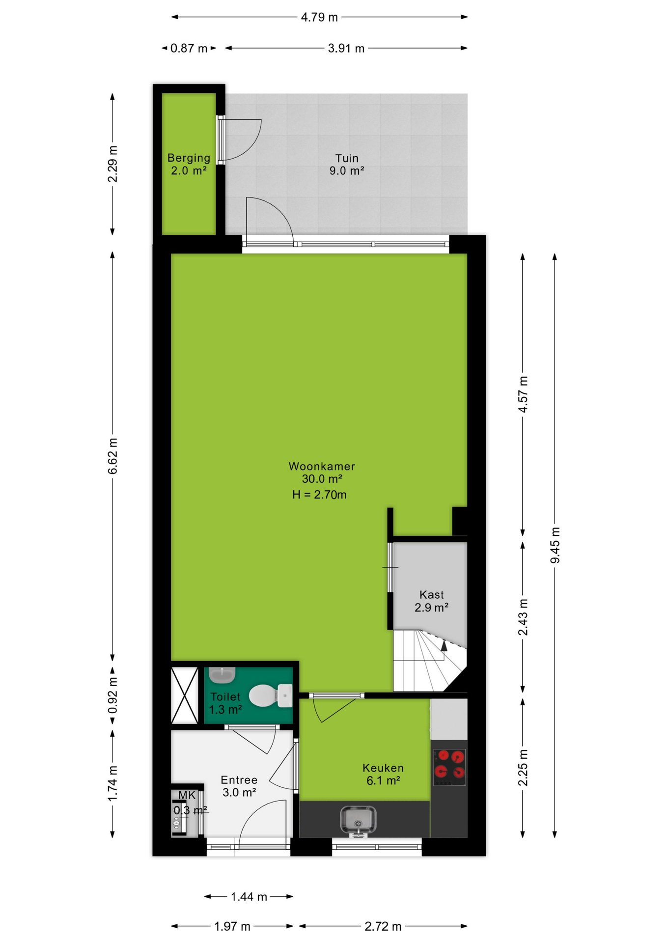
Begane grond
Wat een heerlijke woonkamer van 30m². Deze ruimte voelt lekker ruim aan en biedt volop mogelijkheden om een comfortabele zithoek en een gezellige eethoek te creëren. Extra fijn: de praktische trappenkast, perfect voor extra opbergruimte.
Aan de voorzijde van de woning vind je de stijlvolle keuken in een praktische L-opstelling met moderne apparatuur, waaronder een inductieplaat, vaatwasser, combi-oven en een koelkast.

Eerste verdieping
Via de vaste trap bereik je de eerste verdieping, waar je een fijne slaapkamer van ongeveer 12m² treft. Vanuit de slaapkamer heb je toegang tot de badkamer. Deze is compleet uitgerust met een wastafel met meubel, een inloopdouche én een wasmachineaansluiting.
Ook vind je op deze verdieping een kast waarin de Cv-ketel netjes is weggewerkt.

Tuin
Wat een pluspunt is het fijne terras dat direct grenst aan de woonkamer. Hier kun je heerlijk buiten zitten en genieten van de frisse lucht. Bovendien heb je vanaf het terras ook toegang tot de berging. En alsof dat nog niet genoeg is, beschikt de woning ook over een eigen parkeerplaats in de kelder én een algemene fietsenstalling.

Koopovereenkomst:
Bij de verkoop zal er een standaard NVM koopovereenkomst worden gehanteerd. Bij woningen welke ouder zijn dan 20 jaar, worden de volgende clausules opgenomen in de koopovereenkomst:
- Asbestclausule;
- Ouderdomsclausule.

Koop je de woning zonder voorbehoud van financiering? Dan zullen wij een termijn hanteren van 14 dagen na het opstellen van de koopovereenkomst voor het storten van de bankgarantie/waarborgsom.

Deze informatie is door ons met de nodige zorgvuldigheid samengesteld. Onzerzijds wordt echter geen enkele aansprakelijkheid aanvaard voor enige onvolledigheid, onjuistheid of anderszins, dan wel de gevolgen daarvan. Alle opgegeven maten en oppervlakten zijn indicatief.
+ toon meer

Video

3901 WH, Veenendaal

Blekerij 1 B

Zaterdag 2 augustus 10:00 - 12:00 uur

€ 339.000 k.k.
ditters makelaars veenendaal
Kopen
Financiële mogelijkheden

Waardecheck

Onze makelaars kijken naar de lokale markt en vergelijkbare woningen in jouw buurt om een goede schatting te geven.
Onze makelaars kijken naar de lokale markt en vergelijkbare woningen in jouw buurt om een goede schatting te geven.
Goed om te weten: deze waardecheck is vrijblijvend en geheel kosteloos
Onafhankelijk

Hypotheekadvies

We helpen je met het vergelijken van aanbiedingen van verschillende banken, zodat je de beste deal krijgt. 
Wij staan klaar om je te begeleiden, zodat je met vertrouwen de juiste hypotheek kunt kiezen.
Goed om te weten: dit adviesgesprek is vrijblijvend en geheel kosteloos

Wij helpen jou bij de keuze van de juiste polis.

Bij een onbezorgde toekomst horen ook goede verzekeringen die uitkeren bij bijvoorbeeld ziekte, schade of diefstal. Onze assurantieadviseurs helpen je bij de keuze van de juiste polis. In heldere taal.

Diverse verzekeringen

  • Opstalverzekering
  • Aansprakelijkheidsverzekering
  • Zorgverzekering
  • Reisverzekering

Buurtinformatie

Veenendaal, Achterkerk
Inwoners
Woningen
758
Inwoners
1.270
65
35
Koop / Huur
65% Huur35% Koop
Huishoudens
Eenpersoon
58.3%
Geen kinderen
25.8%
Met kinderen
15.2%
Leeftijdsopbouw in jaren
Buurt Landelijk
9.88.716.124.442.116.312.324.728.218.5

Locatie

Plattegronden

Klik op de plattegrond voor een grote weergave

Belangrijke documenten

Kadaster

Hier vind je de officiële eigendomsinformatie en de exacte perceelgrenzen.

Brochure

Bekijk hier alle details van de woning, compleet met foto's en beschrijvingen.

Meetrapport

Alle afmetingen van de woning duidelijk op een rij, inclusief totale oppervlakte.

Vragenlijst deelc

Hier deelt de verkoper belangrijke informatie over de staat en bijzonderheden van de woning.

Lijst van zaken

Overzicht van de zaken die achterblijven of worden meegenomen door de huidige bewoners.

Vragenlijst deelb

Hier deelt de verkoper belangrijke informatie over de staat en bijzonderheden van de woning.

Misschien interessant voor jou

Blijf op de hoogte

Ontvang als eerste updates over nieuw aanbod en mis geen enkele kans om jouw droomwoning te vinden.

Gratis waardebepaling of verkoopgesprek

Met de vrijblijvende waardecheck weet je snel waar je aan toe bent. Onze makelaars kijken naar de lokale markt en vergelijkbare woningen in jouw buurt om een goede schatting te geven.