Omschrijving

Zoek je comfort, ruimte, werkkamer of praktijkruimte met pantry aan huis en een fijne ligging? Dan is deze half vrijstaande woning aan de Koenestraat 40 in Veenendaal iets voor jou.

Met een eigen oprit mét laadpaal, vloerverwarming op zowel de begane grond als de eerste verdieping, een moderne keuken, kantoor- praktijkruimte op de begane grond, drie ruime slaapkamers, ouderslaapkamer met 'Frans balkon' en een open zolder vol mogelijkheden, biedt deze woning alle comfort. De royale, zonnige tuin op het zuiden en het A+ energielabel met 14 zonnepanelen maken het bovendien een toekomstbestendige keuze.

Je woont hier in een groene, kindvriendelijke wijk in Veenendaal-Oost. Het centrum bereik je gemakkelijk met de fiets en in de buurt vind je scholen, sportfaciliteiten, speelplekken en goede uitvalswegen. Natuurgebied De Groene Grens ligt op loopafstand—perfect voor een ommetje of een frisse neus.

Highlights;
+ Energiezuinige woning label A+;
+ Fijne locatie nabij natuurgebied De Groene Grens;
+ 14 PV panelen;
+ Meterkast met 3 fase aansluiting;
+ Kantoor- praktijkruimte met eigen pantry en toilet;
+ Mogelijkheid om slaap- en badkamer op de bgg. te realiseren;
+ Tuin op het zuiden;
+ Beregeningsysteem in de tuin;
+ Zonnescherm op de achtergevel;
+ Laadpaal 16Kw, 32Amp;
+ Rolluiken op zon energie;
+ Warmte regeling in de woning op afstand mogelijk via een app;
+ Recent buitenschilderwerk.

Ben je enthousiast geworden van deze prachtige woning, bel ons dan snel om een bezichtiging in te plannen!

Begane grond:
Via de entree, waar het toilet, de meterkast en de trapopgang zich bevinden, kom je in de ruime, lichte woonkamer. Dankzij de grote schuifpui en het bijzondere raam in de zijgevel valt er veel daglicht binnen en heb je mooi zicht op de tuin. Er is genoeg plek voor een royale hoekbank én gezellige zithoekjes. Aan de voorzijde liggen de keuken en het eetgedeelte; hier is ruimte voor een grote eettafel. De keuken is strak afgewerkt met witte kasten en een graniet antraciet grijs werkblad, en volledig uitgerust met inbouwapparatuur: inductiekookplaat, afzuigkap, oven, magnetron, koel-vriescombinatie, vaatwasser en een Quooker.

Vanuit de woonkamer bereik je ook een kantoor- praktijkruimte met pantry, toiletruimte en een berging. Ideaal voor wie thuiswerkt, een eigen bedrijf aan huis heeft of een fijne hobbyruimte zoekt. Deze ruimte heeft bovendien een eigen entree via de oprit. In de bijkeuken vind je een aanrechtblad en aansluitingen voor extra apparatuur, zoals een tweede koelkast of vriezer.

1e verdieping:
Vanaf de overloop heb je toegang tot drie slaapkamers van 16,7 m², 13,9 m² en 11,8 m². Alle kamers hebben meerdere raampartijen en de grootste slaapkamer beschikt over een ingebouwde kastenwand. De moderne badkamer van 7,3 m² is afgewerkt met witte en antracietgrijze tegels en voorzien van een ruime dubbele wastafelmeubel, toilet, douche en een luxe bubbelbad.

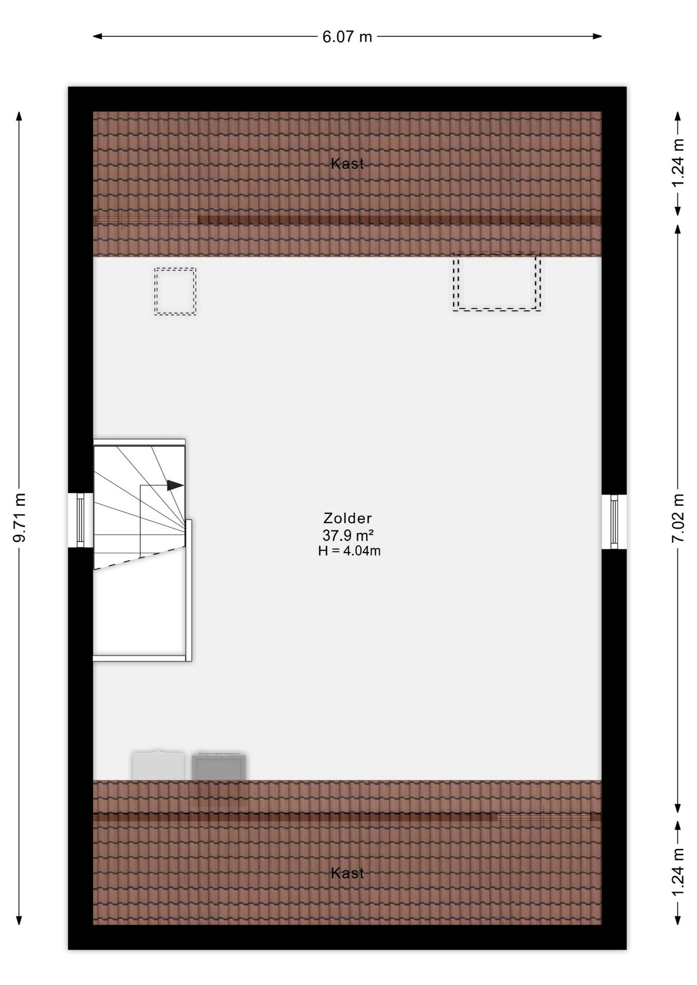
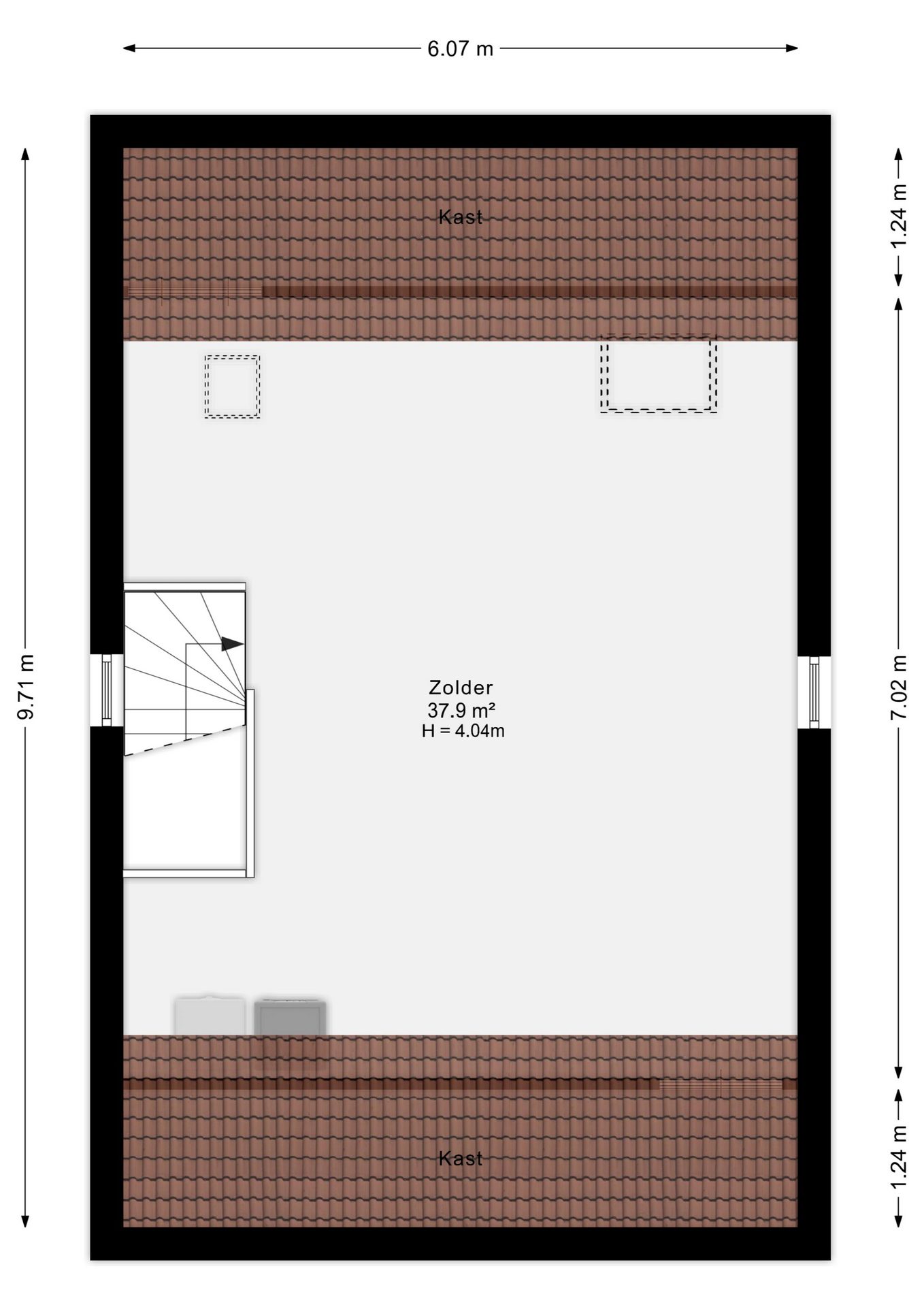
2e verdieping:
Via een vaste trap kom je op de open zolder van ca. 37,9 m². Hier kun je eenvoudig een vierde slaapkamer realiseren of juist een werk-/sportruimte maken. De te openen dakramen zorgen voor veel licht en ventilatie. Ook zijn hier de aansluitingen voor de wasmachine en droger aanwezig.

Tuin:
De op het zuiden gelegen, onderhoudsvriendelijke tuin heeft genoeg plaats voor een comfortabele loungehoek en een speelruimte voor de kinderen. Een heerlijke tuin om te genieten van het buitenleven, zowel in de zon als in de schaduw. Dankzij de handige zij-ingang kom je gemakkelijk met fietsen, kliko’s en tuingereedschap achterom.

Afmetingen
Woonkamer 41.8 m²
Keuken 16.8 m²
Kantoor 18.2 m²
Pantry 6.9 m?3
Berging 9.9 m²
Slaapkamer 1 16.7 m²
Slaapkamer 2 13.9 m²
Slaapkamer 3 11.8 m²
Badkamer 7.3 m²
Zolder 37.9 m²

Kenmerken:
- Bouwjaar 2010;
- Woonoppervlak 201 m²;
- Inhoud 790 m³;
- Aanvaarding in overleg.

Koopovereenkomst:
Bij de verkoop zal er een standaard NVM koopovereenkomst worden gehanteerd. Bij woningen welke ouder zijn dan 20 jaar, worden de volgende clausules opgenomen in de koopovereenkomst:
- Asbestclausule;
- Ouderdomsclausule.

Koopt u de woning zonder voorbehoud van financiering? Dan zullen wij een termijn hanteren van 6 weken na het opstellen van de koopovereenkomst voor het storten van de bankgarantie/waarborgsom.

Deze informatie is door ons met de nodige zorgvuldigheid samengesteld. Onzerzijds wordt echter geen enkele aansprakelijkheid aanvaard voor enige onvolledigheid, onjuistheid of anderszins, dan wel de gevolgen daarvan. Alle opgegeven maten en oppervlakten zijn indicatief.
+ toon meer
3907 LJ, Veenendaal

Koenestraat 40

Zaterdag 2 augustus 10:00 - 12:00 uur

€ 965.000 k.k.
ditters makelaars veenendaal
Kopen

Wat is jouw woning écht waard bij Ditters?

Waardecheck

Wij combineren lokale marktkennis met actuele data en ons grote zoekersbestand in de regio.

Je krijgt niet alleen een waarde, maar inzicht in hoe je de maximale verkoopopbrengst kunt realiseren.

Onze aanpak is strategisch, transparant en volledig afgestemd op jouw situatie.

Goed om te weten: deze waardecheck is vrijblijvend en geheel kosteloos
Onafhankelijk

Hypotheekadvies

We helpen je met het vergelijken van aanbiedingen van verschillende banken, zodat je de beste deal krijgt. 
Wij staan klaar om je te begeleiden, zodat je met vertrouwen de juiste hypotheek kunt kiezen.
Goed om te weten: dit adviesgesprek is vrijblijvend en geheel kosteloos

Wij helpen jou bij de keuze van de juiste polis.

Bij een onbezorgde toekomst horen ook goede verzekeringen die uitkeren bij bijvoorbeeld ziekte, schade of diefstal. Onze assurantieadviseurs helpen je bij de keuze van de juiste polis. In heldere taal.

Diverse verzekeringen

  • Opstalverzekering
  • Aansprakelijkheidsverzekering
  • Zorgverzekering
  • Reisverzekering

Locatie

Plattegronden

Klik op de plattegrond voor een grote weergave

Belangrijke documenten

vragenlijst

lijstvanzaken

vragenlijstc

brochure

Misschien interessant voor jou

Blijf op de hoogte

Ontvang als eerste updates over nieuw aanbod en mis geen enkele kans om jouw droomwoning te vinden.

Gratis waardebepaling of verkoopgesprek

Met de vrijblijvende waardecheck weet je snel waar je aan toe bent. Onze makelaars kijken naar de lokale markt en vergelijkbare woningen in jouw buurt om een goede schatting te geven.