Omschrijving

Unieke, volledig gerenoveerde stadswoning met hoge plafonds, loggia, tuin en eigen parkeerplaats in hartje Amersfoort!

De Zeeuwsestraat ligt op een uitstekende locatie in Amersfoort. Hogeschool, NS-station, Eemplein en het historische centrum zijn allemaal op loopafstand bereikbaar. In de directe omgeving vind je een ruim aanbod aan winkels, supermarkten, horeca en culturele voorzieningen. Dankzij de nabijheid van het station en uitvalswegen is de bereikbaarheid uitstekend, zowel met het openbaar vervoer als met de auto.

Op een centrale en levendige locatie in Amersfoort ligt deze bijzondere stadswoning met een speelse indeling, hoge plafonds, open trap, drie ruime slaapkamers, royale loggia en zelfs een voor- en zijtuin. De woning maakt deel uit van een modern complex uit 2004 en beschikt over een extra lange parkeerplaats voor twee auto’s én een ruime berging in de onderbouw.

Met een woonoppervlakte van circa 138 m², energielabel A en alle voorzieningen op loopafstand is dit een unieke kans voor wie comfortabel en stads wil wonen.

Zeeuwsestraat 32 is een unieke woning met de uitstraling van een stadswoning, waar ruimte, licht en comfort samenkomen. De hoekligging en hoge plafonds zorgen voor een open en lichte woonbeleving, terwijl de open trap en vide het geheel een speels en ruimtelijk karakter geven. Met drie volwaardige slaapkamers, een royale loggia en een praktische indeling is dit een woning die zich moeiteloos aanpast aan verschillende woonwensen. De eigen extra lange parkeerplaats voor twee auto’s en de ruime berging in de onderbouw maken het wooncomfort compleet. Dit alles op een centrale locatie in Amersfoort, op loopafstand van station, Eemplein en het bruisende stadscentrum.

Pluspunten
+ Volledig gerenoveerd in 2024/2025;
+ Nieuwe badkamer, keuken (Nolte) en bijkeuken, nieuwe vloeren;
+ Unieke locatie nabij het centrum en Amersfoort Centraal;
+ Unieke stadswoning;
+ Voor- en zijtuin;
+ Hoekligging met veel lichtinval;
+ Hoge plafonds en open vide;
+ Nieuwe parketvloer (eikenhout) in de woonkamer;
+ Drie ruime slaapkamers;
+ Nieuwe laminaatvloer op de eerste verdieping;
+ Royale loggia;
+ Extra lange parkeerplaats (geschikt voor 2 auto’s) in de parkeerkelder;
+ Energielabel A;
+ Gezamenlijke daktuin grenzend aan het privé zitgedeelte;
+ Actieve Vereniging van Eigenaren.

Indeling

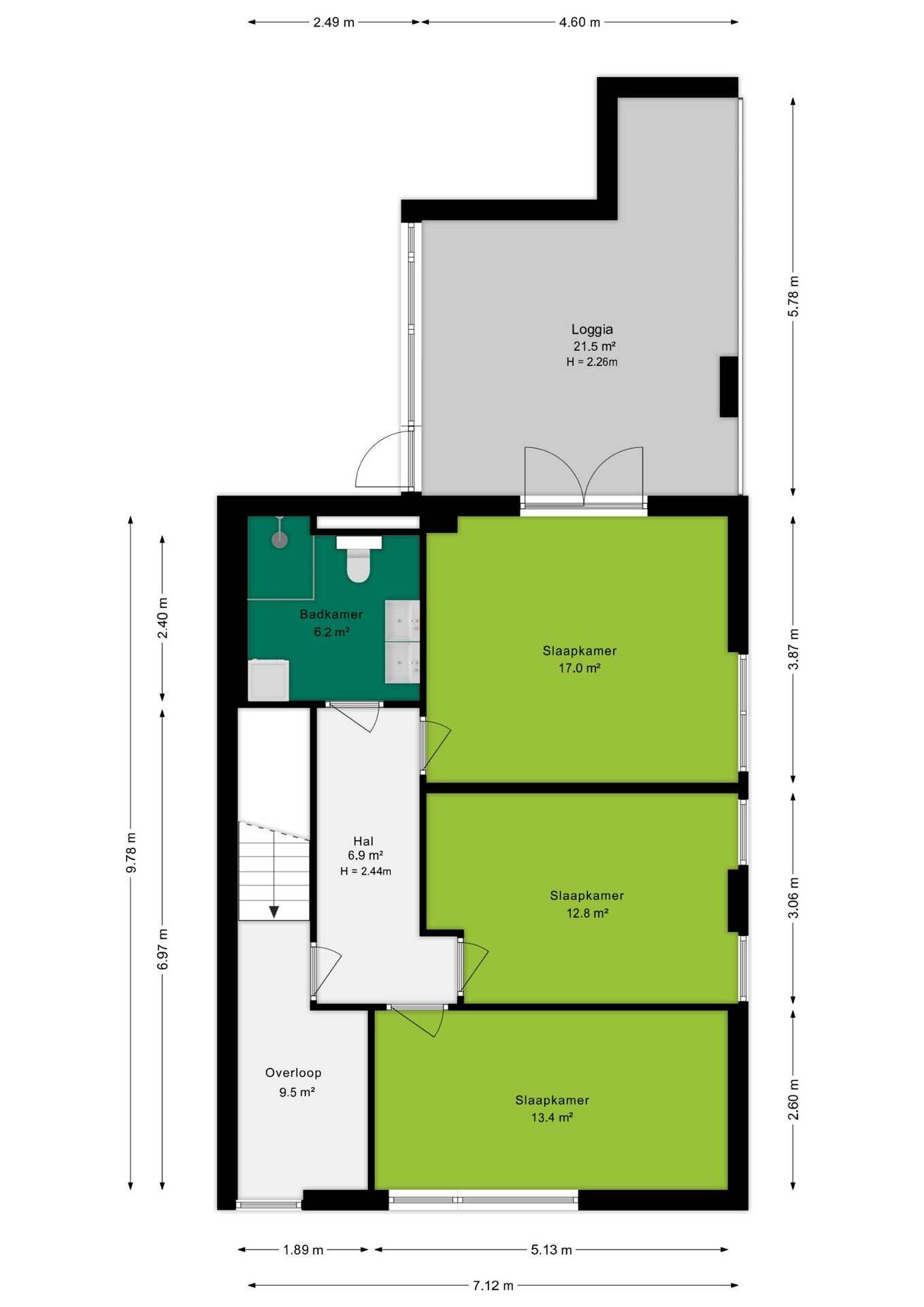
Begane grond
Via de entree op de begane grond kom je in de hal met toilet, meterkast en toegang tot de woonkamer.
De woonkamer is direct indrukwekkend door het hoge plafond, wat zorgt voor een ruimtelijk gevoel en veel daglicht. De open indeling en vide geven de woning een speels en modern karakter.

Aan de woonkamer grenst de nieuwe half open keuken (Nolte), die in verbinding staat met een praktische bijkeuken waar de C.V.-ketel is opgesteld. Daarnaast bevindt zich in de woonkamer bij de trapopgang nog een extra provisie-/bergruimte, ideaal voor voorraad of huishoudelijke spullen.

Via de open trap en vide bereik je de verdieping.

Eerste verdieping
Op de overloop heb je toegang tot drie ruim bemeten slaapkamers en de badkamer. De overloop is zeer ruim en beschikt over twee inbouw-kledingkasten.

De nieuwe badkamer is compleet uitgevoerd en beschikt over een douche, toilet wastafel en aansluitingen voor wasmachine en droger.

Vanuit één van de slaapkamers, momenteel in gebruik als werkkamer, heb je toegang tot de royale loggia.

De gehele eerste verdieping beschikt over een nieuwe laminaatvloer.

Buitenruimte
De royale loggia is een fijne en beschutte plek waar je het hele jaar door buiten kunt zitten. De loggia is uitermate geschikt om in alle privacy te kunnen ontspannen, waar je vrienden kunt ontvangen en de kinderen veilig kunnen spelen. Vanuit de loggia heb je via een toegangsdeur direct toegang tot de gemeenschappelijke binnentuin, die exclusief beschikbaar is voor bewoners van het complex. Daarnaast beschikt de woning over de naastgelegen tuin, wat zorgt voor extra buitenruimte.

Parkeren en berging
De woning beschikt over een extra lange parkeerplaats in de onderbouw, geschikt voor twee auto’s. Daarnaast is er een ruime privéberging aanwezig, ideaal voor fietsen, opslag of hobbygebruik.

Afmetingen
Woonoppervlakte 138 m²
Inhoud woning 613 m³

Bijzonderheden
Verwarming: C.V.-ketel
Warm water: C.V.-ketel
Isolatie: volledig geïsoleerd
Servicekosten: € 348,00 per maand;
Bouwjaar: 2004
Energielabel: A
Aanvaarding: in overleg

Koopovereenkomst
Bij de verkoop zal een standaard NVM-koopovereenkomst worden gehanteerd. Bij woningen welke ouder zijn dan 20 jaar, worden de volgende clausules opgenomen in de koopovereenkomst:
- Ouderdomsclausule.

Bij aankoop zonder financieringsvoorbehoud geldt een termijn van zes weken na het opstellen van de koopovereenkomst voor het storten van de waarborgsom of bankgarantie.

Deze informatie is door ons met de nodige zorgvuldigheid samengesteld. Onzerzijds wordt echter geen enkele aansprakelijkheid aanvaard voor enige onvolledigheid, onjuistheid of anderszins, dan wel de gevolgen daarvan. Alle opgegeven maten en oppervlakten zijn indicatief.
+ toon meer
deze woning is Verkocht

Zeeuwsestraat 32 Amersfoort

Zeeuwsestraat 32

3812 GG, Amersfoort
Ditters open huis: 5 april 2025 10:00 - 12:00 uur
Landelijke Open Huizen Route NVM: 5 april 2025 11:00 uur - 15:00 uur
Vanaf€ 640.000 k.k.

Schakel een aankoopmakelaar in.

Snel handelen helpt je jouw droomhuis te bemachtigen. Zo vergroot je de kans dat je er op tijd bij bent.
Amersfoort
verkocht

Of maak vrijblijvend een zoekprofiel aan.

Vergelijkbare woningen

Hypotheken

Onafhankelijk hypotheekadvies

  • Ligt jouw droomhuis binnen handbereik?
  • Wil je jouw huidige hypotheek verhogen?
  • Is er hypotheekruimte voor verduurzaming?

Blijf op de hoogte

Ontvang als eerste updates over nieuw aanbod en mis geen enkele kans om jouw droomwoning te vinden.

Gratis waardebepaling of verkoopgesprek

Met de vrijblijvende waardecheck weet je snel waar je aan toe bent. Onze makelaars kijken naar de lokale markt en vergelijkbare woningen in jouw buurt om een goede schatting te geven.

Realiseer al jouw woondromen met Ditters

Wij zijn een team van gedreven vastgoedexperts met een passie voor het maken van verbindingen – tussen kopers en verkopers, huurders en verhuurders. Met een frisse kijk op de makelaardij combineren we expertise met creativiteit. Onze makelaars luisteren écht en nemen de tijd om jouw wensen te begrijpen.


Bij Ditters sta je er niet alleen voor. We denken met je mee, begeleiden je in elke stap en zijn altijd bereikbaar voor vragen. Neem gerust contact met ons op – we helpen je graag verder!