Omschrijving

Gelegen aan een karakteristieke laan met fraaie fonteinen en hoge bomen, in de gewilde en kindvriendelijke wijk Nieuwland, vind je deze schitterende en ruime tussenwoning. Op een perceel van maar liefst 155 m² biedt deze woning volop ruimte voor een gezin dat op zoek is naar comfort, rust en een fijne plek om te wonen. De woning is ideaal gesitueerd op een steenworp afstand van alle dagelijkse voorzieningen en ligt op loopafstand van het winkelcentrum De Nieuwe Hof, waar je terecht kunt voor je dagelijkse boodschappen. Hier vind je onder andere een supermarkt, een bloemist en een bakker, wat het dagelijkse leven extra makkelijk maakt.

Binnen 6 minuten ben je met de auto op de A1 of A28, waardoor je snel en eenvoudig toegang hebt tot belangrijke verbindingswegen. Ook het bruisende centrum van Amersfoort is binnen 10 minuten bereikbaar, waar je kunt genieten van de vele winkels, restaurants, en culturele voorzieningen die de stad te bieden heeft.

Wat deze woning extra aantrekkelijk maakt, is de nabijheid van allerlei voorzieningen die ideaal zijn voor gezinnen. Van lagere scholen tot kinderspeelplaatsen, van sportscholen tot openbaar vervoer, alles is op korte afstand gelegen. Hierdoor geniet je niet alleen van de rust van een fijne woonwijk, maar ook van het gemak van een praktische en comfortabele leefomgeving.

Pluspunten van de woning op een rij:

+ Prettige brede laan met veel groen en parkeergelegenheid;
+ Ruime woning met uitbouw (van 2 meter) op de begane grond en een inhoud van maar liefst 497 m³;
+ Maar liefst 5 slaapkamers;
+ HR++ en HR beglazing;
+ Energielabel A;
+ Platte dakbedekking vernieuwd van het hoofd dak en de uitbouw (2024);
+ Begane grond is aan de achterzijde voorzien van hardhouten kozijnen;
+ Luxe binnendeuren op de begane grond met houten kozijnen;
+ Buitenschilderwerk is de afgelopen jaren goed bijgehouden;
+ Diepe en zonnige tuin met stenen berging en achterom.

Indeling van de woning
Begane grond:

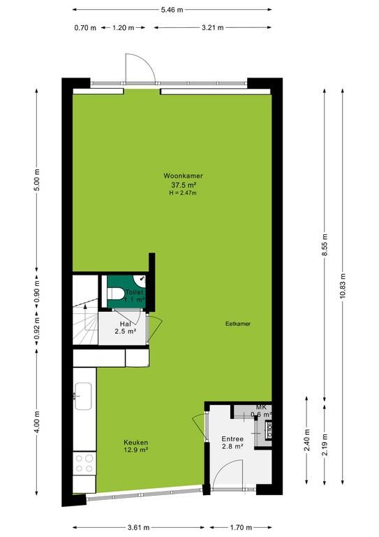
Via de voortuin loop je naar de overdekte entree van deze zeer goed onderhouden woning. Bij binnenkomst kom je in de hal die toegang geeft tot de meterkast en de woonkamer.
De woonkamer is een grote zitkamer gelegen aan de achterzijde van de woning met een prachtige eikenhouten vloer, veel daglicht dankzij de grote raampartijen en meer dan genoeg ruimte voor een zithoek en een tv-meubel. Vanuit de woonkamer is er toegang tot het trappenhuis naar de eerste verdieping. Hier bevindt zich ook het toilet. Deze is voorzien van een fonteintje en een zwevend toilet.
Vanuit het ruime zitgedeelte is er toegang tot de achtertuin.

De keuken bevindt zich aan de voorzijde van de woning en is voorzien van diverse inbouwapparatuur waaronder begrepen:
+ Koel-/vriescombinatie;
+ Vaatwasser;
+ Gaskookplaat;
+ Magnetron;
+ Afzuigkap.

Eerste verdieping:
Vanaf de overloop zijn drie slaapkamers, de badkamer en de tweede toiletruimte te bereiken. De slaapkamer aan de achterzijde is een ruime hoofdslaapkamer. Aan de voorzijde zijn de andere twee slaapkamers. In de slaapkamers ligt laminaat op de vloer.
De badkamer is ingedeeld met een:
+ Een ruime douche met een glaswand;
+ Designradiator;
+ Wastafel met dubbele kraan, spiegel en wastafelmeubel;
+ Zowel de wanden als de vloer zijn volledig betegeld.

Separaat van de badkamer is er nog een tweede toilet aanwezig.

Tweede verdieping:
De tweede verdieping heeft een zeer ruime voorzolder, deze geeft toegang tot twee slaapkamers. Op de voorzolder zijn de C.V.-ketel, wasmachine en droger geïnstalleerd, ook is hier een extra wastafel aanwezig. Daarnaast is er meer dan voldoende bergruimte aanwezig en lichtinval middels een dakraam. De voorzijde is recht opgetrokken wat ervoor zorgt dat er twee ruime slaapkamers aanwezig zijn.

Buiten:
De tuin is fraai aangelegd en voorzien van een terras met borders en vaste beplanting. Door de vrije ligging is dit een prettige plek met veel privacy. Achterin de tuin bevindt zich de vrijstaande stenen berging. De tuin is via een achterom te bereiken.

Afmetingen
Woonoppervlakte 149 m²
Perceeloppervlakte 155 m²
Inhoud woning 497 m³

Bijzonderheden
Verwarming: C.V.-ketel;
Isolatie: Geheel;
Energielabel: A;
Bouwjaar: 1995;
Aanvaarding: In overleg;

Koopovereenkomst:
Bij de verkoop zal er een standaard NVM koopovereenkomst worden gehanteerd. Bij woningen welke ouder zijn dan 20 jaar, worden de volgende clausules opgenomen in de koopovereenkomst:
- Asbestclausule;
- Ouderdomsclausule.

Koopt u de woning zonder voorbehoud van financiering? Dan zullen wij een termijn hanteren van 14 dagen na het opstellen van de koopovereenkomst voor het storten van de bankgarantie/waarborgsom.

Deze informatie is door ons met de nodige zorgvuldigheid samengesteld. Onzerzijds wordt echter geen enkele aansprakelijkheid aanvaard voor enige onvolledigheid, onjuistheid of anderszins, dan wel de gevolgen daarvan. Alle opgegeven maten en oppervlakten zijn indicatief.
+ toon meer
deze woning is Verkocht

Patricierslaan 68 Amersfoort

Patricierslaan 68

3824 CD, Amersfoort
Ditters open huis: 5 april 2025 10:00 - 12:00 uur
Landelijke Open Huizen Route NVM: 5 april 2025 11:00 uur - 15:00 uur
Vanaf€ 539.000 k.k.

Schakel een aankoopmakelaar in.

Snel handelen helpt je jouw droomhuis te bemachtigen. Zo vergroot je de kans dat je er op tijd bij bent.
Amersfoort
verkocht

Of maak vrijblijvend een zoekprofiel aan.

Vergelijkbare woningen

Hypotheken

Onafhankelijk hypotheekadvies

  • Ligt jouw droomhuis binnen handbereik?
  • Wil je jouw huidige hypotheek verhogen?
  • Is er hypotheekruimte voor verduurzaming?

Blijf op de hoogte

Ontvang als eerste updates over nieuw aanbod en mis geen enkele kans om jouw droomwoning te vinden.

Gratis waardebepaling of verkoopgesprek

Met de vrijblijvende waardecheck weet je snel waar je aan toe bent. Onze makelaars kijken naar de lokale markt en vergelijkbare woningen in jouw buurt om een goede schatting te geven.

Realiseer al jouw woondromen met Ditters

Wij zijn een team van gedreven vastgoedexperts met een passie voor het maken van verbindingen – tussen kopers en verkopers, huurders en verhuurders. Met een frisse kijk op de makelaardij combineren we expertise met creativiteit. Onze makelaars luisteren écht en nemen de tijd om jouw wensen te begrijpen.


Bij Ditters sta je er niet alleen voor. We denken met je mee, begeleiden je in elke stap en zijn altijd bereikbaar voor vragen. Neem gerust contact met ons op – we helpen je graag verder!