Omschrijving

Deze ruime eengezinswoning met 4 slaapkamers, 9 zonnepanelen, volledige isolatie en energielabel A is gelegen in een rustige en kindvriendelijke woonwijk.

De woning is gebouwd in 1989, uitstekend onderhouden en biedt veel comfort, waaronder een lichte woonkamer, een moderne badkamer en toilet uit 2020, vier volwaardige slaapkamers en een vrijstaande houten berging in de achtertuin. De diepe tuin biedt veel privacy, is voorzien van een overkapping en heeft een handige achterom, ideaal voor praktische toegang en buitenontspanning. Daarnaast zijn belangrijke zaken zoals een nieuwe CV-ketel (2021) en een vernieuwde meterkast (2023) aanwezig.

Deze woning is gelegen in een rustige en kindvriendelijke buurt met alle voorzieningen binnen handbereik. Scholen, winkels en openbaar vervoer zijn dichtbij, en met de auto ben je snel op de A12 en A50. Voor natuurliefhebbers liggen het natuurgebied De Liemers en het centrum van Arnhem op korte afstand, wat zorgt voor een fijne balans tussen rust en levendigheid.

Alle feiten op een rij:
• Woonoppervlak van 108 m²
• Moderne badkamer en toilet uit 2020
• Vier volwaardige slaapkamers
• Volledig geïsoleerd en 9 zonnepanelen zorgen voor energielabel A
• Vernieuwde meterkast uit 2023
• Vrij uitzicht aan de voorzijde
• Rustige ligging met voldoende openbare parkeergelegenheid
• Vrij uitzicht aan de voorzijde
• Kunststof kozijnen aan de voorzijde, houten kozijnen aan de achterzijde, geschilderd in 2025
• Glasvezel aansluiting aanwezig

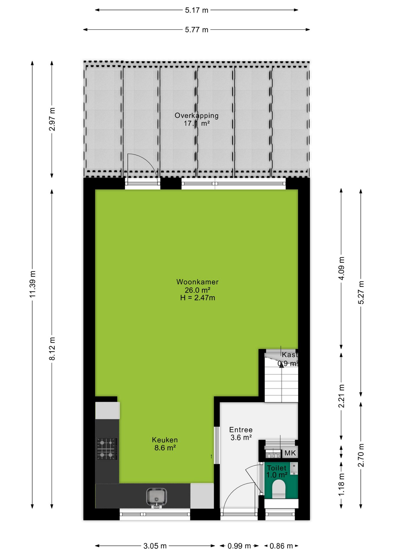
Indeling
Begane grond
Je komt binnen in een uitnodigende hal met een strakke uitstraling, waar je direct toegang hebt tot een modern toilet uit 2020 met fonteintje en de meterkast uit 2023. Vanuit hier loop je door naar de woonkamer, een fijne leefruimte met veel natuurlijk daglicht. Via de deur stap je zo de diepe tuin in, waar je onder de veranda heerlijk kunt ontspannen of samen kunt eten, zelfs als het weer wat minder is.
Aan de voorzijde van de woning bevindt zich de open keuken, gerenoveerd in 2015. Deze is praktisch ingedeeld, met volop ruimte voor al je apparatuur én een vrij uitzicht naar buiten, ideaal om tijdens het koken even naar de straat te turen.
Onder de trap bevindt zich een compacte trapkast. Deze is vanuit de woonkamer gemakkelijk te bereiken, perfect om bijvoorbeeld voorraad, speelgoed of schoonmaakspullen in op te bergen.

Eerste verdieping
Via de overloop kom je uit bij drie kamers. Aan de voorzijde ligt de royale master bedroom, voorzien van HR++ glas voor extra comfort en isolatie. Aan de achterzijde bevinden zich twee kamers, waarvan er nu één als inloopkast is ingericht en de andere als werkkamer. Beide ruimtes zijn eenvoudig om te vormen tot volwaardige slaapkamers, ideaal voor kinderen, gasten of een thuiskantoor.
De badkamer uit 2020 is modern en compleet, met een ruime inloopdouche, een wastafelmeubel en een tweede toilet. Alles is strak afgewerkt en comfortabel in gebruik.

Tweede verdieping
De zolder is een verrassend grote en flexibele ruimte, perfect te gebruiken als vierde slaapkamer, hobbyruimte of werkplek. Dankzij de hoogte van ruim 3,5 meter voelt het hier heerlijk ruimtelijk aan. Achter de knieschotten is voldoende opbergruimte gecreëerd. Ook vind je hier de CV-installatie uit 2021 én de aansluitingen voor wasmachine en droger, zo heb je alle rust en ruimte om te wassen en drogen zonder geluidsoverlast in de woon- of slaapkamers.

Tuin
De zonnige achtertuin ligt op het noorden en beschikt over een vrijstaande houten berging, ideaal voor fietsen en tuinspullen. Door de diepte van de tuin heb je hier overdag nog volop zon én privacy, perfect voor wie houdt van een rustige buitenplek. Bovendien is er een handige achterom, wat zorgt voor extra gemak en toegang. Voor de woning is er ruime openbare parkeergelegenheid, waardoor je altijd gemakkelijk een plekje vindt.

Kenmerken:
Verwarming: C.V.-ketel (bouwjaar 2021)
Warm water: C.V.-ketel (bouwjaar 2021)
Bouwjaar: 1989
Isolatie: volledig geïsoleerd
Tuinligging: noorden
Aanvaarding: in overleg

Koopovereenkomst:
Bij de verkoop zal er een standaard NVM koopovereenkomst worden gehanteerd.

Bij woningen welke ouder zijn dan 20 jaar, worden de volgende clausules opgenomen in de koopovereenkomst:
- Asbestclausule
- Ouderdomsclausule

Koop je de woning zonder voorbehoud van financiering? Dan zullen wij een termijn hanteren van 14 dagen na het opstellen van de koopovereenkomst voor het storten van de bankgarantie/waarborgsom.

Deze informatie is door ons met de nodige zorgvuldigheid samengesteld. Onzerzijds wordt echter geen enkele aansprakelijkheid aanvaard voor enige onvolledigheid, onjuistheid of anderszins, dan wel de gevolgen daarvan. Alle opgegeven maten en oppervlakten zijn indicatief.
+ toon meer

Video

,

Glenn Millerstraat 11

Zaterdag 2 augustus 10:00 - 12:00 uur

€ 400.000 k.k.
ditters makelaars arnhem
Kopen

Wat is jouw woning écht waard bij Ditters?

Waardecheck

Wij combineren lokale marktkennis met actuele data en ons grote zoekersbestand in de regio.

Je krijgt niet alleen een waarde, maar inzicht in hoe je de maximale verkoopopbrengst kunt realiseren.

Onze aanpak is strategisch, transparant en volledig afgestemd op jouw situatie.

Goed om te weten: deze waardecheck is vrijblijvend en geheel kosteloos
Onafhankelijk

Hypotheekadvies

We helpen je met het vergelijken van aanbiedingen van verschillende banken, zodat je de beste deal krijgt. 
Wij staan klaar om je te begeleiden, zodat je met vertrouwen de juiste hypotheek kunt kiezen.
Goed om te weten: dit adviesgesprek is vrijblijvend en geheel kosteloos

Wij helpen jou bij de keuze van de juiste polis.

Bij een onbezorgde toekomst horen ook goede verzekeringen die uitkeren bij bijvoorbeeld ziekte, schade of diefstal. Onze assurantieadviseurs helpen je bij de keuze van de juiste polis. In heldere taal.

Diverse verzekeringen

  • Opstalverzekering
  • Aansprakelijkheidsverzekering
  • Zorgverzekering
  • Reisverzekering

Buurtinformatie

, Rijkerswoerd-West
Inwoners
Woningen
2.015
Inwoners
4.565
47
53
Koop / Huur
47% Huur53% Koop
Huishoudens
Eenpersoon
36.4%
Geen kinderen
24.1%
Met kinderen
39.3%
Leeftijdsopbouw in jaren
Buurt Landelijk
15.713.521.035.614.116.312.324.728.218.5

Misschien interessant voor jou

Blijf op de hoogte

Ontvang als eerste updates over nieuw aanbod en mis geen enkele kans om jouw droomwoning te vinden.

Gratis waardebepaling of verkoopgesprek

Met de vrijblijvende waardecheck weet je snel waar je aan toe bent. Onze makelaars kijken naar de lokale markt en vergelijkbare woningen in jouw buurt om een goede schatting te geven.