Omschrijving

Welkom bij Emmenhoeve 20 in het pittoreske Bennekom, waar je een tussenwoning vindt met vier slaapkamers, een moderne keuken en acht zonnepanelen, klaar om jouw nieuwe thuis te worden.

Hier woon je in rust en natuur, terwijl je geniet van moderne gemakken. De woning ligt in een rustige, groene wijk, perfect voor gezinnen en natuurliefhebbers. Omgeven door de prachtige Veluwe en Utrechtse Heuvelrug, kun je dagelijks genieten van wandel- en fietstochten in de frisse buitenlucht.

Alle voorzieningen zijn dichtbij. Het gezellige dorpscentrum van Bennekom biedt winkels, supermarkten, restaurants en cafés. Scholen, sportfaciliteiten en medische voorzieningen zijn ook binnen handbereik, wat jouw dagelijks leven aangenaam en gemakkelijk maakt. Vervoersmogelijkheden zijn uitstekend. Met regelmatige busdiensten naar Ede en Wageningen en het nabijgelegen treinstation Ede-Wageningen, ben je goed verbonden met steden als Arnhem en Utrecht. De snelweg A12 is snel bereikbaar, waardoor je eenvoudig de rest van Nederland kunt verkennen.

Alle feiten op een rij:
- Instapklare woning met 100 m² woonoppervlakte
- De beschikking over 4 slaapkamers en een bergvliering
- Moderne badkamer in lichte kleurstelling
- De woning beschikt over energielabel A en 8 stuks zonnepanelen.
- Verzorgde tuin gelegen op het noordoosten

Indeling
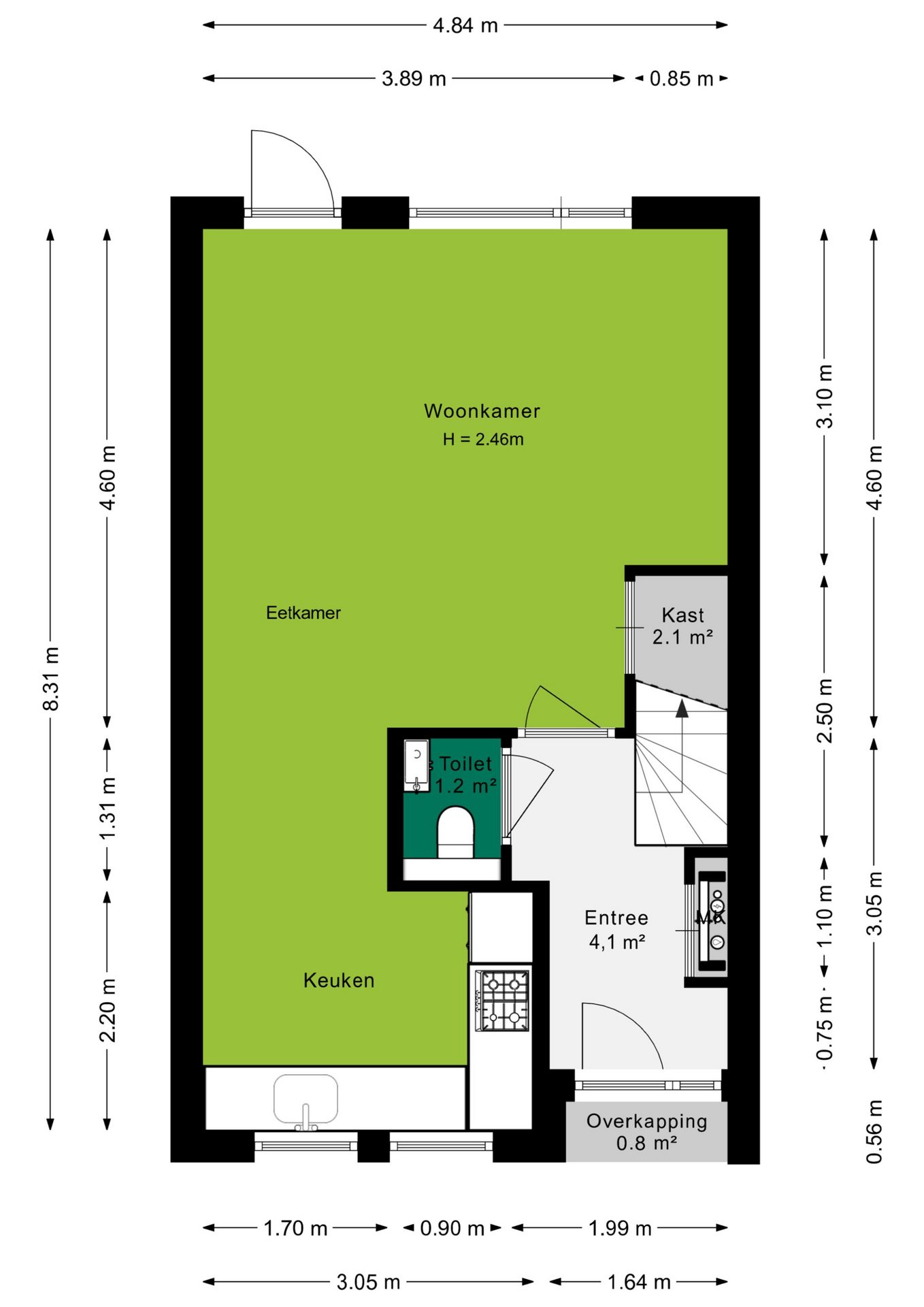
Begane grond
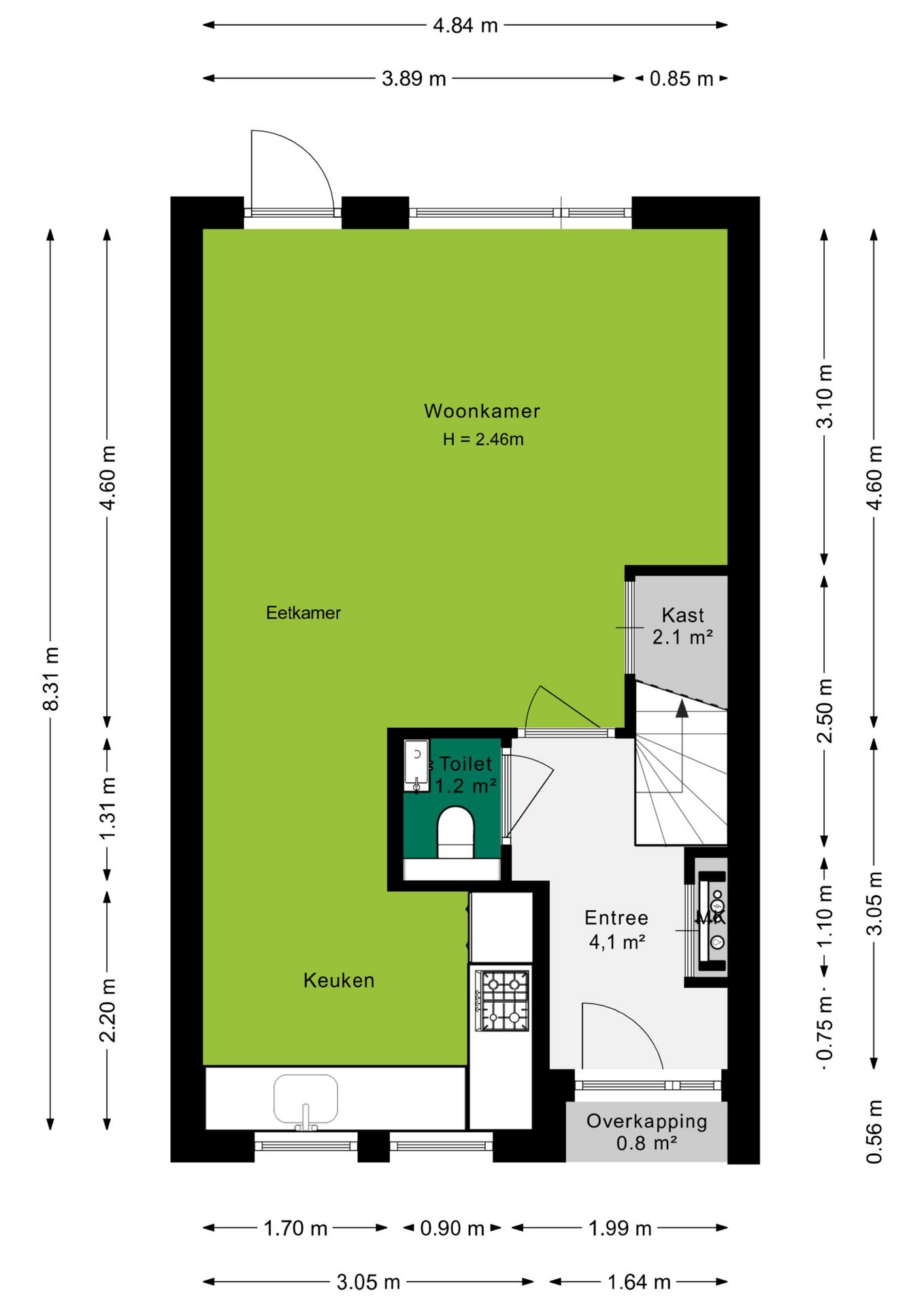
Bij binnenkomst vind je de meterkast en een toilet met fonteintje. De tuingerichte woonkamer biedt ruimte voor een gezellige zithoek en een eethoek. De grote ramen geven een fijn natuurlijk daglicht. De half open keuken bevindt zich aan de voorzijde van de woning. De keuken is uitgevoerd in lichte tinten en voorzien van een hardstenen werkblad. Daarnaast is de keuken uitgerust met diverse inbouwapparatuur, waaronder een vierpits gasfornuis, afzuigkap, oven, vaatwasser, koel-vriescombinatie en een Quooker.

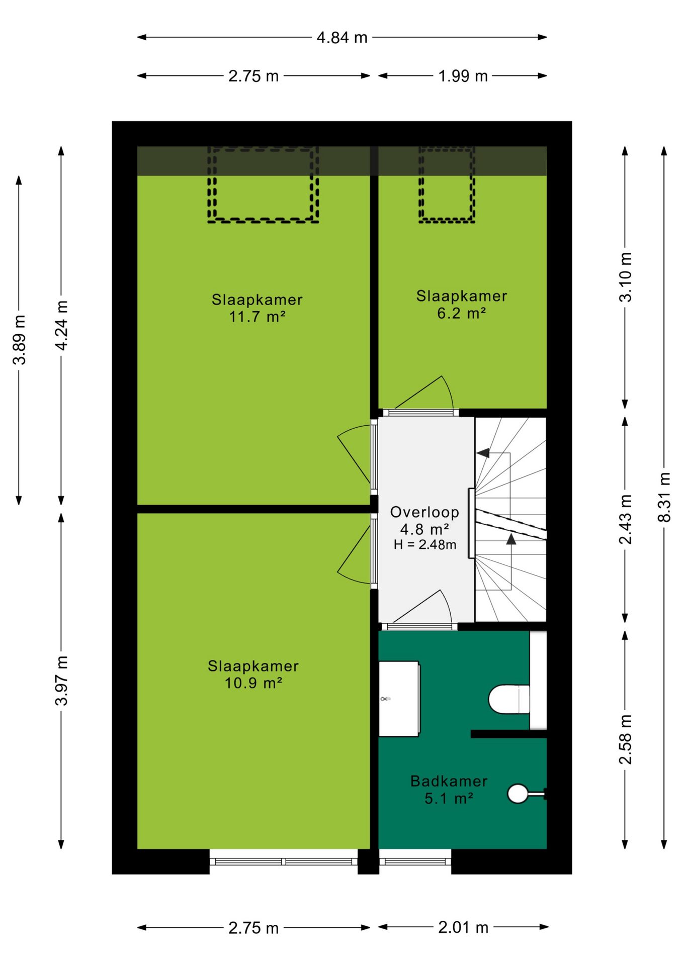
Eerste verdieping
Op de overloop vind je toegang tot drie slaapkamers, de badkamer en de trapopgang naar de tweede verdieping. Aan de achterzijde van de woning tref je twee ruime slaapkamers, beide voorzien van een dakraam. Aan de voorzijde bevindt zich de derde slaapkamer naast de badkamer. De badkamer is modern en luxe uitgevoerd, vrijwel volledig betegeld en beschikt over een inloopdouche, wastafelmeubel, toilet en designradiator.

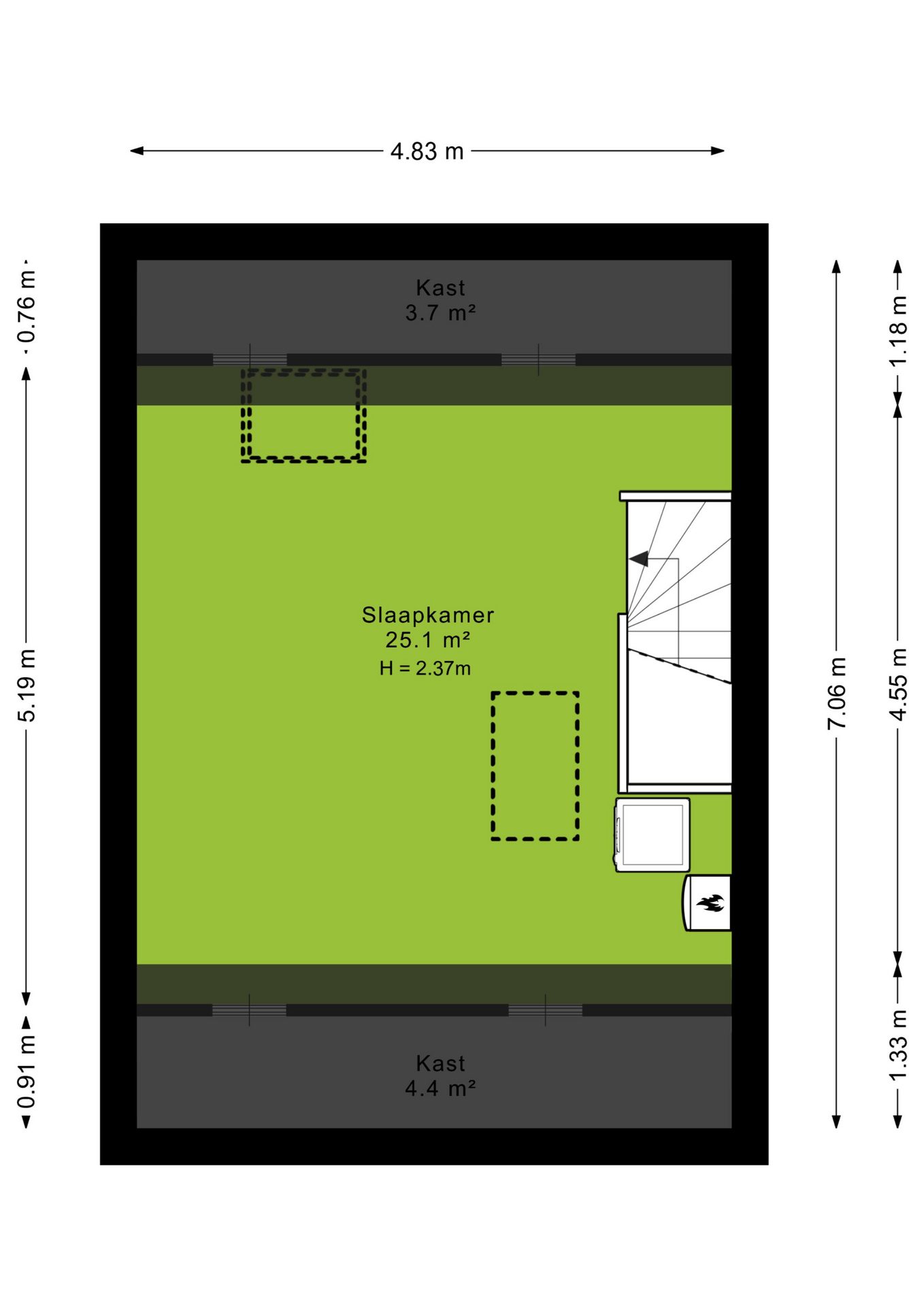
Tweede verdieping
Er is een aansluiting voor de wasmachine en droger, en je vindt hier de mogelijkheid voor een vierde slaapkamer met een dakraam. Achter de schuine kanten is er voldoende ruimte voor het opbergen van diverse spullen. Vanaf deze verdieping heb je ook toegang tot de bergvliering middels een vlizotrap.

Tuin
Via de deur in de woonkamer stap je de tuin in. De tuin is netjes aangelegd en verderop kun je heerlijk van de zon genieten. Achterin bevindt zich een houten berging. De tuin is ook bereikbaar via een achterom.

Perceeloppervlakte: 118 m²
Inhoud woning: 350 m³
Woonoppervlakte: 100 m²

Bijzonderheden
Verwarming: CV ketel Remeha Calenta 28c
Warm water: CV ketel Remeha Calenta 28c
Isolatie: Volledig geïsoleerd
Tuinligging: Noordoosten
Aanvaarding: In overleg

Koopovereenkomst:
Bij de verkoop zal er een standaard NVM koopovereenkomst worden gehanteerd. Bij woningen welke ouder zijn dan 20 jaar, worden de volgende clausules opgenomen in de koopovereenkomst:
- Asbestclausule
- Ouderdomsclausule

Koop je de woning zonder voorbehoud van financiering? Dan zullen wij een termijn hanteren van 14 dagen na het opstellen van de koopovereenkomst voor het storten van de bankgarantie/waarborgsom.

Deze informatie is door ons met de nodige zorgvuldigheid samengesteld. Onzerzijds wordt echter geen enkele aansprakelijkheid aanvaard voor enige onvolledigheid, onjuistheid of anderszins, dan wel de gevolgen daarvan. Alle opgegeven maten en oppervlakten zijn indicatief.
+ toon meer
deze woning is Verkocht

Emmenhoeve 20 Bennekom

Emmenhoeve 20

6721 LC, Bennekom
Ditters open huis: 5 april 2025 10:00 - 12:00 uur
Landelijke Open Huizen Route NVM: 5 april 2025 11:00 uur - 15:00 uur
Vanaf€ 439.000 k.k.

Schakel een aankoopmakelaar in.

Snel handelen helpt je jouw droomhuis te bemachtigen. Zo vergroot je de kans dat je er op tijd bij bent.
Bennekom
verkocht

Of maak vrijblijvend een zoekprofiel aan.

Vergelijkbare woningen

Hypotheken

Onafhankelijk hypotheekadvies

  • Ligt jouw droomhuis binnen handbereik?
  • Wil je jouw huidige hypotheek verhogen?
  • Is er hypotheekruimte voor verduurzaming?

Blijf op de hoogte

Ontvang als eerste updates over nieuw aanbod en mis geen enkele kans om jouw droomwoning te vinden.

Gratis waardebepaling of verkoopgesprek

Met de vrijblijvende waardecheck weet je snel waar je aan toe bent. Onze makelaars kijken naar de lokale markt en vergelijkbare woningen in jouw buurt om een goede schatting te geven.

Realiseer al jouw woondromen met Ditters

Wij zijn een team van gedreven vastgoedexperts met een passie voor het maken van verbindingen – tussen kopers en verkopers, huurders en verhuurders. Met een frisse kijk op de makelaardij combineren we expertise met creativiteit. Onze makelaars luisteren écht en nemen de tijd om jouw wensen te begrijpen.


Bij Ditters sta je er niet alleen voor. We denken met je mee, begeleiden je in elke stap en zijn altijd bereikbaar voor vragen. Neem gerust contact met ons op – we helpen je graag verder!