Wonen aan het water met uitzicht over de polder. Welkom bij deze schitterende geschakelde villa op een ruim perceel van maar liefst 323 m², prachtig gelegen aan het water in een rustige woonomgeving. Deze royale woning combineert comfort, ruimte en een unieke ligging met vrij uitzicht over de polder. De fraai aangelegde tuin op het zonnige zuiden en het sfeervolle vlonderterras aan het water maken dit huis tot een heerlijke plek om te wonen en te genieten.
Tegelijkertijd bevindt u zich op slechts 5 minuten fietsen van het charmante historische centrum van Spakenburg, waar u terecht kunt bij de ambachtelijke bakker, groenteboer en diverse gezellige speciaalzaken.
Dankzij de centrale ligging bent u bovendien binnen 10 minuten rijden op de A1 of A28 – ideaal voor forenzen richting Amersfoort, Utrecht of Amsterdam.
Pluspunten van de woning op een rij:
+ Ruime woning met een inhoud van maar liefst 657 m3;
+ Grondwarmtepomp met eigen bron;
+ Gehele woning is voorzien van vloerverwarming;
+ 4 slaapkamers;
+ 10 zonnepanelen aanwezig;
+ HR++ beglazing (2003);
+ Energielabel A++ ;
+ Heerlijke achtertuin, gelegen aan het water met vrij uitzicht en gunstige zonligging op het zuiden;
+ Veranda in de achtertuin;
+ Gelegen in een leuke woonwijk.
Indeling van de woning
Begane grond:
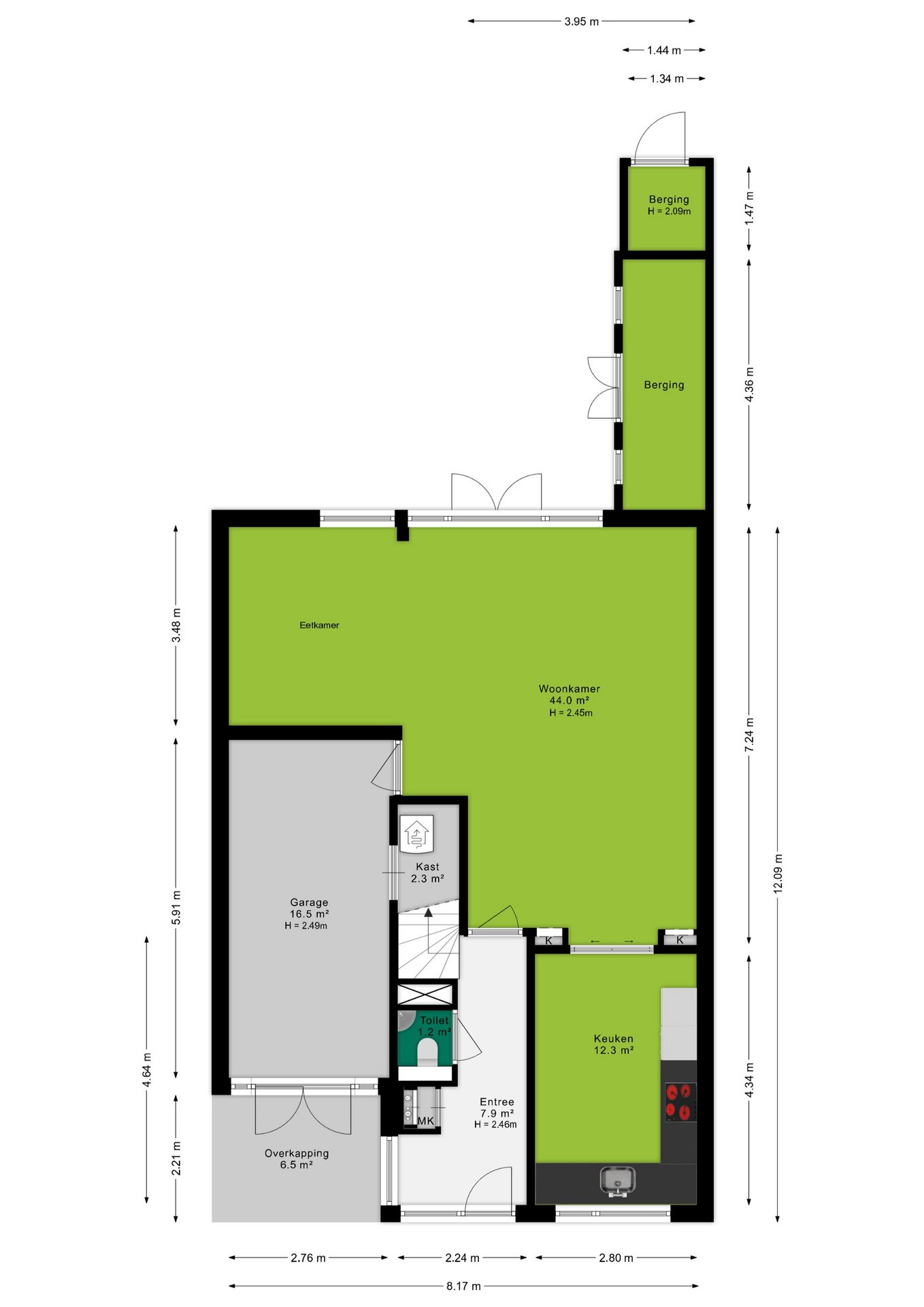
Hal/entree met toegang tot de meterkast, het toilet met fonteintje, trapopgang naar de eerste verdieping, garderobenis en toegang tot de aan de achterzijde gelegen ruime woonkamer die is voorzien van grote raampartijen en openslaande deuren naar de zonnige tuin. Vanuit de woonkamer loop je via het eetgedeelte naar de aan de voorzijde gelegen keuken met veel bergruimte welke is voorzien van diverse inbouwapparatuur waaronder begrepen:
+ Vaatwasser;
+ Koelkast;
+ Kookplaat;
+ Afzuigkap.
De gehele begane grond is m.u.v. de garage voorzien van een prachtige leistenen vloer met vloerverwarming. De garage is geïsoleerd en ruim met een oppervlakte van ca. 17 m². Een mogelijkheid is om de garage om te turnen naar bijvoorbeeld een praktijkruimte aan huis. Een andere pui in de voorzijde en je bent nagenoeg klaar. In de kast onder de trap naar de eerste verdieping (bereikbaar vanuit de garage), is de opstelplaats van de warmtepomp.
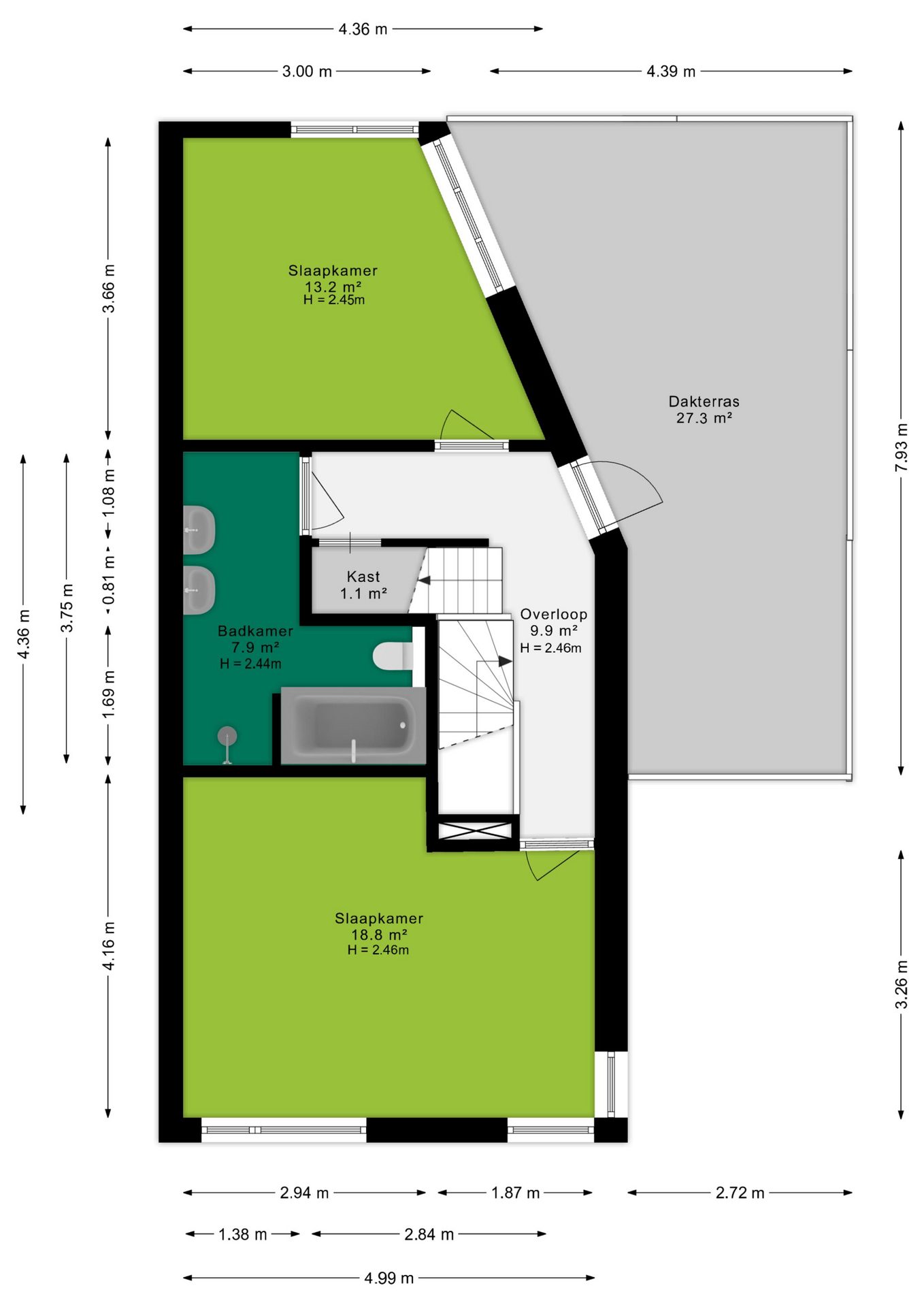
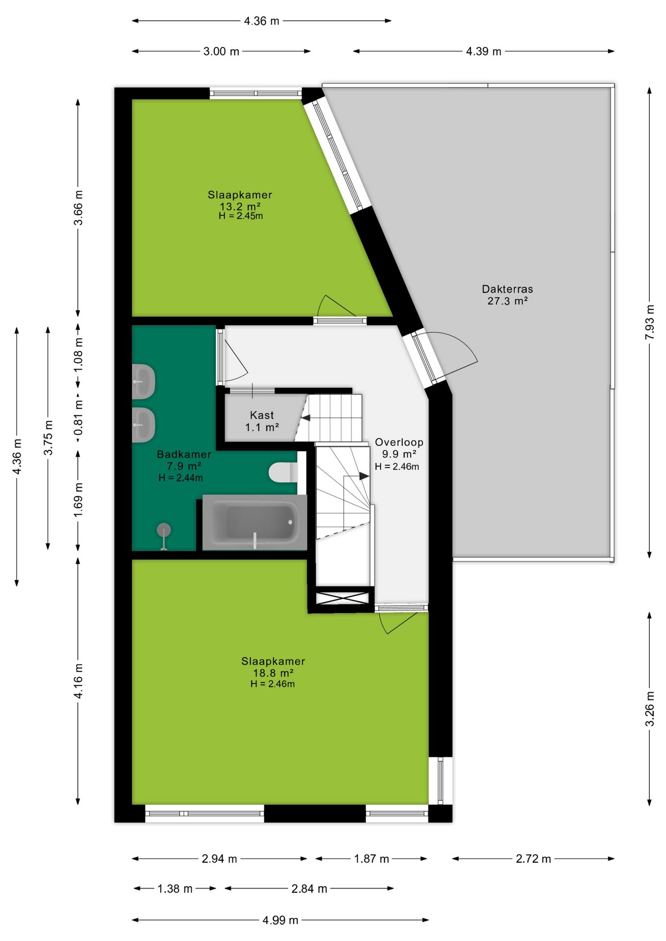
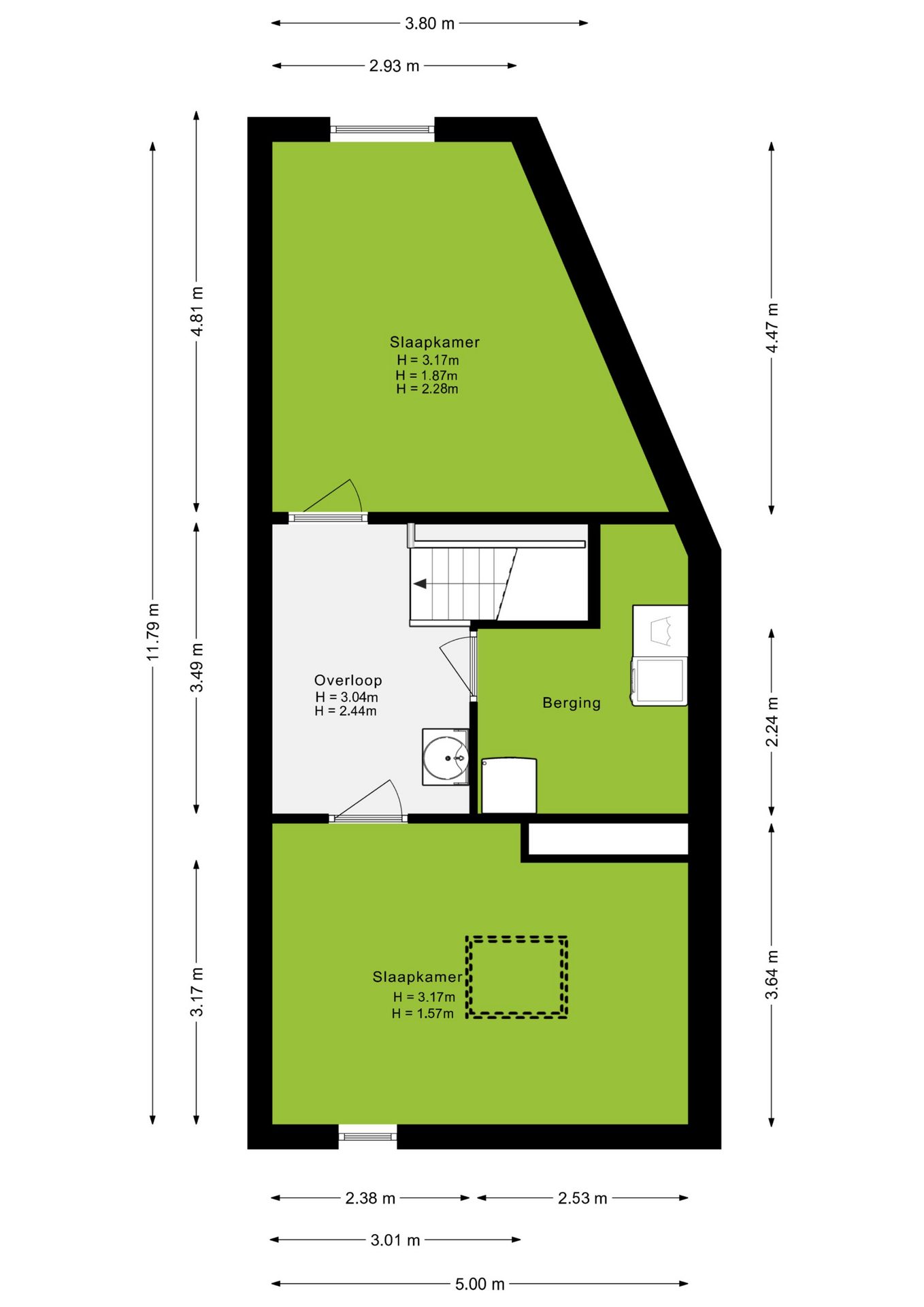
Eerste verdieping:
Via de vaste trap kom je op de overloop, vanaf de overloop is er toegang tot 2 ruime slaapkamers en de badkamer. 1 slaapkamer is gelegen aan de voorzijde van de woning de andere slaapkamer is gelegen aan de achterzijde van de woning. De nette en ruime badkamer is gelegen in het midden van de woning en is uitgerust met:
+ Douche;
+ Tweede toilet;
+ Dubbele wastafel en een wandmeubel;
+ Ligbad;
+ Design radiator.
Vanaf de overloop is er toegang tot het dakterras van maar liefst 27 m². Gelegen op het zuiden en tussen de woningen in biedt deze veel privacy.
De eerste verdieping is voorzien van een novilonvloer met comfortabele vloerverwarming.
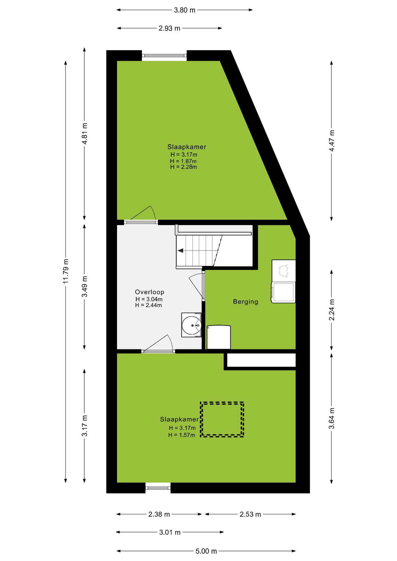
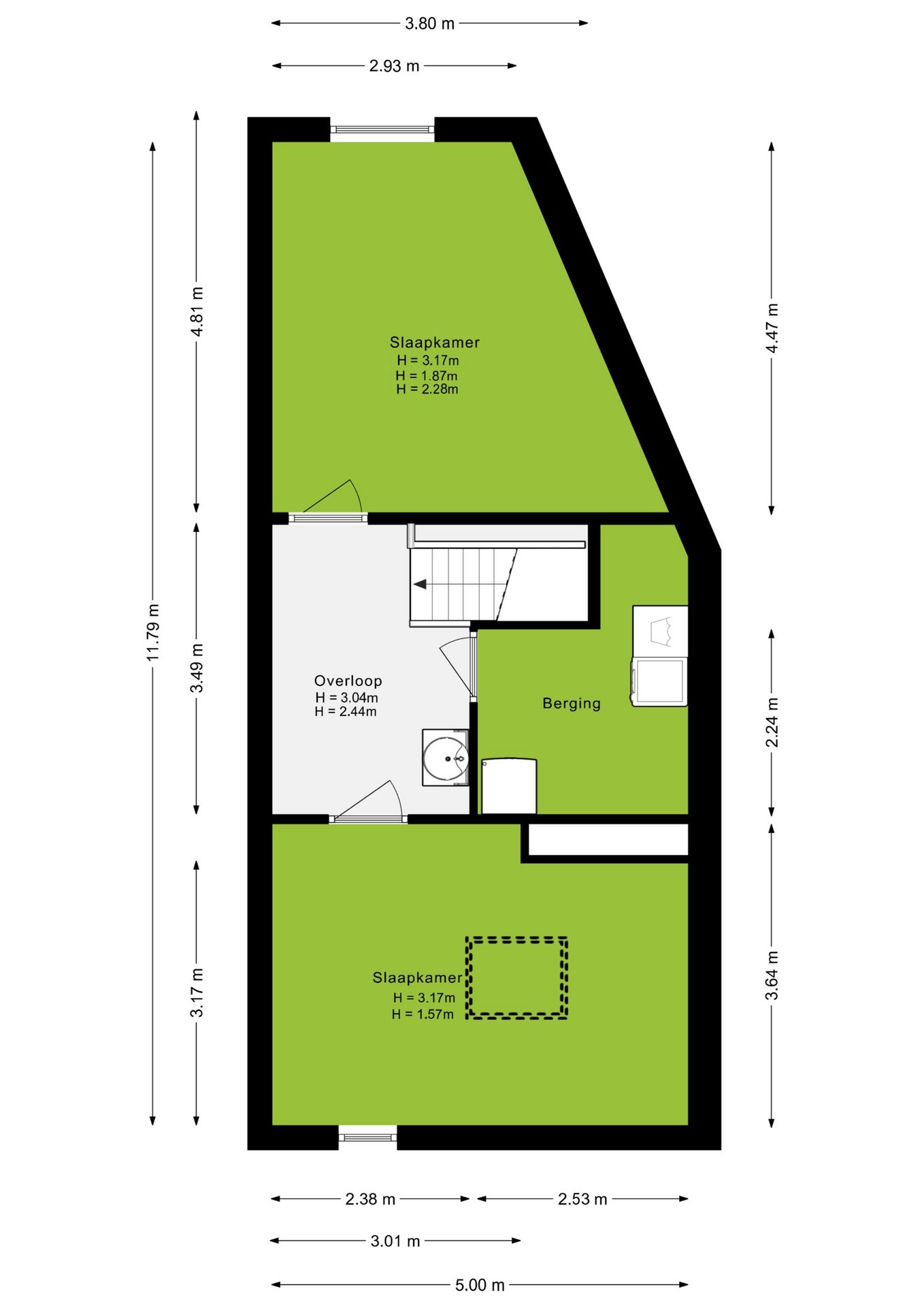
Tweede verdieping
Via een vaste trap kom je op een ruime voorzolder, waar toegang is tot een bergkast met opstelling voor de wasmachine, droger en de WTW-unit en 2 ruime slaapkamers. De slaapkamer aan de voorzijde heeft een extra dakraam wat zorgt voor een prettige lichtinval en ventilatiemogelijkheden.
De tweede verdieping is voorzien van een novilonvloer en deels met vloerverwarming.
Buiten
Vanuit de woonkamer is toegang tot de op het zuiden gelegen, goed onderhouden, achtertuin met veranda, sierbestrating en vaste planten. Een heerlijke ruime tuin met veel zitgelegenheid. Aan de achterzijde aan de gevel is een zonnescherm aanwezig.
Een veranda aan de buitenschuur zorgt voor een plek om te kunnen genieten van het buitenleven. Aan het einde van de tuin ligt de vlonder, afgescheiden van het water middels een hek met toegang tot de waterpartij.
Afmetingen
Perceeloppervlakte 323 m²
Inhoud woning 657 m³
Woonoppervlakte 179 m²
Bijzonderheden
Verwarming: Grondwarmtepomp met eigen bron, vloerverwarming;
Isolatie: volledig geïsoleerd;
Energielabel: A++;
Bouwjaar: 2003;
Aanvaarding: In overleg;
Koopovereenkomst:
Bij de verkoop zal er een standaard NVM koopovereenkomst worden gehanteerd. Bij woningen welke ouder zijn dan 20 jaar, worden de volgende clausules opgenomen in de koopovereenkomst:
- Asbestclausule;
- Ouderdomsclausule.
Koopt u de woning zonder voorbehoud van financiering? Dan zullen wij een termijn hanteren van 14 dagen na het opstellen van de koopovereenkomst voor het storten van de bankgarantie/waarborgsom.
Deze informatie is door ons met de nodige zorgvuldigheid samengesteld. Onzerzijds wordt echter geen enkele aansprakelijkheid aanvaard voor enige onvolledigheid, onjuistheid of anderszins, dan wel de gevolgen daarvan. Alle opgegeven maten en oppervlakten zijn indicatief.