Omschrijving

Sfeervol wonen in het hart van Doorn
Welkom aan de Van Bennekomweg 17A, een charmante jaren ’30 tussenwoning met karakter en verrassend veel ruimte. De woning combineert authentieke elementen met praktische leefruimte, zoals een royale glazen serre, drie slaapkamers en een ruime kelder. Met het centrum van Doorn op loopafstand en een diepe tuin op het westen, woon je hier rustig, maar toch centraal.

De woning ligt op een uitstekende locatie, op loopafstand van winkels, horeca en een supermarkt. De centrale ligging zorgt voor een fijne mix van rust en bereikbaarheid. Fiets je een klein stukje, dan ben je al bij het de bushalte of in de omliggende natuur. Het dichtstbijzijnde treinstation is Driebergen-Zeist. Elke 7 minuten vertrekt er een bus naar dit treinstation vanwaar je de trein in de richting van Utrecht of Arnhem kunt nemen. Ook de uitvalswegen richting Utrecht en Amersfoort zijn snel bereikbaar, ideaal voor wie net dat beetje extra gemak zoekt.

Pluspunten op een rij
+ Sfeervolle jaren ’30 tussenwoning
+ Glazen serre aan de achterzijde
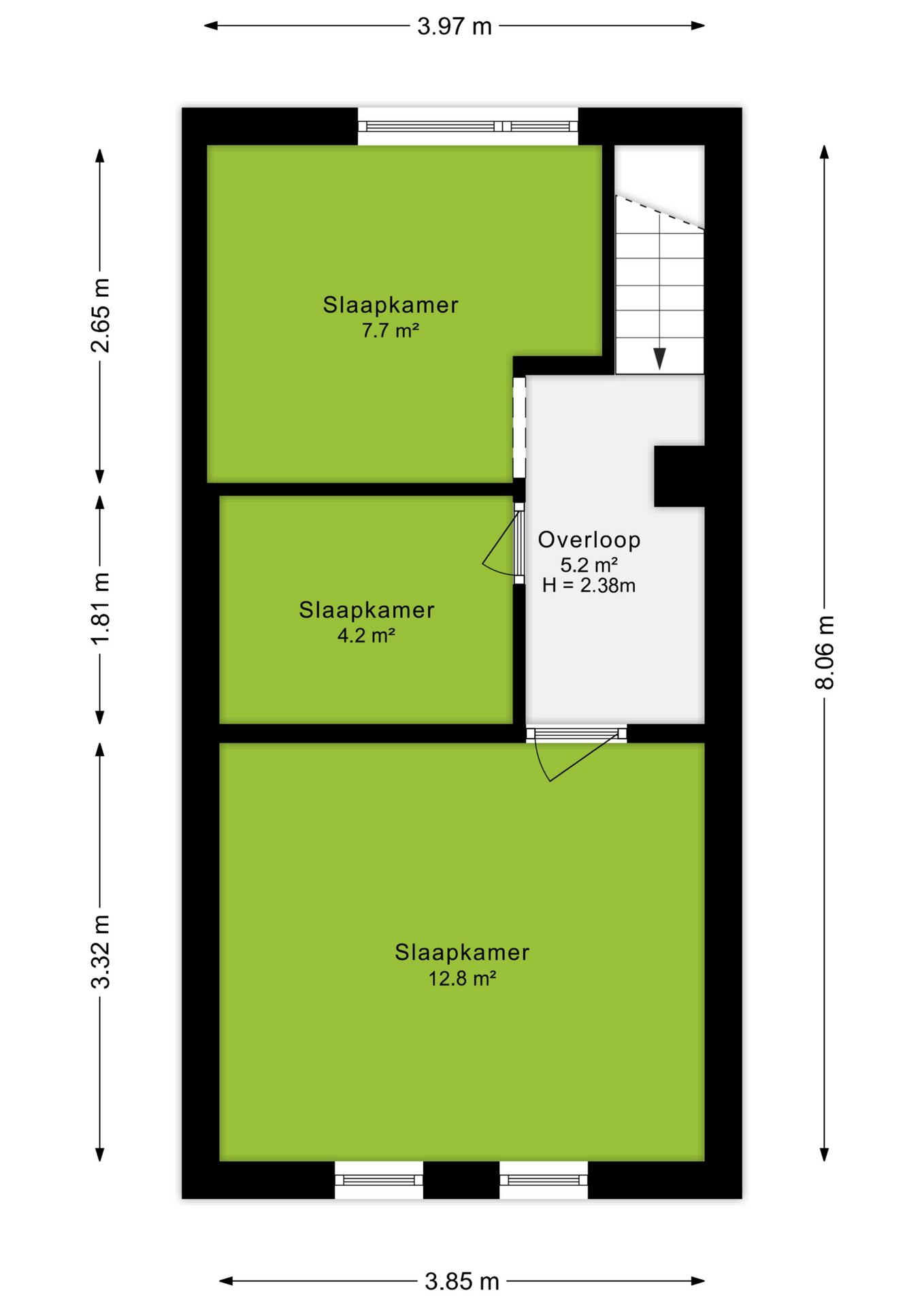
+ Drie slaapkamers op de eerste verdieping
+ Tuin op het westen met vrijstaande stenen berging
+ Centrum van Doorn en voorzieningen op loopafstand
+ Kelder van ca. 15 m²
+ In 2024 is het dak van de woning voorzien van nieuw bitumen
+ Nieuwe cv ketel geplaatst in 2023
+ 8 zonnepanelen geplaatst in 2024

Indeling
Begane grond
Via de voordeur kom je binnen in de hal met toegang tot de lichte woonkamer. De keuken is gesloten en functioneel ingedeeld. Aan de achterzijde bevindt zich een glazen aanbouw (serre). Verder is er een aparte toiletruimte, een badkamer met ligbad, de cv-opstelling én toegang tot de kelder van circa 15 m², ideaal als opslagruimte.

Eerste verdieping
Overloop met toegang tot drie slaapkamers. De kamers zijn praktisch in te delen en beschikken over voldoende daglicht.

Tuin
De woning beschikt over een royale tuin op het westen, waardoor je hier tot in de avond van de zon kunt genieten. In de tuin staat een vrijstaande stenen berging, perfect voor fietsen of tuinspullen.

Bijzonderheden
Verwarming: C.V.-ketel, 2023;
Warm water: C.V.-ketel, 2023;
Isolatie: dubbelglas;
Tuinligging: Westen;
Aanvaarding: in overleg.

De woning heeft geen voordeur. De woning heeft een ruime achterom en is op deze manier te bereiken. (grotendeels eigen grond en een stuk recht van overpad).

Koopovereenkomst:
Bij de verkoop zal er een standaard NVM koopovereenkomst worden gehanteerd. Bij woningen welke ouder zijn dan 20 jaar, worden de volgende clausules opgenomen in de koopovereenkomst:
- Asbestclausule;
- Ouderdomsclausule.

Koop je de woning zonder voorbehoud van financiering? Dan zullen wij een termijn hanteren van 14 dagen na het opstellen van de koopovereenkomst voor het storten van de bankgarantie/waarborgsom.

Deze informatie is door ons met de nodige zorgvuldigheid samengesteld. Onzerzijds wordt echter geen enkele aansprakelijkheid aanvaard voor enige onvolledigheid, onjuistheid of anderszins, dan wel de gevolgen daarvan. Alle opgegeven maten en oppervlakten zijn indicatief.
+ toon meer

Video

3941 RG, Doorn

van Bennekomweg 17 a

Zaterdag 2 augustus 10:00 - 12:00 uur

€ 375.000 k.k.
ditters makelaars amersfoort
Kopen

Wat is jouw woning écht waard bij Ditters?

Waardecheck

Wij combineren lokale marktkennis met actuele data en ons grote zoekersbestand in de regio.

Je krijgt niet alleen een waarde, maar inzicht in hoe je de maximale verkoopopbrengst kunt realiseren.

Onze aanpak is strategisch, transparant en volledig afgestemd op jouw situatie.

Goed om te weten: deze waardecheck is vrijblijvend en geheel kosteloos
Onafhankelijk

Hypotheekadvies

We helpen je met het vergelijken van aanbiedingen van verschillende banken, zodat je de beste deal krijgt. 
Wij staan klaar om je te begeleiden, zodat je met vertrouwen de juiste hypotheek kunt kiezen.
Goed om te weten: dit adviesgesprek is vrijblijvend en geheel kosteloos

Wij helpen jou bij de keuze van de juiste polis.

Bij een onbezorgde toekomst horen ook goede verzekeringen die uitkeren bij bijvoorbeeld ziekte, schade of diefstal. Onze assurantieadviseurs helpen je bij de keuze van de juiste polis. In heldere taal.

Diverse verzekeringen

  • Opstalverzekering
  • Aansprakelijkheidsverzekering
  • Zorgverzekering
  • Reisverzekering

Buurtinformatie

Doorn, Doorn-Centrum
Inwoners
Woningen
1.445
Inwoners
3.465
28
71
Koop / Huur
28% Huur71% Koop
Huishoudens
Eenpersoon
32.4%
Geen kinderen
33.4%
Met kinderen
34.5%
Leeftijdsopbouw in jaren
Buurt Landelijk
17.312.116.729.424.116.312.324.728.218.5

Locatie

Plattegronden

Klik op de plattegrond voor een grote weergave

Belangrijke documenten

vragenlijst deel b

lijst van zaken

brochure

Misschien interessant voor jou

Blijf op de hoogte

Ontvang als eerste updates over nieuw aanbod en mis geen enkele kans om jouw droomwoning te vinden.

Gratis waardebepaling of verkoopgesprek

Met de vrijblijvende waardecheck weet je snel waar je aan toe bent. Onze makelaars kijken naar de lokale markt en vergelijkbare woningen in jouw buurt om een goede schatting te geven.