Omschrijving

De woning betreft een ruime tussenwoning, rustig gelegen in de woonwijk Eltingerhof. De woning beschikt over een aangename woonkamer, een nette keuken, vier volwaardige slaapkamers, een luxe badkamer, een veelzijdige zolderruimte en een ruime tuin gesitueerd op het noordwesten.

Het centrum bevindt zich op loopafstand en biedt een breed scala aan voorzieningen, waaronder een supermarkt, slager, diverse eetgelegenheden, kledingwinkels en scholen. Daarnaast zijn meerdere sportfaciliteiten eenvoudig per fiets bereikbaar.

Belangrijkste kenmerken op een rij:
+ Tussenwoning met vier slaapkamers;
+ Moderne keuken vernieuwd in 2020;
+ Vloerverwarming op de begane grond;
+ Badkamer vernieuwd in 2022;
+ Onderhoudsarme kunststof kozijnen met HR++-glas (m.u.v. zolder);
+ CV-ketel uit 2023;
+ Energielabel A;
+ 8 zonnepanelen geplaatst in 2023;
+ Extra groepen in de meterkast (2024) voor inductiekookplaat en zonnepanelen;
+ Mechanische ventilatie vernieuwd in 2023;
+ Fraai aangelegde tuin op het noordwesten.

Begane grond
Via de entree, waar zich de meterkast en het toilet bevinden, kom je in de lichte en ruime woonkamer van 31,1 m². De woonkamer met vloerverwarming biedt volop ruimte voor een comfortabele hoekbank en een gezellige zithoek. Dankzij de grote aluminium schuifpui, die in 2024 is vernieuwd met HR++-glas, geniet je van een overvloed aan natuurlijk licht en een directe verbinding met de tuin. Centraal in de ruimte is het eetgedeelte gesitueerd, met aansluitend de L-vormige open keuken. Deze is voorzien van diverse inbouwapparatuur, waaronder een kookplaat, afzuigkap, magnetron, combi-oven en vaatwasser. De keuken is elegant vormgegeven met zwarte fronten en een werkblad van warm walnoothout. Ook het keukenraam is in 2024 vernieuwd en voorzien van onderhoudsarme kunststof kozijnen en isolerend HR++-glas.

Eerste verdieping
Via de trap in de woonkamer bereik je de overloop, die toegang biedt tot alle vertrekken op deze verdieping. Hier bevinden zich drie slaapkamers met oppervlaktes van 14,2 m², 10,9 m² en 8,1 m². Alle slaapkamers zijn heerlijk licht dankzij de royale raampartijen, die in 2024 zijn vernieuwd met HR++-glas en onderhoudsarme kunststof kozijnen. De ruime badkamer is compleet uitgevoerd met een ligbad, een inloopdouche, een wastafelmeubel, planchet en een toilet. De marmerlook wandtegels in combinatie met de donkere vloer geven de badkamer een stijlvolle en chique uitstraling.

Tweede verdieping
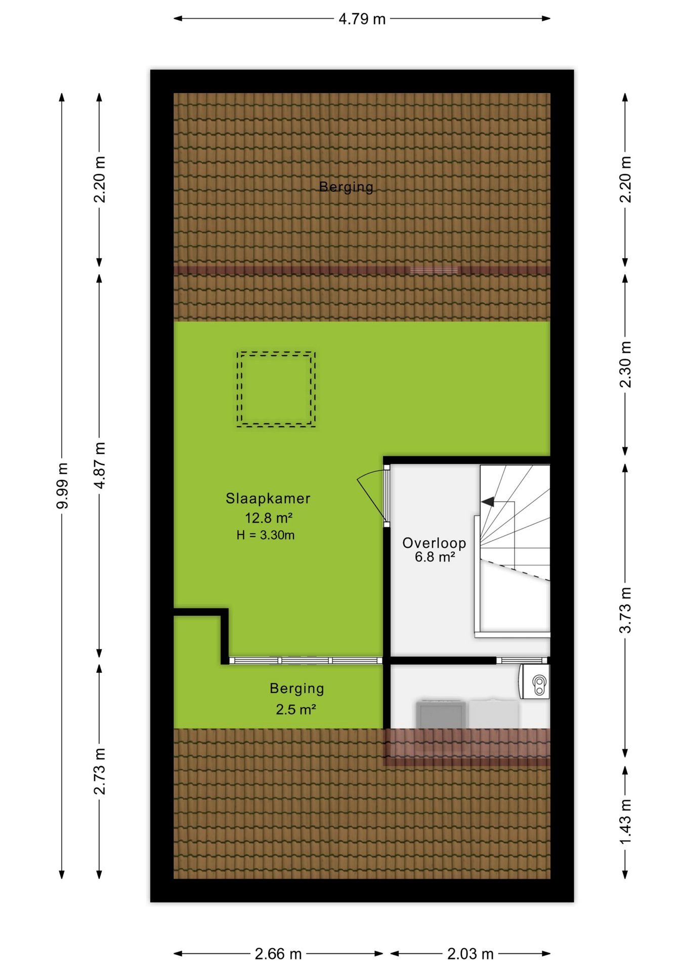
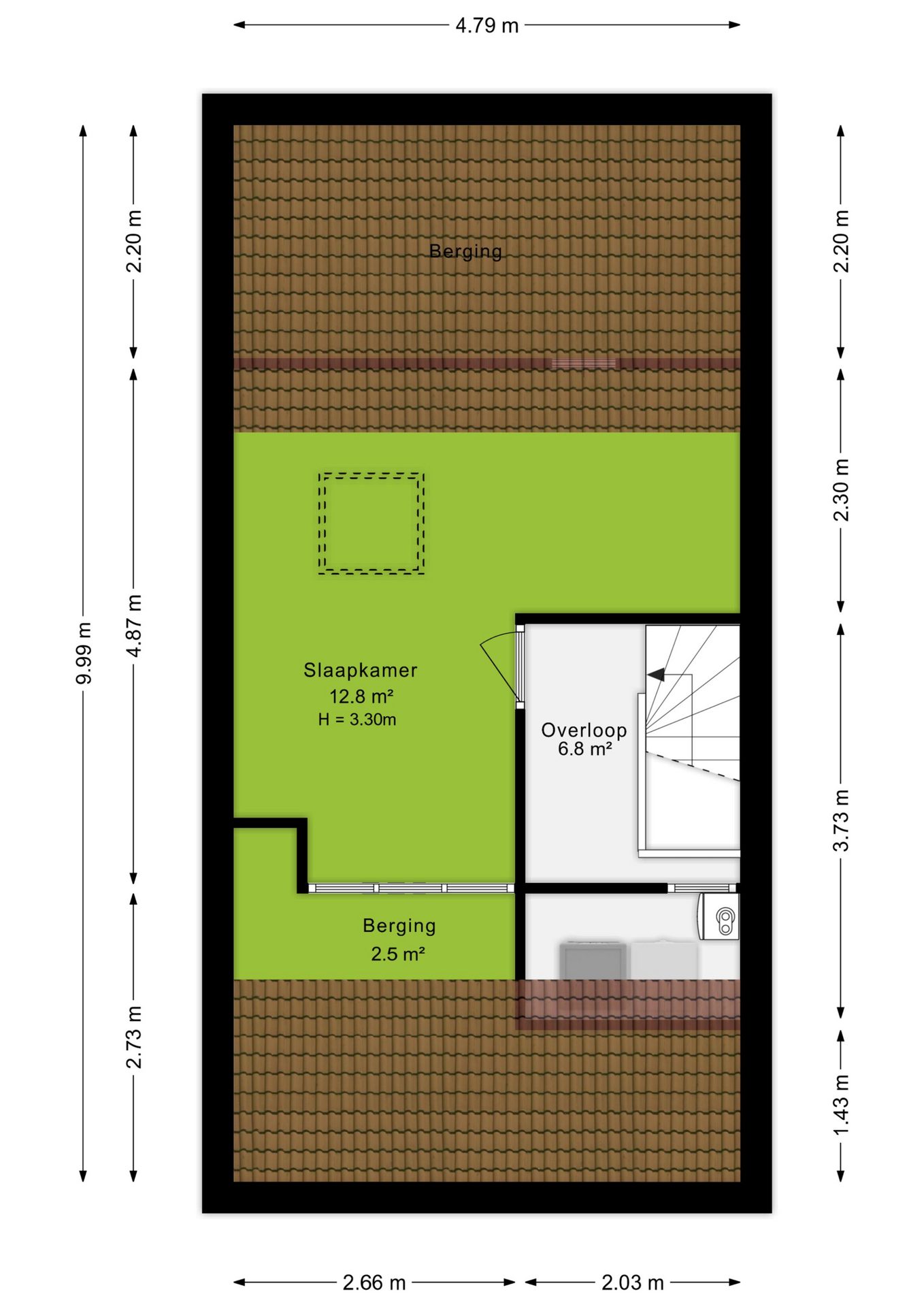
Via de vaste trap bereik je de zolderverdieping, waar zich een ruime vierde slaapkamer van 12,8 m² bevindt. Dankzij het aanwezige dakraam geniet deze kamer van veel natuurlijk licht. De ruimte is veelzijdig en kan naast slaapkamer ook uitstekend dienen als werk-, sport- of hobbykamer. Op de overloop bevinden zich de aansluitingen voor de wasmachine en droger. Daarnaast beschikt deze verdieping over een praktische berging van 2,5 m².

Tuin
De fraai aangelegde tuin van ca. 50 m², gelegen op het noordwesten, biedt volop ruimte voor meerdere zithoekjes. Daarnaast beschikt de tuin over een praktische achterom, wat ideaal is voor het stallen van fietsen en het plaatsen van de kliko’s.

Koopovereenkomst:
Bij de verkoop zal er een standaard NVM koopovereenkomst worden gehanteerd. Bij woningen welke ouder zijn dan 20 jaar, worden de volgende clausules opgenomen in de koopovereenkomst:
- Asbestclausule;
- Ouderdomsclausule.

Koop je de woning zonder voorbehoud van financiering? Dan zullen wij een termijn hanteren van 6 weken na het opstellen van de koopovereenkomst voor het storten van de bankgarantie/waarborgsom.

Deze informatie is door ons met de nodige zorgvuldigheid samengesteld. Onzerzijds wordt echter geen enkele aansprakelijkheid aanvaard voor enige onvolledigheid, onjuistheid of anderszins, dan wel de gevolgen daarvan. Alle opgegeven maten en oppervlakten zijn indicatief.
+ toon meer
deze woning is Verkocht

Kennedystraat 24 Duiven

Kennedystraat 24

6921 CW, Duiven
Ditters open huis: 5 april 2025 10:00 - 12:00 uur
Landelijke Open Huizen Route NVM: 5 april 2025 11:00 uur - 15:00 uur
Vanaf€ 397.500 k.k.

Schakel een aankoopmakelaar in.

Snel handelen helpt je jouw droomhuis te bemachtigen. Zo vergroot je de kans dat je er op tijd bij bent.
Duiven
verkocht

Of maak vrijblijvend een zoekprofiel aan.

Vergelijkbare woningen

Hypotheken

Onafhankelijk hypotheekadvies

  • Ligt jouw droomhuis binnen handbereik?
  • Wil je jouw huidige hypotheek verhogen?
  • Is er hypotheekruimte voor verduurzaming?

Blijf op de hoogte

Ontvang als eerste updates over nieuw aanbod en mis geen enkele kans om jouw droomwoning te vinden.

Gratis waardebepaling of verkoopgesprek

Met de vrijblijvende waardecheck weet je snel waar je aan toe bent. Onze makelaars kijken naar de lokale markt en vergelijkbare woningen in jouw buurt om een goede schatting te geven.

Realiseer al jouw woondromen met Ditters

Wij zijn een team van gedreven vastgoedexperts met een passie voor het maken van verbindingen – tussen kopers en verkopers, huurders en verhuurders. Met een frisse kijk op de makelaardij combineren we expertise met creativiteit. Onze makelaars luisteren écht en nemen de tijd om jouw wensen te begrijpen.


Bij Ditters sta je er niet alleen voor. We denken met je mee, begeleiden je in elke stap en zijn altijd bereikbaar voor vragen. Neem gerust contact met ons op – we helpen je graag verder!