Omschrijving

Deze uitzonderlijk sfeervolle en tot in detail verzorgde twee-onder-een-kapwoning uit de jaren ’30, gelegen aan het groene en geliefde Beatrixpark in Ede, is een zeldzame kans voor wie op zoek is naar karakter én comfort. Authentieke elementen zoals de prachtig zijraam, glas-in-looddetails en stijlvolle ensuite deuren zijn met zorg behouden gebleven en geven de woning een warme, unieke uitstraling. Tegelijkertijd is het huis uitstekend onderhouden en verduurzaamd, waardoor het moeiteloos voldoet aan de wensen van vandaag. Met circa 180 m² woonoppervlak, vier volwaardige slaapkamers, een praktische kelder en een verrassend speelse indeling biedt deze woning een gevoel van ruimte en talloze gezellige hoekjes. De royale, zonnige tuin met veel privacy maakt het geheel compleet. Dankzij de 22 zonnepanelen en energielabel A is het bovendien een toekomstbestendige gezinswoning waarin je direct kunt intrekken en volop kunt genieten.

Ligging
Deze fijne woning ligt in een rustige, groene en kindvriendelijke buurt in Ede, met veel groen en alle voorzieningen dichtbij. Voor dagelijkse boodschappen zijn zowel het centrum van Ede als het Rozenplein op korte afstand, met diverse winkels en supermarkten.
De buurt is ideaal voor gezinnen: basisscholen en middelbare scholen liggen op loop- of fietsafstand. Station Ede-Wageningen is binnen circa 5 minuten fietsen bereikbaar en met de auto zijn uitvalswegen snel te bereiken.
Liefhebbers van natuur zitten hier ook goed: de heide en uitgestrekte bossen van de Veluwe liggen op enkele minuten rijden, perfect voor wandelen, fietsen of ontspannen.

Kenmerken op een rij:
- Veel natuurlijk licht inval in alle vertrekken
- 4 slaapkamers
- Berging van circa 7 m² op de tweede verdieping
- Kelder van circa 10 m²
- Uitgebouwde keuken met hoogwaardig inbouwapparatuur en vloerverwarming
- Dakkapel op de tweede verdieping
- Dakterras van circa 19 m² op de eerste verdieping
- Garage met openslaande deuren van circa 13 m²
- Oprit voor meerdere auto’s met aansluiting voor een laadpaal
- Meerdere inbouwkasten door de woning
- Schuifpui en openslaande deuren naar de tuin
- 22 zonnepanelen en energielabel A

Indeling
Begane grond
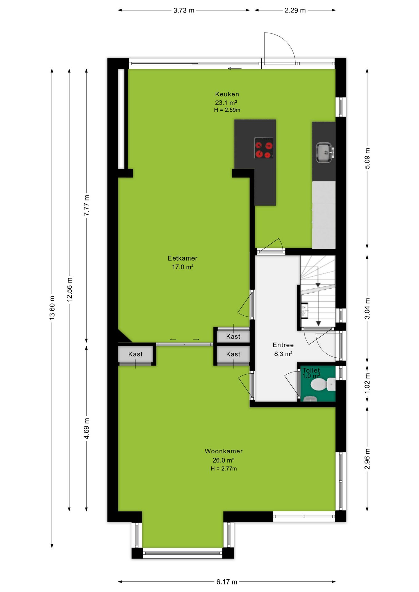
De voordeur bevindt zich aan de zijkant van de woning. Bij binnenkomst kom je in de hal, die toegang geeft tot de verschillende vertrekken op de begane grond, zoals het toilet, de keuken, de eetkamer, de woonkamer en kelder van circa 10 m².

Wanneer je de woonkamer binnenloopt valt direct de ruimte en de fijne lichtinval op. Dankzij de verschillende ramen komt er de hele dag door veel natuurlijk licht naar binnen. De indeling van de woonkamer is speels en net even anders dan standaard, waardoor er ruimte is voor meerdere gezellige zitplekken.
Wat de begane grond extra bijzonder maakt, is de open verbinding met het eetgedeelte en de keuken. Door de vrije doorloop tussen de verschillende ruimtes voelt de benedenverdieping ruim en open aan en beschikt deze over circa 66 m² woonoppervlak. Tegelijkertijd bieden de prachtige ensuite deuren de mogelijkheid om de woonkamer en eetkamer van elkaar te scheiden wanneer dat gewenst is. Zo kan er eenvoudig gekozen worden tussen een open leefruimte of juist meer privacy tussen de verschillende gedeeltes.

Het eetgedeelte is circa 17 m² groot en biedt volop ruimte voor een lange eettafel, perfect om met het gezin of met vrienden uitgebreid te dineren. De ruime halfopen keuken sluit hier mooi op aan en zorgt voor een fijne verbinding met het eetgedeelte. Zo kan er gekookt worden terwijl er gezellig contact blijft met de mensen aan tafel.

De keuken is uitgebouwd en heeft een oppervlakte van circa 23 m². Deze is voorzien van vloerverwarming en diverse Gaggenau inbouwapparatuur, waaronder een Quooker, kookplaat, afzuigkap, magnetron, oven, koel-vriescombinatie en een vaatwasser. Het kookeiland zorgt daarnaast voor extra werkruimte en veel praktische kastruimte. Wat deze ruimte extra prettig maakt, zijn de openslaande deuren en de schuifpui over de volledige breedte, met uitzicht op de tuin. Op warme dagen kan alles heerlijk open, waardoor binnen en buiten mooi in elkaar overlopen en er echt van het buitenleven genoten kan worden.

Eerste verdieping
Via de hal loopt de trap naar de eerste verdieping. Wat hier meteen opvalt, is het ronde raam naast de trap. Dit geeft de overloop een unieke sfeer en zorgt voor een mooie hoeveelheid natuurlijk daglicht.

De eerste slaapkamer van circa 16 m² ligt aan de achterzijde van de woning en heeft toegang tot het dakterras van bijna 19 m², met uitzicht op de tuin. Dit is een heerlijke plek waar eenvoudig een fijn zitje kan worden gecreëerd om in de avond van de zon te genieten. Extra praktisch is de inbouwkast in deze kamer.

De tweede slaapkamer, eveneens circa 16 m² groot, ligt aan de voorzijde van de woning. De twee grote ramen die bijna tot aan de grond lopen zorgen hier voor een bijzonder lichte ruimte. Ook deze kamer beschikt over een praktische inbouwkast. De houten jaloezieën kunnen bovendien worden overgenomen.

De derde slaapkamer bevindt zich, net als de vorige kamer, aan de voorzijde van de woning en is circa 7 m² groot. Deze ruimte kan naar wens worden ingericht, bijvoorbeeld als kinderkamer, inloopkast, werkplek of hobbyruimte. Ook hier kunnen de houten jaloezieën worden overgenomen.

De nette badkamer is circa 6 m² groot en voorzien van een douche, toilet en een dubbele wastafel met wastafelmeubel. Wat deze ruimte extra prettig maakt, is de deur naar het dakterras. Ideaal om de deur even open te zetten en de badkamer goed te laten doorluchten.

Tweede verdieping
Via de overloop op de eerste verdieping is er achter een deur toegang tot de trap naar de tweede verdieping. Deze verdieping is allesbehalve standaard en biedt verrassend veel extra ruimte en mogelijkheden.

De ruime overloop van bijna 19 m² is sfeervol ingericht en multifunctioneel te gebruiken. Aan de achterzijde van de woning is een kastenwand gecreëerd, waardoor er volop opbergruimte is. Deze plek is bijvoorbeeld ideaal te gebruiken als kleedruimte. Aan de andere kant van de overloop is juist weer een perfecte plek om een werkplek of studiehoek te creëren. Door de dakkapel voelt de ruimte extra ruim aan en komt er veel natuurlijk licht binnen.
Boven de kastenruimte bevindt zich nog een praktische vide van circa 2 m², ideaal voor het opbergen van spullen.

De vierde slaapkamer is circa 11 m² groot en heeft, net als de rest van deze verdieping, een eigen karakter. Het raam aan de zijkant van de woning en de twee dakramen zorgen voor veel daglicht. Extra leuk is ook de vide in deze kamer, die bereikbaar is met een verplaatsbare trap. Handig voor extra bergruimte, maar ook leuk om bijvoorbeeld een knus relaxplekje van te maken, zeker in een kinderkamer.

Via deze slaapkamer is er toegang tot een berging van circa 7 m². Hier bevindt zich de C.V.-ketel en de aansluiting voor de wasmachine. Deze ruimte is daardoor ideaal te gebruiken als wasruimte.

Tuin
De tuin is bereikbaar via een poort aan de zijkant of direct vanuit de keuken door de openslaande deuren of schuifpui. Met een oppervlakte van circa 130 m² biedt de tuin volop ruimte om meerdere fijne plekjes te creëren. De sfeervolle overkapping is daar een mooi voorbeeld van: hier kun je zowel op warme zomerdagen als op koelere dagen heerlijk zitten. De schuur van circa 13 m² is ideaal voor het opbergen van (brom)fietsen, tuinspullen en meer. Deze heeft een deur aan de zijkant en dubbele openslaande deuren aan de voorkant.

Ook de voortuin is ruim opgezet. Doordat de woning iets verder van de weg ligt en er veel groen en bomen aanwezig zijn, geniet je hier van veel privacy. De oprit biedt plek voor meerdere auto’s en is voorbereid voor de installatie van een oplaadpaal.

Bijzonderheden
- Woonoppervlakte 180 m²
- C.V. Ketel HR-107
- Bouwjaar 1940

Koopovereenkomst
Bij de verkoop zal een standaard NVM-koopovereenkomst worden gehanteerd.
Bij woningen ouder dan 20 jaar worden de volgende clausules opgenomen:
- Asbestclausule
- Ouderdomsclausule

Bij aankoop zonder financieringsvoorbehoud geldt een termijn van zes weken na het opstellen van de koopovereenkomst voor het storten van de waarborgsom of bankgarantie.

Deze informatie is met zorg samengesteld. Er wordt geen aansprakelijkheid aanvaard voor eventuele onvolledigheden of onjuistheden. Alle opgegeven maten en oppervlakten zijn indicatief.
+ toon meer

Video

6713 PT, Ede

Beatrixlaan 30

Zaterdag 2 augustus 10:00 - 12:00 uur

€ 875.000 k.k.
ditters makelaars ede
Kopen

Wat is jouw woning écht waard bij Ditters?

Waardecheck

Wij combineren lokale marktkennis met actuele data en ons grote zoekersbestand in de regio.

Je krijgt niet alleen een waarde, maar inzicht in hoe je de maximale verkoopopbrengst kunt realiseren.

Onze aanpak is strategisch, transparant en volledig afgestemd op jouw situatie.

Goed om te weten: deze waardecheck is vrijblijvend en geheel kosteloos
Onafhankelijk

Hypotheekadvies

We helpen je met het vergelijken van aanbiedingen van verschillende banken, zodat je de beste deal krijgt. 
Wij staan klaar om je te begeleiden, zodat je met vertrouwen de juiste hypotheek kunt kiezen.
Goed om te weten: dit adviesgesprek is vrijblijvend en geheel kosteloos

Wij helpen jou bij de keuze van de juiste polis.

Bij een onbezorgde toekomst horen ook goede verzekeringen die uitkeren bij bijvoorbeeld ziekte, schade of diefstal. Onze assurantieadviseurs helpen je bij de keuze van de juiste polis. In heldere taal.

Diverse verzekeringen

  • Opstalverzekering
  • Aansprakelijkheidsverzekering
  • Zorgverzekering
  • Reisverzekering

Buurtinformatie

Ede, Beatrixpark
Inwoners
Woningen
1.039
Inwoners
2.085
28
65
Koop / Huur
28% Huur65% Koop
Huishoudens
Eenpersoon
42.6%
Geen kinderen
30.7%
Met kinderen
26.7%
Leeftijdsopbouw in jaren
Buurt Landelijk
15.110.826.924.523.316.312.324.728.218.5

Locatie

Plattegronden

Klik op de plattegrond voor een grote weergave

Belangrijke documenten

Meetrapport

Brochure

Misschien interessant voor jou

Blijf op de hoogte

Ontvang als eerste updates over nieuw aanbod en mis geen enkele kans om jouw droomwoning te vinden.

Gratis waardebepaling of verkoopgesprek

Met de vrijblijvende waardecheck weet je snel waar je aan toe bent. Onze makelaars kijken naar de lokale markt en vergelijkbare woningen in jouw buurt om een goede schatting te geven.