Omschrijving

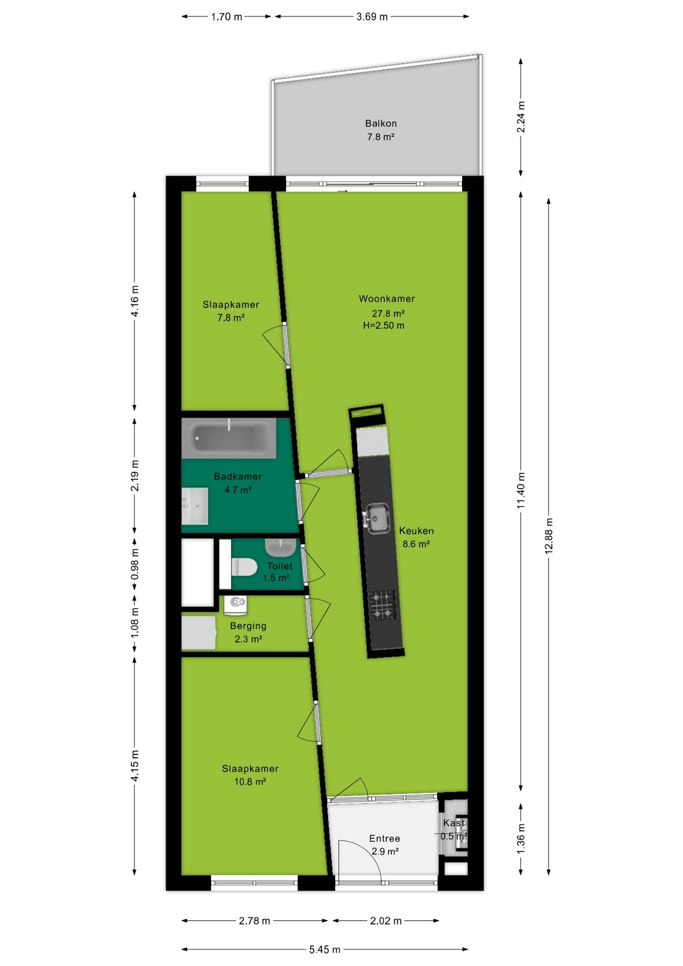
Op zoek naar een comfortabel en instapklaar appartement met extra’s? Dan is dit fijne 3-kamerappartement op de eerste verdieping absoluut het bekijken waard. De woning beschikt over een ruim balkon op het zuidwesten, een lichte woonkamer met aparte eethoek, een complete keuken, twee slaapkamers én een eigen parkeerplaats (separaat bij te kopen).

Daarnaast woon je hier in een verzorgd appartementencomplex met een financieel gezonde Vereniging van Eigenaren. Een uniek pluspunt is de gezamenlijke, groene binnentuin met een fraai aangelegde vijver – een heerlijke plek om even te ontspannen. Dit alles maakt het appartement tot een prettige plek om thuis te komen.

Ligging
De locatie is bijzonder gunstig. Winkelcentrum Stadspoort ligt op korte afstand en voorziet in alle dagelijkse benodigdheden zoals supermarkten, een bakker, slager, drogist en kapper. Ook een apotheek, gezondheidscentrum, bioscoop en congrescentrum Pathé en ziekenhuis Gelderse Vallei bevinden zich in de directe omgeving. Met de auto ben je snel op de A12 en A30 en het intercitystation Ede-Wageningen is eenvoudig per fiets te bereiken.

Pluspunten
+ Goed onderhouden 3-kamerappartement op de eerste woonlaag
+ Ruim balkon op het zuidwesten
+ Twee volwaardige slaapkamers
+ Royale en lichte woonkamer over de volledige breedte
+ Schuifpui naar het balkon
+ Lift in het complex aanwezig
+ Eigen berging in de onderbouw
+ Eigen parkeerplaats in de onderbouw (separaat bij te kopen)
+ Centrale ligging nabij winkels, openbaar vervoer en uitvalswegen

Indeling complex
Via de afgesloten hoofdentree met intercominstallatie kom je binnen in appartementencomplex Atrium.

Indeling appartement
Bij binnenkomst betreed je de hal met meterkast. Via een glazen wand en deur kom je in het eetgedeelte, dat een open verbinding heeft met de woonkamer en een mooi zicht biedt over de hele lengte van de woning. Vanuit de hal zijn de verschillende vertrekken bereikbaar.

De woonkamer strekt zich uit over de volledige breedte van het appartement en kenmerkt zich door de grote raampartijen die zorgen voor veel daglicht. Via de schuifpui is er directe toegang tot het ruime balkon, waar je geniet van privacy en een prettige ligging met zicht op de woonomgeving. De halfopen keuken is praktisch opgesteld langs één wand en biedt volop kastruimte. Deze is voorzien van: gaskookplaat, afzuigkap, oven, vaatwasser en koelkast.

Het appartement telt twee slaapkamers, waarvan een is gelegen aan de galerijzijde. De badkamer beschikt over een ligbad (whirlpool) met douche, een wastafelmeubel en extra opbergruimte. Het separate toilet is uitgevoerd met een hangend toilet en fonteintje.

Daarnaast is er een inpandige berging met opstelling van de C.V.-ketel (Nefit, 2011), mechanische ventilatie en aansluitingen voor wasmachine en droger. De woonkamer, hal en slaapkamers zijn afgewerkt met een laminaatvloer.

Parkeren en bergruimte
In de onderbouw bevindt zich een extra privéberging. Parkeren kan in de afgesloten parkeergarage. De bijbehorende parkeerplaats wordt aangeboden tegen een meerprijs van € 15.000,- kosten koper.

Kenmerken
Woonoppervlakte: 70 m²
Inhoud: 232 m³
Verwarming en warm water: CV-ketel Nefit (2011)
Isolatie: volledig geïsoleerd
Bouwjaar: 1995
Balkonligging: zuidwest
Oplevering: in overleg
Servicekosten: € 147, 51 (€ 139,08 voor het appartement en € 8,43 voor de parkeerplaats) per maand
Parkeerplaats: extra bij te kopen voor € 15.000,- k.k.

Koopovereenkomst
Bij de verkoop zal er een standaard NVM koopovereenkomst worden gehanteerd. Bij woningen welke ouder zijn dan 20 jaar, worden de volgende clausules opgenomen in de koopovereenkomst:
- Asbestclausule;
- Ouderdomsclausule.
Koop je de woning zonder voorbehoud van financiering? Dan zullen wij een termijn hanteren van 4 weken na het opstellen van de koopovereenkomst voor het storten van de bankgarantie/waarborgsom.
Deze informatie is door ons met de nodige zorgvuldigheid samengesteld. Onzerzijds wordt echter geen enkele aansprakelijkheid aanvaard voor enige onvolledigheid, onjuistheid of anderszins, dan wel de gevolgen daarvan. Alle opgegeven maten en oppervlakten zijn indicatief.
+ toon meer

Video

6716 RG, Ede

Dubceksingel 14

Zaterdag 2 augustus 10:00 - 12:00 uur

€ 350.000 k.k.
ditters makelaars ede
Kopen

Wat is jouw woning écht waard bij Ditters?

Waardecheck

Wij combineren lokale marktkennis met actuele data en ons grote zoekersbestand in de regio.

Je krijgt niet alleen een waarde, maar inzicht in hoe je de maximale verkoopopbrengst kunt realiseren.

Onze aanpak is strategisch, transparant en volledig afgestemd op jouw situatie.

Goed om te weten: deze waardecheck is vrijblijvend en geheel kosteloos
Onafhankelijk

Hypotheekadvies

We helpen je met het vergelijken van aanbiedingen van verschillende banken, zodat je de beste deal krijgt. 
Wij staan klaar om je te begeleiden, zodat je met vertrouwen de juiste hypotheek kunt kiezen.
Goed om te weten: dit adviesgesprek is vrijblijvend en geheel kosteloos

Wij helpen jou bij de keuze van de juiste polis.

Bij een onbezorgde toekomst horen ook goede verzekeringen die uitkeren bij bijvoorbeeld ziekte, schade of diefstal. Onze assurantieadviseurs helpen je bij de keuze van de juiste polis. In heldere taal.

Diverse verzekeringen

  • Opstalverzekering
  • Aansprakelijkheidsverzekering
  • Zorgverzekering
  • Reisverzekering

Buurtinformatie

Ede, De Singels
Inwoners
Woningen
1.059
Inwoners
2.415
27
73
Koop / Huur
27% Huur73% Koop
Huishoudens
Eenpersoon
33.7%
Geen kinderen
25.5%
Met kinderen
40.3%
Leeftijdsopbouw in jaren
Buurt Landelijk
19.711.823.228.417.616.312.324.728.218.5

Locatie

Plattegronden

Klik op de plattegrond voor een grote weergave

Misschien interessant voor jou

Blijf op de hoogte

Ontvang als eerste updates over nieuw aanbod en mis geen enkele kans om jouw droomwoning te vinden.

Gratis waardebepaling of verkoopgesprek

Met de vrijblijvende waardecheck weet je snel waar je aan toe bent. Onze makelaars kijken naar de lokale markt en vergelijkbare woningen in jouw buurt om een goede schatting te geven.