Omschrijving

Drive-in woning met garage, tuinkamer en vernieuwde keuken (2024).

Op zoek naar een woning met nét even een andere indeling en verrassend veel mogelijkheden? Dan is Langenhorst 7 er één die je gezien moet hebben. Deze drive-in woning combineert praktisch wonen met comfort, inclusief een tuinkamer op de begane grond, een inpandige garage en diverse recente vernieuwingen.

Een woning die zich perfect aanpast aan jouw manier van wonen.

Ligging
De woning ligt aan een rustige straat in Ede, met een speeltuin letterlijk om de hoek, ideaal voor gezinnen.
Wat de huidige bewoners benadrukken is de rust van de omgeving: het betreft een autoluwe straat met alleen bestemmingsverkeer, wat zorgt voor een veilige en rustige woonomgeving. Bijkomende luxe is de parkeerplaats op eigen terrein met daarnaast nog voldoende parkeerruimte in de straat.

Ook het vrije uitzicht aan de voorkant van de woning is bijzonder. Je kijkt weg over een groenstrook met water wat bijdraagt aan het gevoel van ruimte en natuur rondom het huis. Verder woon je hier op korte afstand van winkelcentrum Bellestein, scholen, openbaar vervoer en de uitvalswegen richting de A12 en A30. De bossen liggen ook dichtbij, waardoor je natuur en voorzieningen moeiteloos combineert.

Pluspunten van de woning
+ Winkel- en gezondheidscentrum en diverse scholen in de nabijheid
+ Autoluwe straat, met onder andere speelgelegenheden voor kinderen
+ Parkeren op eigen terrein
+ Drive-in woning met inpandige garage
+ De rabatdelen met nieuwe isolatie zijn in 2023 geheel vernieuwd
+ Tuinkamer op de begane grond (circa 16 m²)
+ Nieuwe keuken (2024)
+ CV-ketel vernieuwd (2024)
+ Grotendeels HR++ glas

Indeling
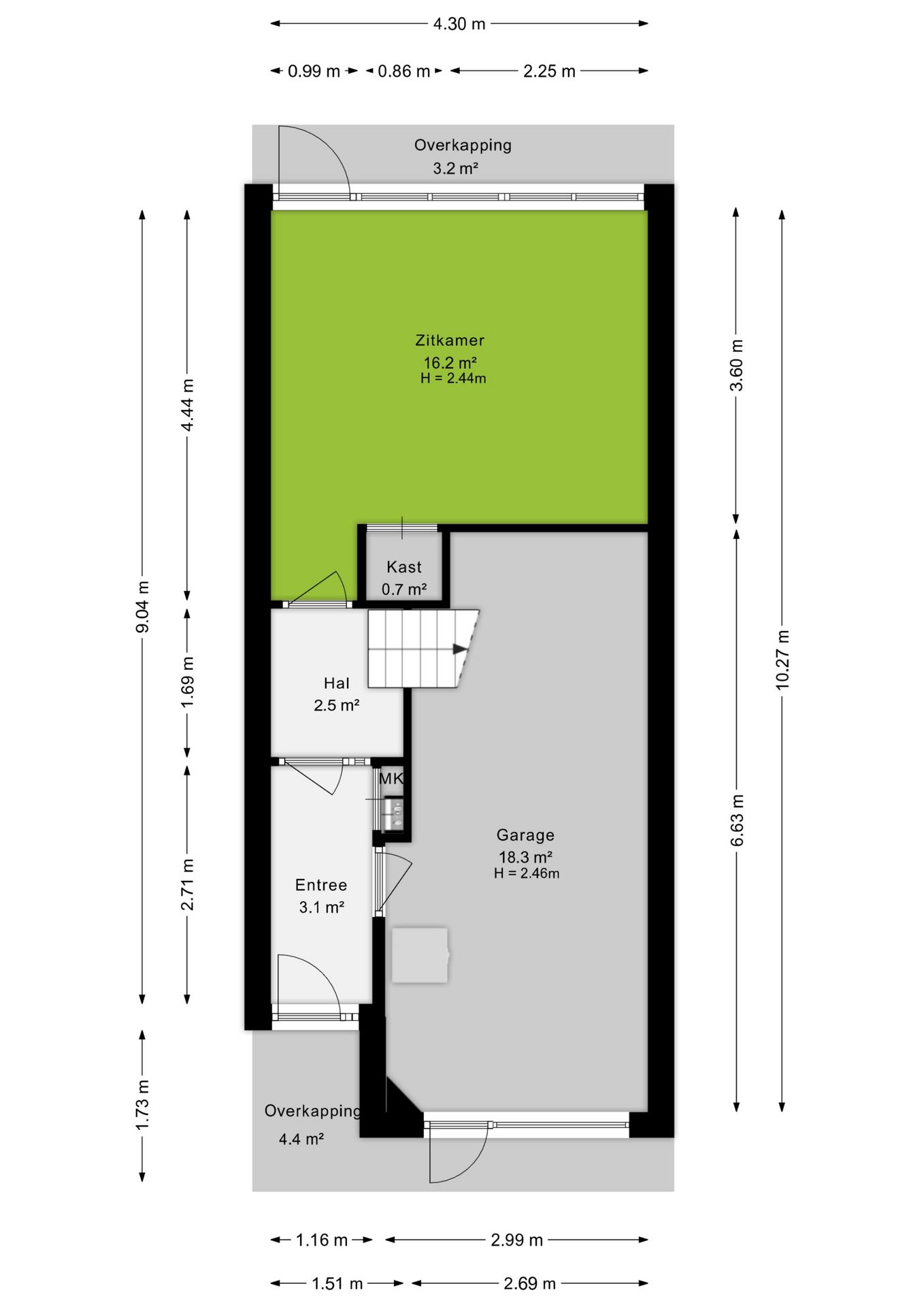
Begane grond
Binnenkomen doe je via de overkapte entree, waar je direct toegang hebt tot de inpandige garage en de vernieuwde meterkast (2025); praktisch en comfortabel.

Maar de echte verrassing wacht achterin de woning. De tuinkamer van circa 16 m² is een ruimte waar je direct mogelijkheden ziet. Of je nu een werkplek aan huis zoekt, een hobbyruimte of juist een extra zitkamer: hier kan het allemaal. Dankzij de directe toegang tot de tuin voelt deze ruimte als een natuurlijk verlengstuk van je woning — een plek waar binnen en buiten moeiteloos in elkaar overlopen.

Eerste verdieping
Hier speelt het dagelijkse leven zich af. De woonkamer vormt een fijne, lichte leefruimte met uitzicht op de achterzijde, een plek waar je tot rust komt of juist samen bent.

De indeling is prettig en logisch: wonen en koken zijn met elkaar verbonden, maar toch subtiel gescheiden. Aan de voorzijde ligt de vernieuwde keuken (2024), strak en compleet uitgevoerd met inbouwapparatuur. Hier kook je niet alleen, hier leef je. Of je nu snel ontbijt of uitgebreid dineert met vrienden.

Daarnaast beschikt deze verdieping over een toiletruimte en praktische kastruimte, precies zoals je het wilt.

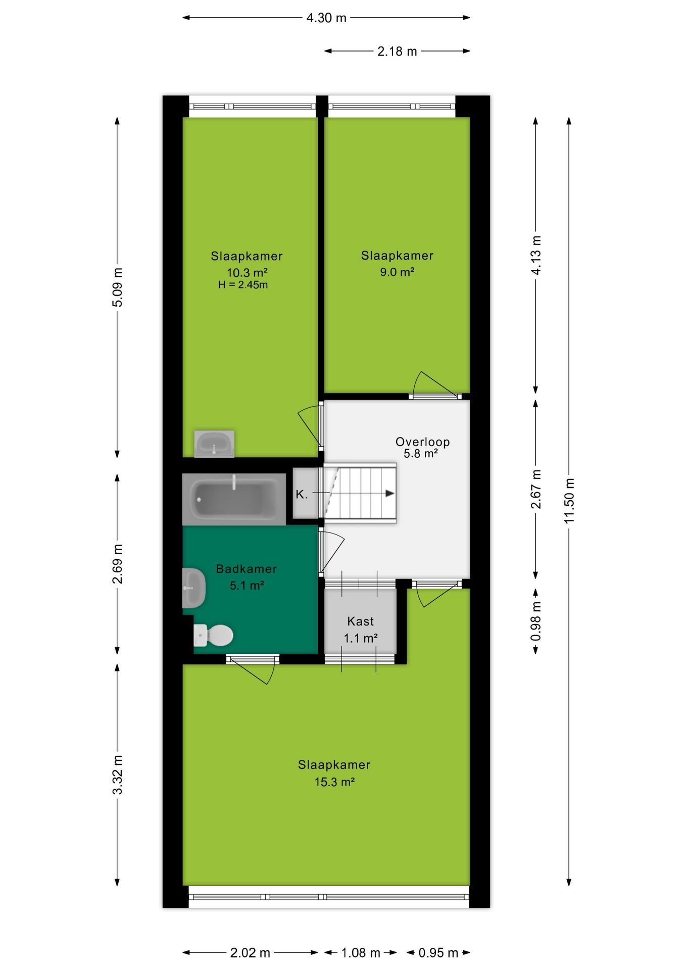
Tweede verdieping
Op de tweede verdieping vind je drie slaapkamers, stuk voor stuk goed in te delen. De kamer aan de voorzijde strekt zich uit over de volle breedte van de woning en voelt daardoor extra ruim, ideaal als hoofdslaapkamer.

De kamers aan de achterzijde bieden flexibiliteit voor een gezin, thuiswerken of hobby’s. Eén van de kamers beschikt zelfs over een eigen wastafel, wat zorgt voor net dat beetje extra comfort.

De badkamer is compleet en praktisch ingericht met een ligbad met douchefunctie, tweede toilet en wastafel.

Buitenruimte
De achtertuin op het noordwesten biedt precies wat je zoekt: zon wanneer je hem wilt, schaduw wanneer het nodig is. In de middag en avond is dit dé plek om te ontspannen na een lange dag. Met een combinatie van terras en gazon creëer je hier eenvoudig meerdere zitplekken; van een rustige koffiehoek tot een gezellige plek om te borrelen met vrienden. Een tuin die je echt gaat gebruiken.

Ben je op zoek naar een woning met een speelse indeling, extra ruimte op de begane grond en recente vernieuwingen? Dan is Langenhorst 7 absoluut het bekijken waard. Plan snel een bezichtiging en ontdek zelf de mogelijkheden van deze verrassende woning.

Afmetingen
Woonoppervlakte 123 m²
Perceeloppervlakte 99 m²
Inhoud woning 471 m³

Bijzonderheden
Verwarming: C.V.-ketel Nefit (2024)
Warm water: C.V.-ketel Nefit (2024)
Isolatie: Gedeeltelijk
Bouwjaar: 1970
Energielabel: C
Tuinligging: Noordoosten
Aanvaarding: In overleg

Koopovereenkomst:
Bij de verkoop zal er een standaard NVM koopovereenkomst worden gehanteerd. De volgende clausules opgenomen in de koopovereenkomst:
- Asbestclausule;
- Ouderdomsclausule;
- Niet bewonersclausule.

Bij aankoop zonder financieringsvoorbehoud geldt een termijn van zes weken na het opstellen van de koopovereenkomst voor het storten van de waarborgsom of bankgarantie.

Deze informatie is met zorg samengesteld. Er wordt geen aansprakelijkheid aanvaard voor eventuele onvolledigheden of onjuistheden. Alle opgegeven maten en oppervlakten zijn indicatief.
+ toon meer

Video

6714 LG, Ede

Langenhorst 7

Zaterdag 2 augustus 10:00 - 12:00 uur

€ 389.000 k.k.
ditters makelaars ede
Kopen

Wat is jouw woning écht waard bij Ditters?

Waardecheck

Wij combineren lokale marktkennis met actuele data en ons grote zoekersbestand in de regio.

Je krijgt niet alleen een waarde, maar inzicht in hoe je de maximale verkoopopbrengst kunt realiseren.

Onze aanpak is strategisch, transparant en volledig afgestemd op jouw situatie.

Goed om te weten: deze waardecheck is vrijblijvend en geheel kosteloos
Onafhankelijk

Hypotheekadvies

We helpen je met het vergelijken van aanbiedingen van verschillende banken, zodat je de beste deal krijgt. 
Wij staan klaar om je te begeleiden, zodat je met vertrouwen de juiste hypotheek kunt kiezen.
Goed om te weten: dit adviesgesprek is vrijblijvend en geheel kosteloos

Wij helpen jou bij de keuze van de juiste polis.

Bij een onbezorgde toekomst horen ook goede verzekeringen die uitkeren bij bijvoorbeeld ziekte, schade of diefstal. Onze assurantieadviseurs helpen je bij de keuze van de juiste polis. In heldere taal.

Diverse verzekeringen

  • Opstalverzekering
  • Aansprakelijkheidsverzekering
  • Zorgverzekering
  • Reisverzekering

Locatie

Plattegronden

Klik op de plattegrond voor een grote weergave

Belangrijke documenten

vragenlijst deel b

lijst van zaken

brochure

Misschien interessant voor jou

Blijf op de hoogte

Ontvang als eerste updates over nieuw aanbod en mis geen enkele kans om jouw droomwoning te vinden.

Gratis waardebepaling of verkoopgesprek

Met de vrijblijvende waardecheck weet je snel waar je aan toe bent. Onze makelaars kijken naar de lokale markt en vergelijkbare woningen in jouw buurt om een goede schatting te geven.