Omschrijving

De Paul Gabriëlstraat 41 bevindt zich in de geliefde wijk Maandereng, in het rustige en groene buurtdeel Elskamp. Deze omgeving staat bekend om zijn kindvriendelijke karakter, nette onderhoudsniveau en ruime opzet. Alle voorzieningen liggen binnen handbereik.
Op loop- en fietsafstand bevindt zich het Winkelcentrum Stadspoort, waar je terecht kunt voor dagelijkse boodschappen en diverse speciaalzaken. Ook belangrijke uitvalswegen, bushaltes, fietsverbindingen richting het centrum en meerdere basisscholen liggen nabij.
Met vijf goed bemeten slaapkamers, een moderne afwerking en duurzame voorzieningen vormt deze woning een bijzonder aantrekkelijke plek om te wonen. De combinatie van comfort, ruimte en een prettige ligging maakt dit een perfecte woonomgeving voor wie het beste uit dagelijks woongemak wil halen.

Pluspunten
-Vernieuwde badkamer (2025) met luxe afwerking en vloerverwarming
-Nieuwe keuken (2025) modern met inbouwapparatuur
-Energielabel A, energiezuinig en toekomstbestendig
-16 zonnepanelen
-Eigen oprit met elektrische laadpaal
-Ruime voor- en achtertuin met overkapping
-Vijf slaapkamers + extra zolderruimte

Begane grond
Via de ruime oprit bereik je de entree van de woning. Hier kom je binnen in de net afgewerkte hal, voorzien van de meterkast en een separaat toilet.
De ruime woonkamer van circa 38 m² biedt volop licht en ruimte. Door de fijne indeling kun je hier zowel een heerlijke zithoek creëren als een comfortabele eethoek realiseren. De stijlvolle zwarte accenten in deuren en kozijnen geven het geheel een moderne en luxe uitstraling.
Via de openslaande deur stap je direct de tuin in, waardoor binnen en buiten mooi in elkaar overlopen.

De open trap zorgt voor een ruimtelijk gevoel, waardoor de volledige woonkamer optimaal kan worden benut.
Loop je door, dan kom je bij de vernieuwde U-vormige keuken, die is uitgevoerd met zwarte fronten, een stijlvol marmeren werkblad en accenttegels op de achterwand. Deze combinatie geeft de keuken een luxe en moderne uitstraling.
De keuken is uitgerust met diverse inbouwapparatuur, geïntrigeerde afzuigsysteem, ingebouwde spots en strakke zwarte details, waardoor het geheel perfect aansluit bij de rest van de woning.

Eerste verdieping
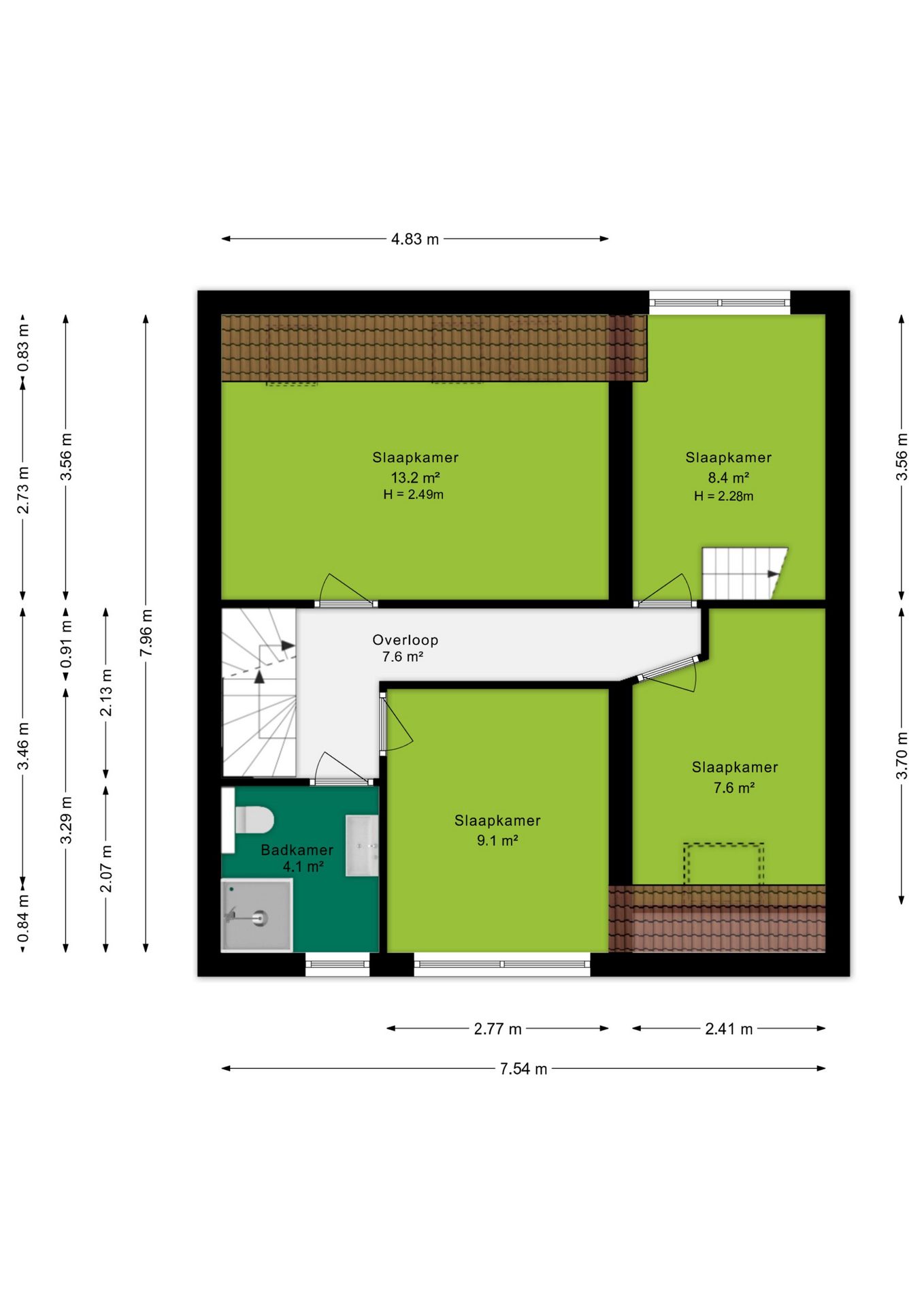
Via de trap kom je uit op de overloop. Op deze etage bevinden zich vier goed bemeten slaapkamers van circa 13 m², 9 m² en twee keer 8 m². Alle kamers zijn netjes afgewerkt en profiteren van veel daglicht dankzij de grote ramen.
Twee slaapkamers beschikken over knieschotten, ideaal voor het opbergen van extra spullen.
Een van de slaapkamers heeft bovendien een vaste trap die toegang geeft tot een deel van de zolder, waar zich een extra ruimte van circa 4 m² bevindt. Perfect te gebruiken als opslag, hobbyruimte of compacte werkplek.

De vernieuwde, moderne badkamer heeft een luxe uitstraling en is met veel zorg afgewerkt. De ruimte is uitgerust met een ruime inloopdouche, een toilet en een wastafel met stijlvol meubel.
Ook hier komen de zwarte accenten terug, zoals in de glazen douchewand, wat de badkamer een chique en eigentijdse uitstraling geeft.
Voor extra comfort is de badkamer voorzien van vloerverwarming, zodat je hier elke dag heerlijk warm kunt beginnen.

Tweede verdieping
Op de tweede verdieping kom je uit op de overloop, waar zich de aansluiting voor de wasmachine bevindt. Aangrenzend bevindt zich een comfortabele vijfde slaapkamer van circa 9 m². De kamer is uitgerust met twee royale dakramen, waardoor er de hele dag door een overvloed aan natuurlijk licht naar binnen valt. Dit zorgt voor een frisse, open uitstraling en maakt de ruimte ideaal als slaapkamer, werkplek of hobbykamer.

Tuin
De woning beschikt over zowel een ruime voor- als achtertuin. In de achtertuin, gelegen op het noordoosten, kun je heerlijk van de zon genieten. Er is volop ruimte voor groen en een gezellig zitje. Daarnaast is er een overkapping over de volledige breedte, waardoor je het hele jaar door comfortabel buiten kunt zitten.

Parkeren
Het perceel beschikt over een eigen parkeerplaats/oprit, waar een elektrische laadpaal is geplaatst. Aansluitend vind je een carpoort en een berging, van waaruit je eenvoudig toegang hebt tot de tuin.

Koopovereenkomst
Bij de verkoop zal een standaard NVM-koopovereenkomst worden gehanteerd.
Bij woningen ouder dan 20 jaar worden de volgende clausules opgenomen:

- Asbestclausule
- Ouderdomsclausule

Bij aankoop zonder financieringsvoorbehoud geldt een termijn van zes weken na het opstellen van de koopovereenkomst voor het storten van de waarborgsom of bankgarantie.

Deze informatie is met zorg samengesteld. Er wordt geen aansprakelijkheid aanvaard voor eventuele onvolledigheden of onjuistheden. Alle opgegeven maten en oppervlakten zijn indicatief.
+ toon meer

Video

6717 RA, Ede

Paul Gabriëlstraat 41

Zaterdag 2 augustus 10:00 - 12:00 uur

€ 539.000 k.k.
ditters makelaars ede
Kopen

Wat is jouw woning écht waard bij Ditters?

Waardecheck

Wij combineren lokale marktkennis met actuele data en ons grote zoekersbestand in de regio.

Je krijgt niet alleen een waarde, maar inzicht in hoe je de maximale verkoopopbrengst kunt realiseren.

Onze aanpak is strategisch, transparant en volledig afgestemd op jouw situatie.

Goed om te weten: deze waardecheck is vrijblijvend en geheel kosteloos
Onafhankelijk

Hypotheekadvies

We helpen je met het vergelijken van aanbiedingen van verschillende banken, zodat je de beste deal krijgt. 
Wij staan klaar om je te begeleiden, zodat je met vertrouwen de juiste hypotheek kunt kiezen.
Goed om te weten: dit adviesgesprek is vrijblijvend en geheel kosteloos

Wij helpen jou bij de keuze van de juiste polis.

Bij een onbezorgde toekomst horen ook goede verzekeringen die uitkeren bij bijvoorbeeld ziekte, schade of diefstal. Onze assurantieadviseurs helpen je bij de keuze van de juiste polis. In heldere taal.

Diverse verzekeringen

  • Opstalverzekering
  • Aansprakelijkheidsverzekering
  • Zorgverzekering
  • Reisverzekering

Buurtinformatie

Ede, Elskamp
Inwoners
Woningen
1.340
Inwoners
3.380
40
60
Koop / Huur
40% Huur60% Koop
Huishoudens
Eenpersoon
32.0%
Geen kinderen
26.3%
Met kinderen
41.0%
Leeftijdsopbouw in jaren
Buurt Landelijk
20.013.027.230.59.816.312.324.728.218.5

Locatie

Plattegronden

Klik op de plattegrond voor een grote weergave

Belangrijke documenten

Meetrapport

Brochure

Vragenlijst deel B.

Lijst van zaken

Kadastrale kaart

Misschien interessant voor jou

Blijf op de hoogte

Ontvang als eerste updates over nieuw aanbod en mis geen enkele kans om jouw droomwoning te vinden.

Gratis waardebepaling of verkoopgesprek

Met de vrijblijvende waardecheck weet je snel waar je aan toe bent. Onze makelaars kijken naar de lokale markt en vergelijkbare woningen in jouw buurt om een goede schatting te geven.