Omschrijving

Gelegen in de Bloemenbuurt, jouw toekomstige 3-kamerappartement met dubbele balkons en een privéberging in het souterrain.

Jouw nieuwe woning bevindt zich op de 3e en hoogste verdieping van het gebouw. Het is helemaal voorzien van dubbel glas en kunststof kozijnen aan zowel de voor- als achterzijde. Daarnaast is er een CV-installatie uit 2019 aanwezig.

Je zult vlakbij het Rozenplein met zijn winkelcentrum, kinderboerderij Proosdij en meerdere speeltuinen wonen. Zowel het centrum van Ede als het NS-station zijn op fietsafstand. En direct voor de deur is er ruim voldoende parkeergelegenheid voor jouw bezoek.

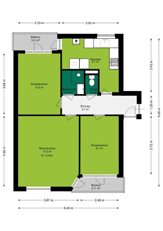
Indeling:
Via een centrale hal met intercom, bellenbord en brievenbussen kun je jouw appartement bereiken.

Appartement:
Via de entree kom je bij de hal welke voorzien is van een lamelparketvloer, een moderne meterkast (4 groepen en dubbele aardlekschakelaar), een toiletruimte en biedt toegang tot alle vertrekken.

De ruime en lichte woonkamer, gelegen aan de straatzijde, heeft een deur die naar het voorste balkon leidt. Dit balkon, gepositioneerd op het zonnige zuidwesten, geniet van zonlicht gedurende de hele dag. De wanden zijn afgewerkt met glasvezelbehang en de vloer is ook voorzien van lamelparket.

De afgesloten keuken beschikt over een keurige inbouwkeuken (2017) met een koelkast, oven, gaskookplaat, afzuigkap en carrouselkast. Hier vind je ook de CV ketel (Remeha, 2019) en de aansluiting voor de wasmachine. De keuken geeft toegang tot het balkon aan de achterzijde, met ochtendzon.

Vanuit de hal kom je bij de slaapkamers en de badkamer. Beide slaapkamers bevinden zich aan de achter- en voorzijde en beschikken beide over een deur naar het balkon en een lamelparketvloer. De badkamer is uitgerust met een douchecabine met thermostaatkraan, een wastafel en een granieten vloer.

Berging:
Op de begane grond beschik je over je eigen berging waar je veilig je spullen kunt opbergen.

Afmetingen:
Woonkamer: 17.2 m²
Keuken: 9.1 m²
Slaapkamer 1 10.5m²
Slaapkamer 2 9.1 m²
Badkamer 2.1 m²
Berging 11.2 m²

Inhoud woning: 198 m³
Woonoppervlakte: 57 m²

Bijzonderheden:
Verwarming: Remeha Tzerra (2019)
Warm water: Remeha Tzerra (2019)
Isolatie: Alles dubbel glas
Bouwjaar: 1956
Balkons: Zuidwesten en noordoosten
Aanvaarding: In overleg

Extra's:
- Lichte woonkamer;
- Recent schilderwerk en sauswerk op de wanden;
- Keurige keuken met inbouwapparatuur;
- Recent geïnstalleerde CV-ketel;
- Netjes uitgevoerde badkamer;
- Strak afgewerkte woning met lamelparketvloer;
- Overal dubbel glas en kunststof kozijnen;
- Balkons aan beide zijden van het appartement;
- Mooi uitzicht op een rustig plein;
- Gezonde VvE met servicekosten van € 145,39 per maand;

Koopovereenkomst:
Bij de verkoop zal er een standaard NVM koopovereenkomst worden gehanteerd. Bij woningen welke ouder zijn dan 20 jaar, worden de volgende clausules opgenomen in de koopovereenkomst:
- Asbestclausule;
- Ouderdomsclausule.

Koop je de woning zonder voorbehoud van financiering? Dan zullen wij een termijn hanteren van 14 dagen na het opstellen van de koopovereenkomst voor het storten van de bankgarantie/waarborgsom.

Deze informatie is door ons met de nodige zorgvuldigheid samengesteld. Onzerzijds wordt echter geen enkele aansprakelijkheid aanvaard voor enige onvolledigheid, onjuistheid of anderszins, dan wel de gevolgen daarvan. Alle opgegeven maten en oppervlakten zijn indicatief.
+ toon meer
deze woning is Verkocht

Anjelierlaan 12 2 Ede

Anjelierlaan 12 2

6713 GG, Ede
Ditters open huis: 5 april 2025 10:00 - 12:00 uur
Landelijke Open Huizen Route NVM: 5 april 2025 11:00 uur - 15:00 uur
Vanaf€ 255.000 k.k.

Schakel een aankoopmakelaar in.

Snel handelen helpt je jouw droomhuis te bemachtigen. Zo vergroot je de kans dat je er op tijd bij bent.
Ede
verkocht

Of maak vrijblijvend een zoekprofiel aan.

Vergelijkbare woningen

Hypotheken

Onafhankelijk hypotheekadvies

  • Ligt jouw droomhuis binnen handbereik?
  • Wil je jouw huidige hypotheek verhogen?
  • Is er hypotheekruimte voor verduurzaming?

Blijf op de hoogte

Ontvang als eerste updates over nieuw aanbod en mis geen enkele kans om jouw droomwoning te vinden.

Gratis waardebepaling of verkoopgesprek

Met de vrijblijvende waardecheck weet je snel waar je aan toe bent. Onze makelaars kijken naar de lokale markt en vergelijkbare woningen in jouw buurt om een goede schatting te geven.

Realiseer al jouw woondromen met Ditters

Wij zijn een team van gedreven vastgoedexperts met een passie voor het maken van verbindingen – tussen kopers en verkopers, huurders en verhuurders. Met een frisse kijk op de makelaardij combineren we expertise met creativiteit. Onze makelaars luisteren écht en nemen de tijd om jouw wensen te begrijpen.


Bij Ditters sta je er niet alleen voor. We denken met je mee, begeleiden je in elke stap en zijn altijd bereikbaar voor vragen. Neem gerust contact met ons op – we helpen je graag verder!