Omschrijving

Ruime gezinswoning met dakopbouw, energielabel A, 15 zonnepanelen en diepe tuin op het oosten.

Aan de rustige en kindvriendelijke Boedelhof vind je deze verrassend ruime eengezinswoning met een royale dakopbouw aan de achterzijde. De woning beschikt over vier ruime slaapkamers, een energielabel A, dubbelglas met HR-glas, 15 zonnepanelen, merendeels kunststof kozijnen en een eigen oprit met laadpaal. De diepe achtertuin op het oosten biedt volop privacy en grenst aan het groen van de Binnenhof, zonder inkijk van achterburen.

De woning is gelegen in een rustige straat met alleen bestemmingsverkeer, wat zorgt voor een kindvriendelijke woonomgeving. Op loopafstand bevinden zich winkelcentra Bellestein en Parkweide, met een breed aanbod aan winkels voor de dagelijkse boodschappen. Ook voorzieningen zoals een basisschool, kinderopvang, gezondheidscentrum en een bushalte zijn dichtbij gelegen. En binnen enkele minuten bevind je je op de N224, met uitstekende verbindingen naar de A30 en A12.

Kenmerken van de woning:
- Energielabel A
- 15 zonnepanelen
- Dubbele beglazing en HR-glas
- Dakopbouw aan de achterzijde
- Airconditioning op begane grond en tweede verdieping
- Eigen oprit met laadpaal
- Vier ruime slaapkamers (mogelijkheid tot vijf)
- Rustige, kindvriendelijke straat met alle voorzieningen in de buurt
- Ruime bergingen voor fietsen en opslag

Indeling
Begane grond
Via de voordeur kom je in de ruime entree met toegang tot de meterkast, het toilet met fonteintje en de trapopgang. De lichte woonkamer van maar liefst 32,3 m² is tuingericht en heeft grote raampartijen die zorgen voor veel daglicht. Een handige bergkast biedt extra opbergruimte.
De open keuken van ruim 8 m² is voorzien van diverse inbouwapparatuur, waaronder een gasfornuis, afzuigkap en stoomoven. De eethoek bevindt zich tussen de keuken en de woonkamer in. De airconditioning in de woonkamer zorgt voor verkoeling in de zomer én verwarming in de winter.

Eerste verdieping
Via de vaste trap kom je op de overloop van circa 5 m², die toegang biedt tot drie ruime slaapkamers en de badkamer.
Aan de voorzijde bevindt zich een slaapkamer van 12,7 m². Aan de achterzijde liggen twee slaapkamers van 13,1 m² en 9,9 m². Alle kamers zijn licht en van prettig formaat.
De badkamer is 6,7 m² groot en voorzien van een whirlpool, inloopdouche, tweede toilet en een groot wastafelmeubel.

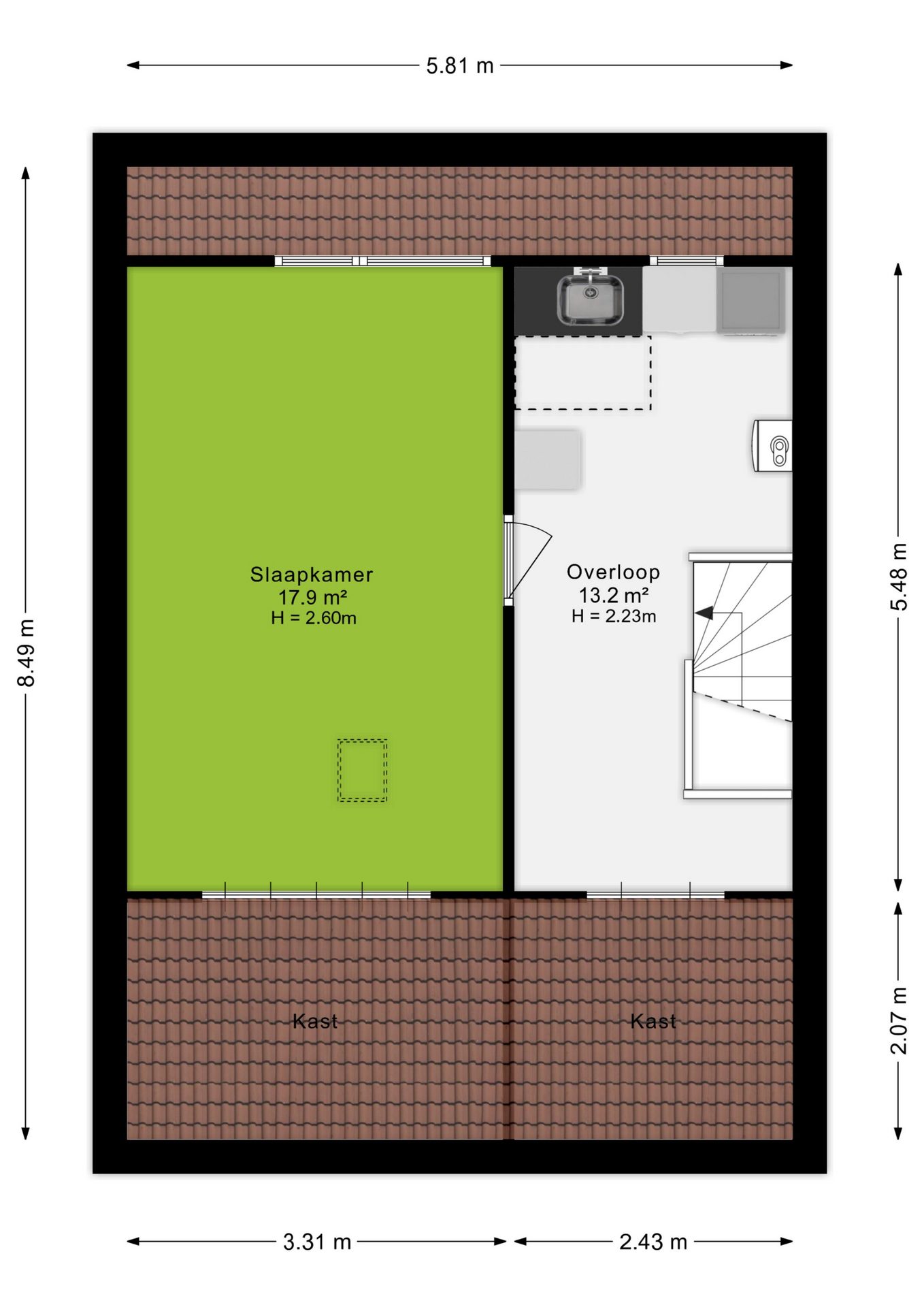
Tweede verdieping
Een vaste trap leidt naar de tweede verdieping. Hier bevindt zich een grote overloop van 13,2 m² met aansluitingen voor de wasmachine en droger, een gootsteen en de cv-opstelling.
Daarnaast is er een royale vierde slaapkamer van bijna 18 m², voorzien van een dakraam en airconditioning. Dankzij de dakopbouw is hier volop ruimte – en eventueel is het mogelijk om nog een extra slaapkamer te realiseren. Onder de schuine kap is veel handige opbergruimte aanwezig.

Buitenruimte
De voortuin is volledig bestraat en biedt ruimte om te parkeren op eigen terrein. Er is een laadpaal voor elektrische auto’s én een stenen berging met elektra. Onder het keukenraam bevindt zich een gezellig zitje waar je kunt genieten van de middag- en avondzon.
De zonnige achtertuin ligt op het oosten, is onderhoudsvriendelijk ingericht met bestrating en groene borders en biedt dankzij houten schuttingen volop privacy. Achterin de tuin staat een ruime houten berging/hobbyruimte, ideaal voor opslag of klussen.

Koopovereenkomst:
Bij de verkoop zal er een standaard NVM koopovereenkomst worden gehanteerd. Bij woningen welke ouder zijn dan 20 jaar, worden de volgende clausules opgenomen in de koopovereenkomst:
- Asbestclausule
- Ouderdomsclausule

Koop je de woning zonder voorbehoud van financiering? Dan zullen wij een termijn hanteren van 6 weken na het opstellen van de koopovereenkomst voor het storten van de bankgarantie/waarborgsom.

Deze informatie is door ons met de nodige zorgvuldigheid samengesteld. Onzerzijds wordt echter geen enkele aansprakelijkheid aanvaard voor enige onvolledigheid, onjuistheid of anderszins, dan wel de gevolgen daarvan. Alle opgegeven maten en oppervlakten zijn indicatief.
+ toon meer
deze woning is Verkocht

Boedelhof 11 Ede

Boedelhof 11

6715 DH, Ede
Ditters open huis: 5 april 2025 10:00 - 12:00 uur
Landelijke Open Huizen Route NVM: 5 april 2025 11:00 uur - 15:00 uur
Vanaf€ 415.000 k.k.

Schakel een aankoopmakelaar in.

Snel handelen helpt je jouw droomhuis te bemachtigen. Zo vergroot je de kans dat je er op tijd bij bent.
Ede
verkocht

Of maak vrijblijvend een zoekprofiel aan.

Vergelijkbare woningen

Hypotheken

Onafhankelijk hypotheekadvies

  • Ligt jouw droomhuis binnen handbereik?
  • Wil je jouw huidige hypotheek verhogen?
  • Is er hypotheekruimte voor verduurzaming?

Blijf op de hoogte

Ontvang als eerste updates over nieuw aanbod en mis geen enkele kans om jouw droomwoning te vinden.

Gratis waardebepaling of verkoopgesprek

Met de vrijblijvende waardecheck weet je snel waar je aan toe bent. Onze makelaars kijken naar de lokale markt en vergelijkbare woningen in jouw buurt om een goede schatting te geven.

Realiseer al jouw woondromen met Ditters

Wij zijn een team van gedreven vastgoedexperts met een passie voor het maken van verbindingen – tussen kopers en verkopers, huurders en verhuurders. Met een frisse kijk op de makelaardij combineren we expertise met creativiteit. Onze makelaars luisteren écht en nemen de tijd om jouw wensen te begrijpen.


Bij Ditters sta je er niet alleen voor. We denken met je mee, begeleiden je in elke stap en zijn altijd bereikbaar voor vragen. Neem gerust contact met ons op – we helpen je graag verder!