Omschrijving

In een rustige straat bevindt zich deze tweelaagse tussenwoning met drie ruime slaapkamers en volop toekomstmogelijkheden. De woning biedt een lichte woonkamer aan de voorzijde en een half open keuken aan de tuinzijde, wat zorgt voor een gezellige en functionele indeling. De tuin, gelegen op het noordoosten, biedt een serene plek om te ontspannen, terwijl de aanwezige ruime berging van circa 13m² opslagruimte biedt. Er zijn uitstekende mogelijkheden om de woning te moderniseren of in de toekomst uit te breiden met een opbouw, waardoor je de woning volledig naar eigen wens kunt aanpassen en inrichten.

In de directe omgeving zijn verschillende voorzieningen te bereiken: genieten in het Proosdijpark, wandelen naar het winkelcentrum 'Bellestein' voor je dagelijkse boodschappen en op korte afstand vind je (basis)scholen, openbaar vervoer en sportgelegenheden. Via de tunnelverbinding bij de Rijksweg ben je binnen enkele fietsminuten bij winkelcentrum 'Parkweide'. Hier een bezoek aan de kapper, een belegd broodje bij de bakker of de dagelijkse boodschappen doen? Dat kan hier allemaal. Liever een moment in de natuur? Voor een wandeling op "De Ginkelse Heide" ben je nog geen tien minuten onderweg en geniet je van de rust. Uitvalswegen A12 en A30 zijn door de Rijksweg goed te bereiken.

Alle feiten op een rij:
- Tussenwoning met drie ruime slaapkamers en ruime berging
- Verzorgde onderhoudsvriendelijke tuin met ruime berging van circa 13m²
- Alle ramen zijn voorzien van screens
- De woning beschikt over energielabel B
- De CV-ketel (2012, Atag) betreft een huurketel, de kosten hiervoor zijn € 20,- per maand
- Op korte afstand van alle dagelijkse voorzieningen

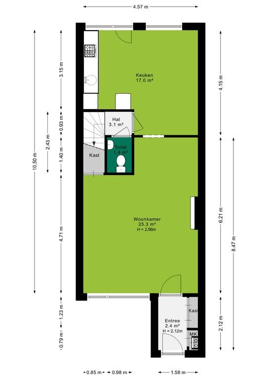
Indeling
Begane grond
Hal/entree met vaste kastenwand, ideaal voor het opbergen van de jassen en schoenen. Vanuit de hal bereik je de woonkamer welke is gelegen aan de voorzijde van de woning met zicht op de straat. Aan de achterzijde van de woning tref je de half open keuken ingericht met een keuken in rechte opstelling. De deur biedt toegang naar de verzorgde, onderhoudsarme achtertuin, berging en achterom.

Eerste verdieping
De tussenhal geeft toegang naar het toilet en de trapopgang naar de bovenverdieping. De overloop beidt toegang naar drie ruime slaapkamers, de badkamer, een bergkast en de stookruimte met toilet. De slaapkamers zijn allen van een fijn formaat. De grootste slaapkamer van 14m² bevindt zich aan de achterzijde van de woning en beschikt over een vaste schuifkastwand. De overige twee slaapkamers zijn beiden circa 9m². De badkamer van circa 5m² beschikt over een ruime inloopdouche, wastafel met wastafelmeubel en badkamerkasten. In de stookkast is een toilet gerealiseerd en daarnaast beschik je over een vaste kast op de overloop.

Tuin:
Met de tuin die op het noordoosten is gesitueerd kun je hier vroeg in de ochtend genieten van de zon. Ook in de zomer is de zon achterin de tuin aanwezig en is er een plekje in de zon of schaduw te vinden. Zowel de voor als achtertuin zijn verzorgd, met diverse borders, beplanting en bestrating. In de achtertuin beschik je over een ruime berging en achterom.

Woonoppervlakte: 98m²
Perceeloppervlakte: 135m²
Inhoud woning: 327m³

Bijzonderheden
Verwarming: C.V. ketel (bouwjaar 2012)
Warm water: C.V. ketel (bouwjaar 2012)
Isolatie: Volledig geïsoleerd
Bouwjaar: 1972
Tuinligging: Noordoosten
Aanvaarding: In overleg, kan snel

Koopovereenkomst:
Bij de verkoop zal er een standaard NVM koopovereenkomst worden gehanteerd. Bij woningen welke ouder zijn dan 20 jaar, worden de volgende clausules opgenomen in de koopovereenkomst:
- Asbestclausule
- Ouderdomsclausule

Koopt u de woning zonder voorbehoud van financiering? Dan zullen wij een termijn hanteren van 14 dagen na het opstellen van de koopovereenkomst voor het storten van de bankgarantie/waarborgsom.

Deze informatie is door ons met de nodige zorgvuldigheid samengesteld. Onzerzijds wordt echter geen enkele aansprakelijkheid aanvaard voor enige onvolledigheid, onjuistheid of anderszins, dan wel de gevolgen daarvan. Alle opgegeven maten en oppervlakten zijn indicatief.
+ toon meer
deze woning is Verkocht

Boekhorst 24 Ede

Boekhorst 24

6714 JT, Ede
Ditters open huis: 5 april 2025 10:00 - 12:00 uur
Landelijke Open Huizen Route NVM: 5 april 2025 11:00 uur - 15:00 uur
Vanaf€ 315.000 k.k.

Schakel een aankoopmakelaar in.

Snel handelen helpt je jouw droomhuis te bemachtigen. Zo vergroot je de kans dat je er op tijd bij bent.
Ede
verkocht

Of maak vrijblijvend een zoekprofiel aan.

Vergelijkbare woningen

Hypotheken

Onafhankelijk hypotheekadvies

  • Ligt jouw droomhuis binnen handbereik?
  • Wil je jouw huidige hypotheek verhogen?
  • Is er hypotheekruimte voor verduurzaming?

Blijf op de hoogte

Ontvang als eerste updates over nieuw aanbod en mis geen enkele kans om jouw droomwoning te vinden.

Gratis waardebepaling of verkoopgesprek

Met de vrijblijvende waardecheck weet je snel waar je aan toe bent. Onze makelaars kijken naar de lokale markt en vergelijkbare woningen in jouw buurt om een goede schatting te geven.

Realiseer al jouw woondromen met Ditters

Wij zijn een team van gedreven vastgoedexperts met een passie voor het maken van verbindingen – tussen kopers en verkopers, huurders en verhuurders. Met een frisse kijk op de makelaardij combineren we expertise met creativiteit. Onze makelaars luisteren écht en nemen de tijd om jouw wensen te begrijpen.


Bij Ditters sta je er niet alleen voor. We denken met je mee, begeleiden je in elke stap en zijn altijd bereikbaar voor vragen. Neem gerust contact met ons op – we helpen je graag verder!