Omschrijving

Moderne hoekwoning op het Enka-terrein met erker, vier slaapkamers en tuin met achterom.
Deze moderne hoekwoning uit 2017 biedt 120 m² woonruimte verdeeld over drie verdiepingen. Met vier slaapkamers, een lichte woonkamer met erker, een complete keuken en een tuin met achterom is dit een heerlijke gezinswoning. Dankzij energielabel A, vloerverwarming op de begane grond, stadsverwarming en 12 zonnepanelen woon je hier comfortabel en energiezuinig.

De woning ligt in een rustige straat op het geliefde Enka-terrein, een moderne wijk met karakteristieke architectuur, veel groen en een prettige, ruimtelijke opzet. Het bos ligt op korte afstand, ideaal voor wandelingen of sportieve uitstapjes. Het Hoekelumse Bos is slechts 5 minuten lopen en de Sysselt binnen 10 minuten te bereiken. Op loopafstand vind je winkelcentrum Spindop, met supermarkten, winkels en basisscholen. Station Ede-Wageningen ligt praktisch om de hoek, waardoor reizen naar Arnhem, Utrecht of Wageningen eenvoudig is. Via de A12 ben je snel verbonden met de rest van het land.

Alle kenmerken op een rij:
+ Mooie hoekwoning met erker
+ Vier slaapkamers
+ Vloerverwarming op de begane grond
+ Moderne keuken met inbouwapparatuur
+ Energielabel A en 12 zonnepanelen
+ Gelegen in het geliefde Enka-terrein

Indeling
Begane grond
De voordeur in boogvorm valt direct op en geeft de woning een bijzondere uitstraling. In de hal bevinden zich de meterkast, het toilet en de trapopgang naar de eerste verdieping. De woonkamer is licht en sfeervol dankzij de erker en de openslaande deuren naar de tuin. Er is volop ruimte voor een zit- en eethoek.
De keuken ligt aan de voorzijde en is uitgevoerd in een lichte hoekopstelling. Deze is uitgerust met een inductieplaat, afzuigkap, combi-oven, koelkast, vaatwasser en een ingebouwd koffiezetapparaat. De praktische trapkast biedt extra bergruimte. De gehele begane grond is voorzien van vloerverwarming.

Eerste verdieping
Op de eerste verdieping bevinden zich drie slaapkamers van circa 11 m², 9 m² en 5 m². Alle kamers hebben veel daglicht en natuurlijke ventilatie. De badkamer (ca. 5 m²) is compleet uitgevoerd met een ligbad, inloopdouche, wastafelmeubel en toilet.

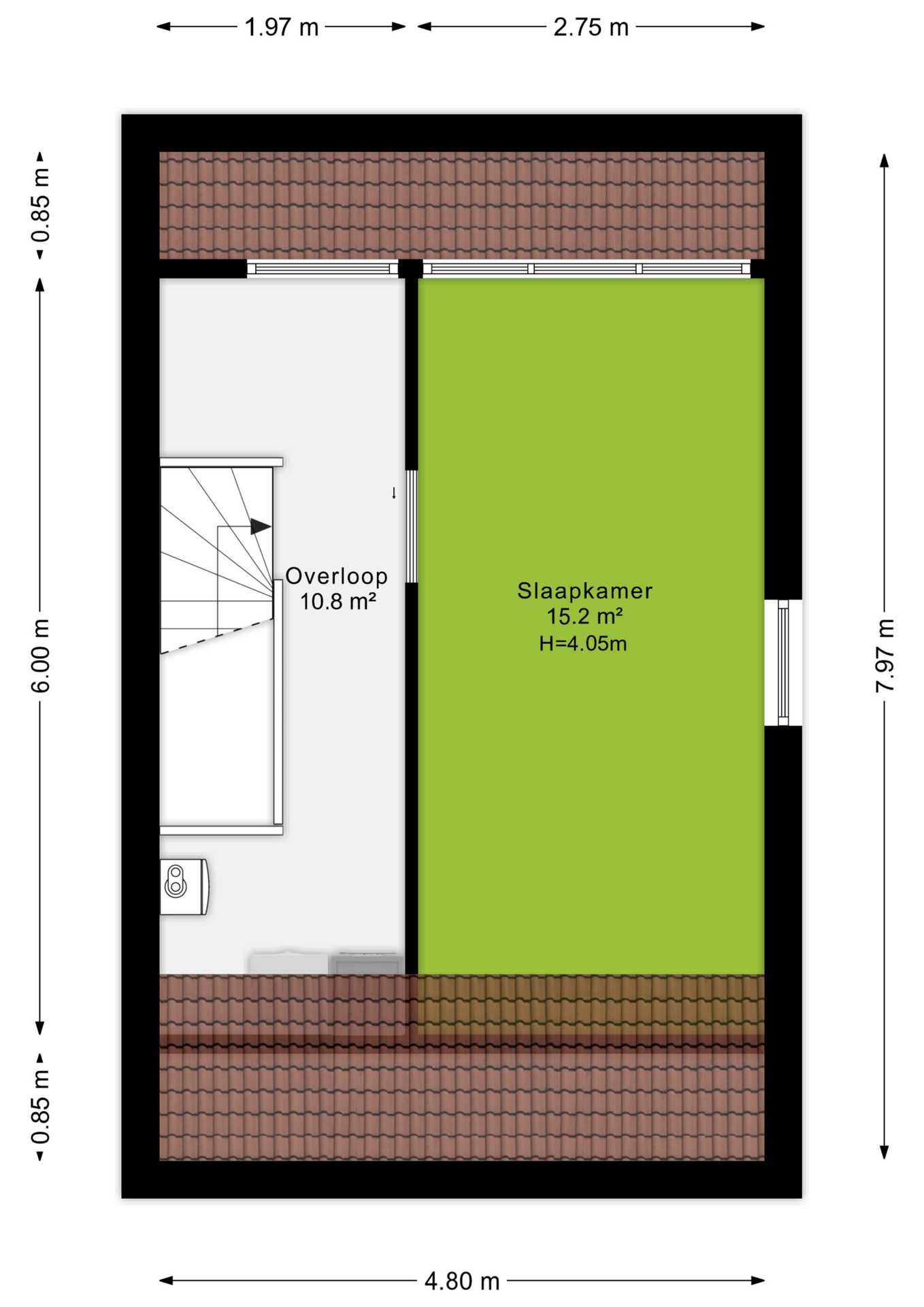
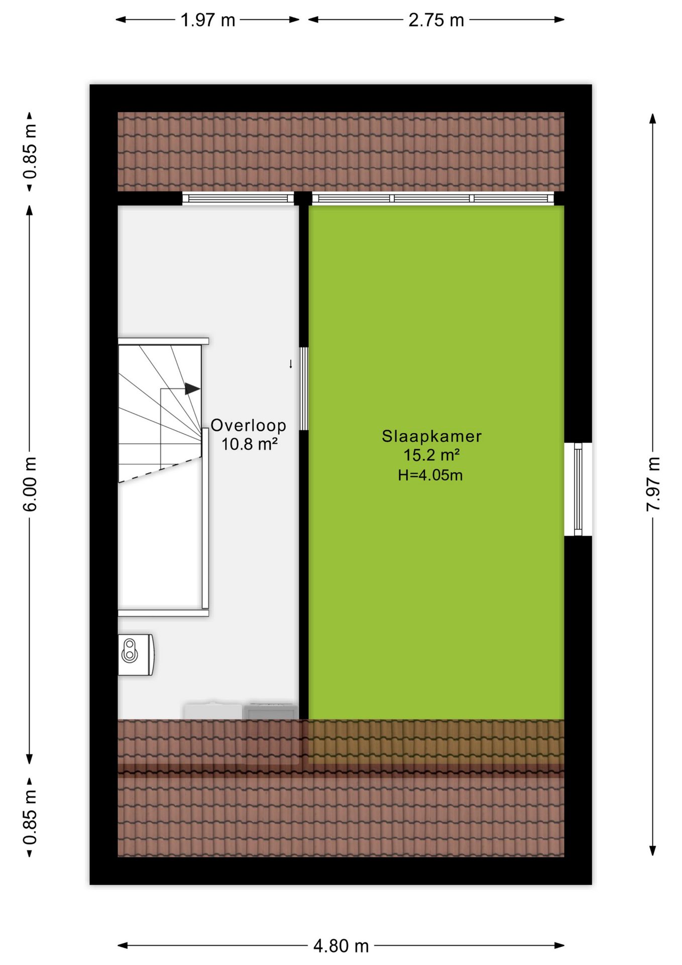
Tweede verdieping
De tweede verdieping is bereikbaar via een vaste trap. Hier bevindt zich de vierde slaapkamer van circa 15 m², met een rond raam dat zorgt voor een speels effect. Het dakkapel zorgt voor extra ruimte en licht. Op de overloop vind je de aansluiting voor de wasmachine en de mechanische ventilatie.

Buitenruimte
De achtertuin ligt op het noorden en is bereikbaar via openslaande deuren vanuit de woonkamer. De tuin beschikt over een houten berging en een achterom, ideaal voor fietsen of tuinspullen. Direct naast de woning ligt een speelplek voor kinderen. Dankzij de erker heb je vanuit de woonkamer zicht op deze speelplek, praktisch én prettig voor gezinnen.

Koopovereenkomst:
Bij de verkoop zal een standaard NVM-koopovereenkomst worden gehanteerd.

Bij aankoop zonder financieringsvoorbehoud geldt een termijn van zes weken na het opstellen van de koopovereenkomst voor het storten van de waarborgsom of bankgarantie.

Deze informatie is met zorg samengesteld. Er wordt geen aansprakelijkheid aanvaard voor eventuele onvolledigheden of onjuistheden. Alle opgegeven maten en oppervlakten zijn indicatief.
+ toon meer
deze woning is Verkocht

Bremerstraat 35 Ede

Bremerstraat 35

6717 ZP, Ede
Ditters open huis: 5 april 2025 10:00 - 12:00 uur
Landelijke Open Huizen Route NVM: 5 april 2025 11:00 uur - 15:00 uur
Vanaf€ 595.000 k.k.

Schakel een aankoopmakelaar in.

Snel handelen helpt je jouw droomhuis te bemachtigen. Zo vergroot je de kans dat je er op tijd bij bent.
Ede
verkocht

Of maak vrijblijvend een zoekprofiel aan.

Vergelijkbare woningen

Hypotheken

Onafhankelijk hypotheekadvies

  • Ligt jouw droomhuis binnen handbereik?
  • Wil je jouw huidige hypotheek verhogen?
  • Is er hypotheekruimte voor verduurzaming?

Blijf op de hoogte

Ontvang als eerste updates over nieuw aanbod en mis geen enkele kans om jouw droomwoning te vinden.

Gratis waardebepaling of verkoopgesprek

Met de vrijblijvende waardecheck weet je snel waar je aan toe bent. Onze makelaars kijken naar de lokale markt en vergelijkbare woningen in jouw buurt om een goede schatting te geven.

Realiseer al jouw woondromen met Ditters

Wij zijn een team van gedreven vastgoedexperts met een passie voor het maken van verbindingen – tussen kopers en verkopers, huurders en verhuurders. Met een frisse kijk op de makelaardij combineren we expertise met creativiteit. Onze makelaars luisteren écht en nemen de tijd om jouw wensen te begrijpen.


Bij Ditters sta je er niet alleen voor. We denken met je mee, begeleiden je in elke stap en zijn altijd bereikbaar voor vragen. Neem gerust contact met ons op – we helpen je graag verder!