Omschrijving

Welkom in je nieuwe thuis aan de Brouwerstraat 88 in Ede! Wat een fijn plekje is dit. Dit comfortabel appartement van 90 m² ligt op een super centrale locatie, midden in het gezellige centrum van Ede. Je woont hier letterlijk om de hoek van het levendige Kuiperplein, met alles wat je nodig hebt binnen handbereik. Winkels, restaurants, openbaar vervoer en zelfs het station: het is allemaal zo dichtbij!

Een groot voordeel is de eigen parkeerplaats achter het appartementencomplex. Zo woon je niet alleen midden in het centrum van Ede, maar parkeer je ook nog direct achter het appartementencomplex de auto op een eigen parkeerplaats.

Dit appartement is netjes afgewerkt en onderhouden en biedt de mogelijkheid direct te genieten van wat Ede te bieden heeft. Of je nu zin hebt in een wandeling in de natuur, een dagje shoppen, of lekker uit eten, alles is in de buurt. Qua infrastructuur is het ideaal geregeld. Zo parkeer je de auto achter het appartement, bereik je het treinstation Ede-Centrum met enkele minuten lopen en zijn de uitvalswegen niet ver weg.

Eenmaal binnen stap je in een licht en goed geïsoleerd appartement. De nette wanden en prachtige houten vloer geven het een frisse uitstraling. Een prettig balkon, voorzien van vlonderplanken, met uitzicht waar altijd wat te zien is, maakt het geheel af.

Hieronder vind je alle pluspunten van het appartement op een rij:

Driekamerappartement met veel comfort en een mooi overzicht over het Kuiperplein;

+ Prettige hoogte van het appartement op de derde verdieping;
+ Eigen parkeerplaats en berging op het parkeerdek;
+ Twee slaapkamers aan de achterzijde;
+ Houten vloer aanwezig;
+ Open keuken en een woonkamer over de volle breedte van het appartement;
+ Energielabel C;
+ Screen aan de eetkamerzijde;
+ Perfecte ligging t.o.v. alle voorzieningen en uitvalswegen.

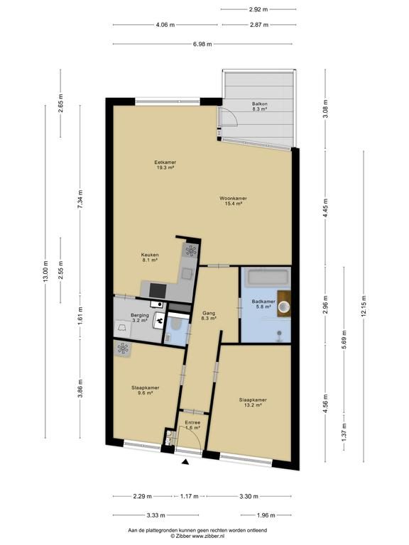
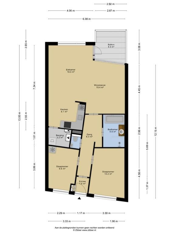
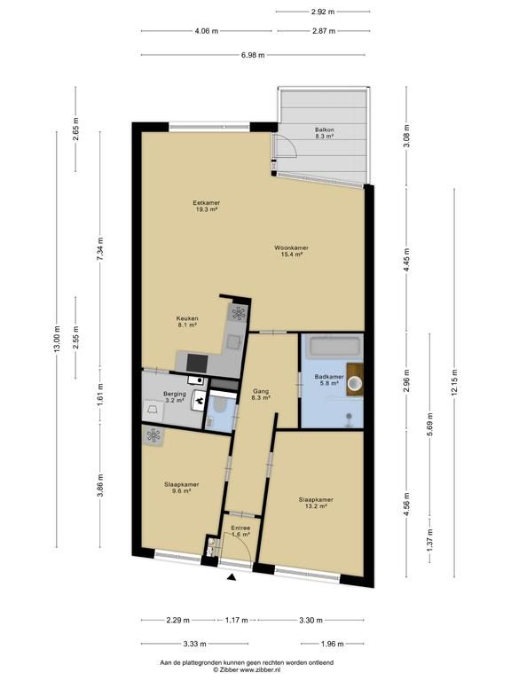
Indeling:
Aan de zijde van het Kuiperplein is de afgesloten centrale entree aanwezig met videofoon, brievenbussen, lift en de trapopgang.

Appartement:
Entree/hal met toegang tot alle vertrekken. Aan het eind van de gang loop je de lichte woonkamer in. Een ruimte van bijna 7 meter breed doordat deze over de hele breedte van het appartement gesitueerd is. Grenzend aan de woonkamer loop je zo het balkon op vanwaar je leuk uitzicht hebt naar het vernieuwde Kuiperplein waar altijd wat te zien is. Vanuit de woonkamer loop je door het eetgedeelte naar de open keuken die is voorzien van diverse inbouwapparatuur, zoals:
vaatwasser;
combi-oven (2020);
koelkast (2020);
afzuigkap;
inductiekookplaat (2020)

Achter de keuken bevindt zich een bijkeuken voor extra bergruimte, hier is de opstelplaats voor de Intergas CV-ketel (2020) en de aansluiting voor de wasmachine en de droger.

Terug naar de hal zijn bereikbaar de badkamer, zwevend toilet met fonteintje en de twee slaapkamers.

De badkamer is volledig betegeld en voorzien van een:
ligbad;
douche;
wastafel;
wastafelmeubel.

Het appartement heeft twee slaapkamers die beide zijn gelegen aan de achterzijde van het gebouw.

Op het afgesloten parkeerdek bevinden zich de eigen parkeerplaats en de berging (6,1 m²) welke is voorzien van elektra. Dit parkeerdek is te bereiken via de Molenstraat, langs Cultura op.

Woonoppervlakte 90 m²
Inhoud woning 293 m³

Overige kenmerken:
Verwarming: CV-ketel Intergas Extreme 30 (2020)
Volledig geïsoleerd
Energielabel C
Bouwjaar 1997
Maandelijkse bijdrage VVE € 198,00 per maand
Balkonligging Zuidoosten
Aanvaarding in overleg

Koopovereenkomst:
Bij de verkoop zal er een standaard NVM koopovereenkomst worden gehanteerd. Bij woningen die ouder zijn dan 20 jaar, worden de volgende clausules opgenomen in de koopovereenkomst:
Asbestclausule;
Ouderdomsclausule.

Bij deze woning zal een niet-bewonersclausule worden opgenomen.

Koopt u de woning zonder voorbehoud van financiering? Dan zullen wij een termijn hanteren van 14 dagen na het opstellen van de koopovereenkomst voor het storten van de bankgarantie/waarborgsom.

Deze informatie is door ons met de nodige zorgvuldigheid samengesteld. Onzerzijds wordt echter geen enkele aansprakelijkheid aanvaard voor enige onvolledigheid, onjuistheid of anderszins, dan wel de gevolgen daarvan. Alle opgegeven maten en oppervlakten zijn indicatief.
+ toon meer
deze woning is Verkocht

Brouwerstraat 88 Ede

Brouwerstraat 88

6712 AA, Ede
Ditters open huis: 5 april 2025 10:00 - 12:00 uur
Landelijke Open Huizen Route NVM: 5 april 2025 11:00 uur - 15:00 uur
Vanaf€ 435.000 k.k.

Schakel een aankoopmakelaar in.

Snel handelen helpt je jouw droomhuis te bemachtigen. Zo vergroot je de kans dat je er op tijd bij bent.
Ede
verkocht

Of maak vrijblijvend een zoekprofiel aan.

Vergelijkbare woningen

Hypotheken

Onafhankelijk hypotheekadvies

  • Ligt jouw droomhuis binnen handbereik?
  • Wil je jouw huidige hypotheek verhogen?
  • Is er hypotheekruimte voor verduurzaming?

Blijf op de hoogte

Ontvang als eerste updates over nieuw aanbod en mis geen enkele kans om jouw droomwoning te vinden.

Gratis waardebepaling of verkoopgesprek

Met de vrijblijvende waardecheck weet je snel waar je aan toe bent. Onze makelaars kijken naar de lokale markt en vergelijkbare woningen in jouw buurt om een goede schatting te geven.

Realiseer al jouw woondromen met Ditters

Wij zijn een team van gedreven vastgoedexperts met een passie voor het maken van verbindingen – tussen kopers en verkopers, huurders en verhuurders. Met een frisse kijk op de makelaardij combineren we expertise met creativiteit. Onze makelaars luisteren écht en nemen de tijd om jouw wensen te begrijpen.


Bij Ditters sta je er niet alleen voor. We denken met je mee, begeleiden je in elke stap en zijn altijd bereikbaar voor vragen. Neem gerust contact met ons op – we helpen je graag verder!