Omschrijving

Op zoek naar een royale hoekwoning met garage, diepe tuin en veel indelingsmogelijkheden? Dan spreekt Bunschoterweg 4 te Ede met een woonoppervlakte van maar liefst 161m² jou vast aan! De locatie is dan ook nog eens perfect te noemen; aan de rand van het centrum en op loopafstand van het groen.

De volgende aspecten zullen je vast verrassen: royale woonkamer van ca. 46m² met veel lichtinval, moderne keuken met diverse inbouwapparatuur, maar liefst 6 slaapkamers, inpandig bereikbare garage, moderne badkamer, parkeren op eigen terrein en een fantastische tuin met heerlijke veranda.

De woning ligt op een gunstige locatie, op slechts enkele minuten lopen van het centrum van Ede. Winkels, horeca, scholen en sportfaciliteiten bevinden zich dus op korte afstand, terwijl de natuur altijd dichtbij is: de Ginkelse Heide en de bossen van Ede liggen op fietsafstand. Ook de bereikbaarheid is uitstekend met de A30, A12 en NS-station Ede-Centrum op loop- of fietsafstand. Een perfecte combinatie van rust, bereikbaarheid en voorzieningen.

Indeling:
Begane grond:
Via de hal en entree met meterkast en separaat toilet is de woonkamer te bereiken. De woonkamer heeft een afmeting van maar liefst 46m², is voorzien van heerlijk veel lichtinval en een sfeervolle houten vloer. Door de ruime indeling is er plek genoeg voor een grote eettafel en ontstaat er een gezellig verbinding tussen de woonkamer en de keuken. De keuken heeft een moderne kleurstelling en beschikt over diverse inbouwapparatuur, waaronder een gasfornuis, afzuigkap, magnetron, oven, koelkast, Quooker en vaatwasser.

Eerste verdieping:
Door middel van de vaste trap kom je bij de overloop, welke toegang geeft toegang tot de 5(!) slaapkamers en de badkamer. De slaapkamers hebben een afmeting van ca. 13,7m², 9,2m², 8,5m², 8,2m² en 6m². De slaapkamers zijn voorzien van voldoende lichtinval en een nette afwerking. Tussen de twee slaapkamers, boven de uitbouw en de garage, zit een vlizotrap naar een grote zolder. Ideaal voor het opslaan van spullen. De badkamer heeft een moderne kleurstelling en beschikt over een inloopdouche, wastafel met wastafelmeubel, toilet en een raam om extra goed te kunnen ventileren.

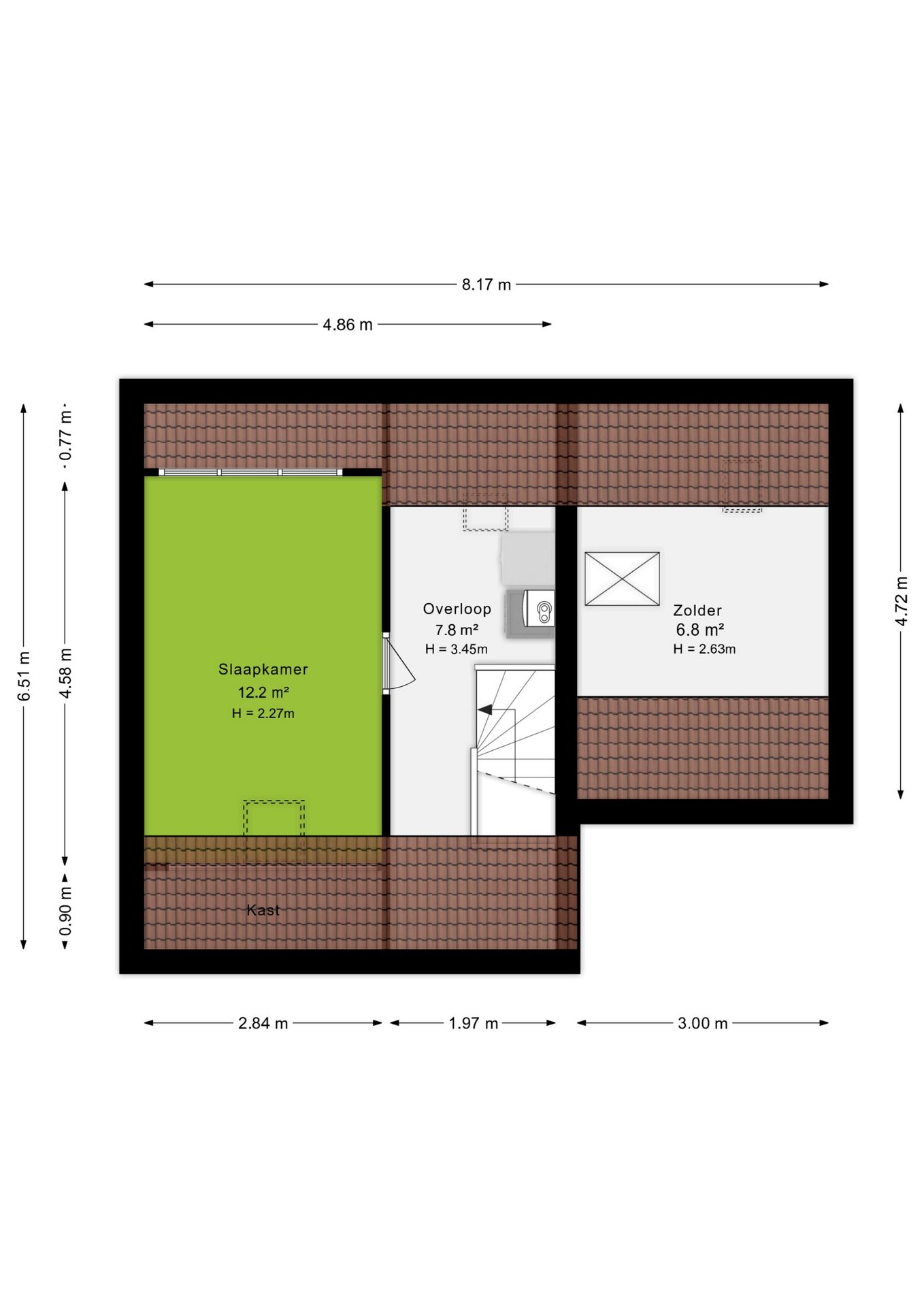
Tweede verdieping:
Via de overloop met witgoedaansluiting is de 6e slaapkamer te bereiken. Deze kamer heeft nog een afmeting van ca. 12,2m² en is multifunctioneel te gebruiken.

Garage / Buitenruimte:
De inpandig bereikbare garage heeft een afmeting van ca. 17m². Ideaal voor het opslaan van spullen, een hobby of werk aan huis.

Wat een heerlijke tuin! De tuin heeft een zeer prettige indeling en door de goede ruimte zijn er gemakkelijk meerdere terrasjes op speelplekjes te creëren. Door de ligging op het zuidoosten is er altijd wel een plek in de zon of de schaduw te vinden. Aan de achterzijde van de tuin bevindt zich een gezellige veranda en een handig schuurtje.

Bijzonderheden:
Verwarming: C.V.-combiketel (bouwjaar 2022)
Warm water: C.V.-combiketel (bouwjaar 2022)
Isolatie: volledig geïsoleerd en voorzien van 10 zonnepanelen
Energielabel: B
Bouwjaar: 1985
Tuinligging: zuidoost
Aanvaarding: in overleg

Koopovereenkomst:
Bij de verkoop zal er een standaard NVM koopovereenkomst worden gehanteerd. Bij woningen welke ouder zijn dan 20 jaar, worden de volgende clausules opgenomen in de koopovereenkomst:
- Asbestclausule;
- Ouderdomsclausule.

Koopt u de woning zonder voorbehoud van financiering? Dan zullen wij een termijn hanteren van 6 weken na het opstellen van de koopovereenkomst voor het storten van de bankgarantie/waarborgsom.

Deze informatie is door ons met de nodige zorgvuldigheid samengesteld. Onzerzijds wordt echter geen enkele aansprakelijkheid aanvaard voor enige onvolledigheid, onjuistheid of anderszins, dan wel de gevolgen daarvan. Alle opgegeven maten en oppervlakten zijn indicatief.
+ toon meer
deze woning is Verkocht

Bunschoterweg 4 Ede

Bunschoterweg 4

6711 CJ, Ede
Ditters open huis: 5 april 2025 10:00 - 12:00 uur
Landelijke Open Huizen Route NVM: 5 april 2025 11:00 uur - 15:00 uur
Vanaf€ 575.000 k.k.

Schakel een aankoopmakelaar in.

Snel handelen helpt je jouw droomhuis te bemachtigen. Zo vergroot je de kans dat je er op tijd bij bent.
Ede
verkocht

Of maak vrijblijvend een zoekprofiel aan.

Vergelijkbare woningen

Hypotheken

Onafhankelijk hypotheekadvies

  • Ligt jouw droomhuis binnen handbereik?
  • Wil je jouw huidige hypotheek verhogen?
  • Is er hypotheekruimte voor verduurzaming?

Blijf op de hoogte

Ontvang als eerste updates over nieuw aanbod en mis geen enkele kans om jouw droomwoning te vinden.

Gratis waardebepaling of verkoopgesprek

Met de vrijblijvende waardecheck weet je snel waar je aan toe bent. Onze makelaars kijken naar de lokale markt en vergelijkbare woningen in jouw buurt om een goede schatting te geven.

Realiseer al jouw woondromen met Ditters

Wij zijn een team van gedreven vastgoedexperts met een passie voor het maken van verbindingen – tussen kopers en verkopers, huurders en verhuurders. Met een frisse kijk op de makelaardij combineren we expertise met creativiteit. Onze makelaars luisteren écht en nemen de tijd om jouw wensen te begrijpen.


Bij Ditters sta je er niet alleen voor. We denken met je mee, begeleiden je in elke stap en zijn altijd bereikbaar voor vragen. Neem gerust contact met ons op – we helpen je graag verder!