Omschrijving

Deze royale tussenwoning met energielabel A, vier slaapkamers, een moderne badkamer en een zonnige tuin op het zuiden biedt comfort, ruimte en een ideale ligging.

De woning aan de Churchilldreef 53 in Ede bevindt zich in een veelzijdige en gunstige omgeving, ideaal voor gezinnen en mensen die waarde hechten aan een combinatie van natuur, voorzieningen en bereikbaarheid. Op loopafstand zijn er diverse scholen en het winkelcentrum Stadspoort, waar je terecht kunt voor boodschappen en andere dagelijkse benodigdheden. Het nabijgelegen ziekenhuis is eveneens een praktisch voordeel.

De ligging is bijzonder geschikt voor natuurliefhebbers, met bossen en groene gebieden in de nabije omgeving waar je heerlijk kunt wandelen of fietsen. Voor gezinnen met kinderen zijn er verschillende speelplekken in de buurt, wat bijdraagt aan de kindvriendelijkheid van de wijk.

Daarnaast is het centrum van Ede met zijn uitgebreide winkelaanbod, restaurants en cafés binnen handbereik en gemakkelijk te bereiken met de fiets. Ook het trein- en busstation Ede-Wageningen, een belangrijk knooppunt voor openbaar vervoer, zorgt voor uitstekende verbindingen met andere steden. De locatie is ook ideaal voor automobilisten, met snelle toegang tot de A12 en A30, en voldoende parkeergelegenheid in de straat.

Enkele pluspunten van de woning:
+ Energielabel A;
+ Royale woonkamer;
+ Moderne badkamer met vloerverwarming;
+ Vier slaapkamers;
+ Ruime tuin op het zuiden;

Indeling
Begane grond
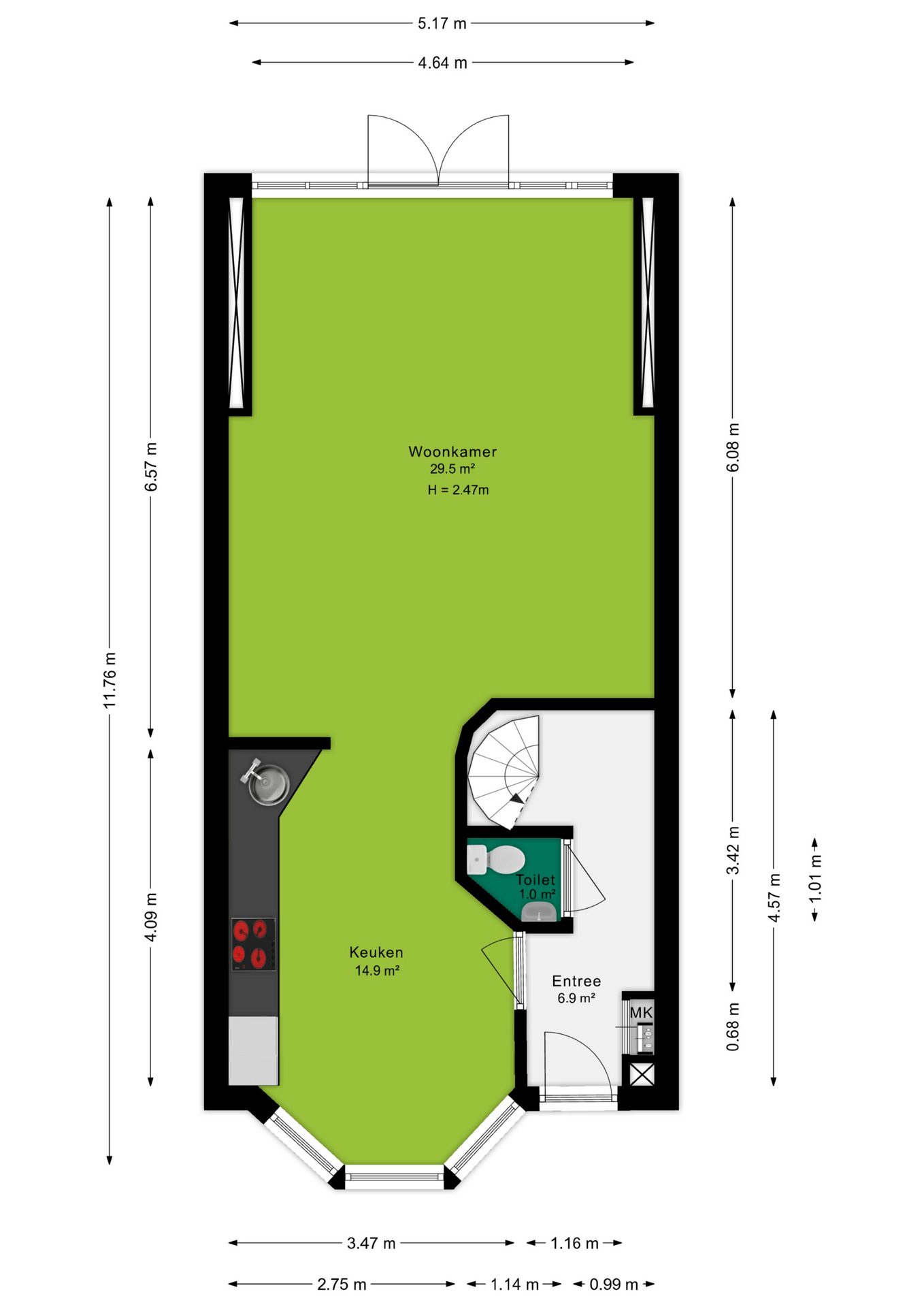
Bij binnenkomst in de woning kom je in de hal, waar zich de meterkast, het toilet met fonteintje en de trapopgang naar de eerste verdieping bevinden. Vanuit de hal loop je door naar de keuken. Deze lichte keuken is voorzien van een eethoek met een charmante erker, wat zorgt voor een gezellige uitstraling. De keuken is uitgevoerd in een lichte kleurstelling en uitgerust met diverse inbouwapparatuur, waaronder een inductiekookplaat, een afzuigkap, een oven en een koelkast. Vanuit de keuken stap je de ruime woonkamer in. De woonkamer, met een oppervlak van circa 30 m², biedt een prettige leefruimte en geniet dankzij de openslaande deuren van veel natuurlijk licht.

Eerste verdieping
Op de eerste verdieping kom je via de overloop bij drie comfortabele slaapkamers. Aan de achterzijde van de woning bevinden zich twee wat kleinere slaapkamers, ideaal als kinder- of werkkamers. De hoofdslaapkamer bevindt zich aan de voorzijde en biedt toegang tot zowel het balkon als de badkamer. De badkamer is tevens bereikbaar via de overloop, en is volledig uitgerust met een dubbele wastafel, een douche, een designradiator en een toilet. De badkamer is voorzien van vloerverwarming.

Tweede verdieping
De overloop op de tweede verdieping biedt ruimte voor de aansluiting van de wasmachine en geeft toegang tot de vliering. Verder bevindt zich hier een vierde ruime slaapkamer, die naar wens kan worden ingericht als extra slaap-, werk- of hobbykamer.

Tuin
De zonnige, op het zuiden gelegen tuin is via de openslaande deuren in de woonkamer te bereiken. Deze royale buitenruimte biedt volop mogelijkheden om te ontspannen en te genieten van de zon. Achterin de tuin staat een handige berging, ideaal voor het opbergen van fietsen en tuingereedschap. Daarnaast is de woning voorzien van een achterom, wat zorgt voor extra gemak en toegankelijkheid.

Afmetingen:
Perceeloppervlakte: 149 m²
Inhoud woning: 415 m³
Woonoppervlakte: 120 m²

Bijzonderheden:
Verwarming: CV-installatie, Nefit Proline HRC 724-CW4 2009, vloerverwarming gedeeltelijk;
Warm water: CV-installatie, Nefit Proline HRC 724-CW4 2009;
Isolatie: Dak-, muur-, vloerisolatie, dubbelglas;
Bouwjaar: 1992;
Tuinligging: Zuiden;
Aanvaarding: In overleg.

Koopovereenkomst:
Bij de verkoop zal er een standaard NVM koopovereenkomst worden gehanteerd. Bij woningen welke ouder zijn dan 20 jaar, worden de volgende clausules opgenomen in de koopovereenkomst:
- Asbestclausule
- Ouderdomsclausule

Koopt u de woning zonder voorbehoud van financiering? Dan zullen wij een termijn hanteren van 14 dagen na het opstellen van de koopovereenkomst voor het storten van de bankgarantie/waarborgsom.

Deze informatie is door ons met de nodige zorgvuldigheid samengesteld. Onzerzijds wordt echter geen enkele aansprakelijkheid aanvaard voor enige onvolledigheid, onjuistheid of anderszins, dan wel de gevolgen daarvan. Alle opgegeven maten en oppervlakten zijn indicatief.
+ toon meer
deze woning is Verkocht

Churchilldreef 53 Ede

Churchilldreef 53

6716 HK, Ede
Ditters open huis: 5 april 2025 10:00 - 12:00 uur
Landelijke Open Huizen Route NVM: 5 april 2025 11:00 uur - 15:00 uur
Vanaf€ 425.000 k.k.

Schakel een aankoopmakelaar in.

Snel handelen helpt je jouw droomhuis te bemachtigen. Zo vergroot je de kans dat je er op tijd bij bent.
Ede
verkocht

Of maak vrijblijvend een zoekprofiel aan.

Vergelijkbare woningen

Hypotheken

Onafhankelijk hypotheekadvies

  • Ligt jouw droomhuis binnen handbereik?
  • Wil je jouw huidige hypotheek verhogen?
  • Is er hypotheekruimte voor verduurzaming?

Blijf op de hoogte

Ontvang als eerste updates over nieuw aanbod en mis geen enkele kans om jouw droomwoning te vinden.

Gratis waardebepaling of verkoopgesprek

Met de vrijblijvende waardecheck weet je snel waar je aan toe bent. Onze makelaars kijken naar de lokale markt en vergelijkbare woningen in jouw buurt om een goede schatting te geven.

Realiseer al jouw woondromen met Ditters

Wij zijn een team van gedreven vastgoedexperts met een passie voor het maken van verbindingen – tussen kopers en verkopers, huurders en verhuurders. Met een frisse kijk op de makelaardij combineren we expertise met creativiteit. Onze makelaars luisteren écht en nemen de tijd om jouw wensen te begrijpen.


Bij Ditters sta je er niet alleen voor. We denken met je mee, begeleiden je in elke stap en zijn altijd bereikbaar voor vragen. Neem gerust contact met ons op – we helpen je graag verder!