Omschrijving

In de zeer geliefde wijk Kernhem staat deze sfeervolle twee-onder-een kap te koop. De woning is uitstekend onderhouden, luxe afgewerkt, instapklaar en staat in een kindvriendelijke buurt.

De populaire woonwijk 'Kernhem' kenmerkt zich door gezellige straten, hofjes en veel groenvoorzieningen. Ook is het een ideale wijk voor jonge gezinnen met kinderen. Er zijn meerdere speeltuinen en speelplekken, diverse basisscholen (een paar straten naar achteren in de wijk zijn basisscholen De Vuursteen en de Kleine Prins gelegen), kinderdagopvang en peuterspeelzaal aanwezig.

De wijk heeft een autoluwe opzet! Winkelcentrum 'de Parkweide' is op loopafstand gelegen. Een bezoek aan de kapper, een belegd broodje bij de bakker of de dagelijkse boodschappen doen? Het kan hier allemaal. Tevens is hier een huisartsenpraktijk en apotheek gesitueerd. Vanuit de wijk rijdt u binnen een paar minuten de uitvalswegen A30 of A12 op. Ook bereik je binnen 10 minuten Intercitystation 'De Klomp' waar P+R gelegenheid is en u met 18 minuten in hartje Utrecht bent. De bossen en Ginkelse Heide zijn op korte afstand gelegen.

De woning heeft een aantal unieke punten, te weten:
+ Gelegen in de wijk Kernhem nabij intercity station Ede-Wageningen, Veenendaal-De Klomp en uitvalswegen als de A12 en A30 (binnen enkele minuten bereikbaar);
+ Luxe twee-onder-een-kapwoning tot in de puntjes afgewerkt;
+ Fijne woonkeuken;
+ Geïsoleerde en verwarmde garage die daardoor voor verschillende doeleinden te gebruiken is;
+ De keuken aan de tuinzijde met luxe in hoekopstelling geplaatste inbouwkeuken;
+ Openslaande deuren naar de tuin;
+ Slaapkamer met dakraam op zolder gerealiseerd;
+ Lucht warmtepomp met doorstroom boiler.

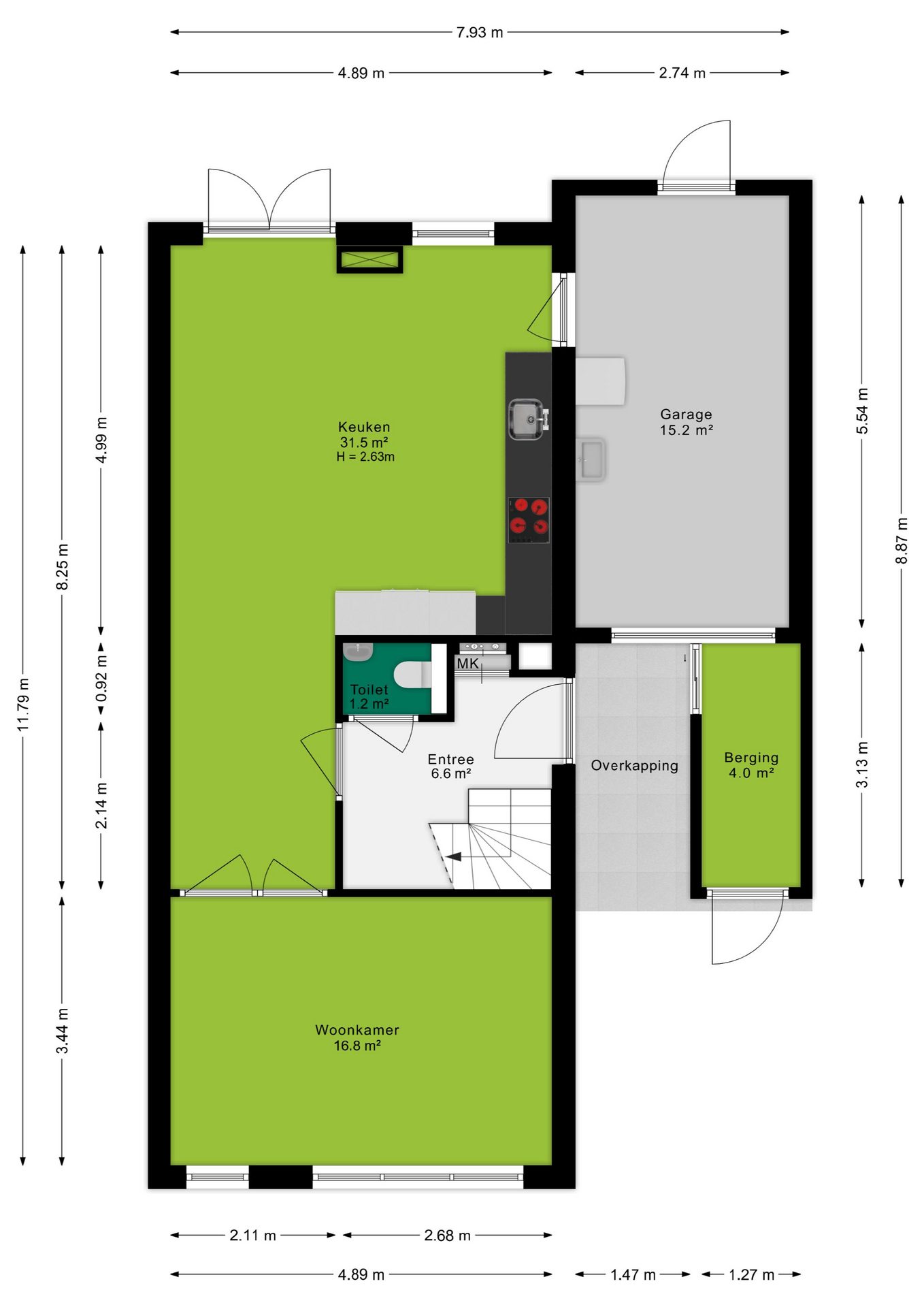
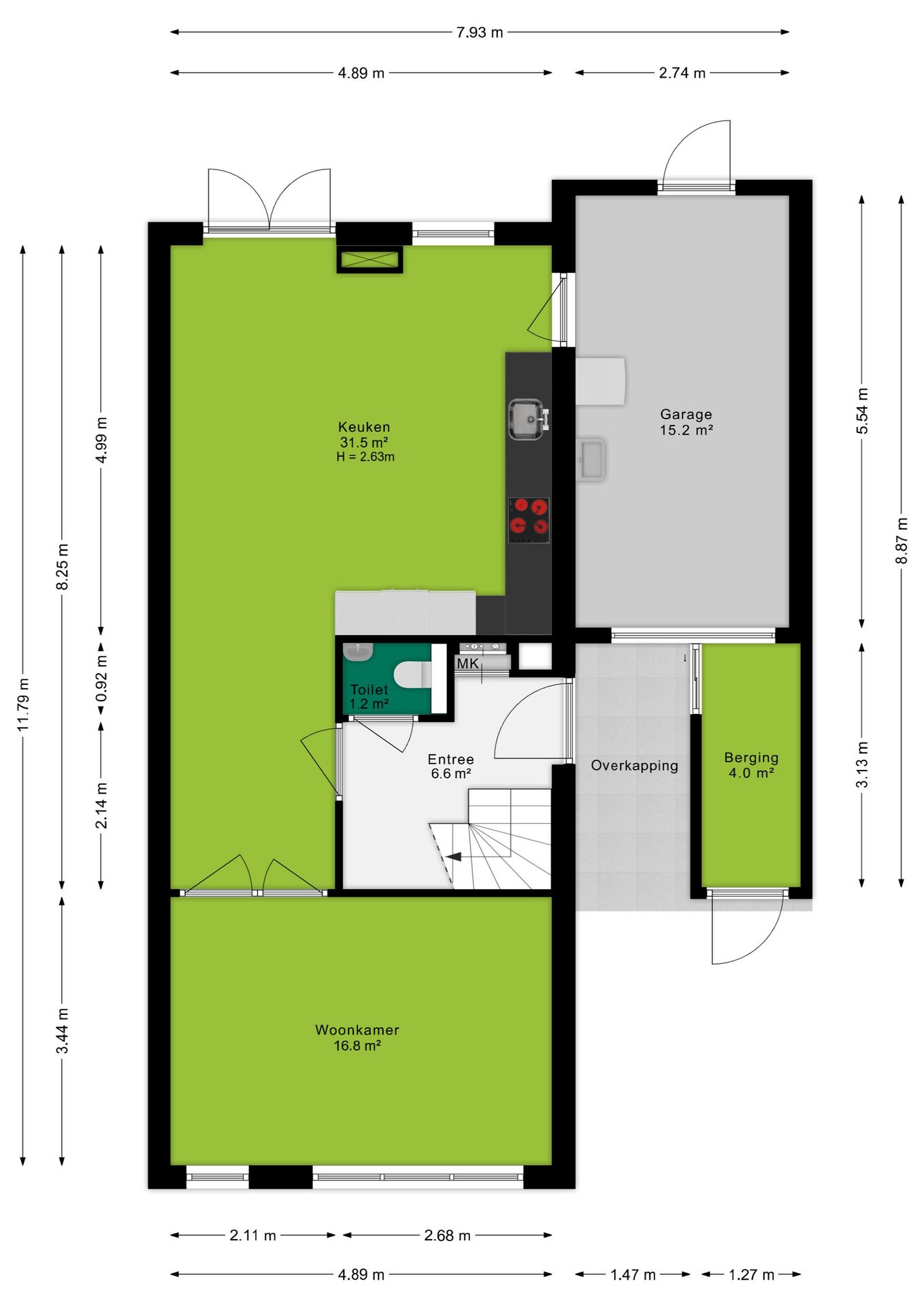
Globale indeling:
Begane grond:
Oprit naar de woning. Overdekte entree. Voor de garage is een overkapping gebouwd met een praktische berging voor de kliko’s en fietsen.
Hal entree met de garderobe, de meterkast en trapopgang naar de eerste verdieping. Verder treffen we aan een modern afgewerkte toiletruimte met zwevend toilet en fonteintje. Via en fraaie taatsdeur komen we in de prachtig verzorgde leefkeuken die aan de achterzijde van de begane grond is gesitueerd. De sfeer wordt verhoogd door de aanwezige sierhaard. Hier kan lang genoten worden van de bereide maaltijd met een goed glas wijn en fijne gesprekken.

De woonkeuken bevat een in hoekopstelling geplaatste luxe inbouwkeuken welke is voorzien van een vaatwasser, inductiekookplaat, koel-vriescombinatie, combi-oven/magnetron en afzuigkap. De woonkeuken wordt gescheiden van de woonkamer middels twee sfeervolle deuren met glas panelen. Vanuit de keuken is er een deur naar de inpandige garage. Deze garage is geïsoleerd en thans in gebruik als bijkeuken/berging. Er si een fraaie kastenwand met schuifdeuren en praktisch uitstortgoot. De ruimte is tevens verwarmd met een elektrische verwarming.
De gezellige woonkamer is aan de voorzijde van de woning gesitueerd.

Eerste verdieping:
Ruime overloop met toegang tot 2 slaapkamers en de badkamer. Op de ruime overloop is een kastenwand geplaatst met veel praktische bergruimte.
De ouderslaapkamer is aan de voorzijde van de woning over de volle breedte gelegen.
De vele raampartijen zorgen voor veel licht in de ruimte.

De tweede slaapkamer is aan de achterzijde gelegen. Deze slaapkamer heeft een nis als praktische plek voor een kledingkast.

De moderne badkamer is strak afgewerkt, voorzien van een handdoekradiator, en mechanische afzuigpunten , verder uitgerust met een
+ Zwevend toilet;
+ Inloopdouche;
+ Zwevend wastafelmeubel met wastafel en daarboven een moderne spiegelkast;
+ Alle kranen zijn van het merk Grohe.

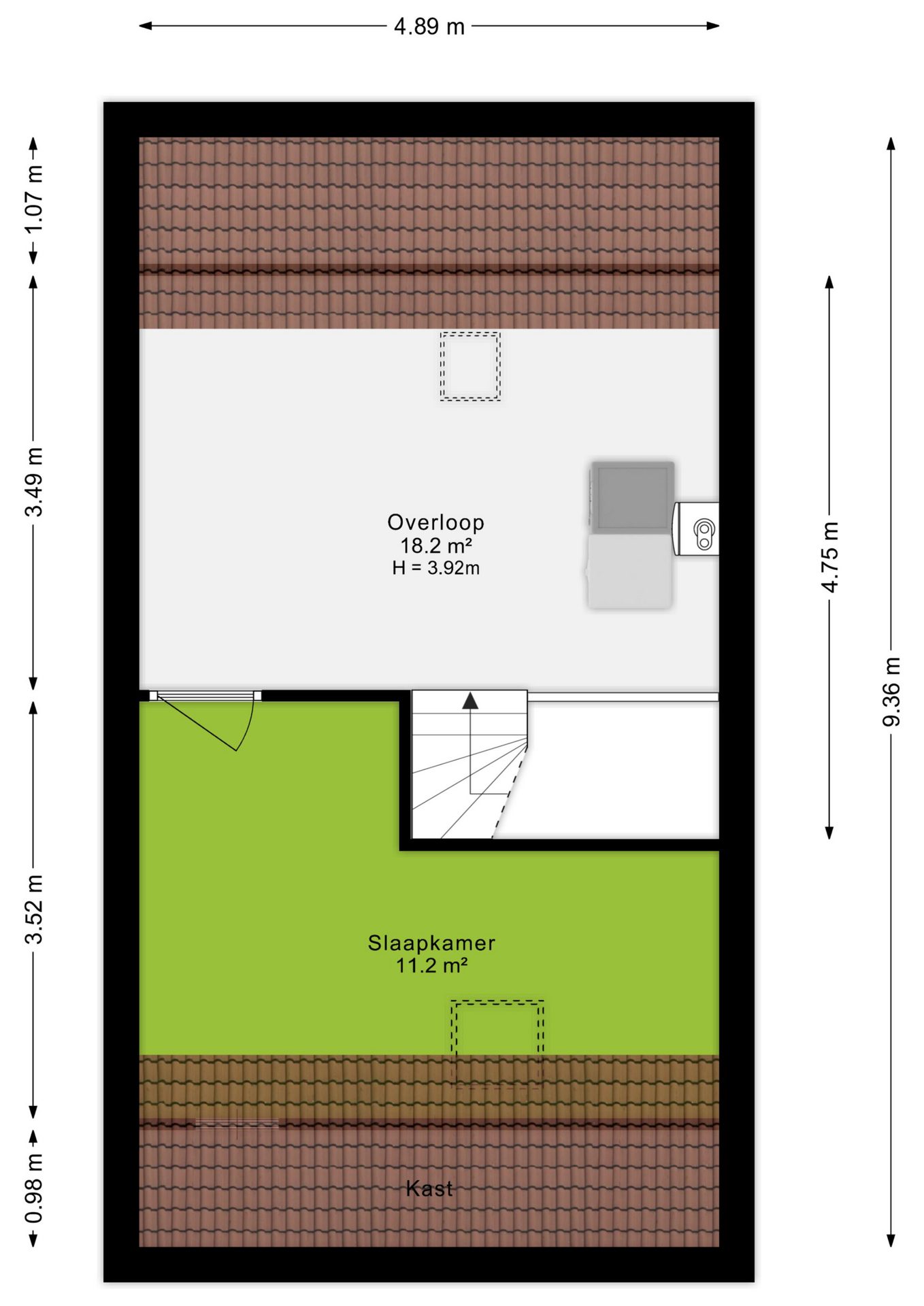
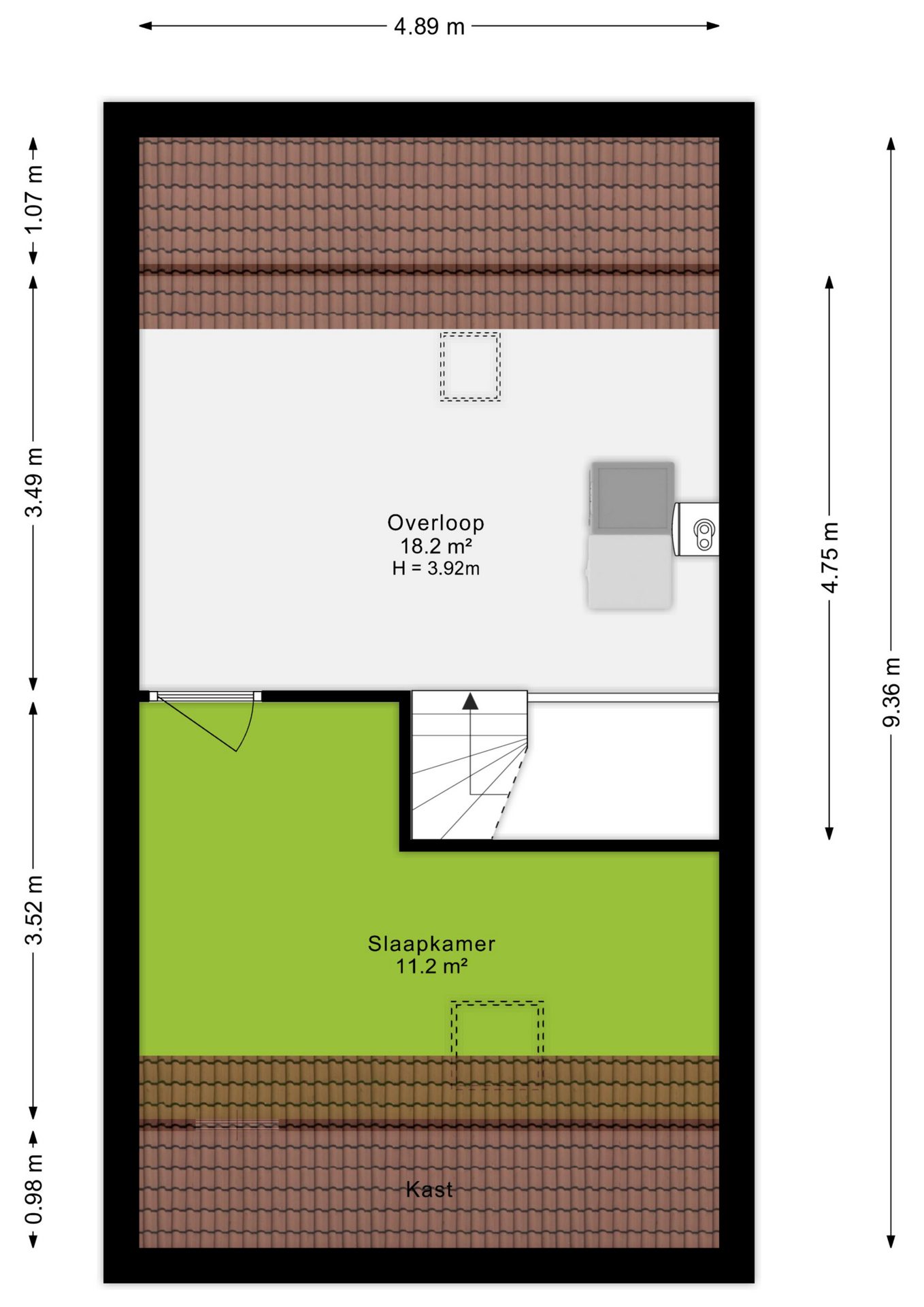
Tweede verdieping:
Door de vaste trap kom je bij de ruime tweede verdieping. Hier kom je aan bij de ruime voorzolder met Velux dakraam, op deze voorzolder is de aansluiting en opstelling van de was-apparatuur.

Daarnaast is hier de opstelling voor de lucht-warmte-pomp installatie met doorstroom boiler. Ook treffen we hier de mechanische ventilatie-unit en de omvormer voor de 12 zonnepanelen aan.

Dan is er nog een (derde) slaapkamer voorzien van een dakraam. Achter de knieschotten is veel bergruimte aanwezig en dit leent zich om hier een kastenwand van te maken.

Tuin:
Hier is de echte ‘WOW’ factor van toepassing, De zeer fraai en verzorgd aangelegde achtertuin is gelegen op het noordwesten. Er is een fraaie en gezellige overkapping en diverse plantenborders met fraaie beplanting en bomen waarvan de randen zijn afgewerkt met cortenstaal.

Afmetingen:
Woonkamer 16.8 m²
Keuken 31.5 m²
Garage 15.2 m²
Berging 4.0 m²
Slaapkamer 1 15.0 m²
Slaapkamer 2 8.8 m²
Badkamer 7.1 m²
Voorzolder 18.2 m²
Slaapkamer 3 11.2 m²

Woonoppervlakte 135 m²
Perceeloppervlakte 188 m²
Inhoud circa 578 m³

Bijzonderheden:
Verwarming: Lucht-warmte-pomp (2023)
Warmwater: Lucht-warmte-pomp boiler (2023)
Isolatie: Volledig geïsoleerd (Vloer-, muur- en dakisolatie en isolerende beglazing HR++)
Bouwjaar: 2019
Tuinligging: Noordwest
Aanvaarding: In overleg

Koopovereenkomst:
Bij de verkoop zal er een standaard NVM koopovereenkomst worden gehanteerd.

Koop je de woning zonder voorbehoud van financiering? Dan zullen wij een termijn hanteren van 6 weken na het opstellen van de koopovereenkomst voor het storten van de bankgarantie/waarborgsom.

Deze informatie is door ons met de nodige zorgvuldigheid samengesteld. Onzerzijds wordt echter geen enkele aansprakelijkheid aanvaard voor enige onvolledigheid, onjuistheid of anderszins, dan wel de gevolgen daarvan. Alle opgegeven maten en oppervlakten zijn indicatief.
+ toon meer
deze woning is Verkocht

Drouwenerzand 5 Ede

Drouwenerzand 5

6718 MC, Ede
Ditters open huis: 5 april 2025 10:00 - 12:00 uur
Landelijke Open Huizen Route NVM: 5 april 2025 11:00 uur - 15:00 uur
Vanaf€ 685.000 k.k.

Schakel een aankoopmakelaar in.

Snel handelen helpt je jouw droomhuis te bemachtigen. Zo vergroot je de kans dat je er op tijd bij bent.
Ede
verkocht

Of maak vrijblijvend een zoekprofiel aan.

Vergelijkbare woningen

Hypotheken

Onafhankelijk hypotheekadvies

  • Ligt jouw droomhuis binnen handbereik?
  • Wil je jouw huidige hypotheek verhogen?
  • Is er hypotheekruimte voor verduurzaming?

Blijf op de hoogte

Ontvang als eerste updates over nieuw aanbod en mis geen enkele kans om jouw droomwoning te vinden.

Gratis waardebepaling of verkoopgesprek

Met de vrijblijvende waardecheck weet je snel waar je aan toe bent. Onze makelaars kijken naar de lokale markt en vergelijkbare woningen in jouw buurt om een goede schatting te geven.

Realiseer al jouw woondromen met Ditters

Wij zijn een team van gedreven vastgoedexperts met een passie voor het maken van verbindingen – tussen kopers en verkopers, huurders en verhuurders. Met een frisse kijk op de makelaardij combineren we expertise met creativiteit. Onze makelaars luisteren écht en nemen de tijd om jouw wensen te begrijpen.


Bij Ditters sta je er niet alleen voor. We denken met je mee, begeleiden je in elke stap en zijn altijd bereikbaar voor vragen. Neem gerust contact met ons op – we helpen je graag verder!