Omschrijving

Appartement met moderne keuken, balkon op het oosten en centrale ligging
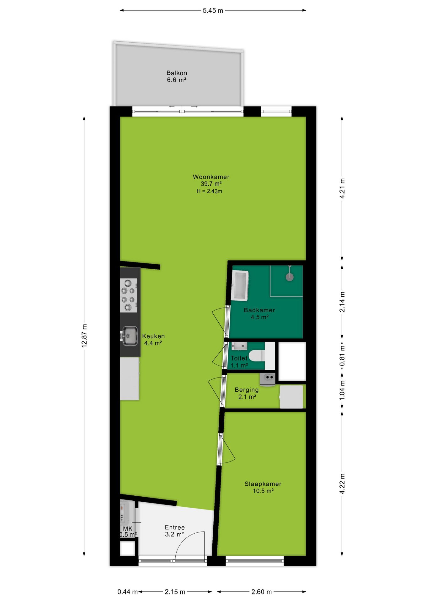
Dit appartement uit 1995 heeft een woonoppervlakte van 69 m² en beschikt over een moderne keuken, een lichte woonkamer en een balkon op het oosten. Met één slaapkamer, een vernieuwde badkamer en een centrale ligging nabij winkelcentrum Stadspoort en het ziekenhuis Gelderse Vallei, woon je hier comfortabel en praktisch.

Pluspunten van deze woning
+ Woonoppervlakte 69 m² met lichte woonkamer
+ Moderne halfopen keuken met inbouwapparatuur en inbouwspotjes
+ Slaapkamer met ruimte voor kasten en veel daglicht
+ Badkamer met douche en wastafelmeubel in zwarte accenten
+ Balkon op het oosten met uitzicht over winkelcentrum Stadspoort
+ Gezellige binnenplaats bij de entree

Ligging
De woning ligt in de wijk nabij winkelcentrum Stadspoort, met supermarkten, horeca, een bioscoop en diverse winkels zoals Hema, een kapper en Bakker Bart. Ook het ziekenhuis Gelderse Vallei ligt om de hoek. Dankzij de nabijheid van de A12 en goede verbindingen met het openbaar vervoer zijn zowel de regio als het centrum van Ede uitstekend bereikbaar.

Indeling
Verdieping
Bij binnenkomst kom je in de ruime halfopen keuken uitgerust in een warme grijze kleur, die is voorzien van moderne inbouwapparatuur waaronder een koelkast, vaatwasser, oven , afzuigkap en een en 5-pits-gasfornuis.
Tevens is er een verlaagd plafond met inbouwspotjes.

De woonkamer is ruim opgezet en circa 40 m² groot. Door de diverse raampartijen is er veel natuurlijk licht in het appartement aanwezig.
Aan de woonkamer grenst de schuifpui die leidt naar het balkon.

Het balkon op het oosten grenst direct aan de woonkamer en biedt uitzicht over het winkelcentrum. Hier kun je ’s ochtends genieten van de zon en de levendige omgeving. Daarnaast is er een gezellige binnenplaats bij de voordeur.

Aan de rechterzijde ligt de slaapkamer met veel lichtinval en voldoende ruimte voor kledingkasten.

Verder vind je in de hal de berging met wasmachineaansluiting, cv-ketel en meterkast, evenals een apart toilet met fonteintje.
De badkamer is uitgevoerd in moderne stijl met een douche en wastafelmeubel, de badkamer is voorzien van zwarte accenten.

Bijzonderheden
- Bouwjaar 1995
- Woonoppervlakte 69 m²
- Energielabel B
- Balkon op het oosten
- Parkeren met vergunning
- Gezamenlijke binnenplaats

Koopovereenkomst:
Bij de verkoop zal er een standaard NVM koopovereenkomst worden gehanteerd.
Bij woningen welke ouder zijn dan 20 jaar, worden de volgende clausules opgenomen in de koopovereenkomst:
- Asbestclausule;
- Ouderdomsclausule.

Koop je de woning zonder voorbehoud van financiering? Dan zullen wij een termijn hanteren van 6 weken na het opstellen van de koopovereenkomst voor het storten van de bankgarantie/waarborgsom.

Deze informatie is door ons met de nodige zorgvuldigheid samengesteld. Onzerzijds wordt echter geen enkele aansprakelijkheid aanvaard voor enige onvolledigheid, onjuistheid of anderszins, dan wel de gevolgen daarvan. Alle opgegeven maten en oppervlakten zijn indicatief.
+ toon meer
deze woning is Verkocht

Dubceksingel 40 Ede

Dubceksingel 40

6716 RG, Ede
Ditters open huis: 5 april 2025 10:00 - 12:00 uur
Landelijke Open Huizen Route NVM: 5 april 2025 11:00 uur - 15:00 uur
Vanaf€ 345.000 k.k.

Schakel een aankoopmakelaar in.

Snel handelen helpt je jouw droomhuis te bemachtigen. Zo vergroot je de kans dat je er op tijd bij bent.
Ede
verkocht

Of maak vrijblijvend een zoekprofiel aan.

Vergelijkbare woningen

Hypotheken

Onafhankelijk hypotheekadvies

  • Ligt jouw droomhuis binnen handbereik?
  • Wil je jouw huidige hypotheek verhogen?
  • Is er hypotheekruimte voor verduurzaming?

Blijf op de hoogte

Ontvang als eerste updates over nieuw aanbod en mis geen enkele kans om jouw droomwoning te vinden.

Gratis waardebepaling of verkoopgesprek

Met de vrijblijvende waardecheck weet je snel waar je aan toe bent. Onze makelaars kijken naar de lokale markt en vergelijkbare woningen in jouw buurt om een goede schatting te geven.

Realiseer al jouw woondromen met Ditters

Wij zijn een team van gedreven vastgoedexperts met een passie voor het maken van verbindingen – tussen kopers en verkopers, huurders en verhuurders. Met een frisse kijk op de makelaardij combineren we expertise met creativiteit. Onze makelaars luisteren écht en nemen de tijd om jouw wensen te begrijpen.


Bij Ditters sta je er niet alleen voor. We denken met je mee, begeleiden je in elke stap en zijn altijd bereikbaar voor vragen. Neem gerust contact met ons op – we helpen je graag verder!