Omschrijving

Moderne tussenwoning in kindvriendelijke wijk OP Enka
In de populaire en gezinsvriendelijke woonwijk OP Enka presenteren wij deze eigentijdse en strak afgewerkte tussenwoning uit 2021. Met energielabel A++ is de woning bijzonder duurzaam en biedt onder andere een royale uitgebouwde woonkamer, luxe keuken en badkamer, vier slaapkamers en een zonnige achtertuin op het zuiden met een praktische houten berging. Op de tweede verdieping bestaat de mogelijkheid om extra slaapkamers te realiseren.

Wonen op historische grond
Wonen OP Enka betekent wonen op een unieke locatie met een rijke historie. Waar ooit een van de grootste fabrieken van Nederland stond, vind je nu een levendige woonomgeving met een mix van moderne woningen en monumentale panden. De wijk grenst direct aan de Veluwse bossen, met natuurgebieden De Sysselt en het Horabos letterlijk als achtertuin—perfect voor lange wandelingen en ontspanning in de natuur.
Intercitystation Ede-Wageningen, op slechts vijf minuten loopafstand. Daarmee sta je binnen 25 minuten op Utrecht Centraal en binnen een uur in hartje Amsterdam. De uitvalswegen A12 en A30 zijn eveneens goed bereikbaar.
Voorzieningen zoals basisschool CNS De Ontdekking, kinderdagverblijf en BSO Bzzzonder zijn aanwezig in de wijk. Het centrum van Ede ligt op slechts 10 minuten fietsen, en voor dagelijkse boodschappen is winkelcentrum Spindop dichtbij.

Pluspunten van de woning op een rij:
- Energiezuinig met A++ label en 8 zonnepanelen
- Woonoppervlak van maar liefst 169 m²
- Volledig uitgebouwde woonkamer met visgraat houten vloer
- Luxe schuifpui en stijlvolle paneeldeuren
- Comfortabele vloerverwarming op alle verdiepingen
- Moderne keuken met hoogwaardige inbouwapparatuur
- Luxe badkamer met inloopdouche, ligbad en dubbele wastafel
- Vier slaapkamers met mogelijkheid tot uitbreiding
- Aparte wasruimte en praktische vliering
- Zonnige achtertuin met berging en achterom

Indeling
Begane grond
Ruime entree met garderobe, meterkast en modern afgewerkte toiletruimte. De royale woonkamer 36 m² is over de volle breedte uitgebouwd en biedt veel licht dankzij de grote raampartijen en schuifpui. Aan de voorzijde bevindt zich de moderne keuken in taupe/grijs tinten, voorzien van o.a. inductiekookplaat, combi-oven, Quooker, vaatwasser, koelkast en vriezer. De gehele verdieping is afgewerkt met visgraat houten vloer en vloerverwarming.

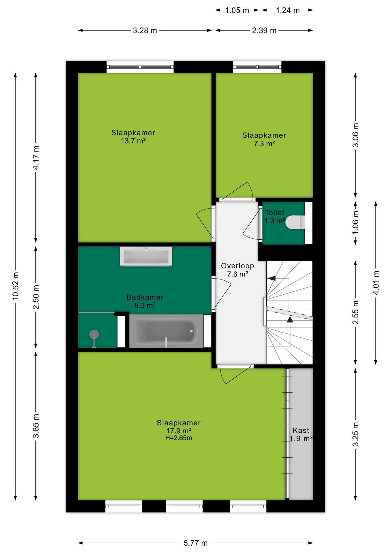
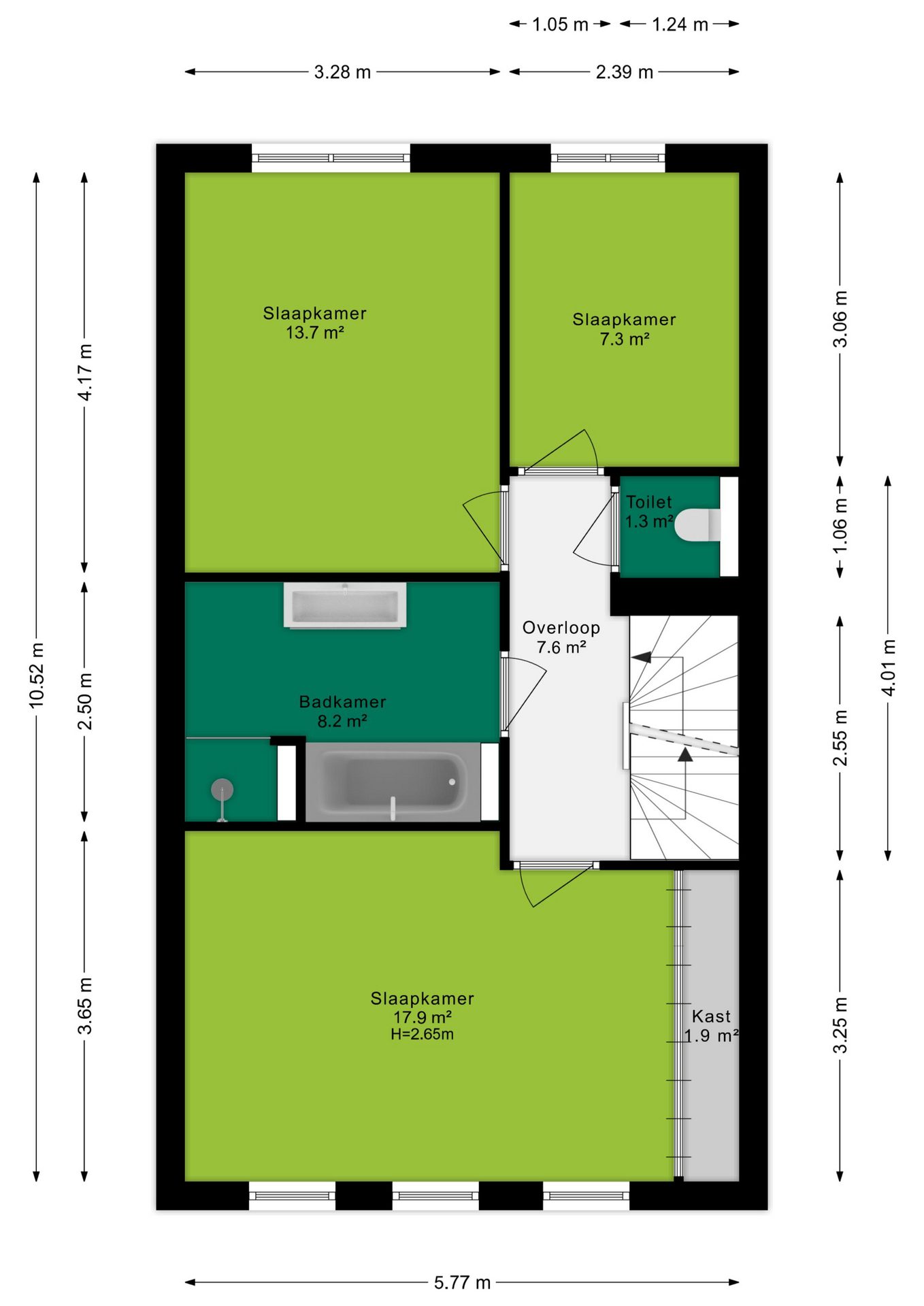
Eerste verdieping
Overloop met toegang tot drie ruime slaapkamers, waaronder een master bedroom met inbouwkast.

Luxe badkamer met inloopdouche, ligbad, dubbel wastafelmeubel en designradiator. Separaat toilet in dezelfde stijl als de badkamer. De verdieping is voorzien van laminaatvloer en vloerverwarming.

Tweede verdieping
Via vaste trap bereikbare zolder met ruime kamer en aparte wasruimte. Dakramen zorgen voor daglicht, en knieschotten bieden extra bergruimte. Aansluitingen voor wasmachine, droger en mechanische ventilatie zijn aanwezig. Mogelijkheid tot het creëren van extra slaapkamers.

Vliering
Bereikbaar via vlizotrap, ideaal als extra opslagruimte.

Tuin
Onderhoudsvriendelijke achtertuin op het zuiden met bordes en vrijstaande houten berging met elektra. Er is een achterom aanwezig.

Bijzonderheden
Verwarming: Stadsverwarming
Warm water: Stadsverwarming
Isolatie: Volledig geïsoleerd: Vloer-, muur- en dakisolatie en isolerende beglazing
Energielabel: A++
Bouwjaar: 2021
Tuinligging: Zuid
Aanvaarding: In overleg

Koopovereenkomst:
Bij de verkoop zal er een standaard NVM koopovereenkomst worden gehanteerd.

Koop je de woning zonder voorbehoud van financiering? Dan zullen wij een termijn hanteren van 6 weken na het opstellen van de koopovereenkomst voor het storten van de bankgarantie/waarborgsom.

Deze informatie is door ons met de nodige zorgvuldigheid samengesteld. Onzerzijds wordt echter geen enkele aansprakelijkheid aanvaard voor enige onvolledigheid, onjuistheid of anderszins, dan wel de gevolgen daarvan. Alle opgegeven maten en oppervlakten zijn indicatief.
+ toon meer
deze woning is Verkocht

Houtstraat 44 Ede

Houtstraat 44

6717 XH, Ede
Ditters open huis: 5 april 2025 10:00 - 12:00 uur
Landelijke Open Huizen Route NVM: 5 april 2025 11:00 uur - 15:00 uur
Vanaf€ 675.000 k.k.

Schakel een aankoopmakelaar in.

Snel handelen helpt je jouw droomhuis te bemachtigen. Zo vergroot je de kans dat je er op tijd bij bent.
Ede
verkocht

Of maak vrijblijvend een zoekprofiel aan.

Vergelijkbare woningen

Hypotheken

Onafhankelijk hypotheekadvies

  • Ligt jouw droomhuis binnen handbereik?
  • Wil je jouw huidige hypotheek verhogen?
  • Is er hypotheekruimte voor verduurzaming?

Blijf op de hoogte

Ontvang als eerste updates over nieuw aanbod en mis geen enkele kans om jouw droomwoning te vinden.

Gratis waardebepaling of verkoopgesprek

Met de vrijblijvende waardecheck weet je snel waar je aan toe bent. Onze makelaars kijken naar de lokale markt en vergelijkbare woningen in jouw buurt om een goede schatting te geven.

Realiseer al jouw woondromen met Ditters

Wij zijn een team van gedreven vastgoedexperts met een passie voor het maken van verbindingen – tussen kopers en verkopers, huurders en verhuurders. Met een frisse kijk op de makelaardij combineren we expertise met creativiteit. Onze makelaars luisteren écht en nemen de tijd om jouw wensen te begrijpen.


Bij Ditters sta je er niet alleen voor. We denken met je mee, begeleiden je in elke stap en zijn altijd bereikbaar voor vragen. Neem gerust contact met ons op – we helpen je graag verder!