Omschrijving

Deze 2-onder-1-kapwoning biedt 113 m² woonoppervlakte, drie slaapkamers (met mogelijkheid tot een vierde), vloerverwarming op de begane grond, 11 zonnepanelen, een garage van 20 m² en een diepe tuin op het oosten. Een huis met volop mogelijkheden!

De woning ligt op een praktische en prettige locatie in Ede. Op korte fietsafstand vind je winkelcentrum Stadspoort voor de dagelijkse boodschappen. Ook het voortgezet onderwijs, waaronder het Streek College en het Dulon College (ROC) ligt dichtbij. Dankzij de nabijheid van de A12 ben je snel onderweg richting Arnhem, Utrecht en Wageningen. Een fijne plek voor gezinnen en doorstromers die ruimte zoeken met goede bereikbaarheid.

Alle kenmerken op een rij:
+ 2-onder-1-kapwoning met eigen oprit en garage
+ Drie slaapkamers met mogelijkheid tot een vierde
+ Vloerverwarming op de begane grond
+ Diepe en brede tuin op het oosten
+ 11 zonnepanelen
+ Energielabel C
+ Parkeren is mogelijk in de garage of op de zeer ruime oprit
+ Buitenkozijnen geschilderd in 2025

Indeling
Begane grond
Via de hal kom je binnen bij de meterkast, een vaste kastenwand, het toilet en de trapopgang naar de eerste verdieping. Vanuit de hal is er ook direct toegang tot de achtertuin.

De leefruimte is praktisch ingedeeld. Aan de voorzijde bevindt zich de zithoek, met veel daglicht dankzij het grote raam aan de voorzijde en het zijraam. In het midden van de ruimte is de eethoek gesitueerd en aan de achterzijde bevindt zich de keuken.
De gehele begane grond, met uitzondering van het toilet, is voorzien van vloerverwarming. De radiatoren zijn behouden, waardoor je zelf kunt kiezen hoe je verwarmt.

De lichte keuken is uitgerust met een keramische kookplaat, afzuigkap, combi-magnetron, koelkast, vriezer en vaatwasser en beschikt over veel kastruimte dankzij de bovenkastjes. Extra bergruimte is te vinden in de trappenkast.

Eerste verdieping
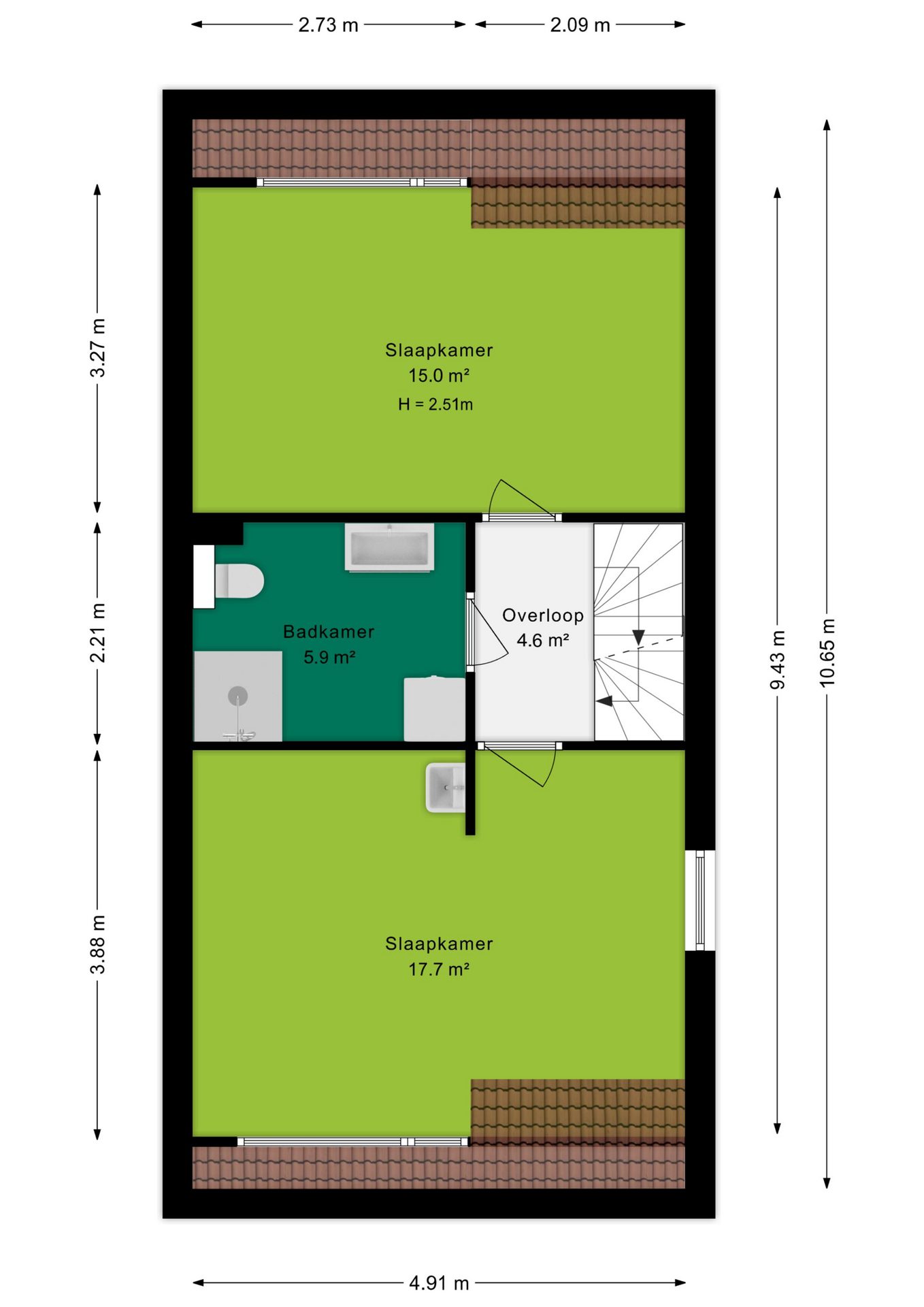
Op de eerste verdieping bevinden zich twee ruime slaapkamers van circa 18 m² en 15 m². De slaapkamer aan de voorzijde is voorzien van een wastafel. Deze kamer is groot genoeg om eventueel te splitsen, waardoor hier twee slaapkamers gerealiseerd kunnen worden. Een fijne bijkomstigheid is dat beide slaapkamers zijn uitgerust met een dakkapel.
De badkamer (circa 6 m²) is praktisch ingericht en voorzien van een douche, toilet, wastafel met meubel, designradiator en de wasmachineaansluiting.

Tweede verdieping
Op de tweede verdieping bevindt zich een derde slaapkamer van circa 9 m², voorzien van een dakraam. Op de overloop hangt de cv-ketel en is er toegang tot de knieschotten, ideaal voor extra bergruimte.

Buitenruimte
De oostelijk gelegen achtertuin is eenvoudig te bereiken via de poort tussen het woonhuis en de garage. Dankzij de breedte en diepte van de tuin zijn er volop mogelijkheden voor meerdere zithoeken, groen en speelruimte.
Een groot pluspunt is de garage van circa 20 m², ideaal voor het stallen van fietsen, motor, hobbyspullen of een auto. Daarnaast beschikt de garage over een handig zoldertje voor extra opslagruimte. Ook prettig is dat je kunt parkeren op je eigen oprit.

Koopovereenkomst
Bij de verkoop zal een standaard NVM-koopovereenkomst worden gehanteerd.
Bij woningen ouder dan 20 jaar worden de volgende clausules opgenomen:
- Asbestclausule
- Ouderdomsclausule

Bij aankoop zonder financieringsvoorbehoud geldt een termijn van zes weken na het opstellen van de koopovereenkomst voor het storten van de waarborgsom of bankgarantie.

Deze informatie is met zorg samengesteld. Er wordt geen aansprakelijkheid aanvaard voor eventuele onvolledigheden of onjuistheden. Alle opgegeven maten en oppervlakten zijn indicatief.
+ toon meer
deze woning is Verkocht

Jan Steenlaan 95 Ede

Jan Steenlaan 95

6717 TB, Ede
Ditters open huis: 5 april 2025 10:00 - 12:00 uur
Landelijke Open Huizen Route NVM: 5 april 2025 11:00 uur - 15:00 uur
Vanaf€ 525.000 k.k.

Schakel een aankoopmakelaar in.

Snel handelen helpt je jouw droomhuis te bemachtigen. Zo vergroot je de kans dat je er op tijd bij bent.
Ede
verkocht

Of maak vrijblijvend een zoekprofiel aan.

Vergelijkbare woningen

Hypotheken

Onafhankelijk hypotheekadvies

  • Ligt jouw droomhuis binnen handbereik?
  • Wil je jouw huidige hypotheek verhogen?
  • Is er hypotheekruimte voor verduurzaming?

Blijf op de hoogte

Ontvang als eerste updates over nieuw aanbod en mis geen enkele kans om jouw droomwoning te vinden.

Gratis waardebepaling of verkoopgesprek

Met de vrijblijvende waardecheck weet je snel waar je aan toe bent. Onze makelaars kijken naar de lokale markt en vergelijkbare woningen in jouw buurt om een goede schatting te geven.

Realiseer al jouw woondromen met Ditters

Wij zijn een team van gedreven vastgoedexperts met een passie voor het maken van verbindingen – tussen kopers en verkopers, huurders en verhuurders. Met een frisse kijk op de makelaardij combineren we expertise met creativiteit. Onze makelaars luisteren écht en nemen de tijd om jouw wensen te begrijpen.


Bij Ditters sta je er niet alleen voor. We denken met je mee, begeleiden je in elke stap en zijn altijd bereikbaar voor vragen. Neem gerust contact met ons op – we helpen je graag verder!