Omschrijving

Ben je een starter op de woningmarkt en zoek je je eerste koopwoning? Of ben je juist op zoek naar een compactere, gelijkvloerse woonruimte? Dan zou dit appartement op de begane grond precies kunnen zijn wat je zoekt!

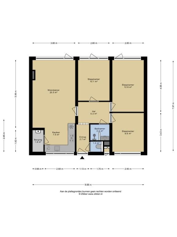
Dit appartement beschikt over vier kamers, waaronder drie slaapkamers en een uitnodigende, open woonkamer met keuken. Je hebt bovendien het gemak van een eigen parkeerplaats en een achtertuin om van te genieten.

De locatie van dit appartement is ideaal. Op slechts vijf minuten loopafstand vind je winkelcentrum Hoog Maanen, waar je terecht kunt voor al je dagelijkse boodschappen. Hier bevinden zich onder andere twee supermarkten, Kruidvat, Primera en diverse andere winkels en eetgelegenheden. Bovendien ligt het gezellige centrum van Ede op nog geen tien minuten fietsen. Het centrum van Ede staat bekend om zijn levendige sfeer, uitstekende eetgelegenheden en een breed scala aan winkels, waardoor het een geweldige plek is om te winkelen en te ontspannen.

Kortom, een ideale woning voor wie op zoek is naar comfort, gemak en een uitstekende locatie!

Pluspunten:
+Gelegen op loopafstand van winkelcentrum Hoog Maanen;
+3 slaapkamers;
+Op fietsafstand van de Ginkelse Heide;
+Nabij station Ede-Wageningen en diverse uitvalswegen;
+Fijne buitenruimte op het zuidwesten;
+Eigen berging en parkeerplaats;
+VVE kosten bedragen €152,- per maand.

Appartementsgebouw:
Het appartementengebouw heeft een gezamenlijke entree maar in de praktijk loop je vanaf jouw eigen parkeerplaats zou naar de voordeur. Wel maak je gebruik van de centrale entree om naar de berging in het souterrain te gaan.

Indeling
Bij binnenkomst via je eigen entree, compleet met voordeur en brievenbus, kom je in een lange hal. Deze hal geeft toegang tot alle vertrekken: de keuken, het toilet (exclusief wastafel), de badkamer, de woon-/eetkamer en de drie slaapkamers.

Zodra je de woonkamer binnenstapt, word je verwelkomd door een open en lichte ruimte. De woonkamer en keuken zijn gecombineerd tot één grote leefruimte, die dankzij de ramen aan de achterzijde van de woning baadt in natuurlijk licht. Dit geeft de ruimte een warme en uitnodigende sfeer. Vanuit de woonkamer heb je directe toegang tot het terras, waar je kunt genieten van de buitenlucht en de aangrenzende tuin.

De halfopen keuken is bereikbaar vanuit de woonkamer en biedt een mooi uitzicht op de voorzijde van de woning, waar ook een eigen parkeerplaats te vinden is. De keuken is uitgerust met moderne apparatuur, zoals:
- gasfornuis
- conventionele oven
- vaatwasser
- koelkast
- vriezer
Achter de groene deur vind je de berging en cv-ruimte, waar tevens ruimte is voor een wasmachine.

Het appartement beschikt over drie comfortabele slaapkamers. De slaapkamers hebben oppervlaktes van 9,6 m², 10,1 m² en 12,8 m². De twee grootste slaapkamers grenzen aan de tuin en hebben directe toegang tot buiten. De derde slaapkamer, met een oppervlakte van 9,6 m², is voorzien van een grote raampartij die zorgt voor veel lichtinval. De badkamer, bereikbaar vanuit de hal, is ingericht met een moderne douche, een wastafel en een wastafelmeubel voor extra opbergruimte. De plafond en mechanische ventilatie dient hier nog aangepakt te worden door koper.

Exterieur:
Zowel vanuit de woonkamer als de slaapkamers aan de achterzijde van de woning heb je toegang tot een terras met een privé tuin op het westen. Een groot voordeel van dit appartement is de royale buitenruimte, die aanzienlijk groter is dan die van de bovenliggende appartementen.

Afmetingen
Inhoud woning: 265 m³
Woonoppervlakte: 80 m²

Bijzonderheden
Verwarming: C.V.-ketel Atag;
Warmwater: C.V.-ketel Atag;
Tuinligging: Westen;
Isolatie: Gedeeltelijk dubbelglas;
Aanvaarding: In overleg.

Koopovereenkomst:
Bij de verkoop zal er een standaard NVM koopovereenkomst worden gehanteerd. Bij woningen welke ouder zijn dan 20 jaar, worden de volgende clausules opgenomen in de koopovereenkomst:
- Asbestclausule;
- Ouderdomsclausule
- As is where is clausule

Koopt u de woning zonder voorbehoud van financiering? Dan zullen wij een termijn hanteren van 14 dagen na het opstellen van de koopovereenkomst voor het storten van de bankgarantie/waarborgsom.

Deze informatie is door ons met de nodige zorgvuldigheid samengesteld. Onzerzijds wordt echter geen enkele aansprakelijkheid aanvaard voor enige onvolledigheid, onjuistheid of anderszins, dan wel de gevolgen daarvan. Alle opgegeven maten en oppervlakten zijn indicatief.
+ toon meer
deze woning is Verkocht

Jan Th. Tooroplaan 81 Ede

Jan Th. Tooroplaan 81

6717 KC, Ede
Ditters open huis: 5 april 2025 10:00 - 12:00 uur
Landelijke Open Huizen Route NVM: 5 april 2025 11:00 uur - 15:00 uur
Vanaf€ 285.000 k.k.

Schakel een aankoopmakelaar in.

Snel handelen helpt je jouw droomhuis te bemachtigen. Zo vergroot je de kans dat je er op tijd bij bent.
Ede
verkocht

Of maak vrijblijvend een zoekprofiel aan.

Vergelijkbare woningen

Hypotheken

Onafhankelijk hypotheekadvies

  • Ligt jouw droomhuis binnen handbereik?
  • Wil je jouw huidige hypotheek verhogen?
  • Is er hypotheekruimte voor verduurzaming?

Blijf op de hoogte

Ontvang als eerste updates over nieuw aanbod en mis geen enkele kans om jouw droomwoning te vinden.

Gratis waardebepaling of verkoopgesprek

Met de vrijblijvende waardecheck weet je snel waar je aan toe bent. Onze makelaars kijken naar de lokale markt en vergelijkbare woningen in jouw buurt om een goede schatting te geven.

Realiseer al jouw woondromen met Ditters

Wij zijn een team van gedreven vastgoedexperts met een passie voor het maken van verbindingen – tussen kopers en verkopers, huurders en verhuurders. Met een frisse kijk op de makelaardij combineren we expertise met creativiteit. Onze makelaars luisteren écht en nemen de tijd om jouw wensen te begrijpen.


Bij Ditters sta je er niet alleen voor. We denken met je mee, begeleiden je in elke stap en zijn altijd bereikbaar voor vragen. Neem gerust contact met ons op – we helpen je graag verder!