Omschrijving

Een karaktervolle 2-onder-1-kapwoning met veel ruimte én een topligging!
Ben je op zoek naar een royale, karaktervolle woning met verrassend veel ruimte, een diepe zonnige tuin en volop opbergmogelijkheden? Dan is Julianalaan 13 in Ede precies wat je zoekt! Deze charmante 2-onder-1-kapwoning biedt maar liefst 177 m² woonoppervlak, een perceel van 353 m², vier ruime slaapkamers en een grote kelder onder de garage. Hier woon je comfortabel, centraal én sfeervol.

Wonen op een toplocatie in Ede
Julianalaan 13 ligt in een rustige en prettige straat op loopafstand van station Ede-Wageningen en op slechts een paar minuten van winkelcentrum Spindop aan de Parkweg — ideaal voor je dagelijkse boodschappen. De A12 en A30 liggen op korte rijafstand, waardoor je binnen no-time richting Arnhem, Utrecht of Amersfoort bent. Ook zijn er diverse scholen, sportclubs en horecagelegenheden in de directe omgeving. Kortom: een centrale locatie met alles binnen handbereik!

Pluspunten op een rij:
+ Royale woonoppervlakte van ca. 177 m²
+ Grote woonkamer met open haard
+ Vier slaapkamers en meerdere opbergmogelijkheden
+ Diepe en zonnige tuin op het oosten
+ Kelder van 25 m² onder de bijkeuken
+ Eigen oprit met plaats voor drie auto's
+ Gelegen nabij station, winkels en uitvalswegen

Indeling
Begane grond
Bij binnenkomst valt direct de royale woonkamer op van maar liefst 53 m², met grote raampartijen en een gezellige open haard als warme blikvanger. De openslaande deuren geven toegang tot de diepe tuin, ideaal voor lange zomerdagen of een goed glas wijn in de avondzon. De hoekkeuken is compleet uitgerust met onder andere een inductieplaat, oven, koelkast, vaatwasser en veel werkruimte. De praktische bijkeuken, met een aansluiting voor de wasmachine, geeft toegang tot een royale kelder van 25 m² — perfect voor opslag of een wijncollectie. Vanuit de bijkeuken heb je rechtstreeks toegang tot het achterterras en de tuin.

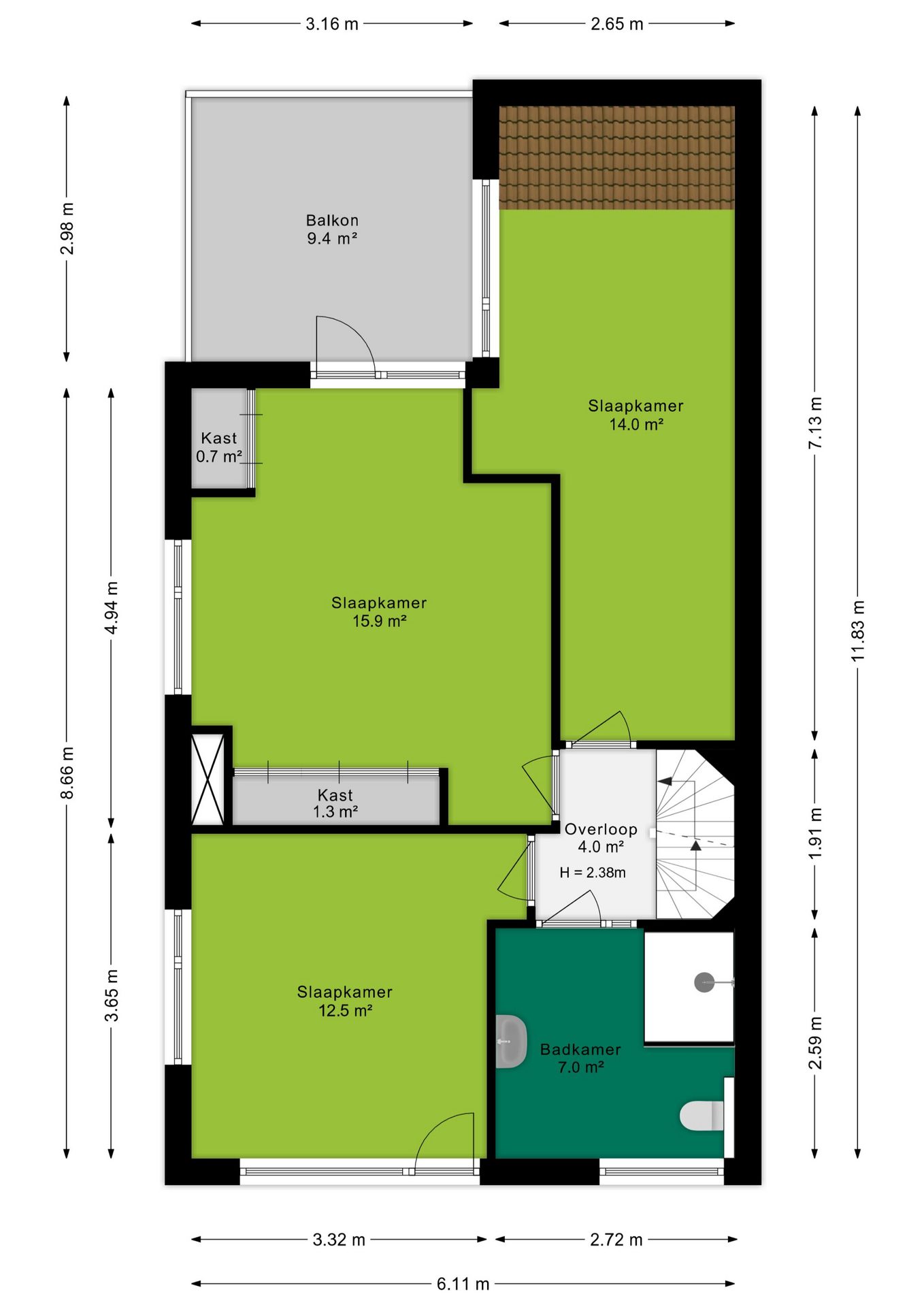
Eerste verdieping
Drie grote slaapkamers, waarvan één met vaste kasten en toegang tot een ruim balkon van 9 m². De overige kamers zijn ca. 14 m² en 13 m² groot — ideaal voor gezinsgebruik of thuiswerken.
De badkamer is uitgerust met een douche, wastafel, toilet, designradiator en vloerverwarming.

Tweede verdieping
Een ruime overloop en een vierde slaapkamer van 12 m² maken deze verdieping perfect voor logés, hobbyruimte of extra werkplek. Daarnaast biedt de overloop toegang tot een kastruimte waar de cv-ketel is geïnstalleerd.
Tuin
Met een diepte van ca. 18 meter en een breedte van 9 meter is de oostelijk gelegen tuin een absolute troef. Achterin de tuin vind je een ruime overkapping waar je tot laat in de avond beschut buiten zit. Daarnaast is er een stenen berging aanwezig voor al je tuingereedschap, fietsen of klussen.

Nieuwsgierig geworden?
Deze woning wacht op een nieuwe eigenaar die ruimte, karakter en comfort weet te waarderen. Neem snel contact met ons op voor een bezichtiging — we laten je deze woning met plezier zien!

Koopovereenkomst:
- Bij de verkoop zal er een standaard NVM koopovereenkomst worden gehanteerd. Bij woningen welke ouder zijn dan 20 jaar, worden de volgende clausules opgenomen in de koopovereenkomst:
- Asbestclausule;
- Ouderdomsclausule.

Koop je de woning zonder voorbehoud van financiering? Dan zullen wij een termijn hanteren van 14 dagen na het opstellen van de koopovereenkomst voor het storten van de bankgarantie/waarborgsom.
+ toon meer
deze woning is Verkocht

Julianalaan 13 Ede

Julianalaan 13

6717 JK, Ede
Ditters open huis: 5 april 2025 10:00 - 12:00 uur
Landelijke Open Huizen Route NVM: 5 april 2025 11:00 uur - 15:00 uur
Vanaf€ 795.000 k.k.

Schakel een aankoopmakelaar in.

Snel handelen helpt je jouw droomhuis te bemachtigen. Zo vergroot je de kans dat je er op tijd bij bent.
Ede
verkocht

Of maak vrijblijvend een zoekprofiel aan.

Vergelijkbare woningen

Hypotheken

Onafhankelijk hypotheekadvies

  • Ligt jouw droomhuis binnen handbereik?
  • Wil je jouw huidige hypotheek verhogen?
  • Is er hypotheekruimte voor verduurzaming?

Blijf op de hoogte

Ontvang als eerste updates over nieuw aanbod en mis geen enkele kans om jouw droomwoning te vinden.

Gratis waardebepaling of verkoopgesprek

Met de vrijblijvende waardecheck weet je snel waar je aan toe bent. Onze makelaars kijken naar de lokale markt en vergelijkbare woningen in jouw buurt om een goede schatting te geven.

Realiseer al jouw woondromen met Ditters

Wij zijn een team van gedreven vastgoedexperts met een passie voor het maken van verbindingen – tussen kopers en verkopers, huurders en verhuurders. Met een frisse kijk op de makelaardij combineren we expertise met creativiteit. Onze makelaars luisteren écht en nemen de tijd om jouw wensen te begrijpen.


Bij Ditters sta je er niet alleen voor. We denken met je mee, begeleiden je in elke stap en zijn altijd bereikbaar voor vragen. Neem gerust contact met ons op – we helpen je graag verder!