Omschrijving

Stap binnen in deze sfeervolle jaren 30' woning, waar karaktervolle glas-in-lood ensuite deuren, een warme STUV houtkachel in de woonkamer, en een lichte, modern uitgeruste keuken samenkomen. Geniet van de praktische indeling met ruime slaapkamers, een comfortabele badkamer, en extra bergruimte. De prachtig aangelegde tuin met terras, speelplek, trampoline en handige berging maken dit huis tot een perfecte plek voor zowel ontspanning als actief gezinsleven.

Deze instapklare woning heeft een centrale ligging die het gemakkelijk maakt om met de fiets snel het centrum van Ede te bereiken, evenals het nabijgelegen winkelcentrum Rozenplein. Dit winkelcentrum biedt een breed scala aan winkels en voorzieningen, waardoor dagelijkse boodschappen en andere aankopen eenvoudig te doen zijn. Daarnaast liggen de treinstations Ede-Centrum en Ede-Wageningen op fietsafstand.

De Kerkweg is omgeven door veel openbaar groen, wat de straat een prettige en natuurlijke uitstraling geeft. Kinderen kunnen veilig naar school lopen of fietsen, en de buurt is zeer kindvriendelijk. Voor de jongste bewoners zijn er in de buurt verschillende speelplekken, zoals speeltuin "De Korenbloem" en in de wijk Soma aan de overkant van de woning. Deze speelplekken bieden kinderen de mogelijkheid om te spelen en nieuwe vriendjes te maken, terwijl ouders kunnen genieten van de sociale samenhang die de buurt biedt.

De woning aan de Kerkweg in Ede biedt dus zowel de voordelen van een centrale ligging als de charme van een groene en kindvriendelijke buurt. Het is een plek waar stedelijk leven en de rust van de natuur samenkomen, waardoor het een ideale woonomgeving is voor een diverse groep bewoners.

Enkele pluspunten van de woning:
+ Sfeervolle woonkamer uitgerust met een STUV houtkachel;
+ Glas-in-lood ensuite deuren en ramen voegen een charmant en uniek element toe aan de woon- en eetkamer;
+ Moderne keuken;
+ Comfortabele badkamer;
+ Royale tuin met houten berging;
+ 12 zonnepanelen aanwezig.

Indeling
Begane grond
Binnenkomst via de entree, met een trap naar de eerste verdieping en de kelder, en een toilet met fonteintje. Vanuit de entree bereik je de woonkamer, die voorzien is van een houtkachel. Via glas-in-lood ensuite deuren kom je in de eetkamer, die uitkijkt op de straat.

De woonkamer biedt toegang tot de serre, waar je beschut kunt zitten. Op warme dagen kun je de schuifdeuren openen voor extra ventilatie. Naast de serre bevindt zich de keuken, die is uitgerust met lichte kastjes, een natuurstenen werkblad en diverse inbouwapparatuur, waaronder een vierpits gasfornuis, afzuigkap, vaatwasser, oven en koelkast. Dankzij het Velux dakraam valt er veel daglicht binnen in de keuken. Vanuit de keuken leidt een schuifdeur naar de bijkeuken, waar de aansluiting voor de wasmachine is te vinden en meerdere grote inbouwkasten. De bijkeuken is voorzien van bergzolder.

Eerste verdieping
Op de overloop vind je toegang tot de volledig betegelde badkamer, die is uitgerust met een toilet, een wastafel en een comfortabel bad met douchefunctie. Verder zijn er op deze verdieping twee slaapkamers. De eerste slaapkamer is ruim en beschikt over een praktische inbouwkast. Daarnaast is deze kamer voorzien van een losse wastafel in een aparte ruimte, wat extra gemak biedt. De tweede slaapkamer is eveneens ruim en kan flexibel worden ingericht, bijvoorbeeld als kinder-, logeer- of werkkamer. Vaste kast onder de trap vanuit deze kamer.

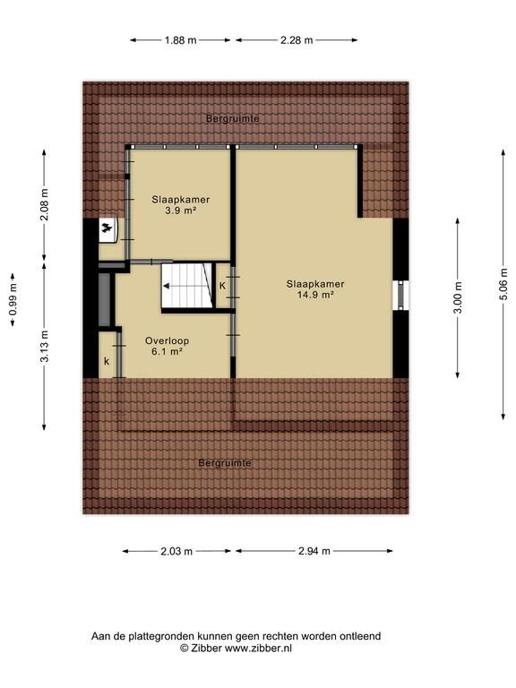
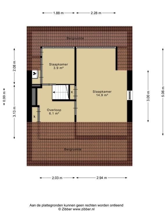
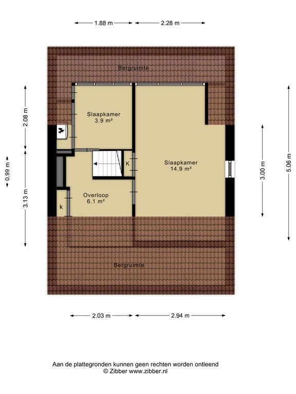
Tweede verdieping
Overloop, nog twee slaapkamers, diverse berguimte en vaste kast met daarin de CV-ketel.

Tuin
De tuin is toegankelijk via de serre of de bijkeuken. Deze is prachtig aangelegd en beschikt over een terras en een speelplek. Achterin de tuin vind je een trampoline en een berging, perfect voor het opbergen van fietsen en tuingereedschap. De tuin is ook bereikbaar vanaf de oprit door middel van de brede poort. Aan de zijkant van de woning is een houten afdak gerealiseerd perfect voor de kliko's of fietsen.

Afmetingen
Perceeloppervlakte: 289 m²
Inhoud woning: 454 m³
Woonoppervlakte: 123 m²

Bijzonderheden
Verwarming: Cv-installatie, Nefit trendline HRC 30 CW5;
Warm water: Cv-installatie, Nefit trendline HRC 30 CW5;
Isolatie: Dakisolatie, muurisolatie, HR-glas;
Bouwjaar: 1941;
Tuinligging: Noordoosten;
Aanvaarding: In overleg.

Koopovereenkomst:
Bij de verkoop zal er een standaard NVM koopovereenkomst worden gehanteerd. Bij woningen welke ouder zijn dan 20 jaar, worden de volgende clausules opgenomen in de koopovereenkomst:
- Asbestclausule;
- Ouderdomsclausule.

Koop je de woning zonder voorbehoud van financiering? Dan zullen wij een termijn hanteren van 14 dagen na het opstellen van de koopovereenkomst voor het storten van de bankgarantie/waarborgsom.

Deze informatie is door ons met de nodige zorgvuldigheid samengesteld. Onzerzijds wordt echter geen enkele aansprakelijkheid aanvaard voor enige onvolledigheid, onjuistheid of anderszins, dan wel de gevolgen daarvan. Alle opgegeven maten en oppervlakten zijn indicatief.
+ toon meer
deze woning is Verkocht

Kerkweg 58 Ede

Kerkweg 58

6713 ND, Ede
Ditters open huis: 5 april 2025 10:00 - 12:00 uur
Landelijke Open Huizen Route NVM: 5 april 2025 11:00 uur - 15:00 uur
Vanaf€ 595.000 k.k.

Schakel een aankoopmakelaar in.

Snel handelen helpt je jouw droomhuis te bemachtigen. Zo vergroot je de kans dat je er op tijd bij bent.
Ede
verkocht

Of maak vrijblijvend een zoekprofiel aan.

Vergelijkbare woningen

Hypotheken

Onafhankelijk hypotheekadvies

  • Ligt jouw droomhuis binnen handbereik?
  • Wil je jouw huidige hypotheek verhogen?
  • Is er hypotheekruimte voor verduurzaming?

Blijf op de hoogte

Ontvang als eerste updates over nieuw aanbod en mis geen enkele kans om jouw droomwoning te vinden.

Gratis waardebepaling of verkoopgesprek

Met de vrijblijvende waardecheck weet je snel waar je aan toe bent. Onze makelaars kijken naar de lokale markt en vergelijkbare woningen in jouw buurt om een goede schatting te geven.

Realiseer al jouw woondromen met Ditters

Wij zijn een team van gedreven vastgoedexperts met een passie voor het maken van verbindingen – tussen kopers en verkopers, huurders en verhuurders. Met een frisse kijk op de makelaardij combineren we expertise met creativiteit. Onze makelaars luisteren écht en nemen de tijd om jouw wensen te begrijpen.


Bij Ditters sta je er niet alleen voor. We denken met je mee, begeleiden je in elke stap en zijn altijd bereikbaar voor vragen. Neem gerust contact met ons op – we helpen je graag verder!