Omschrijving

Deze prachtige vrijstaande woning aan de Korenbloemlaan 23 in Ede heeft alles in huis voor comfortabel en sfeervol wonen.

Het huis kenmerkt zich door de unieke en karakteristieke details en beschikt daarnaast over een eigen oprit.

De ligging is ideaal: nabij het gezellige centrum van Ede, met diverse voorzieningen zoals winkels, scholen en restaurants op loopafstand, en het treinstation op fietsafstand.

Bovendien beschikt de woning over een royale tuin op het zuidwesten, waar je volop kunt genieten van de zon en de rust. De tuin is rijk aan groen, wat een natuurlijke en ontspannen sfeer creëert. Kortom, een prachtige woning op een centrale en aantrekkelijke locatie!

Indeling:
Begane grond:
Aan de voorzijde van de woning bevindt zich de entree, die toegang biedt tot de hal. In de hal tref je het toilet en de trapopgang naar boven. Vanuit de hal betreed je de sfeervolle woonkamer, die dankzij de vele raampartijen, een fraaie houten vloer en een hoog plafond een ruimtelijke en warme uitstraling heeft. Aan de voorzijde van de woonkamer bevindt zich een royale erker, waar het eetgedeelte is gesitueerd.

De moderne keuken uit 2022, uitgevoerd in een stijlvolle antracietgrijze kleur, is voorzien van diverse inbouwapparatuur, waaronder een kookplaat, afzuigkap, oven, koel-vriescombinatie en vaatwasser.

Loop je verder door, dan kom je in de praktische bijkeuken. Hier vind je de aansluitingen voor de wasmachine en droger, voldoende bergruimte, tevens op een vliering, én de deur die toegang verleent tot de heerlijk ruime tuin.

Heb je extra opslagruimte nodig? Geen zorgen! Deze woning beschikt ook over een praktische kelder, perfect om al je spullen en voorraad netjes op te bergen.

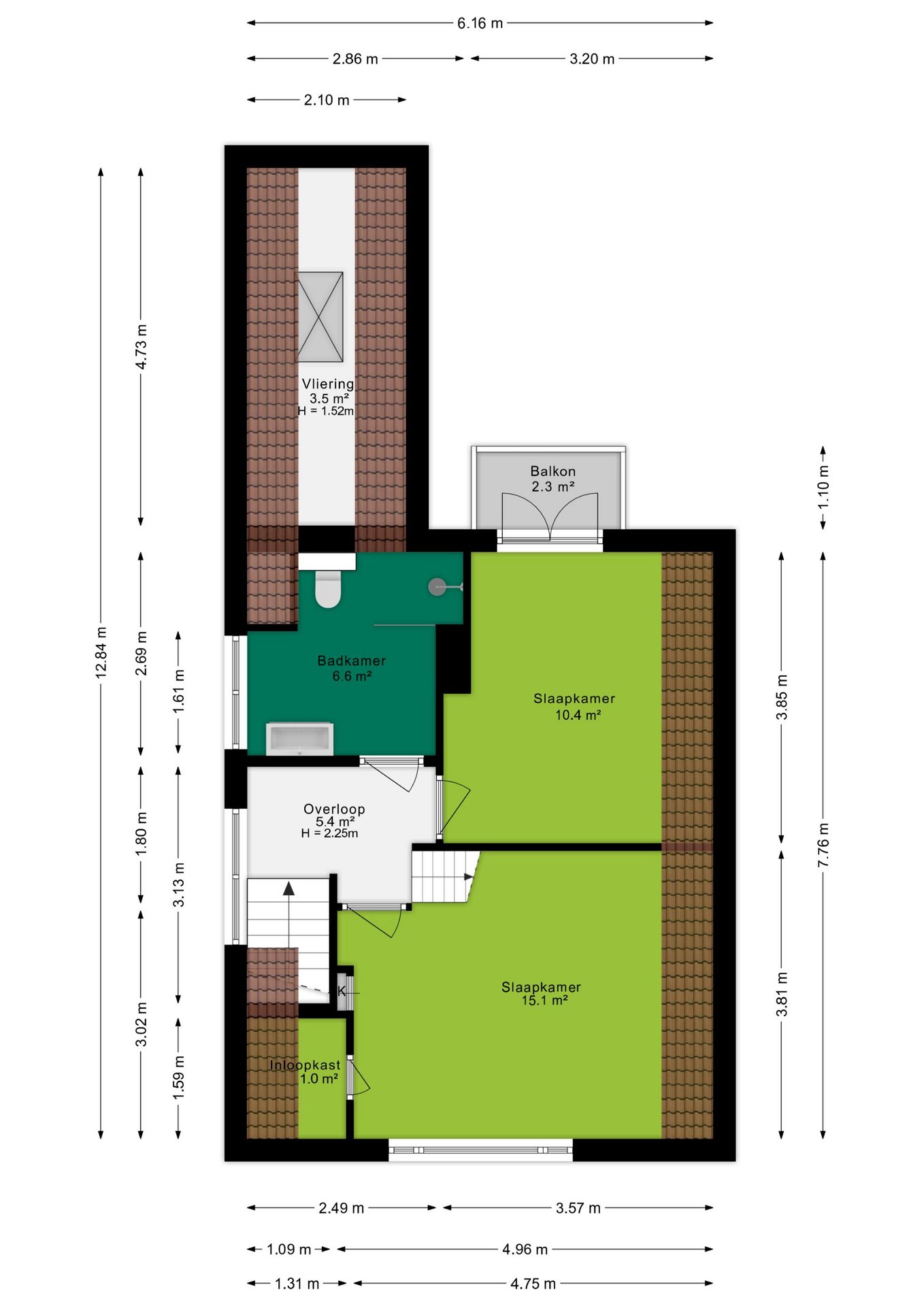
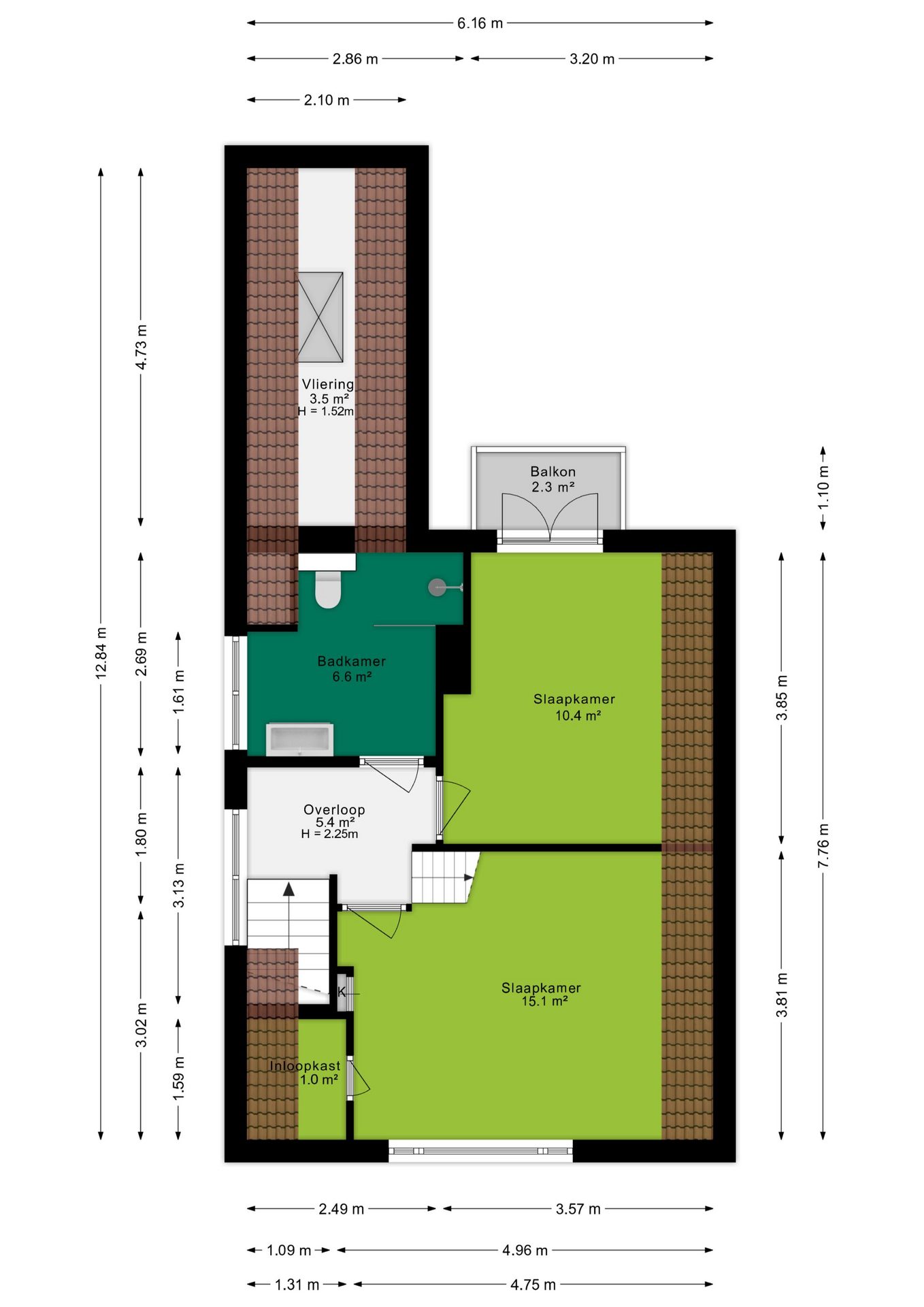
Eerste verdieping:
Via de vaste trap bereik je de eerste verdieping. Vanaf de overloop heb je toegang tot twee slaapkamers van 17,1 m² en 13,2 m². Beide kamers genieten van veel natuurlijk lichtinval en bieden voldoende ruimte voor kasten. Eén van de slaapkamers beschikt daarnaast over toegang tot een balkon, wat het geheel extra aantrekkelijk maakt.

De badkamer is modern afgewerkt met wit en antraciet grijze tegels en voorzien van alle gemakken. Zo vind je hier een ruim wastafelmeubel, een toilet en een inloopdouche. Het te openen raam zorgt bovendien voor fijne natuurlijke ventilatie. Er is ook mechanische ventilatie in de badkamer. Tevens is de badkamer voorzien van vloerverwarming.

De zolder is bereikbaar via een vaste trap waar je tevens ook een handige opslagruimte kunt vinden, ideaal om al je spullen netjes en georganiseerd op te bergen. Door de in 2006 over de volle lengte geplaatste dakkapel is deze ruimte uitstekend te gebruiken als slaapkamer.

Tuin:
De royale tuin biedt een heerlijke buitenruimte en is ideaal gelegen op het zuidwesten, waardoor je de hele dag kunt genieten van de zon. De tuin is prachtig aangelegd met veel groen, wat een rustige en natuurlijke uitstraling geeft. Daarnaast is er een sfeervolle veranda waar je heerlijk kunt ontspannen. Ook bevindt zich er een ruime beton-houten schuur met een praktische bergzolder, perfect voor het opbergen van tuingereedschap, fietsen of andere benodigdheden. Kortom, een prachtige plek om te genieten van het buitenleven!

Kenmerken:
Verwarming en warm water: CV-installatie (2019);
Isolatie: Muur-, vloerisolatie, dubbel glas;
Bouwjaar: 1938;
Tuinligging: Rondom;
Aanvaarding: In overleg.

Koopovereenkomst:
Bij de verkoop zal er een standaard NVM koopovereenkomst worden gehanteerd. Bij woningen welke ouder zijn dan 20 jaar, worden de volgende clausules opgenomen in de koopovereenkomst:
- Asbestclausule;
- Ouderdomsclausule.

Koop je de woning zonder voorbehoud van financiering? Dan zullen wij een termijn hanteren van 14 dagen na het opstellen van de koopovereenkomst voor het storten van de bankgarantie/waarborgsom.

Deze informatie is door ons met de nodige zorgvuldigheid samengesteld. Onzerzijds wordt echter geen enkele aansprakelijkheid aanvaard voor enige onvolledigheid, onjuistheid of anderszins, dan wel de gevolgen daarvan. Alle opgegeven maten en oppervlakten zijn indicatief.
+ toon meer
deze woning is Verkocht

Korenbloemlaan 23 Ede

Korenbloemlaan 23

6713 DW, Ede
Ditters open huis: 5 april 2025 10:00 - 12:00 uur
Landelijke Open Huizen Route NVM: 5 april 2025 11:00 uur - 15:00 uur
Vanaf€ 675.000 k.k.

Schakel een aankoopmakelaar in.

Snel handelen helpt je jouw droomhuis te bemachtigen. Zo vergroot je de kans dat je er op tijd bij bent.
Ede
verkocht

Of maak vrijblijvend een zoekprofiel aan.

Vergelijkbare woningen

Hypotheken

Onafhankelijk hypotheekadvies

  • Ligt jouw droomhuis binnen handbereik?
  • Wil je jouw huidige hypotheek verhogen?
  • Is er hypotheekruimte voor verduurzaming?

Blijf op de hoogte

Ontvang als eerste updates over nieuw aanbod en mis geen enkele kans om jouw droomwoning te vinden.

Gratis waardebepaling of verkoopgesprek

Met de vrijblijvende waardecheck weet je snel waar je aan toe bent. Onze makelaars kijken naar de lokale markt en vergelijkbare woningen in jouw buurt om een goede schatting te geven.

Realiseer al jouw woondromen met Ditters

Wij zijn een team van gedreven vastgoedexperts met een passie voor het maken van verbindingen – tussen kopers en verkopers, huurders en verhuurders. Met een frisse kijk op de makelaardij combineren we expertise met creativiteit. Onze makelaars luisteren écht en nemen de tijd om jouw wensen te begrijpen.


Bij Ditters sta je er niet alleen voor. We denken met je mee, begeleiden je in elke stap en zijn altijd bereikbaar voor vragen. Neem gerust contact met ons op – we helpen je graag verder!