Omschrijving

Wonen in drie lagen, met eigen buitenruimte en drie slaapkamers?

Aan de Maria van Osstraat 4 vind je een moderne HOEKMAISONNETTE met een doordachte indeling. Het appartement biedt 92 m² woonoppervlak, een westelijk gelegen balkon voor de middag- en avondzon en een separate berging. Een fijne match voor starters of een jong gezin!

De locatie is zeer gunstig: het winkelcentrum Stadspoort ligt op korte fietsafstand, diverse scholen en station Ede-Wageningen bevinden zich dichtbij en de A12 is binnen enkele minuten bereikbaar. Ook Landgoed Hoekelum ligt nabij – ideaal voor een heerlijke wandeling. Daarnaast zijn de heidegebieden rond Ede ook goed te bereiken voor hardlopen, fietsen of een ontspannen middag in het groen.

“We hebben hier met veel plezier gewoond! Met 3 etages voelt het heerlijk ruim, maar toch knus aan. Buiten op het balkon kun je zowel overdag als op een warme zomeravond genieten van de rust en sfeer. Alles wat je nodig hebt ligt dichtbij, inclusief station Ede-Wageningen. Het contact met de buren is altijd prettig geweest. Ook de VvE is goed georganiseerd, wat het woongenot alleen maar vergroot. Het complex en de huizen in de buurt vormen samen een mooie eenheid. Het is een kindvriendelijke buurt met diverse speeltuintjes en Buurtpark Maandereng om de hoek. Ieder jaar met Koningsdag zijn daar allerlei kleden en kraampjes uitgestald en is er een DJ. Een gezellig tafereel dat volop wordt bezocht.”

Indeling:
1e verdieping:
Via de eigen voordeur op de begane grond bereik je de trap naar boven. In de hal vind je het toilet en de trapopgang. De lichte woonkamer, met een royaal raampartij aan de achterzijde, biedt toegang tot het balkon. Centraal ligt het eetgedeelte met ruimte voor een grote eettafel. De keuken met hoogglans witte kasten is voorzien van diverse inbouwapparatuur zoals: de kookplaat, afzuigkap, combi-oven, koel-vriescombinatie en vaatwasser.

2e verdieping:
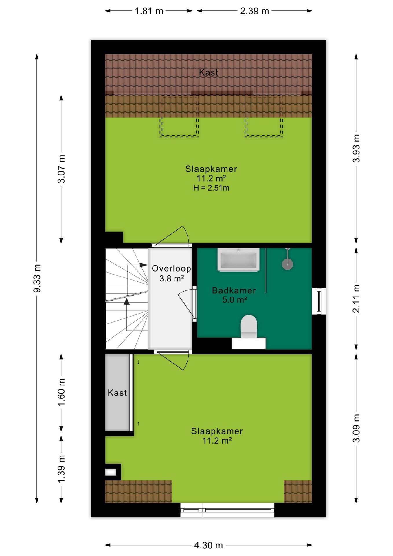
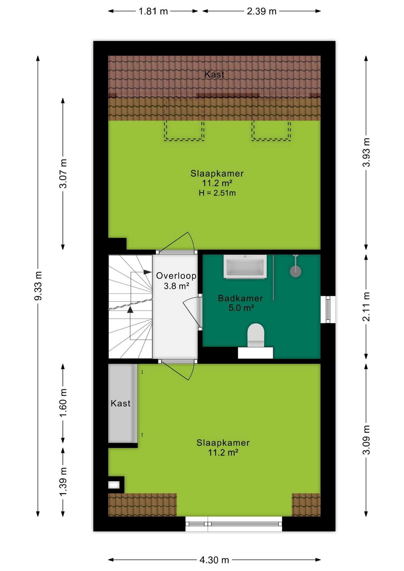
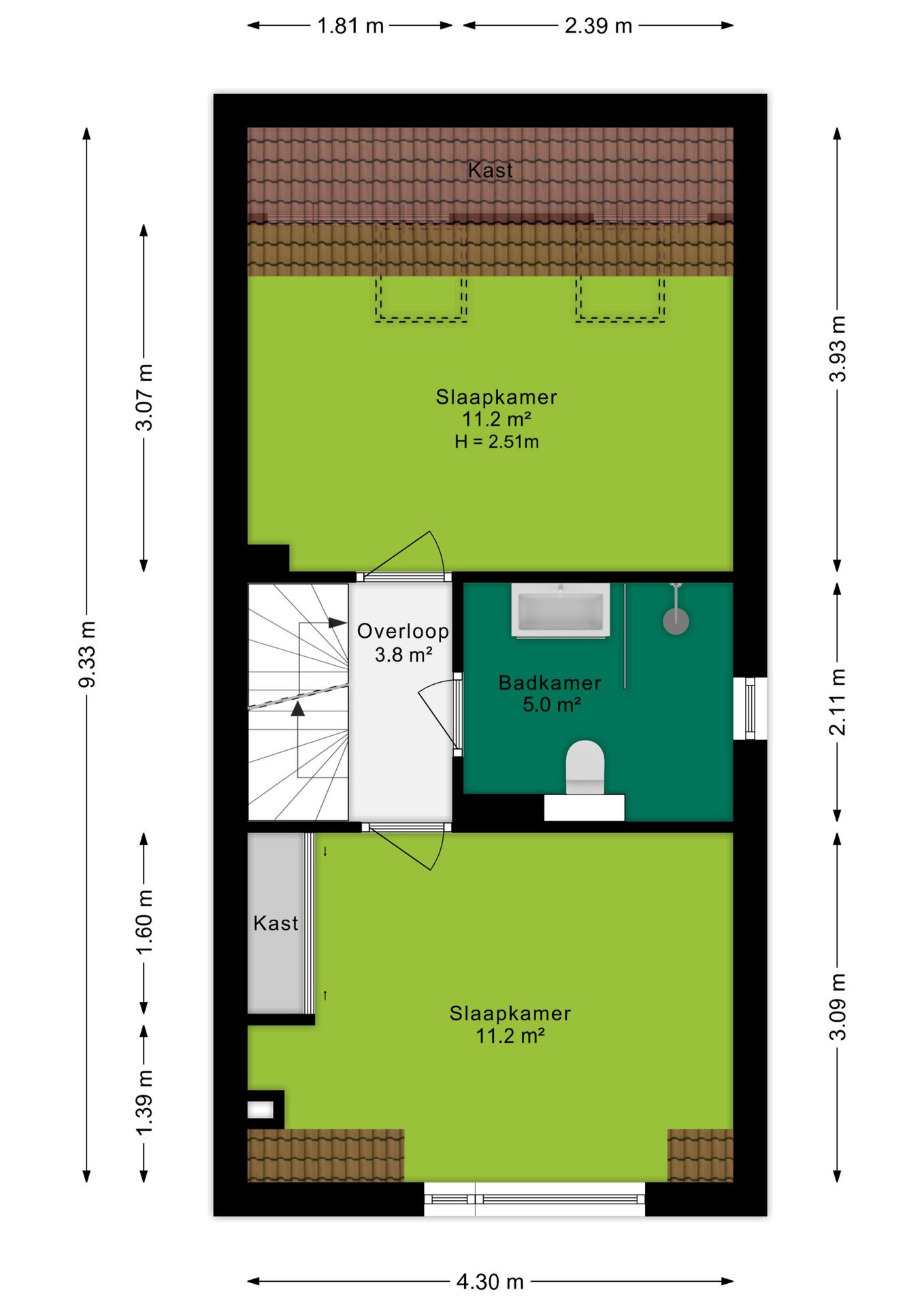
Door middel van de vaste trap kom je op de tweede verdieping. Hier liggen twee slaapkamers van ieder 11,2 m². De kamer aan de voorzijde heeft een dakkapel en een inbouwkast; de kamer aan de achterzijde beschikt over twee dakramen en knieschotten. De moderne badkamer is uitgerust met een ruim wastafelmeubel, toilet en inloopdouche. Een te openen raam aan de noordzijde zorgt voor natuurlijke ventilatie.

3e verdieping:
Via de vaste trap kom je op de zolderverdieping met een derde kamer van 11,1 m², geschikt als slaap-, werk- of sportruimte. Een dakraam op het westen en een raam aan de noordzijde zorgen voor een fijne lichtinval. Verder bevindt zich hier ook de C.V.-ketel en de aansluiting voor de wasmachine.

Buitenruimte & berging:
Het balkon van 7,1 m² is te bereiken via de woonkamer, ligt op het westen en biedt zon in de middag en avond. Een fijne verlenging van de woonkamer. Daarnaast is er een externe berging van 5 m² beschikbaar, perfect voor het stallen van fietsen of het opbergen van seizoensspullen. Parkeren kan openbaar in de directe omgeving.

Pluspunten
+ Hoek maisonnette verdeeld over drie verdiepingen
+ Lichte woonkamer van 23,4 m²
+ Drie volwaardige slaapkamers
+ Balkon op het westen
+ Gratis openbaar parkeren
+ Nieuwe horren op het noorden uit 2025
+ Nieuw dakraam op zolder met kunststof kozijn en HR++ beglazing uit 2025
+ C.V. ketel uit 2022
+ Extra bergruimte met vide in de externe berging
+ Gezonde en actieve VvE
+ Centrale ligging nabij voorzieningen, scholen en uitvalswegen.

- Bij de verkoop zal er een standaard NVM koopovereenkomst worden gehanteerd. Bij woningen welke ouder zijn dan 20 jaar, worden de volgende clausules opgenomen in de koopovereenkomst:
- Asbestclausule;
- Ouderdomsclausule.

Koopovereenkomst:
Koop je de woning zonder voorbehoud van financiering? Dan zullen wij een termijn hanteren van 6 weken na het opstellen van de koopovereenkomst voor het storten van de bankgarantie/waarborgsom.
+ toon meer
deze woning is Verkocht

Maria van Osstraat 4 Ede

Maria van Osstraat 4

6717 TK, Ede
Ditters open huis: 5 april 2025 10:00 - 12:00 uur
Landelijke Open Huizen Route NVM: 5 april 2025 11:00 uur - 15:00 uur
Vanaf€ 325.000 k.k.

Schakel een aankoopmakelaar in.

Snel handelen helpt je jouw droomhuis te bemachtigen. Zo vergroot je de kans dat je er op tijd bij bent.
Ede
verkocht

Of maak vrijblijvend een zoekprofiel aan.

Vergelijkbare woningen

Hypotheken

Onafhankelijk hypotheekadvies

  • Ligt jouw droomhuis binnen handbereik?
  • Wil je jouw huidige hypotheek verhogen?
  • Is er hypotheekruimte voor verduurzaming?

Blijf op de hoogte

Ontvang als eerste updates over nieuw aanbod en mis geen enkele kans om jouw droomwoning te vinden.

Gratis waardebepaling of verkoopgesprek

Met de vrijblijvende waardecheck weet je snel waar je aan toe bent. Onze makelaars kijken naar de lokale markt en vergelijkbare woningen in jouw buurt om een goede schatting te geven.

Realiseer al jouw woondromen met Ditters

Wij zijn een team van gedreven vastgoedexperts met een passie voor het maken van verbindingen – tussen kopers en verkopers, huurders en verhuurders. Met een frisse kijk op de makelaardij combineren we expertise met creativiteit. Onze makelaars luisteren écht en nemen de tijd om jouw wensen te begrijpen.


Bij Ditters sta je er niet alleen voor. We denken met je mee, begeleiden je in elke stap en zijn altijd bereikbaar voor vragen. Neem gerust contact met ons op – we helpen je graag verder!