Omschrijving

Dit vrijstaande huis biedt alles wat je kunt wensen. Met een diepe en strak aangelegde tuin en een ligging vlakbij het centrum vind je hier het beste van twee werelden.

Op een levendige locatie nabij het winkelhart van Ede staat dit karakteristieke uitgebouwde vrijstaande woning, uit de jaren dertig, met overkapping, veranda met luxe jacuzzi en ruime berging. De achtertuin is op het zonnige zuiden gelegen en de uitbouw is aan de achterzijde nog deels over het terras overkapt met een nis om in het vroege voorjaar al lekker buiten te kunnen zitten.

Door de perfecte ligging heb je vele voorzieningen in de nabije omgeving zoals bossen, het gezellige centrum met haar vele winkels en restaurants, het treinstation, (sport)scholen en de aansluitingen op de Rijksweg 224 richting Arnhem en de snelwegen A12 en A30.

Alle kenmerken op een rij:
* Vrijstaande woning met 5 (slaap)kamers;
* Diepe tuin op het zuiden;
* Vlakbij het centrum en alle voorzieningen.

Indeling:
Begane grond:
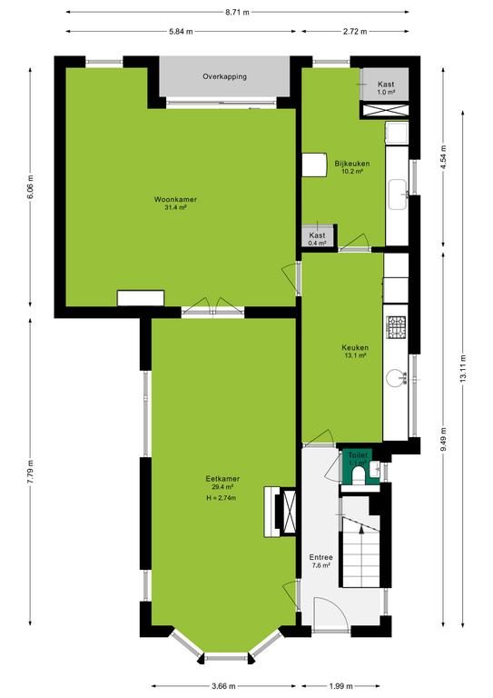
Direct bij binnenkomst wordt je blik gevangen door de authentieke vloer die de hal siert. Vanuit de hal loop je direct door naar de ruime kelder, keuken of de eetkamer.
Dit huis nodigt uit om samen te genieten van maaltijden in een sfeervolle eetruimte. Extra sfeer geeft deze kamer door de open haard. Achter de eetkamer is de woonkamer gelegen. Dankzij de openslaande deuren kun je deze ruimtes gemakkelijk van elkaar scheiden, wat een ideale gelegenheid biedt voor momenten van privacy en rust. De sfeervolle woonkamer heeft een grootte van maar liefst ca. 32m2 en beschikt over heerlijk veel lichtinval maar ook over een heel fijn uitzicht op de tuin door de grote schuifpui in de woonkamer. Vanuit de woonkamer heb je de mogelijkheid om de ruime keuken (Siematic) binnen te treden. De lichte keuken is uitgerust met diverse inbouwapparatuur zoals een magnetron, vaatwasser, oven, koelkast en gasfornuis. Vanuit deze ruimte heb je ook direct toegang tot de praktische bijkeuken, die is ingericht met twee extra inbouwkasten voor nog meer opslagmogelijkheden en een keukenblok voor extra werkruimte. Bovendien is de bijkeuken voorzien van een handige wasmachineaansluiting, wat zorgt voor gemak en efficiëntie bij het huishouden.

1e Verdieping:
Eenmaal teruggekomen in de hal loop je via de vaste trap door naar de eerste verdieping, welke je leidt naar de centrale overloop en de drietal slaapkamers. De slaapkamer welke gesitueerd aan de voorzijde van de woning meet een comfortabele 10m² en is uitgerust met een praktische inbouwkast. Aan de tuinzijde van het huis bevinden zich nog twee slaapkamers met afmetingen van ca. 12m² en 6m². Een van deze twee slaapkamers beschikt ook over een praktische inbouwkast. De slaapkamer van 6m2 heeft een deur naar het platte dak. Ook is de badkamer op deze verdieping gesitueerd en is voorzien van een modern wastafelmeubel en een fijne inloopdouche. Extra comfort wordt geboden door de afgescheiden wc.

2e Verdieping:
Door middel van een sfeervolle trap kom je op de tweede verdieping en vind je nog eens twee veelzijdige kamers van elk 6m². Deze ruimtes zijn uitermate geschikt voor diverse doeleinden, zoals het opbergen van spullen, inrichten als studeer- of werkkamer, of het bieden van een overnachtingsplek. Een van de kamers is voorzien van een Velux dakraam.

Tuin:
Deze tuin is werkelijk fantastisch! Met een diepte van bijna 19 meter en een breedte van 11 meter kun je heerlijk genieten van het buitenleven op welk moment van de dag!

Als kers op de taart bevindt zich hier ook nog een grote veranda met luxe jacuzzi, die naar wens kan worden omgetoverd in een overdekte buitenkamer, dankzij de glazen wand die open en dicht kan. Dit maakt het een ideale plek om te ontspannen, ongeacht het weer of seizoen.

Daarnaast is er ook nog een berging van 19m², die volop plaats biedt voor opslag of hobby.

Samengevat
• Royale woonoppervlakte van 156 m²
• Vijf ruime slaapkamers
• Moderne badkamer
• Ruime woonkamer van 32m² met een schuifpui naar de tuin
• Zonnige tuin op het zuiden

Deze woning biedt alle ruimte en mogelijkheden die je zoekt – ideaal voor een groot gezin, voor een eigen werkplek of voor mensen die gewoon van luxe en comfort houden.

Interesse? Neem snel contact met ons op voor een bezichtiging!

Koopovereenkomst:
Bij de verkoop zal er een standaard NVM koopovereenkomst worden gehanteerd. Bij woningen welke ouder zijn dan 20 jaar, worden de volgende clausules opgenomen in de koopovereenkomst:
- Asbestclausule;
- Ouderdomsclausule.

Koop je de woning zonder voorbehoud van financiering? Dan zullen wij een termijn hanteren van 14 dagen na het opstellen van de koopovereenkomst voor het storten van de bankgarantie/waarborgsom.

Deze informatie is door ons met de nodige zorgvuldigheid samengesteld. Onzerzijds wordt echter geen enkele aansprakelijkheid aanvaard voor enige onvolledigheid, onjuistheid of anderszins, dan wel de gevolgen daarvan. Alle opgegeven maten en oppervlakten zijn indicatief.
+ toon meer
deze woning is Verkocht

Molenstraat 79 Ede

Molenstraat 79

6712 CT, Ede
Ditters open huis: 5 april 2025 10:00 - 12:00 uur
Landelijke Open Huizen Route NVM: 5 april 2025 11:00 uur - 15:00 uur
Vanaf€ 750.000 k.k.

Schakel een aankoopmakelaar in.

Snel handelen helpt je jouw droomhuis te bemachtigen. Zo vergroot je de kans dat je er op tijd bij bent.
Ede
verkocht

Of maak vrijblijvend een zoekprofiel aan.

Vergelijkbare woningen

Hypotheken

Onafhankelijk hypotheekadvies

  • Ligt jouw droomhuis binnen handbereik?
  • Wil je jouw huidige hypotheek verhogen?
  • Is er hypotheekruimte voor verduurzaming?

Blijf op de hoogte

Ontvang als eerste updates over nieuw aanbod en mis geen enkele kans om jouw droomwoning te vinden.

Gratis waardebepaling of verkoopgesprek

Met de vrijblijvende waardecheck weet je snel waar je aan toe bent. Onze makelaars kijken naar de lokale markt en vergelijkbare woningen in jouw buurt om een goede schatting te geven.

Realiseer al jouw woondromen met Ditters

Wij zijn een team van gedreven vastgoedexperts met een passie voor het maken van verbindingen – tussen kopers en verkopers, huurders en verhuurders. Met een frisse kijk op de makelaardij combineren we expertise met creativiteit. Onze makelaars luisteren écht en nemen de tijd om jouw wensen te begrijpen.


Bij Ditters sta je er niet alleen voor. We denken met je mee, begeleiden je in elke stap en zijn altijd bereikbaar voor vragen. Neem gerust contact met ons op – we helpen je graag verder!