Omschrijving

Welkom in de charmante Ruisdaelstraat 11, een perfecte instapklare tussenwoning in het hart van de levendige wijk De Maandereng in Ede. Deze woning biedt alles wat je zoekt voor comfortabel en modern wonen. Met vier royale slaapkamers, een ruime en lichte woonkamer en een moderne, volledig uitgeruste keuken en badkamer, is dit huis helemaal klaar voor jouw intrek.

De woning beschikt over een royale achtertuin met een handige berging voorzien van een elektrische roldeur, ideaal voor het veilig stallen van je motor of fietsen. Dankzij de twee dakkapellen geniet je van extra ruimte en licht op de bovenverdieping, wat bijdraagt aan een aangename woonervaring.

De Maandereng is een levendige jaren '80 wijk die perfect is voor gezinnen. Met diverse scholen op loop- en fietsafstand, biedt deze buurt een veilige en gemakkelijke omgeving voor kinderen om naar school te gaan. Het nabijgelegen Maanderpark is een heerlijke plek voor ontspanning en recreatie, terwijl het winkelcentrum in de buurt voorziet in al je dagelijkse behoeften met een breed aanbod aan winkels en eetgelegenheden.

Daarnaast is de bereikbaarheid uitstekend. Het station Ede-Wageningen ligt in de buurt, waardoor je eenvoudig met het openbaar vervoer naar steden als Arnhem en Utrecht reist. Voor automobilisten biedt de nabijheid van de A12 een snelle toegang tot het nationale wegennet, ideaal voor woon-werkverkeer.

Kortom, Ruisdaelstraat 11 is de ideale woning voor gezinnen die op zoek zijn naar comfort, ruimte en een centrale locatie. Kom langs en ervaar zelf de vele voordelen van wonen in deze prachtige wijk!

Enkele pluspunten van de woning:
+ Vier slaapkamers;
+ Moderne keuken (2020);
+ Eigentijdse badkamer;
+ Dakkapel op zolder;
+ Royale tuin;
+ Elektrische roldeur in de berging (ruimte voor een o.a. een motor)

Indeling
Begane grond
Hal met meterkast en een vernieuwde toiletruimte met toilet en fonteintje. De woonkamer is zeer licht dankzij de openslaande deuren naar de oostelijk gelegen tuin. Daarnaast beschikt de woonkamer over een praktische trapkast voor extra opbergruimte. De keuken is uitgevoerd in lichte tinten en voorzien van moderne apparatuur, waaronder een inductiekookplaat, afzuigkap, spoelbak, vaatwasser, oven, magnetron, een koel-/vriescombinatie en een losstaande koelkast.

Eerste verdieping
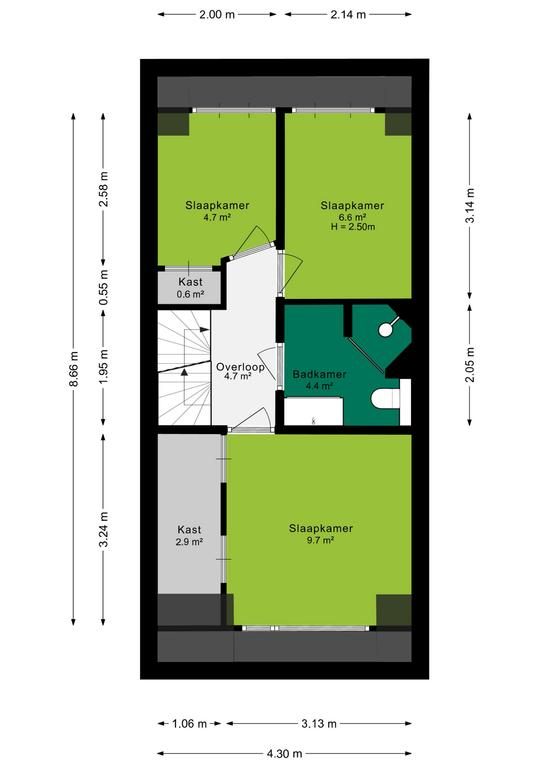
Vanaf de overloop heb je toegang tot drie slaapkamers en een badkamer. De ouderslaapkamer bevindt zich aan de voorkant en is uitgerust met een inloopkast. De twee slaapkamers aan de achterkant hebben een dakkapel, wat zorgt voor extra ruimte. De moderne badkamer is volledig betegeld en beschikt over een inloopdouche, toilet, wastafelmeubel met spiegelkast en een designradiator.

Tweede verdieping
Via de vaste trap bereik je de zolderverdieping. Op de zolder vind je de C.V.-opstelling en de aansluitingen voor de wasmachine en droger. De vierde slaapkamer heeft een dakkapel aan de achterzijde, wat extra ruimte biedt, en aan de voorzijde zijn er twee Velux-dakramen geplaatst.

Tuin
De voortuin is gelegen op het westen. Daarnaast is er een aangebouwde berging met een roldeur. De achtertuin, die op het oosten ligt, is keurig aangelegd en beschikt over een mooi grasveld. Achter in de tuin bevindt zich een kleine, aparte berging. De tuin is ook bereikbaar via een achterom, wat ideaal is voor het stallen van fietsen.

Perceeloppervlakte: 124 m²
Inhoud woning: 358 m³
Woonoppervlakte: 98 m²

Bijzonderheden
Verwarming: CV ketel, Atag;
Warm water: CV ketel, Atag;
Isolatie: Dak isolatie, muurisolatie, vloerisolatie, Dubbelglas;
Tuinligging: Oosten;
Aanvaarding: In overleg.

Koopovereenkomst:
Bij de verkoop zal er een standaard NVM koopovereenkomst worden gehanteerd. Bij woningen welke ouder zijn dan 20 jaar, worden de volgende clausules opgenomen in de koopovereenkomst:
- Asbestclausule;
- Ouderdomsclausule.

Koop je de woning zonder voorbehoud van financiering? Dan zullen wij een termijn hanteren van 14 dagen na het opstellen van de koopovereenkomst voor het storten van de bankgarantie/waarborgsom.

Deze informatie is door ons met de nodige zorgvuldigheid samengesteld. Onzerzijds wordt echter geen enkele aansprakelijkheid aanvaard voor enige onvolledigheid, onjuistheid of anderszins, dan wel de gevolgen daarvan. Alle opgegeven maten en oppervlakten zijn indicatief.
+ toon meer
deze woning is Verkocht

Ruisdaelstraat 11 Ede

Ruisdaelstraat 11

6717 TL, Ede
Ditters open huis: 5 april 2025 10:00 - 12:00 uur
Landelijke Open Huizen Route NVM: 5 april 2025 11:00 uur - 15:00 uur
Vanaf€ 425.000 k.k.

Schakel een aankoopmakelaar in.

Snel handelen helpt je jouw droomhuis te bemachtigen. Zo vergroot je de kans dat je er op tijd bij bent.
Ede
verkocht

Of maak vrijblijvend een zoekprofiel aan.

Vergelijkbare woningen

Hypotheken

Onafhankelijk hypotheekadvies

  • Ligt jouw droomhuis binnen handbereik?
  • Wil je jouw huidige hypotheek verhogen?
  • Is er hypotheekruimte voor verduurzaming?

Blijf op de hoogte

Ontvang als eerste updates over nieuw aanbod en mis geen enkele kans om jouw droomwoning te vinden.

Gratis waardebepaling of verkoopgesprek

Met de vrijblijvende waardecheck weet je snel waar je aan toe bent. Onze makelaars kijken naar de lokale markt en vergelijkbare woningen in jouw buurt om een goede schatting te geven.

Realiseer al jouw woondromen met Ditters

Wij zijn een team van gedreven vastgoedexperts met een passie voor het maken van verbindingen – tussen kopers en verkopers, huurders en verhuurders. Met een frisse kijk op de makelaardij combineren we expertise met creativiteit. Onze makelaars luisteren écht en nemen de tijd om jouw wensen te begrijpen.


Bij Ditters sta je er niet alleen voor. We denken met je mee, begeleiden je in elke stap en zijn altijd bereikbaar voor vragen. Neem gerust contact met ons op – we helpen je graag verder!