Omschrijving

Centraal in Ede gelegen, bevindt zich dit royale appartement met een woonoppervlakte van 94m² en een fantastisch groot terras van maar liefst ruim 30m². Dit 3-kamerappartement is zo te betrekken en door de fijne ligging ervaar je hier veel rust en een prettig uitzicht!

De volgende aspecten van dit fraaie appartement zullen je vast verrassen: een woon-eetkamer van ruim 30m² met heerlijk veel lichtinval, ruime keuken met diverse inbouwapparatuur, 2 volwaardige slaapkamers met handige inbouwkasten, complete badkamer en een royaal terras van ruim 30m² op het westen. Daarnaast beschikt de woning over een financieel gezonde VvE en eigen berging.

Op loopafstand bereikt je winkelcentrum Bellestein en winkelcentrum Rozenplein met verscheidene supermarkten en winkels. Tevens bevinden zich in de nabije omgeving diverse sportaccommodaties, scholen, een kinderboerderij, het centrum van Ede en diverse uitvalswegen als A12 en A30. Tegenover het complex en in de straat zelf zijn meer dan genoeg parkeerplekken.

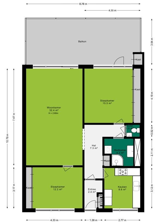
Indeling:
Algemene entree:
Via de centrale entree kom je bij de brievenbussen en heb je toegang tot de lift en het trappenhuis.

Appartement:
Vanuit de entree en hal met meterkast zijn alle vertrekken te bereiken. De royale woon-eetkamer heeft een afmeting van ruim 30m², is voorzien van een nette pvc-vloer, strak afgewerkte wanden en krijgt door de vele raampartijen heerlijk veel lichtinval. Door de prettige indeling is er ruimte genoeg voor een grote eettafel of apart zitgedeelte. De keuken heeft een lichte kleurstelling en beschikt over diverse inbouwapparatuur waaronder een gasfornuis, afzuigkap, oven, koelkast, vriezer, vaatwasser en veel opbergruimte.

De volwaardige slaapkamers hebben een afmeting van ca. 15,5m² en 12m². De slaapkamers zijn voorzien van een nette pvc-vloer, neutrale wanden, voldoende lichtinval en praktische ingebouwde kasten. De complete badkamer is betegeld in een lichte kleurstelling en beschikt over een wastafel met wastafelmeubel, douche en de witgoedaansluiting is hier aanwezig. Naast de badkamer bevindt zich een separaat toilet.

Balkon:
Het appartement beschikt over een zeer royaal balkon welke is gelegen op het zonnige westen waardoor je optimaal van de zon of de schaduw kunt genieten. Door de hoge ligging kan je hier genieten van een weids uitzicht en veel privacy.

In de onderbouw bevindt zich een handige berging voor het opbergen van alle spullen of het stallen van de fiets.

Kenmerken:
Verwarming: blokverwarming
Warm water: boiler
Bouwjaar: 1975
Isolatie: grotendeels dubbel glas
Balkonligging: westen
Aanvaarding: in overleg

Extra's:
- 3-kamer-appartement met een weids uitzicht;
- Royale woonkamer met veel lichtinval;
- Complete keuken met diverse inbouwapparatuur;
- Zeer ruim terras gelegen op het zonnige westen;
- Eigen berging in de onderbouw;
- Gelegen nabij diverse voorzieningen en uitvalswegen;
- De servicekosten bedragen € 378,73 per maand, inclusief voorschotstookkosten.

Koopovereenkomst:
Bij de verkoop zal er een standaard NVM koopovereenkomst worden gehanteerd. Bij woningen welke ouder zijn dan 20 jaar, worden de volgende clausules opgenomen in de koopovereenkomst:
- Asbestclausule;
- Ouderdomsclausule.

Koopt u de woning zonder voorbehoud van financiering? Dan zullen wij een termijn hanteren van 14 dagen na het opstellen van de koopovereenkomst voor het storten van de bankgarantie/waarborgsom.

Deze informatie is door ons met de nodige zorgvuldigheid samengesteld. Onzerzijds wordt echter geen enkele aansprakelijkheid aanvaard voor enige onvolledigheid, onjuistheid of anderszins, dan wel de gevolgen daarvan. Alle opgegeven maten en oppervlakten zijn indicatief.
+ toon meer
deze woning is Verkocht

Sint Hubertus 242 Ede

Sint Hubertus 242

6713 JJ, Ede
Ditters open huis: 5 april 2025 10:00 - 12:00 uur
Landelijke Open Huizen Route NVM: 5 april 2025 11:00 uur - 15:00 uur
Vanaf€ 350.000 k.k.

Schakel een aankoopmakelaar in.

Snel handelen helpt je jouw droomhuis te bemachtigen. Zo vergroot je de kans dat je er op tijd bij bent.
Ede
verkocht

Of maak vrijblijvend een zoekprofiel aan.

Vergelijkbare woningen

Hypotheken

Onafhankelijk hypotheekadvies

  • Ligt jouw droomhuis binnen handbereik?
  • Wil je jouw huidige hypotheek verhogen?
  • Is er hypotheekruimte voor verduurzaming?

Blijf op de hoogte

Ontvang als eerste updates over nieuw aanbod en mis geen enkele kans om jouw droomwoning te vinden.

Gratis waardebepaling of verkoopgesprek

Met de vrijblijvende waardecheck weet je snel waar je aan toe bent. Onze makelaars kijken naar de lokale markt en vergelijkbare woningen in jouw buurt om een goede schatting te geven.

Realiseer al jouw woondromen met Ditters

Wij zijn een team van gedreven vastgoedexperts met een passie voor het maken van verbindingen – tussen kopers en verkopers, huurders en verhuurders. Met een frisse kijk op de makelaardij combineren we expertise met creativiteit. Onze makelaars luisteren écht en nemen de tijd om jouw wensen te begrijpen.


Bij Ditters sta je er niet alleen voor. We denken met je mee, begeleiden je in elke stap en zijn altijd bereikbaar voor vragen. Neem gerust contact met ons op – we helpen je graag verder!