Omschrijving

Ben je op zoek naar een moderne, duurzame en instapklare woning? Zoek niet verder! Deze hoekwoning uit 2021 heeft alles wat je nodig hebt. Met 3 ruime slaapkamers en nog de mogelijkheid om een 4e slaapkamer te creëren, is er genoeg ruimte voor het hele gezin. De zonnige tuin op het zuidoosten is perfect voor een ontbijtje in het ochtendzonnetje of gezellige zomeravonden.
Daarnaast is deze woning helemaal klaar voor de toekomst met een energielabel A++, vloerverwarming voor een heerlijk comfortabele leefomgeving en een warmtepomp om duurzaam en efficiënt te verwarmen. Dit is wonen met lagere energiekosten.

De supermarkt en andere voorzieningen bevinden zich op slechts een steenworp afstand. Bovendien ligt de prachtige Ginkelse Heide om de hoek. Of je nu wilt genieten van een ontspannen wandeling of een sportief hardlooprondje het is allemaal binnen bereik.

Alle kenmerken op een rij
* Hoekwoning met 3 slaapkamers;
* Tuin op het zuidoosten;
* Energiezuinige woning: energielabel A++, vloerverwarming, zonnepanelen, warmtepomp;
* Dichtbij diverse voorzieningen.

Indeling
Begane grond
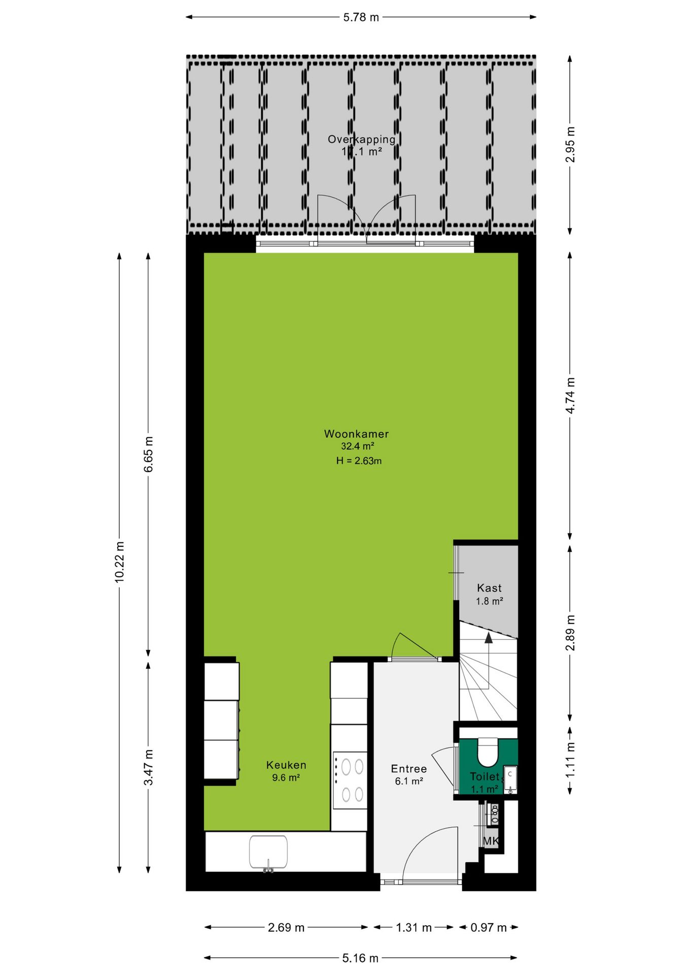
Zodra je de woonkamer binnenstapt, trekken de openslaande deuren meteen de aandacht. Dankzij het vele lichtinval voelt de ruimte heerlijk ruim en licht. De woonkamer en eetkamer lopen soepel in elkaar over, wat zorgt voor een gezellige en open sfeer. En de keuken, die staat in directe verbinding met de ruimtes. De keuken is voorzien van de modernste apparatuur – allemaal nog geen 4 jaar oud. Hier geniet je van het gemak van een ingebouwd koffieapparaat, een oven, koelkast, vaatwasser en als kers op de taart een Quooker kraan voor direct kokend water.

Eerste verdieping
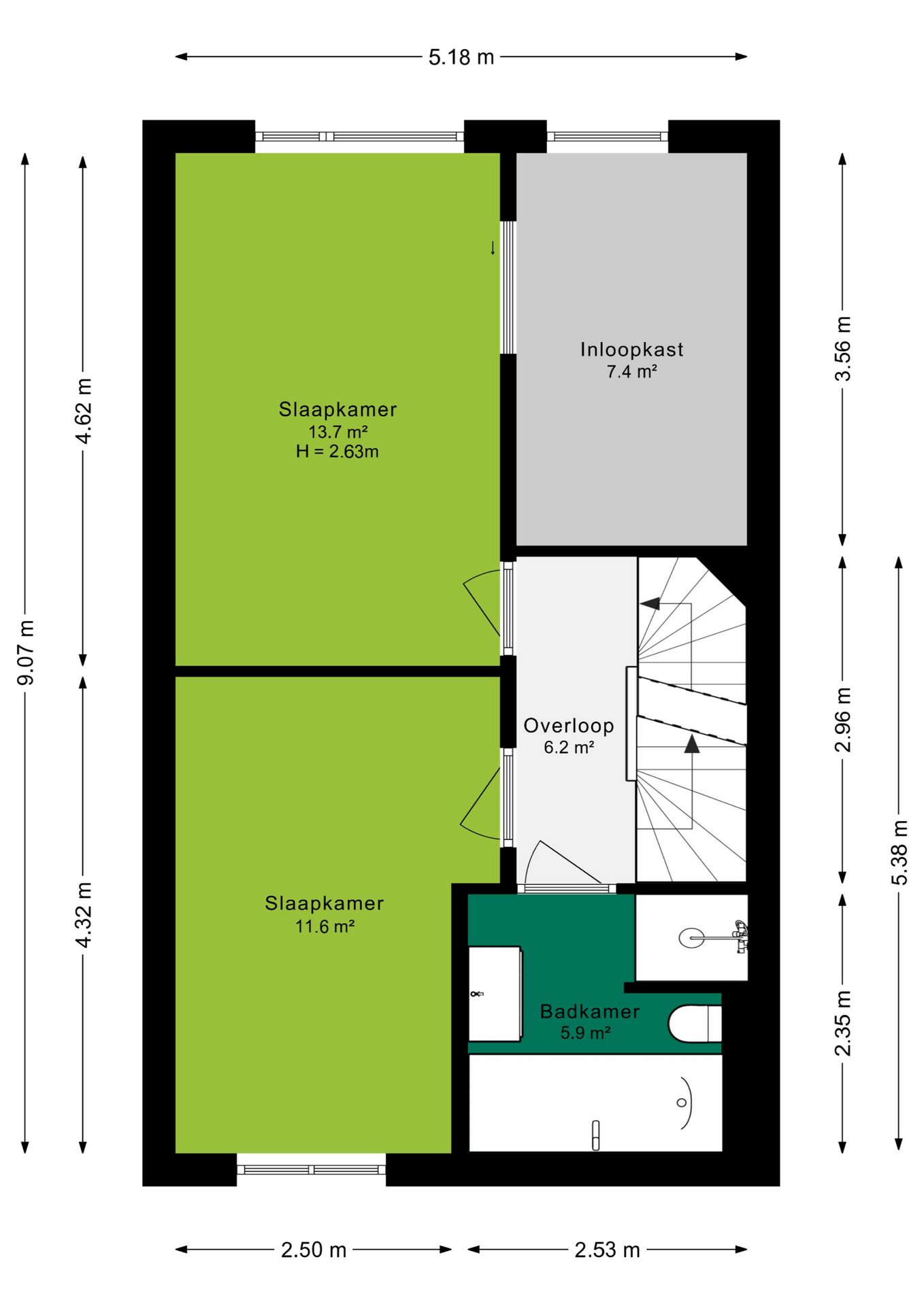
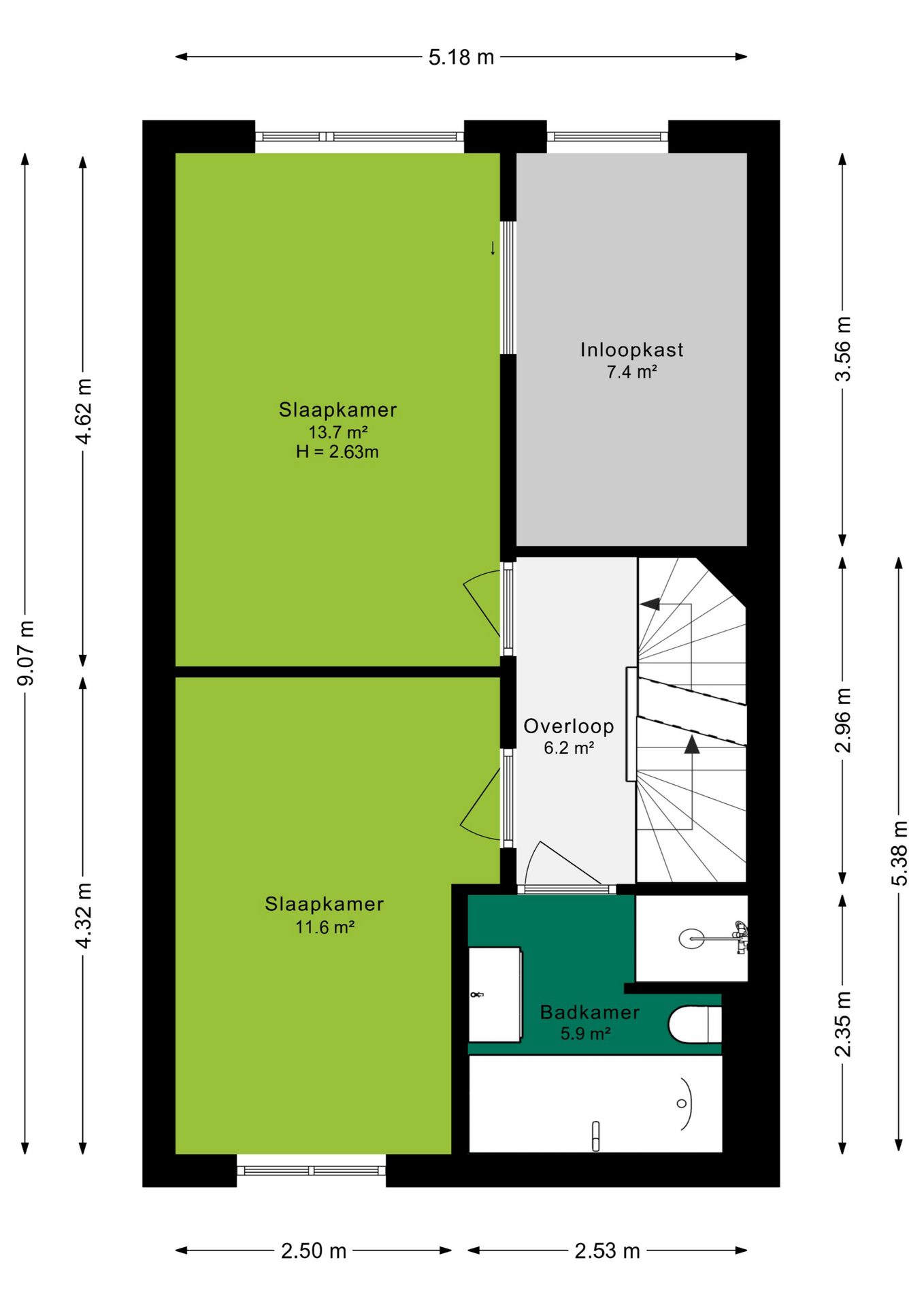
Op de eerste verdieping vind je 2 comfortabele slaapkamers en een moderne badkamer. De slaapkamer aan de achterzijde beschikt over een inloopkast. Liever een extra kamer? Dan kun je hier een 3e slaapkamer creëren.
De badkamer biedt alles wat je nodig hebt: een stijlvolle inloopdouche, een whirlpool om in te ontspannen, een handig wastafelmeubel en natuurlijk een toilet. Alles is hier tot in de puntjes verzorgd.

Tweede verdieping
Op de bovenverdieping bevindt zich een praktische bergruimte en 3e slaapkamer, met de mogelijkheid om een extra (slaap)kamer te realiseren. In de bergruimte vind je de cv-ketel en de wasmachineaansluiting.
Extra handig: achter de knieschotten vind je opbergruimte. Perfect voor het opbergen van seizoensspullen, koffers of andere items die je uit het zicht wilt hebben. Zo blijft je huis lekker opgeruimd én georganiseerd.

Tuin
Deze zonnige tuin op het zuidoosten is de perfecte plek om te ontspannen. Direct aan het huis grenst een overkapping, waar je het hele jaar door kunt genieten van het buitenleven. De tuin is verzorgd aangelegd en biedt een fijne combinatie van groen en gebruiksgemak. Achterin de tuin staat een praktische houten berging voor al je spullen. Bovendien is de tuin achterom bereikbaar. Hier kun je optimaal genieten van comfort en privacy.

Bijzonderheden
Verwarming: warmtepomp en vloerverwarming;
Warm water: aardwarmte;
Isolatie: volledig geïsoleerd;
Bouwjaar: 2011;
Tuinligging: zuidoosten;
Aanvaarding: in overleg.
+ toon meer
deze woning is Verkocht

Somahof 65 Ede

Somahof 65

6713 LB, Ede
Ditters open huis: 5 april 2025 10:00 - 12:00 uur
Landelijke Open Huizen Route NVM: 5 april 2025 11:00 uur - 15:00 uur
Vanaf€ 595.000 k.k.

Schakel een aankoopmakelaar in.

Snel handelen helpt je jouw droomhuis te bemachtigen. Zo vergroot je de kans dat je er op tijd bij bent.
Ede
verkocht

Of maak vrijblijvend een zoekprofiel aan.

Vergelijkbare woningen

Hypotheken

Onafhankelijk hypotheekadvies

  • Ligt jouw droomhuis binnen handbereik?
  • Wil je jouw huidige hypotheek verhogen?
  • Is er hypotheekruimte voor verduurzaming?

Blijf op de hoogte

Ontvang als eerste updates over nieuw aanbod en mis geen enkele kans om jouw droomwoning te vinden.

Gratis waardebepaling of verkoopgesprek

Met de vrijblijvende waardecheck weet je snel waar je aan toe bent. Onze makelaars kijken naar de lokale markt en vergelijkbare woningen in jouw buurt om een goede schatting te geven.

Realiseer al jouw woondromen met Ditters

Wij zijn een team van gedreven vastgoedexperts met een passie voor het maken van verbindingen – tussen kopers en verkopers, huurders en verhuurders. Met een frisse kijk op de makelaardij combineren we expertise met creativiteit. Onze makelaars luisteren écht en nemen de tijd om jouw wensen te begrijpen.


Bij Ditters sta je er niet alleen voor. We denken met je mee, begeleiden je in elke stap en zijn altijd bereikbaar voor vragen. Neem gerust contact met ons op – we helpen je graag verder!