Omschrijving

In de geliefde wijk Enka staat deze instapklare hoekwoning uit 2022. Met een woonoppervlakte van 131 m², drie slaapkamers, een ruime zolder met dakkapel en een tuin op het westen combineert deze woning modern comfort met een uitstekende ligging. Dankzij energielabel A+, stadsverwarming en 9 zonnepanelen woon je hier duurzaam en klaar voor de toekomst.

De woning ligt in een rustige straat op het Enka-terrein, een moderne wijk met een mix van fraaie architectuur en veel groen. De omgeving nodigt uit tot wandelen en sportieve uitjes in het nabijgelegen bos. Voor de dagelijkse boodschappen ligt winkelcentrum Spindop op loopafstand. Dankzij station Ede-Wageningen en de nabijheid van de A12 is de bereikbaarheid uitstekend.

Pluspunten van deze woning
+ Energiezuinige woning met energielabel A+ en 9 zonnepanelen;
+ Instapklaar en gebouwd in 2022;
+ Drie comfortabele slaapkamers
+ Een ruime zolder voorzien van een dakkapel, met talloze mogelijkheden
+ Tuin op het westen met achterom en berging

Indeling
Begane grond
In de entree vind je de meterkast, het toilet en de trapopgang naar de eerste verdieping. De lichte leefruimte biedt voldoende plek voor een zit- en eethoek en staat in direct contact met de moderne keuken. Deze is opgesteld in een hoekopstelling en voorzien van inductieplaat met geïntegreerde afzuigkap, wijnkoelkast, Quooker, vaatwasser en oven. De trapkast zorgt voor extra opbergruimte.

Eerste verdieping
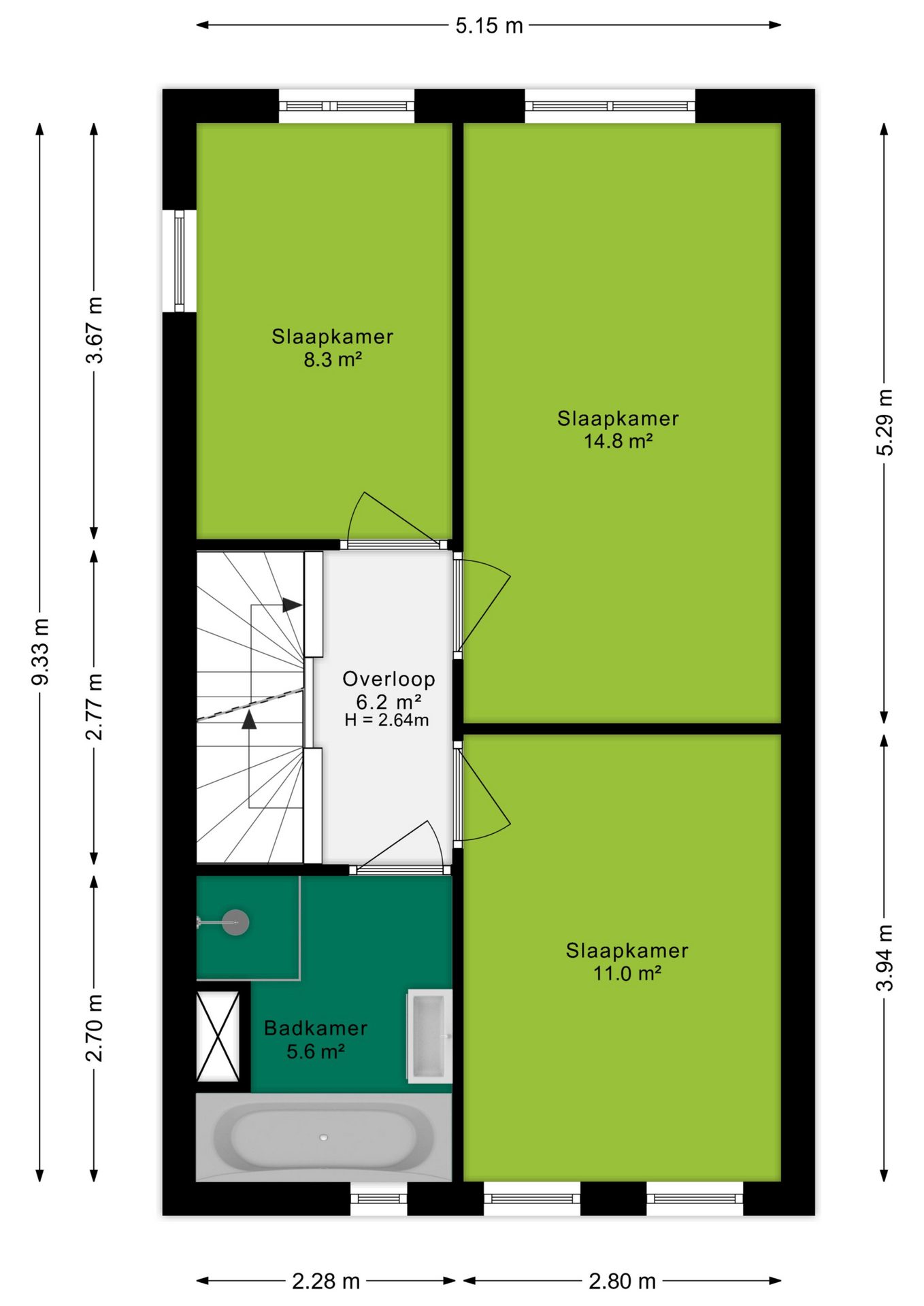
De eerste verdieping beschikt over drie slaapkamers van circa 15 m², 11 m² en 8 m². Alle kamers zijn voorzien van veel daglicht. De badkamer is compleet ingericht met ligbad, inloopdouche, toilet, wastafel met meubel en designradiator.

Tweede verdieping
De zolderverdieping is bereikbaar via een vaste trap en biedt veel mogelijkheden. Door de dakkapel is er extra ruimte en licht, waardoor de verdieping kan worden ingericht als extra slaapkamer of hobbyruimte. Hier bevinden zich ook de aansluitingen voor wasmachine en droger.

Buitenruimte
Via openslaande deuren bereik je de serre. Vanuit hier loop je de tuin in, gelegen op het westen. De tuin beschikt over een achterom en een vrijstaande houten berging, ideaal voor fietsen of tuingereedschap.

Koopovereenkomst:
Bij de verkoop zal er een standaard NVM koopovereenkomst worden gehanteerd.

Koop je de woning zonder voorbehoud van financiering? Dan zullen wij een termijn hanteren van 6 weken na het opstellen van de koopovereenkomst voor het storten van de bankgarantie/waarborgsom.
+ toon meer
deze woning is Verkocht

Sponzenstraat 13 Ede

Sponzenstraat 13

6717 XM, Ede
Ditters open huis: 5 april 2025 10:00 - 12:00 uur
Landelijke Open Huizen Route NVM: 5 april 2025 11:00 uur - 15:00 uur
Vanaf€ 650.000 k.k.

Schakel een aankoopmakelaar in.

Snel handelen helpt je jouw droomhuis te bemachtigen. Zo vergroot je de kans dat je er op tijd bij bent.
Ede
verkocht

Of maak vrijblijvend een zoekprofiel aan.

Vergelijkbare woningen

Hypotheken

Onafhankelijk hypotheekadvies

  • Ligt jouw droomhuis binnen handbereik?
  • Wil je jouw huidige hypotheek verhogen?
  • Is er hypotheekruimte voor verduurzaming?

Blijf op de hoogte

Ontvang als eerste updates over nieuw aanbod en mis geen enkele kans om jouw droomwoning te vinden.

Gratis waardebepaling of verkoopgesprek

Met de vrijblijvende waardecheck weet je snel waar je aan toe bent. Onze makelaars kijken naar de lokale markt en vergelijkbare woningen in jouw buurt om een goede schatting te geven.

Realiseer al jouw woondromen met Ditters

Wij zijn een team van gedreven vastgoedexperts met een passie voor het maken van verbindingen – tussen kopers en verkopers, huurders en verhuurders. Met een frisse kijk op de makelaardij combineren we expertise met creativiteit. Onze makelaars luisteren écht en nemen de tijd om jouw wensen te begrijpen.


Bij Ditters sta je er niet alleen voor. We denken met je mee, begeleiden je in elke stap en zijn altijd bereikbaar voor vragen. Neem gerust contact met ons op – we helpen je graag verder!